Просторан двособан стан са погледом на Витошу у затвореном комплексу
Цена:
379 820 € / 2 800 €/м²
Референтни број: SOF-131679 / 2932
Локација: Krustova Vada / Sofia мапа
Тип зграде/комплекса: Стамбени
Стамбене области: 135.65 м²
Врсте некретнина у згради/комплексу: Dvosobni stanovi
Референтни број: SOF-131679
Локација: Krustova Vada / Sofia
Тип зграде/комплекса: Жилищен
Класа зграде/комплекса:
Стамбене области: 135.65 м²
Врсте некретнина у згради/комплексу: Dvosobni stanovi
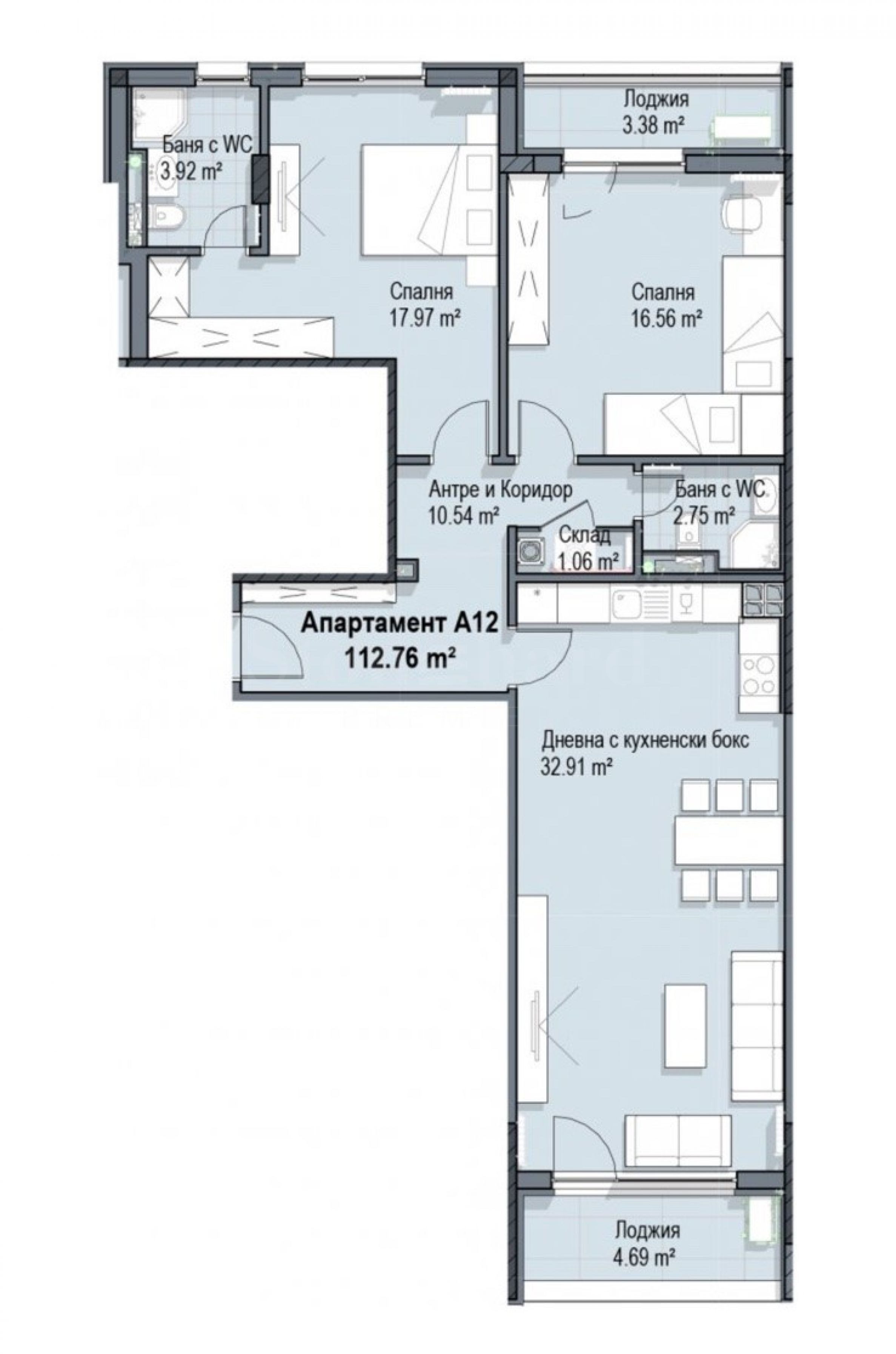
Трособан стан је функционално распоређен и нуди простране собе са оптималним облицима. Укупна површина стана је 135,65 кв.м, од чега је нето површина 1112,76 кв.м. Налази се на 5. спрату од 7, са оријентацијом југ-север и панорамским погледом на планину Витоша.
Стан има следећи распоред:
• Дневна соба, трпезарија и кухиња - 33 м²;
• Ходник – 11 м²;
• Спаваћа соба 1 – 17 м²;
• Спаваћа соба 2 – 18 м²;
• Купатило са тоалетом до спаваће собе - 3,92 м²;
• Купатило са тоалетом - 3,90 м²;
• Складиште - 1,16 кв.м;
• Балкон - 3,20 кв.м;
• Лођа - 4,60 кв.м.
Уз некретнину се може купити и паркинг место по цени од 30.000 евра.
Комплекс нуди велико уређено двориште, дечије игралиште и атрактивну спортску станицу са разноврсним вежбама.
Локација на мапи
Трособан стан је функционално распоређен и нуди простране собе са оптималним облицима. Укупна површина стана је 135,65 кв.м, од чега је нето површина 1112,76 кв.м. Налази се на 5. спрату од 7, са оријентацијом југ-север и панорамским погледом на планину Витоша.
Стан има следећи распоред:
• Дневна соба, трпезарија и кухиња - 33 м²;
• Ходник – 11 м²;
• Спаваћа соба 1 – 17 м²;
• Спаваћа соба 2 – 18 м²;
• Купатило са тоалетом до спаваће собе - 3,92 м²;
• Купатило са тоалетом - 3,90 м²;
• Складиште - 1,16 кв.м;
• Балкон - 3,20 кв.м;
• Лођа - 4,60 кв.м.
Уз некретнину се може купити и паркинг место по цени од 30.000 евра.
Комплекс нуди велико уређено двориште, дечије игралиште и атрактивну спортску станицу са разноврсним вежбама.
Трособан стан је функционално распоређен и нуди простране собе са оптималним облицима. Укупна површина стана је 135,65 кв.м, од чега је нето површина 1112,76 кв.м. Налази се на 5. спрату од 7, са оријентацијом југ-север и панорамским погледом на планину Витоша.
Стан има следећи распоред:
• Дневна соба, трпезарија и кухиња - 33 м²;
• Ходник – 11 м²;
• Спаваћа соба 1 – 17 м²;
• Спаваћа соба 2 – 18 м²;
• Купатило са тоалетом до спаваће собе - 3,92 м²;
• Купатило са тоалетом - 3,90 м²;
• Складиште - 1,16 кв.м;
• Балкон - 3,20 кв.м;
• Лођа - 4,60 кв.м.
Уз некретнину се може купити и паркинг место по цени од 30.000 евра.
Комплекс нуди велико уређено двориште, дечије игралиште и атрактивну спортску станицу са разноврсним вежбама.
ПРАВА
РАСПРОДАЈА
ПРОЈЕКАТ
Просторан, дизајнерски стан са паркинг местом у луксузној згради са Актом 16
Malinova Dolina / Sofia / Sofia / Бугарска мапа
Класа зграде/комплекса: Висок стандард
Подручје: 136 м²
Цена: 434 900 € /// 3 198 €/м²
Станови у другој фази модерног комплекса у близини Симеоновског шосеа
Malinova Dolina / Sofia / Sofia / Бугарска мапа
Цене некретнина: 69 346 - 192 316 €
Цене по м²: 1 575 - 1 995 €/м²
Станови у Фази 1 модерног комплекса у близини Симеоновског шосеа
Malinova Dolina / Sofia / Sofia / Бугарска мапа
Цене некретнина: 114 096 - 247 180 €
Цене по м²: 1 828 - 2 296 €/м²
Изаберите ову опцију и обавестићемо вас имејлом ако дође до било каквих промена у статусу понуде, на пример:
• Промена цене;
• Некретнина је ушла у промотивну понуду;
• Некретнина је резервисана или продата;
• Остале вести везане за некретнину.
• Некретнина је уклоњена из продаје;
Можете се лако одјавити са обавештења кад год желите.• Измене услова понуде;
• Промена износа инвестиције;
• Предмет инвестиције је у потпуности реализован;
• Понуда је истекла.
Можете се лако одјавити ако у будућности одлучите да више не желите да пратите ову понуду.



...Као доказани стручњак, Стоунхард ПРЕМИЕР ради на тржишном позиционирању и продаји бројних нових грађевинских пројеката, чију су нам реализацију повериле водеће предузетничке компаније у Бугарској и иностранству...