Nr ref. Numer: SOF-131679 / 2932
Lokalizacja: Krustova Vada / Sofia mapa
Typ budynku/kompleksu: Mieszkaniowy
Obszary mieszkaniowe: 135.65 m2
Rodzaje nieruchomości w budynku/kompleksie: Apartamenty trzypokojowe
Nr ref. Numer: SOF-131679
Lokalizacja: Krustova Vada / Sofia
Typ budynku/kompleksu: Жилищен
Klasa budynku/kompleksu:
Obszary mieszkaniowe: 135.65 m2
Rodzaje nieruchomości w budynku/kompleksie: Apartamenty trzypokojowe
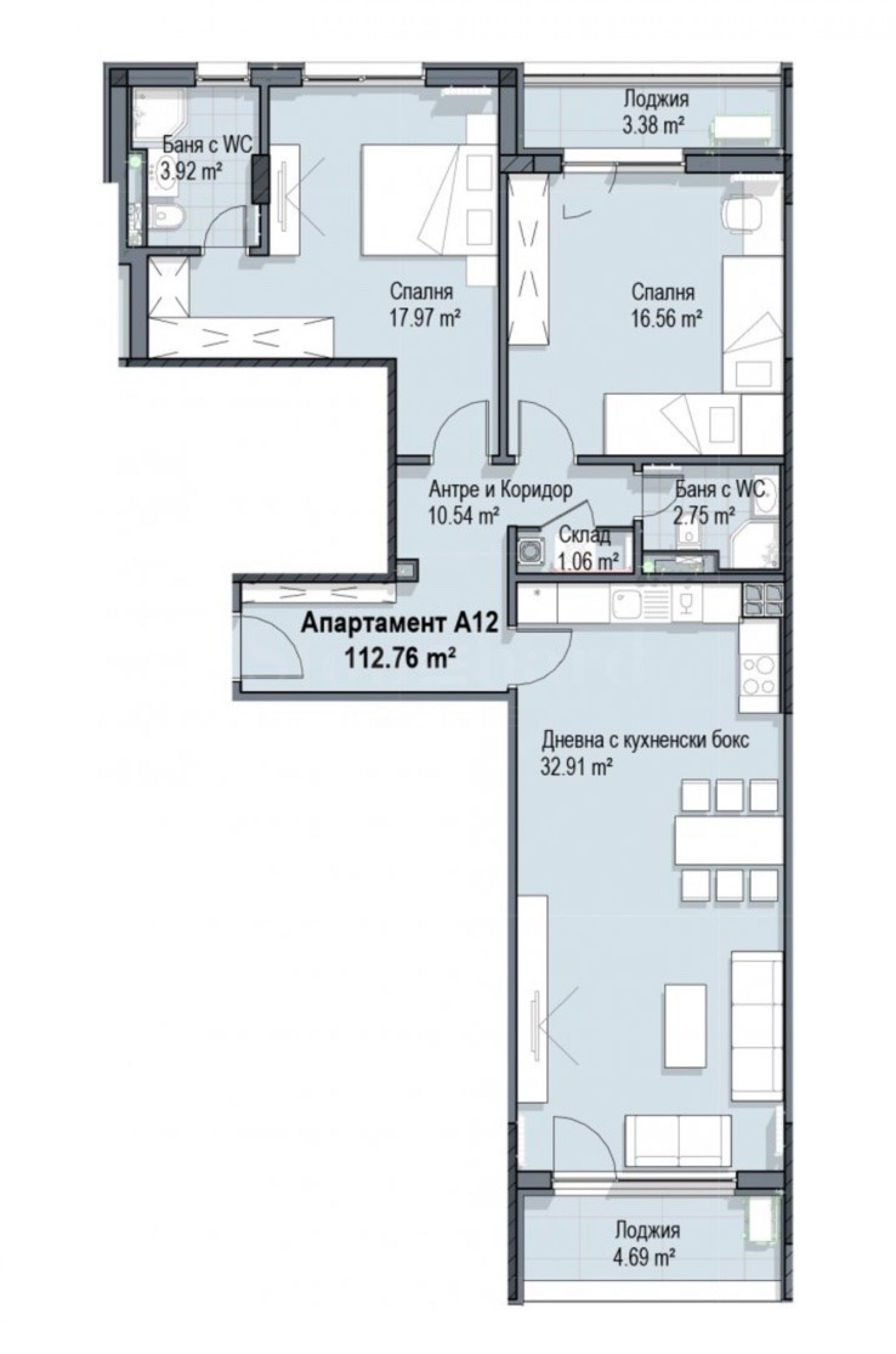
Trzypokojowe mieszkanie jest funkcjonalnie rozplanowane i oferuje przestronne pokoje o optymalnych kształtach. Całkowita powierzchnia mieszkania wynosi 135,65 mkw., z czego powierzchnia netto wynosi 1112,76 mkw. Znajduje się na 5. piętrze z 7, z orientacją południe-północ i panoramicznym widokiem na Górę Witosza.
Mieszkanie ma następujący układ:
• Salon, jadalnia i kuchnia - 33 m2;
• Korytarz – 11 m2;
• Sypialnia 1 – 17 m2;
• Sypialnia 2 – 18 m2;
• Łazienka z WC przy sypialni - 3,92 m2;
• Łazienka z WC - 3,90 m2;
• Magazyn - 1,16 m2;
• Balkon - 3,20 m2;
• Loggia - 4,60 mkw.
Do nieruchomości można dokupić miejsce parkingowe w cenie 30 000 euro.
Kompleks oferuje duży, zagospodarowany teren, plac zabaw dla dzieci i atrakcyjną stację sportową z wieloma możliwościami ćwiczeń.
Lokalizacja na mapie
Trzypokojowe mieszkanie jest funkcjonalnie rozplanowane i oferuje przestronne pokoje o optymalnych kształtach. Całkowita powierzchnia mieszkania wynosi 135,65 mkw., z czego powierzchnia netto wynosi 1112,76 mkw. Znajduje się na 5. piętrze z 7, z orientacją południe-północ i panoramicznym widokiem na Górę Witosza.
Mieszkanie ma następujący układ:
• Salon, jadalnia i kuchnia - 33 m2;
• Korytarz – 11 m2;
• Sypialnia 1 – 17 m2;
• Sypialnia 2 – 18 m2;
• Łazienka z WC przy sypialni - 3,92 m2;
• Łazienka z WC - 3,90 m2;
• Magazyn - 1,16 m2;
• Balkon - 3,20 m2;
• Loggia - 4,60 mkw.
Do nieruchomości można dokupić miejsce parkingowe w cenie 30 000 euro.
Kompleks oferuje duży, zagospodarowany teren, plac zabaw dla dzieci i atrakcyjną stację sportową z wieloma możliwościami ćwiczeń.
Trzypokojowe mieszkanie jest funkcjonalnie rozplanowane i oferuje przestronne pokoje o optymalnych kształtach. Całkowita powierzchnia mieszkania wynosi 135,65 mkw., z czego powierzchnia netto wynosi 1112,76 mkw. Znajduje się na 5. piętrze z 7, z orientacją południe-północ i panoramicznym widokiem na Górę Witosza.
Mieszkanie ma następujący układ:
• Salon, jadalnia i kuchnia - 33 m2;
• Korytarz – 11 m2;
• Sypialnia 1 – 17 m2;
• Sypialnia 2 – 18 m2;
• Łazienka z WC przy sypialni - 3,92 m2;
• Łazienka z WC - 3,90 m2;
• Magazyn - 1,16 m2;
• Balkon - 3,20 m2;
• Loggia - 4,60 mkw.
Do nieruchomości można dokupić miejsce parkingowe w cenie 30 000 euro.
Kompleks oferuje duży, zagospodarowany teren, plac zabaw dla dzieci i atrakcyjną stację sportową z wieloma możliwościami ćwiczeń.
PRAWA
SPRZEDAŻ
PROJEKT
Przestronny, designerski apartament z miejscem parkingowym w luksusowym budynku z lokalem nr 16
Malinova Dolina / Sofia / Sofia / Bułgaria mapa
Klasa budynku/kompleksu: Wysoki standard
Obszar: 136 m2
Cena: 434 900 € /// 3 198 €/m2
Apartamenty w II etapie nowoczesnego kompleksu w pobliżu „Simeonovsko szose”
Malinova Dolina / Sofia / Sofia / Bułgaria mapa
Ceny nieruchomości: 69 346 - 192 316 €
Ceny za m²: 1 575 - 1 995 €/m2
Apartamenty w I etapie nowoczesnego kompleksu w pobliżu „Simeonovsko szose”
Malinova Dolina / Sofia / Sofia / Bułgaria mapa
Ceny nieruchomości: 114 096 - 247 180 €
Ceny za m²: 1 828 - 2 296 €/m2
Wybierz tę opcję, a powiadomimy Cię e-mailem w przypadku jakichkolwiek zmian statusu oferty, na przykład:
• Zmiana ceny;
• Nieruchomość weszła w ofertę promocyjną;
• Nieruchomość jest zarezerwowana lub sprzedana;
• Inne wiadomości dotyczące nieruchomości.
• Nieruchomość zostaje wycofana ze sprzedaży;
Możesz w każdej chwili z łatwością zrezygnować z subskrypcji powiadomień.• Zmiany warunków oferty;
• Zmiana kwoty inwestycji;
• Przedmiot inwestycji został w całości zrealizowany;
• Oferta wygasła.
Jeśli w przyszłości zdecydujesz, że nie chcesz już otrzymywać tej oferty, możesz z łatwością zrezygnować z subskrypcji.



...Jako sprawdzony specjalista, Stonehard PREMIER zajmuje się pozycjonowaniem rynkowym i sprzedażą licznych nowych projektów budowlanych, których realizację powierzyły nam wiodące przedsiębiorstwa w Bułgarii i za granicą...