Nov, dvoetaen apartman, blizu do Cacao Beach
Cena:
119 650 € (1 975 €/m2)
*Ukazane cene i dostupnosti od slobodnih nekretnina u projektu su indikativne. Za aktuelne cenovne informacije, molimo vas da nas kontaktirate!
Ref. Broj: SVC-133608 / 3395
Lokacija: Sunny Beach karta
Tip na zgrada/kompleks: Stambeni
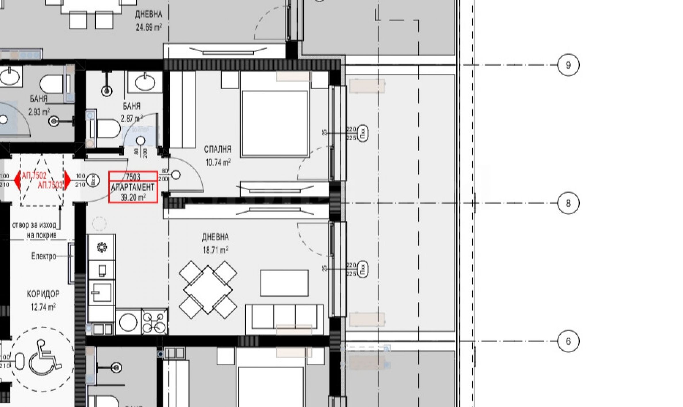
Površine stanova: 60.58 m2
Tipovi nekretnina u zgradi/kompleksu: Jednosobni stanovi
Ref. Broj: SVC-133608 / 3395
Lokacija: Sunny Beach
Tip na zgrada/kompleks: Stambeni
Klas na zgradi/kompleksu:
Površine stanova: 60.58 m2
Tipovi nekretnina u zgradi/kompleksu: Jednosobni stanovi
Са Законом 16!
Сани Вју Централ је затворени комплекс одморишта са мноштвом погодности за своје становнике, смештен на одличној локацији близу плаже Какао и плаже Бедроом. Комплекс је потпуно попуњен током летње сезоне, а некретнине се овде користе и за личну употребу и за изнајмљивање.
Комплекс се састоји од 7 зграда са Актом 16, а у изградњи је нова 8. зграда у којој су пројектовани станови, који се такође нуде у степену завршености „кључ у руке“. Постоји опција за потпуно опремање некретнина уз доплату.
Некретнина се налази на 5. спрату, нуди укупну површину од 60,58 квадратних метара и оријентисана је ка истоку, са погледом на базен и одмаралиште.
Дистрибуција:
ходник, купатило/тоалет;
• спаваћа соба;
• дневна соба са кухињом;
• тераса;
Нуди се по систему „кључ у руке“ на следећи начин:
заједничке просторије /зидови, подови итд./: под - плочице, зидови - фарба, модерни лифтови, башта од 2,5 декара;
• 5-коморни ПВЦ прозори са троструким стаклом;
• улазна врата: тип - пуни МДФ, са комбинационом бравом, уложак, унутрашња врата од МДФ-а;
• спољна изолација: EPS 5 cm;
• дневна соба: зидови офарбани белим латексом, HNDF ламинат (сертификат европског стандарда), дебљине од 6 мм до 8 мм, постоље;
• купатило и тоалет: унутрашња врата су водоотпорна, полутајна брава, потпуно обложена керамичким плочицама, у светлим бојама; плафони су офарбани водоотпорном белом латекс бојом;
• купатило: славина за топлу и хладну воду, тоалет са водокотлићем, лавабо са коленом и мешачем за топлу и хладну воду, осветљење, водомер;
• могућност луксузних завршних радова на стану уз доплату;
инсталације за кабловску телевизију, бежични интернет, безбедносни систем, систем за противпожарни аларм.
Некретнине у новој згради ће имати користи од свих погодности већ функционалног дела.
Постоји могућност куповине или изнајмљивања паркинг места, као и бесплатног паркинга у комплексу.
Локација
Локација Сани Вју Централа није далеко од центра летовалишта, где се налазе најбољи ресторани, кафићи и продавнице. У близини је и Стари град Несебар, где се налазе многе знаменитости и историјски споменици. Место је такође изузетно погодно за сунчање и бављење разним воденим спортовима, као и за спа третмане.
Садржаји на територији:
• рецепција током целе године
• ресторан;
• лоби бар;
три отворена базена са тушевима;
• систем за пречишћавање воде за базене електролизом соли;
• парк;
• дечје игралиште;
• фитнес на отвореном;
• паркинг;
• станице за пуњење електричних аутомобила;
• систем за препознавање регистарских бројева возила за паркинг;
• контролисан приступ целом комплексу и живо обезбеђење;
• одржавање током целе године;
• канцеларије;
• интернет и телевизија - локална са флексибилним пакетима за власнике.
Годишња накнада за одржавање износи 23,47 BGN (12 EUR)/м².
За додатне информације и заказивање разгледања, обратите се брокеру задуженом за понуду.
Радујемо се вашем упиту.
Уколико желите да закажете разгледање некретнине која вас занима или да посетите једну од наших канцеларија, контактирајте нас. Да бисте заказали дан и време састанка или разгледања, можете позвати број телефона наведен у огласу или послати упит путем е-поште. Наш консултант ће вам помоћи са свим потребним детаљима и заказати време које вам одговара.
Да ли тражите праву некретнину за вас?
Слободно нас контактирајте и реците нам о вашим потребама и жељама. Наш тим ће спровести темељно истраживање тржишта како би вам понудио некретнине које тачно испуњавају ваше критеријуме. Имамо изузетан портфолио висококвалитетних и ексклузивних кућа које су доступне само нашим клијентима. Да бисте први добили информације о њима – контактирајте нас.
Додатне услуге
Као цењени клијент наше компаније, имаћете привилегију да користите услуге нашег искусног правног тима потпуно бесплатно. Поред тога, нудимо свеобухватна решења, укључујући осигурање имовине, бесплатно финансијско саветовање, као и повољне услове финансирања. Наше услуге се протежу и на област препродаје, изнајмљивања и управљања некретнинама. Пружамо висококвалитетно реновирање и опремање преко специјализованих компанија које су део наше корпоративне групе и наши су дугогодишњи професионални партнери.
Mesto na karti
PRODAŽBA
PROJEKAT
Butik dvoetaen apartman na 80 metara od Kakao Bič, Slanchev bryag
Sunny Beach / Burgas / Bugarska karta
Plošča: 103.64 m2
Cena: 330 000 € /// 3 184 €/m2
PRODAŽBA
PROJEKAT
Dvoetaen apartman u kompleksu sa bazenom do Action Aquapark Slanchev bryag
Sunny Beach / Burgas / Bugarska karta
Plošča: 67 m2
Cena: 74 900 € /// 1 118 €/m2
PRODAŽBA
PROJEKAT
Dvosoban apartman u novom butik kompleksu u Slanchev bryag
Sunny Beach / Burgas / Bugarska karta
Plošča: 54.63 m2
Cena: 110 000 € /// 2 014 €/m2
Izaberite ovu opciju i obaveštavaćemo Vas putem imejla o promenama statusa ponude, na primer:
• Promena cene;
• Nekretnina je ušla u promotivnu ponudu;
• Nekretnina je rezervisana ili prodata;
• Druge novosti vezane za nekretninu.
• Nekretnina je skinuta sa prodaje;
Možete se lako odjaviti sa notifikacija kad god poželite.• Promene uslova ponude;
• Promena iznosa investicije;
• Predmet investicije je u potpunosti realizovan;
• Važenje ponude je isteklo.
Možete se lako odjaviti ako u budućnosti odlučite da više ne želite da pratite ovu ponudu.
Da biste dobili apsolutno tačne informacije o slobodnim nekretninama dostupnim za prodaju u projektu i njihovim aktuelnim cenama, molimo vas da kontaktirate našu kancelariju na navedene kontakt informacije.
Trudimo se da naše cenovnike održavamo apsolutno aktuelnim i tačnim, ali često to nije moguće zbog velikog broja novih projekata u našem katalogu i snažne dinamike prodaje.
Hvala vam na razumevanju!



...Kao dokazani stručnjak Stonehard PREMIER radi na tržišnom pozicioniranju i prodaji brojnih projekata novogradnje, čija je realizacija poverena od strane vodećih preduzetničkih kompanija u Bugarskoj i inostranstvu...