Новая однокомнатная квартира недалеко от пляжа Какао
Цена:
119 650 € (1 975 €/м 2)
*Цены и наличие свободных площадей в проекте указаны ориентировочно. Для получения актуальной информации о ценах, пожалуйста, свяжитесь с нами!
Ссылка. Число: SVC-133608 / 3395
Расположение: Солнечный берег карта
Тип здания/комплекса: Жилой
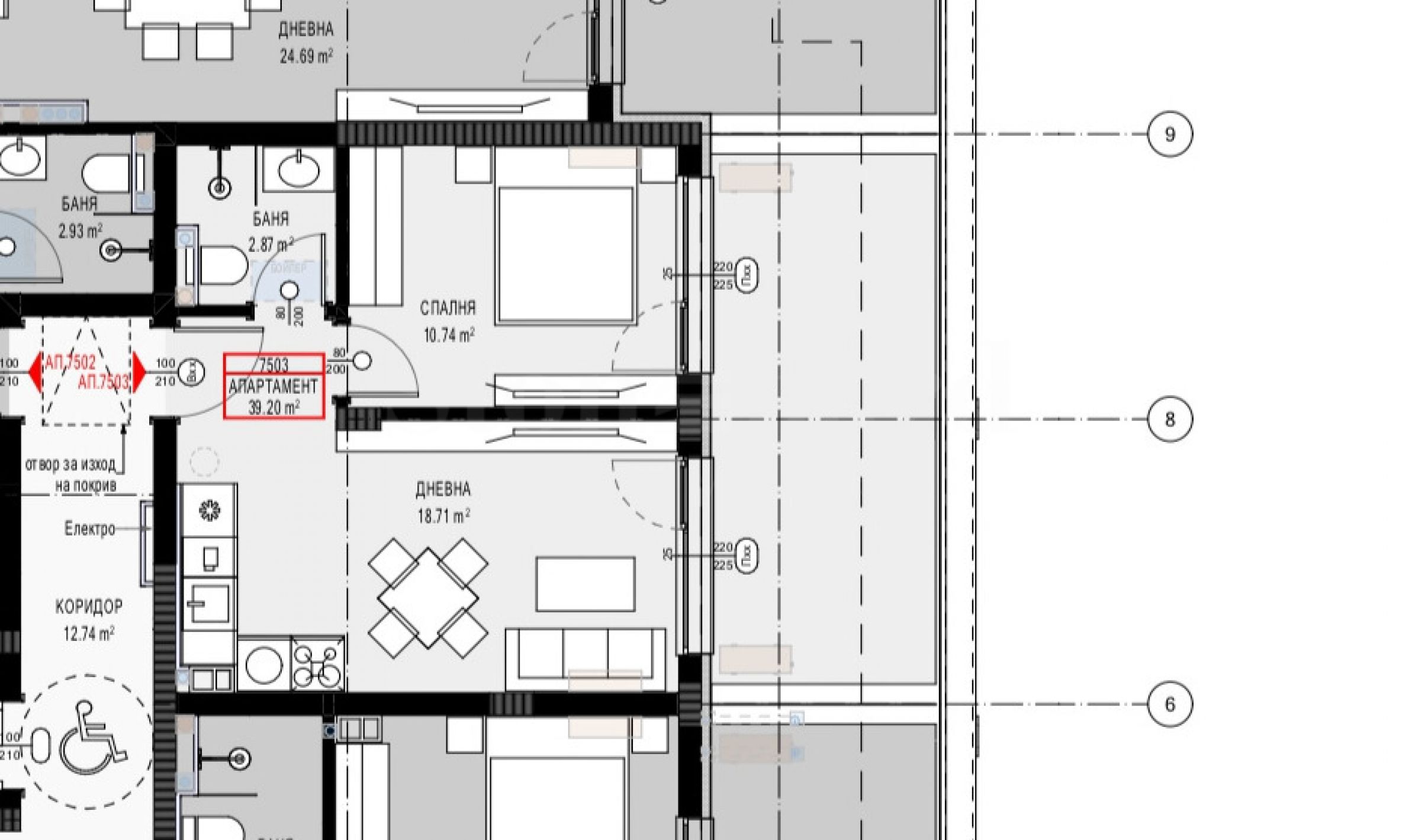
Жилые районы: 60.58 м 2
Типы объектов недвижимости в здании/комплексе: Двухкомнатные квартиры
Ссылка. Число: SVC-133608 / 3395
Расположение: Солнечный берег
Тип здания/комплекса: Жилой
Класс здания/комплекса:
Жилые районы: 60.58 м 2
Типы объектов недвижимости в здании/комплексе: Двухкомнатные квартиры
С 16 актом!
Sunny View Central — это закрытый жилой комплекс с множеством удобств для жильцов, расположенный в престижном месте недалеко от пляжей Какао-Бич и Бедфордшир. Летом комплекс полностью заселён, а недвижимость используется как для личного пользования, так и для сдачи в аренду.
Комплекс состоит из 7 корпусов с Актом 16, а также строится новый 8-й корпус, в котором уже спроектированы квартиры, также предлагаемые с отделкой «под ключ». Возможна полная меблировка за дополнительную плату.
Недвижимость расположена на 5 этаже, имеет общую площадь 60,58 кв. м и ориентирована на восток, с видом на бассейн и курорт.
Распределение:
коридор, ванная/туалет;
• спальня;
• гостиная с кухней;
• терраса;
Проект предлагается в готовом виде, как указано ниже:
общие зоны /стены, полы и т.д./: пол - плитка, стены - краска, современные лифты, сад 2,5 акра;
• 5-камерные окна ПВХ с тройным стеклопакетом;
• входная дверь: тип - цельная МДФ, с кодовым замком, патронная, межкомнатные двери из МДФ;
• внешняя изоляция: EPS 5 см;
• гостиная: стены окрашены белой латексной краской, полы ламинат HNDF (сертификат европейского стандарта), толщиной от 6 мм до 8 мм, плинтус;
• ванная комната и туалет: межкомнатные двери влагостойкие, замок полупотайной, полностью облицованы керамической плиткой, светлых тонов; потолки окрашены водостойкой белой латексной краской;
• ванная комната: кран с горячей и холодной водой, унитаз с бачком, раковина с локтем и смесителем горячей и холодной воды, освещение, счетчик воды;
• возможность выполнения отделочных работ класса люкс в квартире за дополнительную плату;
установки кабельного телевидения, беспроводного Интернета, системы безопасности, пожарной сигнализации.
Гости нового здания смогут воспользоваться всеми удобствами уже функционирующей части.
Есть возможность приобрести или арендовать парковочное место, а также бесплатная парковка на территории комплекса.
Расположение
Sunny View Central расположен недалеко от центра курорта, где сосредоточены лучшие рестораны, кафе и магазины. Неподалеку находится и Старый город Несебр с множеством достопримечательностей и исторических памятников. Это место идеально подходит для принятия солнечных ванн, занятий различными водными видами спорта и спа-процедур.
Удобства на территории:
• круглогодичный прием
• ресторан;
• лобби-бар;
три открытых бассейна с душевыми;
• система очистки воды для бассейнов с помощью электролиза соли;
• парк;
• детская площадка;
• фитнес на открытом воздухе;
• парковка;
• зарядные станции для электромобилей;
• система распознавания регистрационных номеров транспортных средств на парковке;
• контролируемый доступ на всей территории комплекса и постоянная охрана;
• круглогодичное обслуживание;
• офисы;
• интернет и телевидение - местные с гибкими пакетами для владельцев.
Годовая плата за обслуживание составляет 23,47 лева (12 евро)/м2.
Для получения дополнительной информации и организации просмотра, пожалуйста, свяжитесь с брокером, ответственным за предложение.
Мы с нетерпением ждем вашего запроса.
Если вы хотите договориться о просмотре интересующего вас объекта недвижимости или посетить один из наших офисов, пожалуйста, свяжитесь с нами. Чтобы договориться о встрече или просмотре, позвоните по указанному в объявлении номеру телефона или отправьте запрос по электронной почте. Наш консультант свяжется с вами по всем необходимым вопросам и подберет удобное для вас время.
Вы ищете подходящую для себя недвижимость?
Не стесняйтесь обращаться к нам и рассказать о своих потребностях и предпочтениях. Наша команда проведёт тщательное исследование рынка, чтобы предложить вам недвижимость, которая точно соответствует вашим критериям. У нас есть исключительное портфолио высококачественных и эксклюзивных домов, доступных только нашим клиентам. Чтобы первыми получать информацию о них, свяжитесь с нами.
Дополнительные услуги
Став нашим ценным клиентом, вы получите право пользоваться услугами нашей опытной юридической команды совершенно бесплатно. Кроме того, мы предлагаем комплексные решения, включая страхование имущества, бесплатные финансовые консультации и выгодные условия финансирования. Мы также предлагаем услуги по перепродаже, аренде и управлению недвижимостью. Мы осуществляем высококачественный ремонт и меблировку через специализированные компании, входящие в нашу группу компаний и являющиеся нашими давними профессиональными партнерами.
Смотр недвижимости
Мы готовы организовать смотр недвижимости в удобное для вас время. Обратитесь к ответственному менеджеру по продажам и проинформируйте его, когда бы Вы хотели приехать на смотровой тур. Мы можем помочь Вам забронировать авиабилет и отель, а также помочь Вам оформить визу и необходимую страховку.
Бронирование недвижимости
Вы можете забронировать недвижимость, заплатив невозмещаемый задаток в размере 2 000 евро наличным платежом, кредитной картой или банковским переводом на фирменный счет компании. После получения задатка недвижимость бронируется, осмотры с другими потенциальными покупателями производиться не будут, и начнется изготовление необходимых документов по оформлению сделки. Пожалуйста, обратитесь к ответственному за данный объект менеджеру по продажам для получения подробной информации относительно процедуры покупки и способов оплаты.
Послепродажное обслуживание
Мы уважаемая компания, за плечами которой многолетний опыт работы в сфере недвижимости. Мы будем сопровождать Вас не только во время покупки, но и после приобретения недвижимости, обеспечивая Вам дополнительный набор услуг с учетом Ваших требовании, для того, чтобы Вы могли насладиться полноценным и спокойным времяпровождением в Болгарии. Услуги, которые мы можем предложить, включают страхование, строительство и ремонт, услуги по меблировке, бухгалтерские и юридическиe услуги, переоформление договоров на электричество, воду, телефон и многое другое.
Расположение на карте
ПРОДАЖА
ПРОЕКТ
Однокомнатные апартаменты в стиле бутик, в 80 метрах от пляжа Какао, Солнечный Берег.
Солнечный берег / Бургас / Болгария карта
Область: 103.64 м 2
Цена: 330 000 € /// 3 184 €/м 2
ПРОДАЖА
ПРОЕКТ
Однокомнатная квартира в комплексе с бассейном, расположенном рядом с аквапарком «Солнечный Берег».
Солнечный берег / Бургас / Болгария карта
Область: 67 м 2
Цена: 74 900 € /// 1 118 €/м 2
ПРОДАЖА
ПРОЕКТ
Однокомнатная квартира в новом бутик-комплексе в Солнечном Береге.
Солнечный берег / Бургас / Болгария карта
Область: 54.63 м 2
Цена: 110 000 € /// 2 014 €/м 2
Выберите эту опцию, и мы уведомим вас по электронной почте в случае каких-либо изменений в статусе предложения, например:
• Изменение цены;
• Объект недвижимости попал в рекламное предложение;
• Имущество зарезервировано или продано;
• Другие новости, связанные с недвижимостью.
• Имущество снимается с продажи;
Вы можете легко отписаться от уведомлений в любое время.• Изменения условий предложения;
• Изменение размера инвестиций;
• Объект инвестиции полностью реализован;
• Срок действия предложения истек.
Вы сможете легко отказаться от подписки, если в будущем решите, что больше не хотите следовать этому предложению.
Для получения абсолютно корректной информации о свободных объектах недвижимости, выставленных на продажу в проекте, и их актуальных ценах, пожалуйста, свяжитесь с нашим офисом по указанным контактам.
Мы прилагаем все усилия, чтобы наши прайс-листы были абсолютно актуальными и правильными, но зачастую это невозможно, учитывая большое количество новых проектов в нашем каталоге и высокую динамику продаж.
Благодарим за понимание!



...Как проверенный специалист, Stonehard PREMIER работает над позиционированием на рынке и продажами многочисленных новых строительных проектов, реализацию которых нам доверили ведущие предпринимательские компании в Болгарии и за рубежом...