Četvoroiposoban apartman sa panoramom ka Vitosha u "Krastova vada"
na karti
Cena:
448 859 € (bez PDV-a) (2 580 €/m2 (bez PDV-a))
*Ukazane cene i dostupnosti od slobodnih nekretnina u projektu su indikativne. Za aktuelne cenovne informacije, molimo vas da nas kontaktirate!
Ref. Broj: AP 131113 / 3803
Lokacija: Krustova Vada / Sofia karta
Tip na zgrada/kompleks: Stambeni
Površine stanova: 174 m2
Tipovi nekretnina u zgradi/kompleksu: Dvosobni stanovi
Ref. Broj: AP 131113 / 3803
Lokacija: Krustova Vada / Sofia
Tip na zgrada/kompleks: Stambeni
Klas na zgradi/kompleksu:
Površine stanova: 174 m2
Tipovi nekretnina u zgradi/kompleksu: Dvosobni stanovi
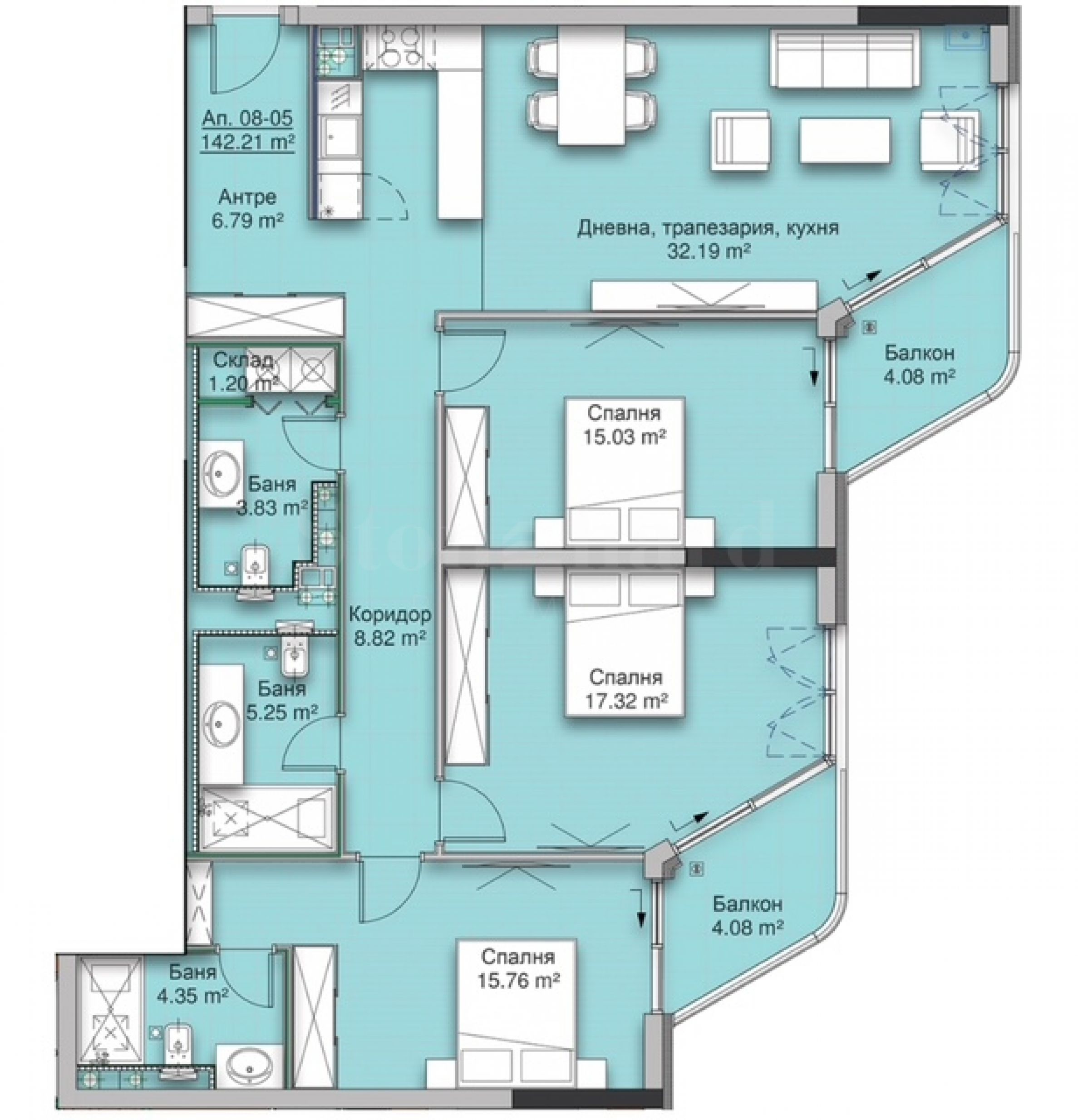
Stan se nalazi na osmom spratu od ukupno 15 nadzemnih i dva podzemna.
Zgrada ima kontrolisani pristup, živu zaštitu i video nadzor 24/7. Zgrada ima dva ulazna hola, potpuno odvojena i nezavisna jedan od drugog. Stambeni hol sa recepcijom, prostorom za čekanje i prostorijom za dečja kolica i bicikle. Poslovni hol sa recepcijom i prostorom za čekanje. Na nivou prizemlja je izdvojena kafeterija, sa direktnim i samostalnim pristupom za klijente. Za dodatnu udobnost postoje 4 visokobrzinska lifta Schindler, raspoređena proporcionalno za poslovni i stambeni deo.
Zgrada ima ventiliranu fasadnu oblogu od aluminijumskih kompozitnih panela – ALPOLIC® A2 - 4 mm, aluminijumske profile Schuco za prozore i vrata, dizajnerska ulazna vrata po individualnom projektu – Solid. Izgrađen je sistem podnog grejanja REHAU, sa dodatnom izolacionom podlogom -7 cm.
Raspored nekretnine:
- ulazni hodnik;
- dnevna soba sa trpezarijom i kuhinjskim delom, sa izlazom na terasu;
- spavaća soba sa izlazom na terasu;
- druga spavaća soba sa izlazom na terasu;
- dve samostalne kupatila;
- treća spavaća soba sa sopstvenim kupatilom i izlazom na terasu.
Orijentacija: istok/jug.
Postoji mogućnost kupovine podzemnog parking mesta po dodatnoj ceni od 25.000 evra bez PDV-a.
Obavezna taksa održavanja: 1,40 RSD bez PDV-a po m2 mesečno.
Očekujemo Vaš upit
Ako želite da organizujete razgledanje nekretnine koja Vas zanima ili da posetite neki od naših kancelarija, molimo Vas da nas kontaktirate. Da biste dogovorili dan i vreme za sastanak ili razgledanje, možete pozvati broj telefona naveden u oglasu ili poslati upit putem elektronske pošte. Naš konsultant će Vam pomoći sa svim potrebnim detaljima i dogovoriti vreme koje Vama odgovara.
Tražite odgovarajuću nekretninu za Vas?
Ne oklevajte da nas kontaktirate i ispričate nam o Vašim potrebama i preferencijama. Naš tim će sprovesti detaljno istraživanje tržišta kako bi Vam ponudio nekretnine koje tačno odgovaraju Vašim kriterijumima. Imamo izuzetno portfolio visokokvalitetnih i ekskluzivnih stanova, koji su dostupni samo našim klijentima. Da biste bili prvi koji će dobiti informacije o njima – kontaktirajte nas.
Dodatne usluge
Kao cenjeni klijent naše kompanije, imaćete privilegiju da besplatno koristite usluge našeg iskusnog pravnog tima. Pored toga, nudimo kompleksna rešenja koja uključuju imovinsko osiguranje, besplatne finansijske konsultacije, kao i povoljne uslove za finansiranje. Naše usluge se prostiru i na oblast preprodaje, izdavanja u zakup i upravljanja nekretninama. Obavljamo visokokvalitetne radove na popravkama i opremanju preko specijalizovanih firmi koje su deo naše korporativne grupe i naši dugogodišnji profesionalni partneri.
Mesto na karti
Нови стамбени пројекат од три зграде са различитим типовима станова у округу „Дианабад“
Dianabad / Sofia / Sofia / Бугарска karta
Cene na imovinu: 176 199 - 450 565 €
Cene po m²: 2 913 - 3 339 €/m2
Станови различитих типова у новој згради са елегантном, савременом архитектуром у округу Горубљане
Gorublyane / Sofia / Sofia / Бугарска karta
Cene na imovinu: 72 557 - 248 851 €
Cene po m²: 1 850 - 1 850 €/m2
PRODAŽBA
PROJEKAT
Četvoroiposoban stan sa tri terase u elitnom kompleksu sa Akt 16 u kv. "Bojana"
Boyana / Sofia / Sofia / Бугарска karta
Klas na zgradi/kompleksu: Visok standard
Plošča: 212.60 m2
Cena: 434 767 € /// 2 045 €/m2
Izaberite ovu opciju i obaveštavaćemo Vas putem imejla o promenama statusa ponude, na primer:
• Promena cene;
• Nekretnina je ušla u promotivnu ponudu;
• Nekretnina je rezervisana ili prodata;
• Druge novosti vezane za nekretninu.
• Nekretnina je skinuta sa prodaje;
Možete se lako odjaviti sa notifikacija kad god poželite.• Promene uslova ponude;
• Promena iznosa investicije;
• Predmet investicije je u potpunosti realizovan;
• Važenje ponude je isteklo.
Možete se lako odjaviti ako u budućnosti odlučite da više ne želite da pratite ovu ponudu.
Da biste dobili apsolutno tačne informacije o slobodnim nekretninama dostupnim za prodaju u projektu i njihovim aktuelnim cenama, molimo vas da kontaktirate našu kancelariju na navedene kontakt informacije.
Trudimo se da naše cenovnike održavamo apsolutno aktuelnim i tačnim, ali često to nije moguće zbog velikog broja novih projekata u našem katalogu i snažne dinamike prodaje.
Hvala vam na razumevanju!



...Kao dokazani stručnjak Stonehard PREMIER radi na tržišnom pozicioniranju i prodaji brojnih projekata novogradnje, čija je realizacija poverena od strane vodećih preduzetničkih kompanija u Bugarskoj i inostranstvu...