Ссылка. Число: Kbs 131171 / 3830
Расположение: Бояна / София карта
Тип здания/комплекса: Жилой
Жилые районы: 363 м 2
Типы объектов недвижимости в здании/комплексе: Пентхаусы в двух уровнях
Ссылка. Число: Kbs 131171
Расположение: Бояна / София
Тип здания/комплекса: Жилищен
Класс здания/комплекса:
Жилые районы: 363 м 2
Типы объектов недвижимости в здании/комплексе: Пентхаусы в двух уровнях
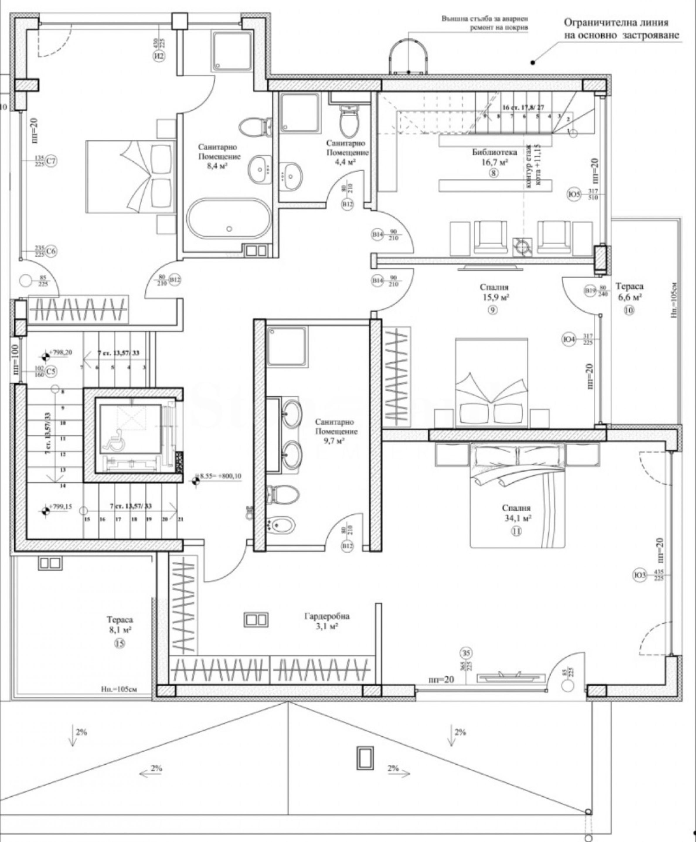
Расположение более чем превосходное – в районе Бояна, на улице «Стар Беловодски Пат», у подножия природного парка «Витоша». Район тихий и окружен природой, но в то же время с удобным выездом на бульвар «Болгария» и кольцевую дорогу. Остановка общественного транспорта находится в 150 метрах.
Распределение:
Просторная гостиная с кухней и столовой – 53 кв. м;
3 спальни;
4 санитарных узла;
Гардероб;
Библиотека с кабинетами на двух уровнях;
Влажное помещение;
2 дворовых пространства;
Терраса на крыше с панорамой 360° – 153 кв. м;
Стадия строительства: АКТ 14. Ожидаемый АКТ 15 к концу июня 2025 года, окончательное завершение – до конца 2025 года.
Высочайшая производительность:
Монолитная железобетонная конструкция с кирпичной кладкой Винербергера;
Окна – Sch?co, 6-камерные ПВХ с тройным стеклопакетом;
Фасад – натуральный камень, дерево и силиконовая штукатурка Baumit;
Стяжки для пола и гипсовая штукатурка Baumit;
Входные двери Solid 55, бронированные;
Лифт «Орона» с прямым доступом в квартиру;
Террасы и крыша с многослойной гидро- и теплоизоляцией;
Возможность отопления газом или тепловым насосом и теплым полом;
Качественная гидро- и шумоизоляция;
Контролируемый доступ и видеонаблюдение.
Здание: Бутик-комплекс из двух отдельных зданий с подземной парковкой и красивым благоустроенным двором с системой автоматического полива, зоной отдыха и барбекю. В здании предусмотрены большие кладовые для каждой квартиры, общая комната для консьержа, велосипедов и колясок. Возможность приобрести подземные парковочные места от 33 000 евро.
Мы с нетерпением ждем вашего запроса.
Если вы хотите договориться о просмотре интересующего вас объекта недвижимости или посетить один из наших офисов, пожалуйста, свяжитесь с нами. Чтобы договориться о встрече или просмотре, позвоните по указанному в объявлении номеру телефона или отправьте запрос по электронной почте. Наш консультант свяжется с вами по всем необходимым вопросам и подберет удобное для вас время.
Вы ищете подходящую для себя недвижимость?
Не стесняйтесь обращаться к нам и рассказать о своих потребностях и предпочтениях. Наша команда проведёт тщательное исследование рынка, чтобы предложить вам недвижимость, которая точно соответствует вашим критериям. У нас есть исключительное портфолио высококачественных и эксклюзивных домов, доступных только нашим клиентам. Чтобы первыми получать информацию о них, свяжитесь с нами.
Дополнительные услуги
Став нашим ценным клиентом, вы получите право пользоваться услугами нашей опытной юридической команды совершенно бесплатно. Кроме того, мы предлагаем комплексные решения, включая страхование имущества, бесплатные финансовые консультации и выгодные условия финансирования. Мы также предлагаем услуги по перепродаже, аренде и управлению недвижимостью. Мы осуществляем высококачественный ремонт и меблировку через специализированные компании, входящие в нашу группу компаний и являющиеся нашими давними профессиональными партнерами.
Смотр недвижимости
Мы готовы организовать смотр недвижимости в удобное для вас время. Обратитесь к ответственному менеджеру по продажам и проинформируйте его, когда бы Вы хотели приехать на смотровой тур. Мы можем помочь Вам забронировать авиабилет и отель, а также помочь Вам оформить визу и необходимую страховку.
Бронирование недвижимости
Вы можете забронировать недвижимость, заплатив невозмещаемый задаток в размере 2 000 евро наличным платежом, кредитной картой или банковским переводом на фирменный счет компании. После получения задатка недвижимость бронируется, осмотры с другими потенциальными покупателями производиться не будут, и начнется изготовление необходимых документов по оформлению сделки. Пожалуйста, обратитесь к ответственному за данный объект менеджеру по продажам для получения подробной информации относительно процедуры покупки и способов оплаты.
Послепродажное обслуживание
Мы уважаемая компания, за плечами которой многолетний опыт работы в сфере недвижимости. Мы будем сопровождать Вас не только во время покупки, но и после приобретения недвижимости, обеспечивая Вам дополнительный набор услуг с учетом Ваших требовании, для того, чтобы Вы могли насладиться полноценным и спокойным времяпровождением в Болгарии. Услуги, которые мы можем предложить, включают страхование, строительство и ремонт, услуги по меблировке, бухгалтерские и юридическиe услуги, переоформление договоров на электричество, воду, телефон и многое другое.
Расположение на карте
Расположение более чем превосходное – в районе Бояна, на улице «Стар Беловодски Пат», у подножия природного парка «Витоша». Район тихий и окружен природой, но в то же время с удобным выездом на бульвар «Болгария» и кольцевую дорогу. Остановка общественного транспорта находится в 150 метрах.
Распределение:
Просторная гостиная с кухней и столовой – 53 кв. м;
3 спальни;
4 санитарных узла;
Гардероб;
Библиотека с кабинетами на двух уровнях;
Влажное помещение;
2 дворовых пространства;
Терраса на крыше с панорамой 360° – 153 кв. м;
Стадия строительства: АКТ 14. Ожидаемый АКТ 15 к концу июня 2025 года, окончательное завершение – до конца 2025 года.
Высочайшая производительность:
Монолитная железобетонная конструкция с кирпичной кладкой Винербергера;
Окна – Sch?co, 6-камерные ПВХ с тройным стеклопакетом;
Фасад – натуральный камень, дерево и силиконовая штукатурка Baumit;
Стяжки для пола и гипсовая штукатурка Baumit;
Входные двери Solid 55, бронированные;
Лифт «Орона» с прямым доступом в квартиру;
Террасы и крыша с многослойной гидро- и теплоизоляцией;
Возможность отопления газом или тепловым насосом и теплым полом;
Качественная гидро- и шумоизоляция;
Контролируемый доступ и видеонаблюдение.
Здание: Бутик-комплекс из двух отдельных зданий с подземной парковкой и красивым благоустроенным двором с системой автоматического полива, зоной отдыха и барбекю. В здании предусмотрены большие кладовые для каждой квартиры, общая комната для консьержа, велосипедов и колясок. Возможность приобрести подземные парковочные места от 33 000 евро.
Мы с нетерпением ждем вашего запроса.
Если вы хотите договориться о просмотре интересующего вас объекта недвижимости или посетить один из наших офисов, пожалуйста, свяжитесь с нами. Чтобы договориться о встрече или просмотре, позвоните по указанному в объявлении номеру телефона или отправьте запрос по электронной почте. Наш консультант свяжется с вами по всем необходимым вопросам и подберет удобное для вас время.
Вы ищете подходящую для себя недвижимость?
Не стесняйтесь обращаться к нам и рассказать о своих потребностях и предпочтениях. Наша команда проведёт тщательное исследование рынка, чтобы предложить вам недвижимость, которая точно соответствует вашим критериям. У нас есть исключительное портфолио высококачественных и эксклюзивных домов, доступных только нашим клиентам. Чтобы первыми получать информацию о них, свяжитесь с нами.
Дополнительные услуги
Став нашим ценным клиентом, вы получите право пользоваться услугами нашей опытной юридической команды совершенно бесплатно. Кроме того, мы предлагаем комплексные решения, включая страхование имущества, бесплатные финансовые консультации и выгодные условия финансирования. Мы также предлагаем услуги по перепродаже, аренде и управлению недвижимостью. Мы осуществляем высококачественный ремонт и меблировку через специализированные компании, входящие в нашу группу компаний и являющиеся нашими давними профессиональными партнерами.
Смотр недвижимости
Мы готовы организовать смотр недвижимости в удобное для вас время. Обратитесь к ответственному менеджеру по продажам и проинформируйте его, когда бы Вы хотели приехать на смотровой тур. Мы можем помочь Вам забронировать авиабилет и отель, а также помочь Вам оформить визу и необходимую страховку.
Бронирование недвижимости
Вы можете забронировать недвижимость, заплатив невозмещаемый задаток в размере 2 000 евро наличным платежом, кредитной картой или банковским переводом на фирменный счет компании. После получения задатка недвижимость бронируется, осмотры с другими потенциальными покупателями производиться не будут, и начнется изготовление необходимых документов по оформлению сделки. Пожалуйста, обратитесь к ответственному за данный объект менеджеру по продажам для получения подробной информации относительно процедуры покупки и способов оплаты.
Послепродажное обслуживание
Мы уважаемая компания, за плечами которой многолетний опыт работы в сфере недвижимости. Мы будем сопровождать Вас не только во время покупки, но и после приобретения недвижимости, обеспечивая Вам дополнительный набор услуг с учетом Ваших требовании, для того, чтобы Вы могли насладиться полноценным и спокойным времяпровождением в Болгарии. Услуги, которые мы можем предложить, включают страхование, строительство и ремонт, услуги по меблировке, бухгалтерские и юридическиe услуги, переоформление договоров на электричество, воду, телефон и многое другое.
Расположение более чем превосходное – в районе Бояна, на улице «Стар Беловодски Пат», у подножия природного парка «Витоша». Район тихий и окружен природой, но в то же время с удобным выездом на бульвар «Болгария» и кольцевую дорогу. Остановка общественного транспорта находится в 150 метрах.
Распределение:
Просторная гостиная с кухней и столовой – 53 кв. м;
3 спальни;
4 санитарных узла;
Гардероб;
Библиотека с кабинетами на двух уровнях;
Влажное помещение;
2 дворовых пространства;
Терраса на крыше с панорамой 360° – 153 кв. м;
Стадия строительства: АКТ 14. Ожидаемый АКТ 15 к концу июня 2025 года, окончательное завершение – до конца 2025 года.
Высочайшая производительность:
Монолитная железобетонная конструкция с кирпичной кладкой Винербергера;
Окна – Sch?co, 6-камерные ПВХ с тройным стеклопакетом;
Фасад – натуральный камень, дерево и силиконовая штукатурка Baumit;
Стяжки для пола и гипсовая штукатурка Baumit;
Входные двери Solid 55, бронированные;
Лифт «Орона» с прямым доступом в квартиру;
Террасы и крыша с многослойной гидро- и теплоизоляцией;
Возможность отопления газом или тепловым насосом и теплым полом;
Качественная гидро- и шумоизоляция;
Контролируемый доступ и видеонаблюдение.
Здание: Бутик-комплекс из двух отдельных зданий с подземной парковкой и красивым благоустроенным двором с системой автоматического полива, зоной отдыха и барбекю. В здании предусмотрены большие кладовые для каждой квартиры, общая комната для консьержа, велосипедов и колясок. Возможность приобрести подземные парковочные места от 33 000 евро.
Мы с нетерпением ждем вашего запроса.
Если вы хотите договориться о просмотре интересующего вас объекта недвижимости или посетить один из наших офисов, пожалуйста, свяжитесь с нами. Чтобы договориться о встрече или просмотре, позвоните по указанному в объявлении номеру телефона или отправьте запрос по электронной почте. Наш консультант свяжется с вами по всем необходимым вопросам и подберет удобное для вас время.
Вы ищете подходящую для себя недвижимость?
Не стесняйтесь обращаться к нам и рассказать о своих потребностях и предпочтениях. Наша команда проведёт тщательное исследование рынка, чтобы предложить вам недвижимость, которая точно соответствует вашим критериям. У нас есть исключительное портфолио высококачественных и эксклюзивных домов, доступных только нашим клиентам. Чтобы первыми получать информацию о них, свяжитесь с нами.
Дополнительные услуги
Став нашим ценным клиентом, вы получите право пользоваться услугами нашей опытной юридической команды совершенно бесплатно. Кроме того, мы предлагаем комплексные решения, включая страхование имущества, бесплатные финансовые консультации и выгодные условия финансирования. Мы также предлагаем услуги по перепродаже, аренде и управлению недвижимостью. Мы осуществляем высококачественный ремонт и меблировку через специализированные компании, входящие в нашу группу компаний и являющиеся нашими давними профессиональными партнерами.
Смотр недвижимости
Мы готовы организовать смотр недвижимости в удобное для вас время. Обратитесь к ответственному менеджеру по продажам и проинформируйте его, когда бы Вы хотели приехать на смотровой тур. Мы можем помочь Вам забронировать авиабилет и отель, а также помочь Вам оформить визу и необходимую страховку.
Бронирование недвижимости
Вы можете забронировать недвижимость, заплатив невозмещаемый задаток в размере 2 000 евро наличным платежом, кредитной картой или банковским переводом на фирменный счет компании. После получения задатка недвижимость бронируется, осмотры с другими потенциальными покупателями производиться не будут, и начнется изготовление необходимых документов по оформлению сделки. Пожалуйста, обратитесь к ответственному за данный объект менеджеру по продажам для получения подробной информации относительно процедуры покупки и способов оплаты.
Послепродажное обслуживание
Мы уважаемая компания, за плечами которой многолетний опыт работы в сфере недвижимости. Мы будем сопровождать Вас не только во время покупки, но и после приобретения недвижимости, обеспечивая Вам дополнительный набор услуг с учетом Ваших требовании, для того, чтобы Вы могли насладиться полноценным и спокойным времяпровождением в Болгарии. Услуги, которые мы можем предложить, включают страхование, строительство и ремонт, услуги по меблировке, бухгалтерские и юридическиe услуги, переоформление договоров на электричество, воду, телефон и многое другое.
ПРОДАЖА
ПРОЕКТ
Роскошный пентхаус с видом на гору Витоша и парк-отель «Москва» в районе «Изток»
Изток / София / София / Болгария карта
Класс здания/комплекса: Высокий стандарт
Область: 314.22 м 2
Цена: 1 700 000 € /// 5 410 €/м 2
Многоквартирный жилой дом в районе «Красно Село» — современное строительство с отличным месторасположением
Красно село / София / София / Болгария карта
Цены на недвижимость: 178 813 - 640 990 €
Цены за м²: 2 188 - 2 880 €/м 2
ПРОДАЖА
ПРОЕКТ
Четырехкомнатная квартира в комплексе с садами, зеленой крышей, СПА и фитнесом
Витоша / София / София / Болгария карта
Область: 267.10 м 2
Цена: 460 532 € /// 1 724 €/м 2
Выберите эту опцию, и мы уведомим вас по электронной почте в случае каких-либо изменений в статусе предложения, например:
• Изменение цены;
• Объект недвижимости попал в рекламное предложение;
• Имущество зарезервировано или продано;
• Другие новости, связанные с недвижимостью.
• Имущество снимается с продажи;
Вы можете легко отписаться от уведомлений в любое время.• Изменения условий предложения;
• Изменение размера инвестиций;
• Объект инвестиции полностью реализован;
• Срок действия предложения истек.
Вы сможете легко отказаться от подписки, если в будущем решите, что больше не хотите следовать этому предложению.



...Как проверенный специалист, Stonehard PREMIER работает над позиционированием на рынке и продажами многочисленных новых строительных проектов, реализацию которых нам доверили ведущие предпринимательские компании в Болгарии и за рубежом...