Apartament cu trei camere cu curte în "COMFORT RESIDENCE - Malinova dolina II"
Preţ:
225 438 € (fără TVA) (2 244 €/m² (fără TVA))
*Prețurile și disponibilitatea proprietăților vacante din cadrul proiectului sunt orientative. Pentru informații actualizate despre prețuri, vă rugăm să ne contactați!
Ref. Număr: SOF-130912 / 4218
Locaţie: Malinova Dolina / Sofia hartă
Tipul clădirii/complexului: Rezidențial
Clasa clădirii/complexului: Standard înalt
Zone de locuit: 100.46 m²
Tipuri de proprietăți din clădire/complex: Apartamente cu 3 camere
Ref. Număr: SOF-130912 / 4218
Locaţie: Malinova Dolina / Sofia
Tipul clădirii/complexului: Rezidențial
Clasa clădirii/complexului: Standard înalt
Zone de locuit: 100.46 m²
Tipuri de proprietăți din clădire/complex: Apartamente cu 3 camere
CU ACT 14! FĂRĂ COMISION PENTRU CUMPĂRĂTOR!
• Finalizare planificată - până la sfârșitul anului 2026.
Prețul indicat este fără TVA.
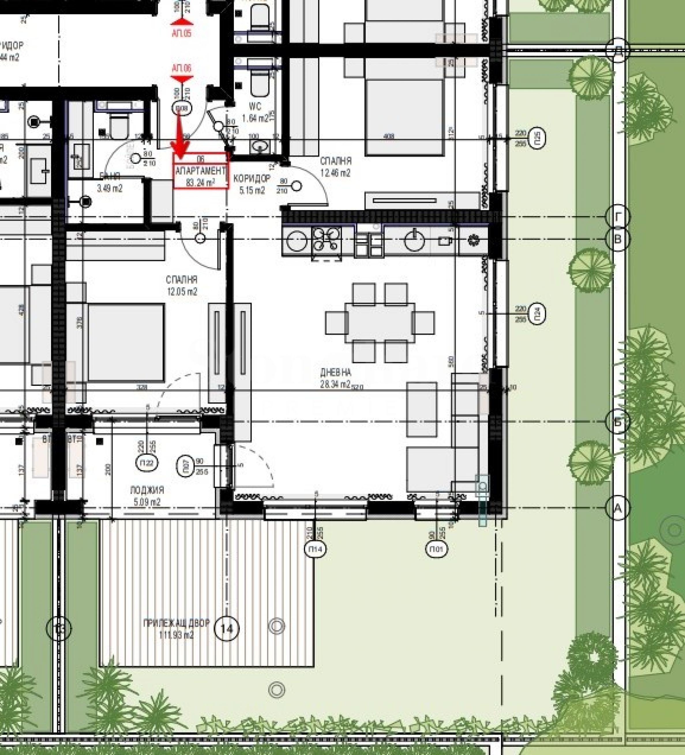
Apartament nr. 6 este situat la primul etaj (parter) al clădirii și are o suprafață construită de 83,24 mp, cu următoarea compartimentare: antreu, baie/toaletă, toaletă, living cu bucătărie și dining, două dormitoare, terasă tip loggie. Locuința include în preț o curte aferentă de 111,93 mp și un depozit de 2,79 mp.
Proprietatea se predă în stadiul de finisare conform BDS (glet și șapă). Încălzirea este pe gaz și prin aer condiționat.
Există posibilitatea achiziționării de locuri de parcare subterane la prețuri începând de la 26.667 euro (52.156,12 BGN) fără TVA sau locuri de parcare supraterane la prețuri începând de la 20.000 euro (39.116,6 BGN) fără TVA.
Locație
Noua clădire rezidențială a TASKOV & STOYANOV din seria COMFORT RESIDENCE este situată în zona nou formată a cartierului "Malinova dolina", în apropiere de Academia Națională de Sport "Vasil Levski" (NSA). Proiectul este realizat de biroul de arhitectură recunoscut și premiat de multe ori STUDIO CREATIVE, cu care investitorul colaborează pe termen lung.
Locația are o conectivitate excelentă – aproape de viitoarea stație de metrou din zonă, pe linia "Nadezhda - Lozenets", lângă universitățile din "Student City", NSA și Palatul de Gheață, cu acces rapid la "Simeonovsko shose" și Drumul de Centură, Ring Mall, Business Park Sofia. Accesul către Parcul Natural Vitosha și centrul capitalei este de asemenea convenabil.
Complexul rezidențial "COMFORT RESIDENCE - Malinova dolina II" este un exemplu de arhitectură modernistă, care combină estetica, funcționalitatea și confortul. Clădirea este proiectată astfel încât să creeze un mediu rezidențial favorabil, în care lumina, spațiul și natura joacă un rol principal. Proiectul oferă o locuire urbană durabilă și de înaltă calitate, conform celor mai noi tendințe în arhitectura contemporană la nivel mondial.
Construcția este realizată de liderul în construcțiile de lux ELITE BUILDING COMPANY. Se preconizează utilizarea celor mai moderne tehnologii, în combinație cu materiale și echipamente de înaltă clasă de la producători de top la nivel mondial:
• Cărămizi WIENERBERGER;
• Fațadă și pachet termoizolant BAUMIT;
• Tâmplărie PVC cu profil Deceuninck Elegant – sistem cu 6 camere, adâncime 76 mm, feronerie Roto și geam triplu, cu distanțier PVC Techoform;
• Lifturi ORONA cu capacitate de 8 persoane și finisaj elegant;
• Părți comune finisate luxos conform unui proiect de design interior, inclusiv pardoseli din piatră naturală lustruită.
Despre clădire
Funcțional, clădirea este proiectată pe patru niveluri cu ultimul etaj tip terasă, fiecare etaj fiind proiectat cu maxim confort și o compartimentare optimă a locuințelor. Etajul parter include locuințe accesibile cu curți verzi individuale, precum și intrarea principală cu un design modern și primitor. Etajele tip oferă apartamente cu loggii spațioase și ferestre franceze, care sporesc legătura cu spațiul exterior. Locuințele de la ultimul etaj sunt configurate ca penthouse-uri luxoase cu terase panoramice, oferind priveliști unice și locuire exclusivă. Comunicarea verticală este asigurată de două lifturi și o scară, garantând funcționalitate și confort.
"COMFORT RESIDENCE - Malinova dolina II" oferă în total 40 de apartamente, 41 de locuri de parcare subterane și 10 locuri de parcare supraterane (exterioare). La primul etaj sunt situate apartamente cu curți private aferente, precum și locurile de parcare exterioare.
Apartamentele din clădire sunt cu două și trei camere. Fiecare apartament are un depozit inclus în preț și în suprafața totală.
Schemele de plată, pe lângă cele negociabile, sunt:
Schema 1 cu credit bancar:
• 3912 BGN (2000 euro) depozit (avans) pentru apartamente cu 2 camere și 5868 BGN (3000 euro) pentru apartamente cu 3 și 4 camere. Se semnează un acord de depozit cu angajamentul de a semna un contract preliminar de vânzare-cumpărare;
• 30% minus avansul la semnarea contractului preliminar;
• 70% prin credit bancar după Act 14 (certificat conform art. 181 din ZUT) în tranșe.
Schema 2:
• 3912 BGN (2000 euro) depozit (avans) pentru apartamente cu 2 camere și 5868 BGN (3000 euro) pentru apartamente cu 3 și 4 camere. Se semnează un acord de depozit cu angajamentul de a semna un contract preliminar de vânzare-cumpărare;
• 30% minus avansul la semnarea contractului preliminar;
• 10% la atingerea celui de-al doilea etaj al clădirii;
• 30% la emiterea Actului 14;
• 10% la montarea fațadei și tâmplăriei;
• 10% la emiterea Actului 15;
• 10% la emiterea Actului 16 (Autorizație de utilizare).
Concept
Arhitecții și antreprenorul de construcții au mizat din nou pe un complex rezidențial cu design ultramodern, proiectat cu accent pe stilul minimalist, liniile curate și interacțiunea armonioasă între arhitectură și mediul înconjurător. Compoziția combină funcționalitatea și estetica, oferind spații deschise, iluminare naturală abundentă și materiale moderne. Clădirea are o formă dreptunghiulară, cu o structură modulară bine definită, care conferă un sentiment de ordine și ritm. Compartimentarea fațadei și a ferestrelor creează o viziune echilibrată, oferind în același timp iluminare optimă și priveliști către mediul înconjurător și muntele frumos.
Compoziția fațadei și materialele combină tonuri deschise și închise, creând un aspect elegant și curat. Materialul principal este tencuiala minerală deschisă la culoare, care conferă ușurință și aerisire clădirii, în timp ce accentele de culoare Bronze la ferestre și detaliile verzi adaugă profunzime și contrast. Balustradele din sticlă ale teraselor adaugă un aer modernist și transparență, subliniind legătura dintre spațiile interioare și exterioare. Utilizarea ferestrelor mari din sticlă (tip "franceză") amplifică acest efect, permițând ca interiorul și exteriorul să se contopească într-un întreg. Structura acoperișului este proiectată astfel încât să creeze dinamism și caracter siluetei, dar și să protejeze efectiv terasele.
Amenajarea peisagistică este un element cheie în designul general al complexului. Spațiile din jurul clădirii includ o vegetație bogată, copaci decorativi, arbuști și peluze, care creează o senzație de armonie și mediu natural. Atenție specială este acordată spațiilor verzi cu zone integrate pentru relaxare, alei pietonale pavate cu materiale decorative și iluminare LED exterioară, care evidențiază detaliile arhitecturale pe timp de noapte.
Avantajele "COMFORT RESIDENCE - Malinova dolina II":
• Aproape de NSA și Palatul de Gheață, universitățile din "Student City" - proprietăți atractive pentru investiții în închiriere;
• Aspect impresionant, părți comune luxoase, design impecabil;
• Locuințe optimizate cu compartimentări confortabile și funcționale;
• Construcție de înaltă calitate și tehnologii inovatoare;
• Investitor cu experiență bogată și numeroase clădiri finalizate cu succes.
Așteptăm solicitarea dumneavoastră
Dacă doriți să organizați o vizionare a proprietății care vă interesează sau să vizitați unul dintre birourile noastre, vă rugăm să ne contactați. Pentru a stabili ziua și ora întâlnirii sau vizionării, puteți suna la numărul de telefon indicat în anunț sau trimite o solicitare prin e-mail. Consultantul nostru vă va ajuta cu toate detaliile necesare și va programa o oră convenabilă pentru dumneavoastră.
Căutați proprietatea potrivită pentru dumneavoastră?
Nu ezitați să ne contactați și să ne povestiți despre nevoile și preferințele dumneavoastră. Echipa noastră va efectua o cercetare amănunțită a pieței pentru a vă oferi proprietăți care corespund exact criteriilor dumneavoastră. Dispunem de un portofoliu excepțional de locuințe de înaltă calitate și exclusive, disponibile doar pentru clienții noștri. Pentru a fi printre primii care primesc informații despre acestea – contactați-ne.
Servicii suplimentare
Ca client valoros al companiei noastre, veți avea privilegiul de a beneficia gratuit de serviciile echipei noastre juridice experimentate. În plus, oferim soluții complexe, inclusiv asigurare de proprietate, consultanță financiară gratuită, precum și condiții avantajoase de finanțare. Serviciile noastre se extind și în domeniul revânzării, închirierii și administrării proprietăților. Asigurăm lucrări de reparații de înaltă calitate și mobilare prin firme specializate, care fac parte din grupul nostru corporativ și sunt partenerii noștri profesioniști de lungă durată.
Locație pe hartă
VÂNZARE
PROIECT
Apartament cu trei camere cu vedere spre Vitoșa în complexul "Kosher" cu garaj
Manastirski Livadi - East / Sofia / Sofia / Bulgaria hartă
Zonă: 125 m²
Preţ: 495 000 € /// 3 960 €/m²
DREPTURI
VÂNZARE
PROIECT
Malinova Dolina / Sofia / Sofia / Bulgaria hartă
Clasa clădirii/complexului: Standard înalt
Zonă: 116.34 m²
Preţ: 256 000 € /// 2 200 €/m²
VÂNZARE
PROIECT
Krustova Vada / Sofia / Sofia / Bulgaria hartă
Zonă: 108.99 m²
Preţ: 381 465 € /// 3 500 €/m²
Selectați această opțiune și vă vom anunța prin e-mail dacă apar modificări ale stării ofertei, de exemplu:
• Modificarea prețului;
• Proprietatea a intrat într-o ofertă promoțională;
• Proprietatea este rezervată sau vândută;
• Alte știri legate de proprietate.
• Proprietatea este scoasă de la vânzare;
Te poți dezabona cu ușurință de la notificări oricând dorești.• Modificări ale termenilor ofertei;
• Modificarea valorii investiției;
• Obiectul investiției a fost realizat integral;
• Oferta a expirat.
Vă puteți dezabona cu ușurință dacă decideți în viitor că nu mai doriți să urmați această ofertă.
Pentru a primi informații absolut corecte despre proprietățile vacante disponibile spre vânzare în cadrul proiectului și prețurile lor actuale, vă rugăm să contactați biroul nostru la informațiile de contact furnizate.
Depunem toate eforturile pentru a menține listele noastre de prețuri absolut actualizate și corecte, dar acest lucru este adesea imposibil, având în vedere numărul mare de proiecte noi din catalogul nostru și vânzările extrem de dinamice.
Vă mulțumim pentru înțelegere!



...În calitate de specialist dovedit, Stonehard PREMIER lucrează la poziționarea pe piață și la vânzările a numeroase proiecte de construcții noi, a căror implementare ne-a fost încredințată de companii antreprenoriale de top din Bulgaria și din străinătate...