EXCLUSIV
DREPTURI

Apartament cu trei camere într-o clădire modernă "COMFORT RESIDENCE - Malinova dolina II"

Preţ:

217 685(fără TVA) (2 125 €/ (fără TVA))

*Prețurile și disponibilitatea proprietăților vacante din cadrul proiectului sunt orientative. Pentru informații actualizate despre prețuri, vă rugăm să ne contactați!

Ref. Număr: SOF-135326 / 4218

Locaţie: Malinova Dolina / Sofia hartă

Tipul clădirii/complexului: Rezidențial

Clasa clădirii/complexului: Standard înalt

Zone de locuit: 102.44

Tipuri de proprietăți din clădire/complex: Apartamente cu 3 camere

Ref. Număr: SOF-135326 / 4218

Locaţie: Malinova Dolina / Sofia

Tipul clădirii/complexului: Rezidențial

Clasa clădirii/complexului: Standard înalt

Zone de locuit: 102.44

Tipuri de proprietăți din clădire/complex: Apartamente cu 3 camere

Descrierea proiectului
Vă prezentăm un apartament cu trei camere în "COMFORT RESIDENCE - Malinova dolina II" - un proiect rezidențial exclusivist, realizat de unul dintre cei mai talentați și moderni arhitecți din capitală. Construcția va fi realizată de o companie investitoare cu o reputație impecabilă și o bogată istorie în construcții. Tandemul investitor dispune de peste 35 de clădiri și complexe finalizate în cartierele sudice ale capitalei Sofia, în stațiunile de la mare și munte.



CU ACT 14! FĂRĂ COMISION PENTRU CUMPĂRĂTOR!

Finalizare planificată - până la sfârșitul anului 2026.

Prețul indicat este fără TVA.



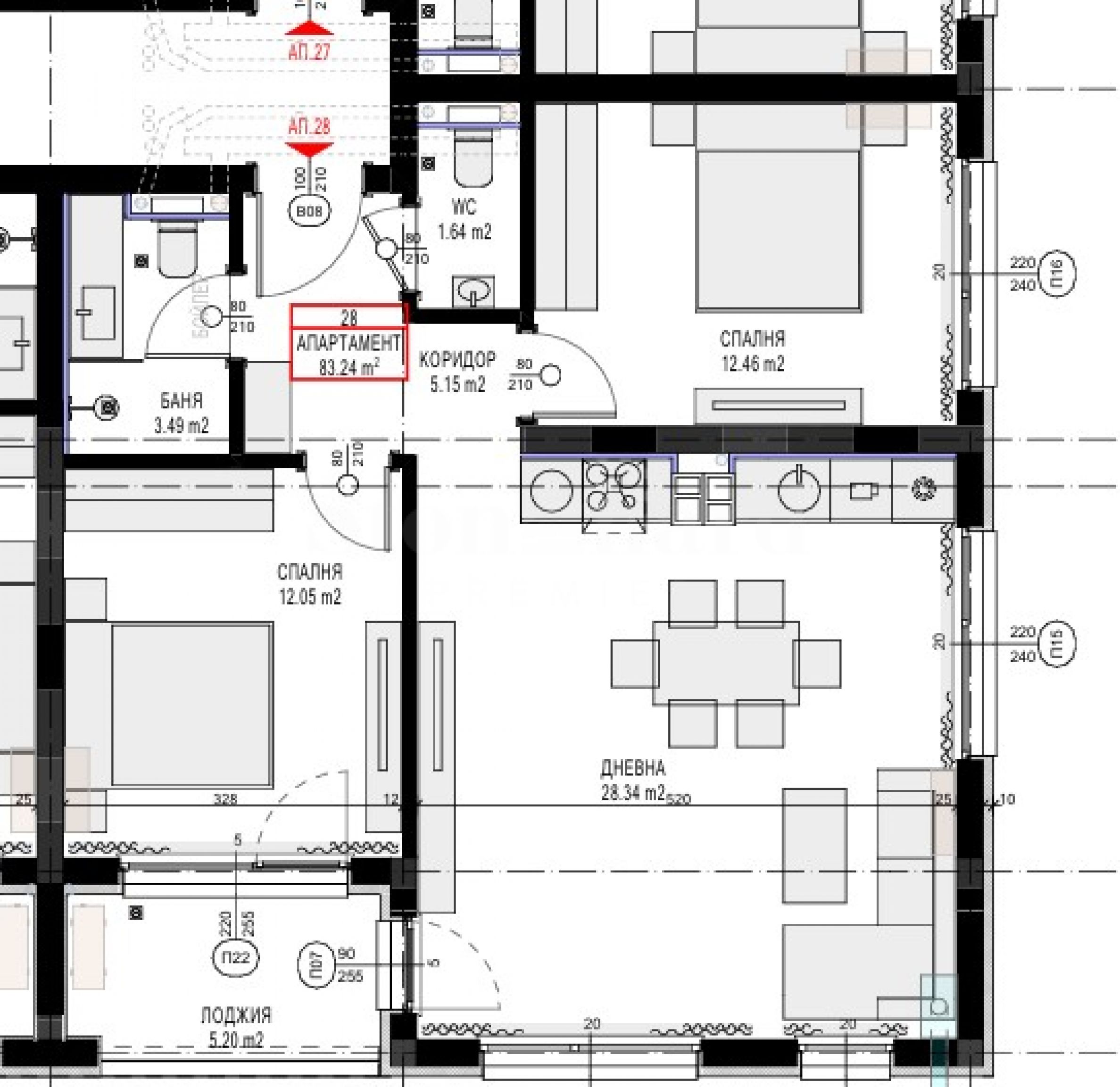
Apartament nr. 28 este situat la etajul 3 al clădirii și are o suprafață construită de 83,24 mp, cu următoarea compartimentare: hol, baie/toaletă, toaletă, living luminos cu bucătărie și dining, două dormitoare confortabile, terasă. Locuința include în preț un depozit de 3,38 mp.



Proprietatea se predă în stadiul de finisare conform BDS (glet și șapă). Încălzirea este pe gaz și aer condiționat.



Există posibilitatea achiziționării de locuri de parcare subterane la prețuri începând de la 26.667 euro (52.156,12 BGN) fără TVA sau locuri de parcare supraterane la prețuri începând de la 20.000 euro (39.116,6 BGN) fără TVA.



Locație



Noua clădire rezidențială a TASKOV & STOYANOV din seria COMFORT RESIDENCE este situată în zona nou formată a cartierului "Malinova dolina", în apropiere de Academia Națională de Sport "Vasil Levski" (NSA). Proiectul este realizat de biroul de arhitectură consacrat și multiplu premiat STUDIO CREATIVE, cu care investitorul colaborează pe termen lung.



Locația are o conectivitate excelentă – aproape de o viitoare stație de metrou în zonă, pe linia "Nadezhda - Lozenets", aproape de universitățile din "Student City", NSA și Palatul de Gheață, cu acces rapid la "Șoseaua Simeonovsko" și Drumul de Centură, Ring Mall, Business Park Sofia. Accesul la Parcul Natural Vitosha și centrul capitalei este, de asemenea, convenabil.



Complexul rezidențial "COMFORT RESIDENCE - Malinova dolina II" este un exemplu de arhitectură modernistă, care combină estetica, funcționalitatea și confortul. Clădirea este proiectată astfel încât să creeze un mediu rezidențial favorabil, în care lumina, spațiul și natura joacă un rol principal. Proiectul oferă o locuire urbană durabilă și de înaltă calitate, care răspunde celor mai noi tendințe în arhitectura contemporană la nivel mondial.



Construcția este realizată de liderul în construcțiile de lux ELITE BUILDING COMPANY. Se planifică utilizarea celor mai moderne tehnologii, în combinație cu materiale și echipamente de înaltă clasă de la producători de top la nivel mondial:

• Cărămizi WIENERBERGER;

• Fațadă și pachet termoizolant BAUMIT;

• Ferestre PVC cu profil Deceuninck Elegant – sistem cu 6 camere, adâncime 76 mm, feronerie Roto și geam triplu, cu distanțier PVC Techoform;

• Lifturi ORONA cu capacitate de 8 persoane și finisaj elegant;

• Zone comune finisate luxos conform unui proiect de design interior, inclusiv pardoseli din piatră naturală lustruită.



Despre clădire



Funcțional, clădirea este proiectată pe patru niveluri cu ultimul etaj tip terasă, fiecare etaj fiind proiectat pentru confort maxim și o compartimentare optimă a locuințelor. Parterul (primul etaj) include locuințe accesibile cu curți verzi individuale, precum și intrarea principală cu un design modern și primitor. Etajele tip oferă apartamente cu logii spațioase și ferestre franceze, care sporesc legătura cu spațiul exterior. Locuințele de la ultimul etaj sunt configurate ca penthouse-uri luxoase cu terase panoramice, oferind priveliști unice și locuire exclusivă. Circulația verticală este asigurată de două lifturi și o scară, garantând funcționalitate și confort.



"COMFORT RESIDENCE - Malinova dolina II" oferă în total 40 de apartamente, 41 de locuri de parcare subterane și 10 locuri de parcare supraterane (exterioare). La primul etaj se află apartamente cu curți private adiacente, precum și locurile de parcare exterioare.



Apartamentele din clădire sunt locuințe cu două și trei camere. Fiecare apartament are un depozit inclus în preț și în suprafața totală.



Schemele de plată, pe lângă cele negociabile, sunt:

Schema 1 cu credit bancar:

• 3912 BGN (2000 euro) depozit (avans) pentru apartamente cu 2 camere și 5868 BGN (3000 euro) pentru apartamente cu 3 și 4 camere. Se semnează un acord de depozit cu angajament pentru semnarea unui contract preliminar de vânzare-cumpărare;

• 30% minus avansul la semnarea contractului preliminar;

• 70% prin credit bancar după Act 14 (certificat conform art. 181 din ZUT) în tranșe.



Schema 2:

• 3912 BGN (2000 euro) depozit (avans) pentru apartamente cu 2 camere și 5868 BGN (3000 euro) pentru apartamente cu 3 și 4 camere. Se semnează un acord de depozit cu angajament pentru semnarea unui contract preliminar de vânzare-cumpărare;

• 30% minus avansul la semnarea contractului preliminar;

• 10% la atingerea celui de-al doilea etaj al clădirii;

• 30% la emiterea Actului 14;

• 10% la montarea fațadei și ferestrelor;

• 10% la emiterea Actului 15;

• 10% la emiterea Actului 16 (Autorizație de utilizare).



Concept



Arhitecții și antreprenorul de construcții au mizat din nou pe un complex rezidențial cu design ultra-modern, proiectat cu accent pe stilul minimalist, linii clare și o interacțiune armonioasă între arhitectură și mediul înconjurător. Compoziția combină funcționalitatea și estetica, oferind spații deschise, iluminare naturală abundentă și materiale moderne. Clădirea are o formă dreptunghiulară, cu o structură modulară bine definită, care conferă un sentiment de ordine și ritm. Compartimentarea fațadei și a ferestrelor creează o imagine echilibrată, oferind în același timp iluminare optimă și priveliști către mediul înconjurător și muntele frumos.



Compoziția fațadei și materialele combină tonuri deschise și închise, creând un aspect elegant și curat. Materialul principal este tencuiala minerală deschisă la culoare, care conferă clădirii ușurință și aerisire, în timp ce accentele de culoare Bronze la ferestre și detaliile verzi adaugă profunzime și contrast. Balustradele din sticlă ale teraselor adaugă un aer modernist și transparență, subliniind legătura dintre spațiile interioare și exterioare. Utilizarea ferestrelor mari din sticlă (tip "franceză") amplifică acest efect, permițând ca interiorul și exteriorul să se contopească într-un întreg. Structura acoperișului este proiectată pentru a crea dinamism și caracter în siluetă, dar și pentru a proteja efectiv terasele.



Amenajarea peisagistică este un element cheie în designul general al complexului. Spațiile din jurul clădirii includ o vegetație bogată, copaci decorativi, arbuști și peluze, care creează o senzație de armonie și mediu natural. Atenție specială a fost acordată spațiilor verzi cu zone integrate de relaxare, alei pietonale pavate cu materiale decorative și iluminat exterior LED, care evidențiază detaliile arhitecturale pe timp de noapte.



Avantajele "COMFORT RESIDENCE - Malinova dolina II":

• Aproape de NSA și Palatul de Gheață, universitățile din "Student City" - proprietăți atractive pentru investiții în închiriere;

• Aspect impresionant, zone comune luxoase, design impecabil;

• Locuințe optimizate cu compartimentări confortabile și funcționale;

• Încălzire pe gaz;

• Construcție de înaltă calitate și tehnologii inovatoare;

• Investitor cu experiență bogată și numeroase clădiri realizate cu succes.



Așteptăm întrebările dumneavoastră



Dacă doriți să organizați o vizionare a proprietății care vă interesează sau să vizitați unul dintre birourile noastre, vă rugăm să ne contactați. Pentru a stabili ziua și ora întâlnirii sau vizionării, puteți suna la numărul de telefon indicat în anunț sau să trimiteți o cerere prin e-mail. Consultantul nostru vă va ajuta cu toate detaliile necesare și va programa un moment convenabil pentru dumneavoastră.



Căutați proprietatea potrivită pentru dumneavoastră?



Nu ezitați să ne contactați și să ne povestiți despre nevoile și preferințele dumneavoastră. Echipa noastră va efectua o cercetare aprofundată a pieței pentru a vă oferi proprietăți care corespund exact criteriilor dumneavoastră. Dispunem de un portofoliu exclusiv de locuințe de înaltă calitate și exclusive, disponibile doar pentru clienții noștri. Pentru a fi printre primii care primesc informații despre acestea – contactați-ne.



Servicii suplimentare



Ca client valoros al companiei noastre, veți avea privilegiul de a beneficia gratuit de serviciile echipei noastre juridice experimentate. În plus, oferim soluții complexe, inclusiv asigurare de proprietate, consultanță financiară gratuită, precum și condiții avantajoase de finanțare. Serviciile noastre se extind și în domeniul revânzării, închirierii și administrării proprietăților. Asigurăm lucrări de reparații de înaltă calitate și mobilare prin firme specializate, care fac parte din grupul nostru corporativ și sunt parteneri noștri profesioniști de lungă durată.
Contactele noastre de la birou
Contactele noastre de la birou

Locație pe hartă

LOCAȚIE APROXIMATIVĂ
Trimiteți o cerere pentru mai multe informații
Contactele noastre de la birou
Numele dumneavoastră*
Adresa dvs. de e-mail*
Numărul tău de telefon mobil*

„Stonehard Marketing” Ltd. vă protejează datele cu caracter personal și respectă Politica de confidențialitate a companiei, în conformitate cu cerințele Regulamentului (UE) nr. 2016/679. În pasul următor, veți putea să ne permiteți sau să ne refuzați stocarea și prelucrarea datelor dumneavoastră cu caracter personal. Faceți selecția din e-mailul pe care vi-l vom trimite după ce primim solicitarea dumneavoastră.

Mai multe proprietăți cu caracteristici similare
NOU
OFERI
SECUNDAR
VÂNZARE
COMPLETAT
PROIECT

Apartament cu trei camere cu vedere spre Vitoșa în complexul "Kosher" cu garaj

Manastirski Livadi - East / Sofia / Sofia / Bulgaria hartă

Zonă: 125

Preţ: 495 000 € /// 3 960 €/

EXCLUSIV
DREPTURI
SECUNDAR
VÂNZARE
COMPLETAT
PROIECT

Malinova Dolina / Sofia / Sofia / Bulgaria hartă

Clasa clădirii/complexului: Standard înalt

Zonă: 116.34

Preţ: 256 000 € /// 2 200 €/

NOU
OFERI
SECUNDAR
VÂNZARE
COMPLETAT
PROIECT

Krustova Vada / Sofia / Sofia / Bulgaria hartă

Zonă: 108.99

Preţ: 381 465 € /// 3 500 €/

...În calitate de specialist dovedit, Stonehard PREMIER lucrează la poziționarea pe piață și la vânzările a numeroase proiecte de construcții noi, a căror implementare ne-a fost încredințată de companii antreprenoriale de top din Bulgaria și din străinătate...

Selectați această opțiune și vă vom anunța prin e-mail dacă apar modificări ale stării ofertei, de exemplu:

• Modificarea prețului;

• Proprietatea a intrat într-o ofertă promoțională;

• Proprietatea este rezervată sau vândută;

• Alte știri legate de proprietate.

• Proprietatea este scoasă de la vânzare;

Te poți dezabona cu ușurință de la notificări oricând dorești.
Suprafața proprietăților din Dubai/EAU se calculează în metri pătrați. Toate suprafețele din această ofertă sunt convertite automat în metri pătrați folosind formula 1 m² = 10,7639 ft².
Proprietarul plătește pentru electricitate, apă, încălzire/răcire, internet, cablu TV și eliminarea deșeurilor solide.
Prețul inițial al proprietății este exprimat în moneda locală, dirham (AED). Prețul indicat într-o altă monedă decât dirhamul este orientativ și se calculează automat folosind un curs valutar pe care îl actualizăm de 4 ori pe zi. De aceea, prețul cotat într-o altă monedă decât dirhamul (AED) fluctuează constant, deși în limite mici.
Prețurile sunt orientative. Pentru un calcul al prețului și o ofertă absolut precisă, vă rugăm să contactați consultantul responsabil!
Selectează această opțiune și vei începe să primești oferte noi cu un subiect de investiție similar și situate în aceeași zonă.
Veți primi toate ofertele noi și informațiile actuale despre activitățile noastre prin e-mail.
Având în vedere dinamica puternică actuală a vânzărilor și a pieței, prețurile și disponibilitatea proprietăților vacante din acest proiect indicate pe site-ul nostru pot diferi ușor de cele actuale.
Pentru a primi informații absolut corecte despre proprietățile vacante disponibile spre vânzare în cadrul proiectului și prețurile lor actuale, vă rugăm să contactați biroul nostru la informațiile de contact furnizate.
Depunem toate eforturile pentru a menține listele noastre de prețuri absolut actualizate și corecte, dar acest lucru este adesea imposibil, având în vedere numărul mare de proiecte noi din catalogul nostru și vânzările extrem de dinamice.
Vă mulțumim pentru înțelegere!