Nowoczesny dom szeregowy z podwórkiem i miejscem parkingowym w elitarnym kompleksie w dzielnicy Kambanite
Cena:
690 000 €
*Ceny i dostępność wolnych lokali w projekcie mają charakter orientacyjny. Aby uzyskać aktualne informacje o cenach, prosimy o kontakt!
Nr ref. Numer: SOF-135671 / 3591
Lokalizacja: m-t Kambanite / Sofia mapa
Typ budynku/kompleksu: Mieszkaniowy
Klasa budynku/kompleksu: Luksusowy
Obszary mieszkaniowe: 292.65 m2
Rodzaje nieruchomości w budynku/kompleksie: Duplexi,
Nr ref. Numer: SOF-135671 / 3591
Lokalizacja: m-t Kambanite / Sofia
Typ budynku/kompleksu: Mieszkaniowy
Klasa budynku/kompleksu: Luksusowy
Obszary mieszkaniowe: 292.65 m2
Rodzaje nieruchomości w budynku/kompleksie: Duplexi,
Cechy i układ domu
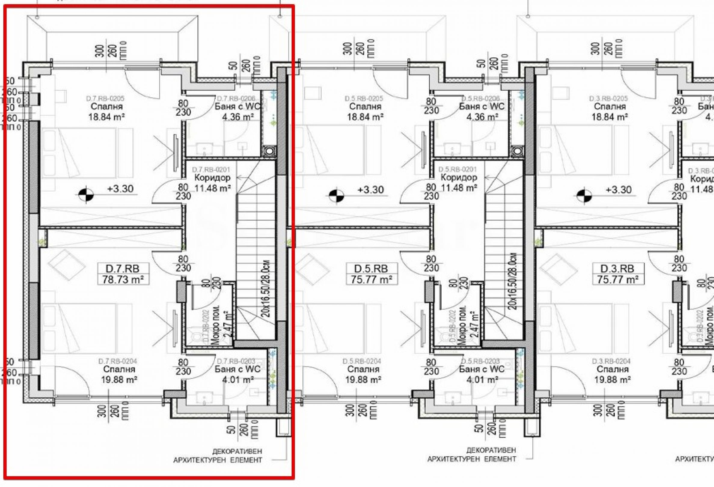
Nieruchomość o łącznej powierzchni 292,65 m² z podwórkiem o powierzchni 222,63 m² jest sprzedawana w stanie deweloperskim, zgodnie z bułgarskimi standardami budowlanymi. Wygodny parking zewnętrzny dopełnia funkcjonalność domu.
Dom charakteryzuje się nowoczesnym podejściem architektonicznym, w którym każda kondygnacja została zaprojektowana tak, aby w pełni wykorzystać naturalne wzniesienie terenu. Rozłożony na trzech w pełni użytkowych kondygnacjach mieszkalnych, łączy w sobie funkcjonalność, przestrzeń i światło:
• Na pierwszym piętrze znajduje się imponujący salon z francuskimi oknami o wysokości trzech metrów, które zapewniają mnóstwo naturalnego światła i bezpośrednie wyjście na werandę i zagospodarowany ogród – idealne miejsce na relaks i spędzanie czasu z rodziną.
• Drugie piętro zaprojektowano z myślą o komforcie i wygodzie – oferuje sypialnię główną z garderobą i gabinet, który może służyć zarówno do pracy, jak i jako miejsce relaksu.
• Na trzecim piętrze znajdują się dwie oddzielne sypialnie, każda z własną łazienką.
Lokalizacja
Położony w dogodnej lokalizacji w coraz bardziej pożądanej i prestiżowej dzielnicy „Kambanite”, obok jednych z najbardziej pożądanych osiedli strzeżonych w stolicy, ten kompleks to ostatnia okazja na realizację projektu tej skali w tym regionie. Kompleks oferuje spokojne życie w malowniczym otoczeniu ze świeżym powietrzem, na łącznej powierzchni 110 000 m², z czego 92 000 m² to tereny zielone, a także aż 10 dziesiątek ...
Osiedle położone jest 20 minut jazdy od centrum stolicy, w pobliżu dwóch największych centrów biznesowych – Business Park Sofia i Garitage Office Park. To ekskluzywne miejsce do życia dla dorosłych i dzieci.
• do Parku Kambanite;
• 3 minuty samochodem od obwodnicy;
• 6 minut jazdy od centrum handlowego Ring Mall;
• 15 minut jazdy od lotniska.
Etap 1 jest częścią ACT 14 i obejmuje całe zaplanowane otoczenie parku.
Okres realizacji - 2,5 roku, powierzchnia użytkowa etapu 1 - 21 000 m2:
• trzy budynki mieszkalne trzykondygnacyjne - lokale trzypokojowe na ostatnich piętrach i apartamenty czteropokojowe, z ogródkiem lub tarasem;
• domy w zabudowie szeregowej i bliźniaczej o powierzchni od 285 mkw. do 454 mkw.
• Budynek Rekreacyjny – budynek użyteczności publicznej z 40 miejscami parkingowymi dla gości – 2400 m2.
Kompleks mieszkaniowy nowej generacji:
• gotowe domy dla domu inteligentnego - System Smart Home;
• Okna francuskie i wysokie sufity, światło 3+ m;
• innowacyjny system izolacji termicznej;
• system ogrzewania pompą ciepła;
• możliwość zamontowania indywidualnych wind i basenu dla domów;
• fotowoltaika z instalacjami inwerterowymi;
• okna aluminiowe wielkoformatowe z potrójnymi szybami i niską ramą;
• stacja uzdatniania wody;
• zintegrowane stacje ładowania pojazdów elektrycznych;
• nowoczesne, inteligentne technologie bezpieczeństwa od VIP Security;
• usługi zarządzania obiektem dla kompleksu.
Różnorodne udogodnienia dla całej rodziny, rekreacji i sportu, a także dla Twojego odnoszącego sukcesy biznesu:
• Recepcja czynna 24h;
• centrum fitness i SPA, studio jogi, sala bokserska;
• miejsca do grillowania i piknikowania, park dla zwierząt, siłownia na świeżym powietrzu, ścieżki do joggingu, jazdy na rowerze i uprawiania sportu;
• kino plenerowe;
• boiska sportowe, place zabaw i centrum dla dzieci;
• Hotel typu 5*, strefa lounge z recepcją i restauracjami;
• kino i sala gier;
• sale konferencyjne oraz otwarta przestrzeń do pracy i spotkań (przestrzeń coworkingowa), itp.
Aby uzyskać dodatkowe informacje i umówić się na obejrzenie nieruchomości, prosimy o kontakt z pośrednikiem odpowiedzialnym za ofertę.
Ogledziny nieruchomosci
Mozemy zorganizowac ogledziny nieruchomosci, w dogodnym dla Panstwa terminie. W tym celu prosimy o skontaktowanie sie z agentem odpowiedzialnym za te oferte.
Rezerwacja nieruchomosci
Nieruchomosc moze byc zarezerwowana i wycofana ze sprzedazy po wplaceniu zadatku, po czym ustaje ogladanie z innymi kupujacymi i rozpoczyna sie przygotowanie dokumentow do zawarcia umowy przedwstepnej i ostatecznej.
Prosimy o kontakt z agentem odpowiedzialnym za te nieruchomosc w celu uzyskania szczegolowych informacji dotyczacych procedury zakupu i metod platnosci.
Uslugi dodatkowe i obsluga posprzedazowa
Jestesmy sprawdzona firma o dobrej reputacji i wieloletnim doswiadczeniu. Dlatego bedziemy z Panstwem nie tylko w trakcie zakupu, ale takze po jego zakonczeniu, swiadczac na Panstwa zyczenie dodatkowe uslugi, aby w pelni i bezproblemowo korzystac z nowo zakupionej nieruchomosci. Uslugi, ktore mozemy zaoferowac, obejmuja uzyskanie zgody na kredyt hipoteczny z bulgarskiego banku, ubezpieczenia majatku ruchomego i nieruchomosci, ubezpieczenia na zycie, ubezpieczenia medyczne i samochodowe, prace budowlane i remontowe, meblowanie, uslugi prawne i ksiegowe itp.
Lokalizacja na mapie
SPRZEDAŻ
PROJEKT
Ekskluzywny dom w zabudowie bliźniaczej z lokalem nr 16 w luksusowym, zamkniętym kompleksie w dzielnicy Boyana
Boyana / Sofia / Sofia / Bułgaria mapa
Obszar: 200.87 m2
Cena: 425 000 € ///
SPRZEDAŻ
PROJEKT
Ekskluzywny dom w elitarnym, zamkniętym kompleksie w dzielnicy „Bojana”
Boyana / Sofia / Sofia / Bułgaria mapa
Obszar: 160.59 m2
Cena: 405 000 € ///
SPRZEDAŻ
PROJEKT
Nowo wybudowane domy butikowe u podnóża Witoszy
Dragalevtsi / Sofia / Sofia / Bułgaria mapa
Ceny nieruchomości: 670 000 - 820 000 € (bez VAT)
Ceny za m²: 2 078 - 2 204 €/m2 (bez VAT)
Wybierz tę opcję, a powiadomimy Cię e-mailem w przypadku jakichkolwiek zmian statusu oferty, na przykład:
• Zmiana ceny;
• Nieruchomość weszła w ofertę promocyjną;
• Nieruchomość jest zarezerwowana lub sprzedana;
• Inne wiadomości dotyczące nieruchomości.
• Nieruchomość zostaje wycofana ze sprzedaży;
Możesz w każdej chwili z łatwością zrezygnować z subskrypcji powiadomień.• Zmiany warunków oferty;
• Zmiana kwoty inwestycji;
• Przedmiot inwestycji został w całości zrealizowany;
• Oferta wygasła.
Jeśli w przyszłości zdecydujesz, że nie chcesz już otrzymywać tej oferty, możesz z łatwością zrezygnować z subskrypcji.
Aby otrzymać całkowicie poprawne informacje na temat wolnych nieruchomości dostępnych na sprzedaż w ramach projektu oraz ich aktualnych cen, prosimy o kontakt z naszym biurem, korzystając z podanych danych kontaktowych.
Dokładamy wszelkich starań, aby nasze cenniki były zawsze aktualne i poprawne, jednakże ze względu na dużą liczbę nowych projektów w naszym katalogu oraz dużą dynamikę sprzedaży, często jest to niemożliwe.
Dziękujemy za zrozumienie!



...Jako sprawdzony specjalista, Stonehard PREMIER zajmuje się pozycjonowaniem rynkowym i sprzedażą licznych nowych projektów budowlanych, których realizację powierzyły nam wiodące przedsiębiorstwa w Bułgarii i za granicą...