Dwupokojowe mieszkanie w \"COMFORT RESIDENCE - Malinova Dolina II\"
REF#SOF-135323
/
Apartamenty trzypokojowe
/
Zrealizowane projekty
/
Sofia
/
Malinova Dolina
/
Sofia
/
Bułgaria
aktualny
Cena:
208 535 € (bez VAT) (2 042 €/m2 (bez VAT))
*Ceny i dostępność wolnych lokali w projekcie mają charakter orientacyjny. Aby uzyskać aktualne informacje o cenach, prosimy o kontakt!
Nr ref. Numer: SOF-135323 / 4218
Lokalizacja: Malinova Dolina / Sofia mapa
Typ budynku/kompleksu: Mieszkaniowy
Klasa budynku/kompleksu: Wysoki standard
Obszary mieszkaniowe: 102.14 m2
Rodzaje nieruchomości w budynku/kompleksie: Apartamenty trzypokojowe
Nr ref. Numer: SOF-135323 / 4218
Lokalizacja: Malinova Dolina / Sofia
Typ budynku/kompleksu: Mieszkaniowy
Klasa budynku/kompleksu: Wysoki standard
Obszary mieszkaniowe: 102.14 m2
Rodzaje nieruchomości w budynku/kompleksie: Apartamenty trzypokojowe
Z AKTEM 14! BEZ PROWIZJI OD KUPUJĄCEGO!
Planowane zakończenie - koniec 2026 r.
Podana cena nie zawiera podatku VAT.
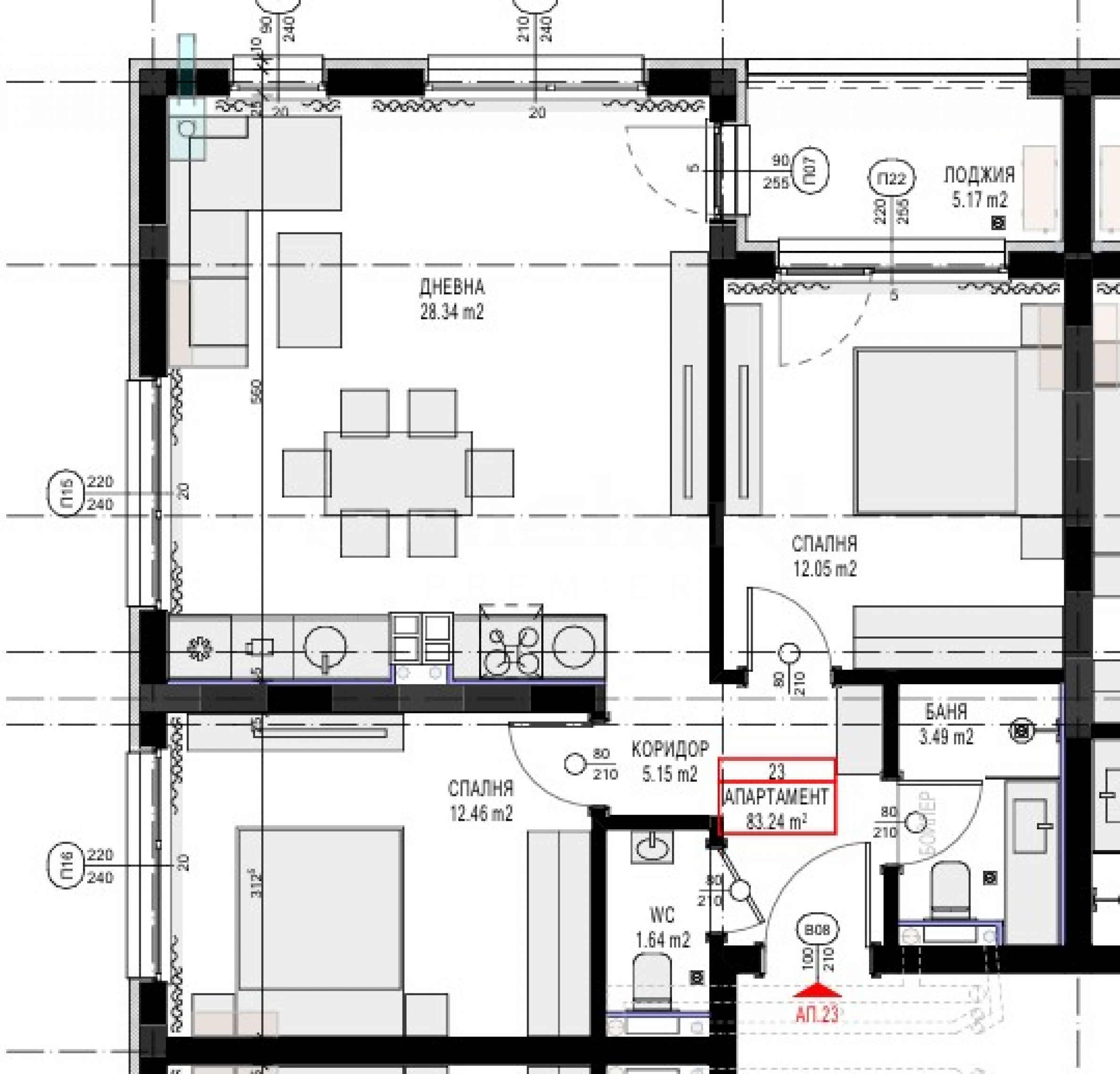
Apartament nr 23 znajduje się na 3. piętrze budynku i ma powierzchnię użytkową 83,24 m², na którą składają się: korytarz, łazienka/toaleta, toaleta, jasny salon z kuchnią i jadalnią, dwie wygodne sypialnie oraz taras. Do mieszkania przynależy komórka lokatorska o powierzchni 3,38 m² wliczona w cenę.
Nieruchomość jest wynajmowana w stanie wykończonym zgodnie z bułgarskimi standardami budowlanymi (tynki i wylewki). Ogrzewanie gazowe i klimatyzacja.
Istnieje możliwość zakupu miejsc parkingowych podziemnych w cenie 50 525 BGN (25 833 EUR) bez VAT lub miejsc parkingowych naziemnych w cenie 34 227 BGN (17 500 EUR) bez VAT.
Lokalizacja
Nowy budynek mieszkalny TASKOV & STOYANOV z serii COMFORT RESIDENCE znajduje się w nowo powstającej dzielnicy Malinova Dolina, w pobliżu Narodowej Akademii Sportu im. Wasyla Lewskiego (NSA). Projekt jest dziełem uznanego i wielokrotnie nagradzanego biura architektonicznego STUDIO CREATIVE , z którym inwestor współpracuje od wielu lat.
Lokalizacja zapewnia doskonałe połączenia komunikacyjne – w pobliżu przyszłej stacji metra, linii „Nadieżda-Łozenec”, znajduje się Uniwersytet Studencki, Narodowa Akademia Nauk i Pałac Zimowy, z szybkim dostępem do Szosy Simeonowskiej, Obwodnicy, centrum handlowego Ring Mall i Parku Biznesowego Sofia. Dogodny jest również dostęp do Parku Narodowego Witosza i centrum stolicy.
Kompleks mieszkaniowy „COMFORT RESIDENCE – Malinova Dolina II” to przykład modernistycznej architektury, która łączy w sobie estetykę, funkcjonalność i komfort. Budynek został zaprojektowany z myślą o stworzeniu przyjaznego środowiska życia, w którym światło, przestrzeń i natura odgrywają kluczową rolę. Projekt oferuje zrównoważone i wysokiej jakości życie w mieście, zgodne z najnowszymi trendami we współczesnej architekturze na światowym poziomie.
Budowę realizuje lider w branży budownictwa luksusowego, firma ELITE BUILDING COMPANY. Planowane jest wykorzystanie najnowocześniejszych technologii, w połączeniu z wysokiej klasy materiałami i sprzętem wiodących światowych producentów:
• Cegły WIENERBERGER;
• Pakiet fasad i izolacji termicznych BAUMIT;
• 6-komorowa stolarka PVC DECEUNINCK. System profili ma szerokość ramy 76 mm. Okucia i akcesoria SIEGENIA. Szyba zespolona o grubości 44 mm, z dwoma przezroczystymi szybami float o grubości 4 mm i jedną szybą niskoemisyjną typu K o grubości 4 mm;
• Windy ORONA 8-osobowe o eleganckim wykończeniu;
• Luksusowo wykończone części wspólne według autorskiego projektu wnętrz, w tym polerowane podłogi z naturalnego kamienia.
O budynku
Funkcjonalnie budynek zaprojektowano na czterech kondygnacjach z ostatnią kondygnacją tarasową, z których każda została zaprojektowana z myślą o maksymalnym komforcie i optymalnym rozmieszczeniu apartamentów. Na parterze (pierwszym) piętrze znajdują się niedrogie apartamenty z indywidualnymi zielonymi dziedzińcami oraz głównym wejściem o nowoczesnym i przyjaznym designie. Na piętrach standardowych znajdują się apartamenty z przestronnymi loggiami i oknami typu porte-fenêtre, które zapewniają lepsze połączenie z przestrzenią zewnętrzną. Apartamenty na ostatnim piętrze zaprojektowano jako luksusowe penthousy z panoramicznymi tarasami, oferujące niepowtarzalne widoki i ekskluzywne warunki życia. Komunikację pionową zapewniają dwie windy i jedna klatka schodowa, co gwarantuje funkcjonalność i wygodę.
„COMFORT RESIDENCE – Malinova Dolina II” oferuje łącznie 40 apartamentów, 41 miejsc parkingowych w garażu podziemnym i 10 naziemnych (zewnętrznych). Na pierwszym piętrze znajdują się apartamenty z przyległymi prywatnymi dziedzińcami oraz zewnętrzne miejsca parkingowe.
Apartamenty w budynku są dwu- i trzypokojowe. Do każdego apartamentu przynależy komórka lokatorska, która jest wliczona w cenę i powierzchnię całkowitą.
Oprócz negocjacji, które są możliwe, istnieją następujące schematy płatności:
Schemat 1 z kredytem bankowym:
• Kaucja w wysokości 3912 BGN (2000 EUR) (stop-kaparo) za mieszkanie dwupokojowe i 5868 BGN (3000 EUR) za mieszkanie trzypokojowe i czteropokojowe. Podpisana zostaje umowa kaucyjna z zobowiązaniem do podpisania umowy przedwstępnej kupna-sprzedaży;
• 30% minus zaliczka przy podpisaniu umowy przedwstępnej;
• 70% z kredytem bankowym po ustawie 14 (zaświadczenie na podstawie art. 181 ustawy o użytkowaniu gruntów) w transzach.
Schemat 2:
• Kaucja w wysokości 3912 BGN (2000 EUR) w euro (stop-kaparo) za mieszkanie dwupokojowe i 5868 BGN (3000 EUR) za mieszkanie trzypokojowe i czteropokojowe. Podpisana zostaje umowa kaucyjna z zobowiązaniem do podpisania przedwstępnej umowy kupna-sprzedaży;
• 30% minus zaliczka przy podpisaniu umowy przedwstępnej;
• 10% po dotarciu do drugiego piętra budynku;
• 30% po wydaniu Ustawy 14;
• 10% na elewację i stolarkę;
• 10% po wydaniu Ustawy nr 15;
• 10% po wydaniu Ustawy 16 (Pozwolenie na użytkowanie).
Pojęcie
Architekci i deweloper po raz kolejny postawili na nowoczesny projekt osiedla mieszkaniowego, który postawił na minimalistyczny styl, czyste linie i harmonijną interakcję architektury z otoczeniem. Kompozycja łączy funkcjonalność z estetyką, oferując otwarte przestrzenie, obfite naturalne oświetlenie i nowoczesne materiały. Budynek ma prostokątny kształt i wyraźnie zdefiniowaną modułową konstrukcję, co nadaje mu poczucie porządku i rytmu. Układ fasady i okien tworzy zrównoważoną wizję, zapewniając jednocześnie optymalne oświetlenie i widok na okolicę i malowniczą górę.
Kompozycja i materiały elewacji łączą jasne i ciemne tonacje, tworząc elegancki i czysty wygląd. Głównym materiałem jest jasny tynk mineralny, który nadaje budynkowi lekkości i zwiewności, a brązowe akcenty na oknach i zielone detale dodają głębi i kontrastu. Szklane balustrady tarasów dodają nowoczesności i przejrzystości, podkreślając połączenie między przestrzenią wewnętrzną i zewnętrzną. Zastosowanie dużych przeszkleń (typu francuskiego) dodatkowo wzmacnia ten efekt, pozwalając, aby wnętrze i otoczenie stały się jednością. Konstrukcja dachu została zaprojektowana tak, aby nadać sylwetce dynamiki i charakteru, a jednocześnie chronić tarasy.
Zagospodarowanie terenu stanowi kluczowy element całościowego projektu kompleksu. Przestrzenie wokół budynku charakteryzują się bogatą roślinnością, ozdobnymi drzewami, krzewami i trawnikami, które tworzą poczucie harmonii i naturalnego otoczenia. Szczególną uwagę poświęcono terenom zielonym ze zintegrowanymi strefami rekreacyjnymi, alejkami dla pieszych, wyłożonymi dekoracyjną kostką brukową i zewnętrznym oświetleniem LED, które podkreśla detale architektoniczne nocą.
Zalety "COMFORT RESIDENCE - Malinova Dolina II":
• Obok Narodowej Akademii Nauk i Pałacu Zimowego, uniwersytetów „Miasteczko Studenckie” – atrakcyjne nieruchomości inwestycyjne na wynajem;
• Imponująca wizja, luksusowe części wspólne, nienaganny design;
• Zoptymalizowane domy o wygodnym i funkcjonalnym układzie;
• Ogrzewanie gazowe;
• Wysoka jakość wykonania i innowacyjne technologie;
• Inwestor z dużym doświadczeniem i wieloma zrealizowanymi obiektami.
Czekamy na Państwa zapytanie.
Jeśli chcesz umówić się na obejrzenie interesującej Cię nieruchomości lub odwiedzić jedno z naszych biur, skontaktuj się z nami. Aby umówić się na spotkanie lub oględziny, zadzwoń pod numer telefonu podany w ogłoszeniu lub wyślij zapytanie e-mailem. Nasz konsultant pomoże Ci w ustaleniu wszystkich niezbędnych szczegółów i ustali dogodny termin.
Szukasz odpowiedniej nieruchomości dla siebie?
Skontaktuj się z nami i opowiedz nam o swoich potrzebach i preferencjach. Nasz zespół przeprowadzi dogłębną analizę rynku, aby zaoferować Ci nieruchomości idealnie odpowiadające Twoim kryteriom. Posiadamy wyjątkowe portfolio wysokiej jakości, ekskluzywnych domów, dostępnych wyłącznie dla naszych klientów. Aby być pierwszym, który otrzyma o nich informacje – skontaktuj się z nami.
Usługi dodatkowe
Jako ceniony klient naszej firmy, będziesz miał przywilej korzystania z usług naszego doświadczonego zespołu prawnego całkowicie bezpłatnie. Ponadto oferujemy kompleksowe rozwiązania, w tym ubezpieczenia nieruchomości, bezpłatne doradztwo finansowe, a także korzystne warunki finansowania. Nasze usługi obejmują również odsprzedaż, wynajem i zarządzanie nieruchomościami. Zapewniamy wysokiej jakości remonty i wyposażenie wnętrz za pośrednictwem wyspecjalizowanych firm wchodzących w skład naszej grupy kapitałowej i będących naszymi wieloletnimi partnerami.
Ogledziny nieruchomosci
Mozemy zorganizowac ogledziny nieruchomosci, w dogodnym dla Panstwa terminie. W tym celu prosimy o skontaktowanie sie z agentem odpowiedzialnym za te oferte.
Rezerwacja nieruchomosci
Nieruchomosc moze byc zarezerwowana i wycofana ze sprzedazy po wplaceniu zadatku, po czym ustaje ogladanie z innymi kupujacymi i rozpoczyna sie przygotowanie dokumentow do zawarcia umowy przedwstepnej i ostatecznej.
Prosimy o kontakt z agentem odpowiedzialnym za te nieruchomosc w celu uzyskania szczegolowych informacji dotyczacych procedury zakupu i metod platnosci.
Uslugi dodatkowe i obsluga posprzedazowa
Jestesmy sprawdzona firma o dobrej reputacji i wieloletnim doswiadczeniu. Dlatego bedziemy z Panstwem nie tylko w trakcie zakupu, ale takze po jego zakonczeniu, swiadczac na Panstwa zyczenie dodatkowe uslugi, aby w pelni i bezproblemowo korzystac z nowo zakupionej nieruchomosci. Uslugi, ktore mozemy zaoferowac, obejmuja uzyskanie zgody na kredyt hipoteczny z bulgarskiego banku, ubezpieczenia majatku ruchomego i nieruchomosci, ubezpieczenia na zycie, ubezpieczenia medyczne i samochodowe, prace budowlane i remontowe, meblowanie, uslugi prawne i ksiegowe itp.
Lokalizacja na mapie
SPRZEDAŻ
PROJEKT
Designerski apartament z dwiema sypialniami w prestiżowym budynku A3
Manastirski Livadi - East / Sofia / Sofia / Bułgaria mapa
Obszar: 165 m2
Cena: 630 000 € /// 3 818 €/m2
Nowy projekt mieszkaniowy ośmiu budynków o zróżnicowanym typie mieszkań w dzielnicy „Malinova Dolina”
Malinova Dolina / Sofia / Sofia / Bułgaria mapa
Ceny nieruchomości: 73 000 - 212 000 €
Ceny za m²: 1 738 - 1 933 €/m2
Nowy kompleks z różnymi typami apartamentów w dzielnicy „Manastirski Livadi – Iztok”
Manastirski Livadi - East / Sofia / Sofia / Bułgaria mapa
Ceny nieruchomości: 183 906 - 449 314 € (bez VAT)
Ceny za m²: 2 600 - 2 600 €/m2 (bez VAT)
Wybierz tę opcję, a powiadomimy Cię e-mailem w przypadku jakichkolwiek zmian statusu oferty, na przykład:
• Zmiana ceny;
• Nieruchomość weszła w ofertę promocyjną;
• Nieruchomość jest zarezerwowana lub sprzedana;
• Inne wiadomości dotyczące nieruchomości.
• Nieruchomość zostaje wycofana ze sprzedaży;
Możesz w każdej chwili z łatwością zrezygnować z subskrypcji powiadomień.• Zmiany warunków oferty;
• Zmiana kwoty inwestycji;
• Przedmiot inwestycji został w całości zrealizowany;
• Oferta wygasła.
Jeśli w przyszłości zdecydujesz, że nie chcesz już otrzymywać tej oferty, możesz z łatwością zrezygnować z subskrypcji.
Aby otrzymać całkowicie poprawne informacje na temat wolnych nieruchomości dostępnych na sprzedaż w ramach projektu oraz ich aktualnych cen, prosimy o kontakt z naszym biurem, korzystając z podanych danych kontaktowych.
Dokładamy wszelkich starań, aby nasze cenniki były zawsze aktualne i poprawne, jednakże ze względu na dużą liczbę nowych projektów w naszym katalogu oraz dużą dynamikę sprzedaży, często jest to niemożliwe.
Dziękujemy za zrozumienie!



...Jako sprawdzony specjalista, Stonehard PREMIER zajmuje się pozycjonowaniem rynkowym i sprzedażą licznych nowych projektów budowlanych, których realizację powierzyły nam wiodące przedsiębiorstwa w Bułgarii i za granicą...