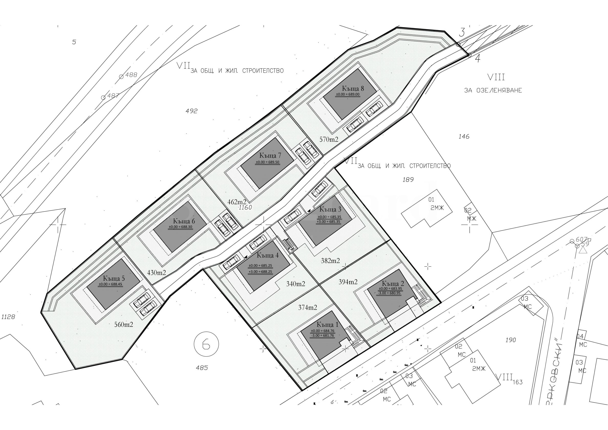
Kompleks ośmiu domów jednorodzinnych na terenie dzielnicy. Seslavtsi, miasto Sofia
Ceny nieruchomości w projekcie
345 000 - 425 000 € (1 488 - 2 361 €/m2) CENNIK
*Ceny i dostępność wolnych lokali w projekcie mają charakter orientacyjny. Aby uzyskać aktualne informacje o cenach, prosimy o kontakt!
Nr ref. Numer: SOF-125655 / 4803
Lokalizacja: Seslavtsi / Sofia mapa
Typ budynku/kompleksu: Mieszkaniowy
Obszary mieszkaniowe: 180 m2 - 258 m2
Liczba nieruchomości w budynku/kompleksie: 8
Dostępne na sprzedaż: 8 (100%)
Obecny etap projektu: Zakończone i działające
Rodzaje nieruchomości w budynku/kompleksie: Domy
Nr ref. Numer: SOF-125655 / 4803
Lokalizacja: Seslavtsi / Sofia
Typ budynku/kompleksu: Mieszkaniowy
Klasa budynku/kompleksu:
Obszary mieszkaniowe: 180 m2 - 258 m2
Liczba nieruchomości w budynku/kompleksie: 8
Dostępne na sprzedaż: 8 (100%)
Obecny etap projektu: Zakończone i działające
Rodzaje nieruchomości w budynku/kompleksie: Domy
Domy nr 1 i nr 2 mają już pozwolenie na budowę i ich ukończenie planowane jest na wrzesień 2025 r.
Projekt obejmuje budowę nowoczesnych, przytulnych i energooszczędnych domów jednorodzinnych w dzielnicy Seslavtsi, położonej w północno-wschodniej części Sofii. Obszar ten słynie z pięknej przyrody, czystego powietrza i spokojnej atmosfery, co czyni go idealnym miejscem do ucieczki od miejskiego środowiska.
Główne cechy:
• Typ nieruchomości: domy wolnostojące z trzema sypialniami;
• Ilość domów: 8;
• Powierzchnia działki: od 340 do 570 m2;
• Powierzchnia zabudowana domów: od 180 do 258 mkw.
Zalety projektu:
• Natura i świeże powietrze: dzielnica Seslavtsi jest otoczona zielenią i oferuje wspaniałe widoki na góry. Czyste powietrze i spokój okolicy tworzą idealne warunki do zdrowego i relaksującego stylu życia.
• Ucieczka od miejskiego otoczenia: Domy zapewniają możliwość prywatności i spokoju, z dala od hałasu i stresu wielkiego miasta, a jednocześnie znajdują się w niewielkiej odległości od centrum Sofii (19 km).
• Nowoczesne udogodnienia: Każdy dom został zaprojektowany z dbałością o szczegóły i posiada nowoczesne udogodnienia, takie jak przestronne pokoje dzienne, nowoczesne układy, energooszczędne systemy i piękne ogrody.
• Bezpieczeństwo i komfort: W ramach projektu powstaje kompleks z kontrolowanym dostępem, co gwarantuje bezpieczeństwo i spokój mieszkańców.
Etapy budowy:
Projekt realizowany będzie w trzech fazach, przy czym faza I, obejmująca domy nr 1 i nr 2, ma już etap 14, a jej ukończenie planowane jest na wrzesień 2025 r.
Kolejne etapy będą realizowane zgodnie z życzeniami przyszłych właścicieli.
Dane techniczne:
• Cegły Porotherm firmy Wienerberger 25 cm;
• ściany działowe wewnętrzne murowane z cegły Wienerberger Porotherm 12 cm;
• Izolacja elewacji 15 cm;
• Tynki elewacyjne Baumit;
• dwie automatyczne bramy garażowe Hörmann;
• drzwi wejściowe wysokiej klasy;
• okna: PCV 5-komorowe, pakiet trzyszybowy, 4K sezonowe zewnętrzne – wysoka klasa;
• ochrona przed piorunami;
• Wykonano instalacje elektryczne i wodno-kanalizacyjne;
• ogrzewanie elektryczne z przygotowaniem pod montaż pompy ciepła;
• indywidualna oczyszczalnia ścieków i przygotowanie do podłączenia do centralnego systemu kanalizacyjnego;
• dachówki i materiały dachowe – Bramak;
• zagospodarowanie terenu i koszenie trawy.
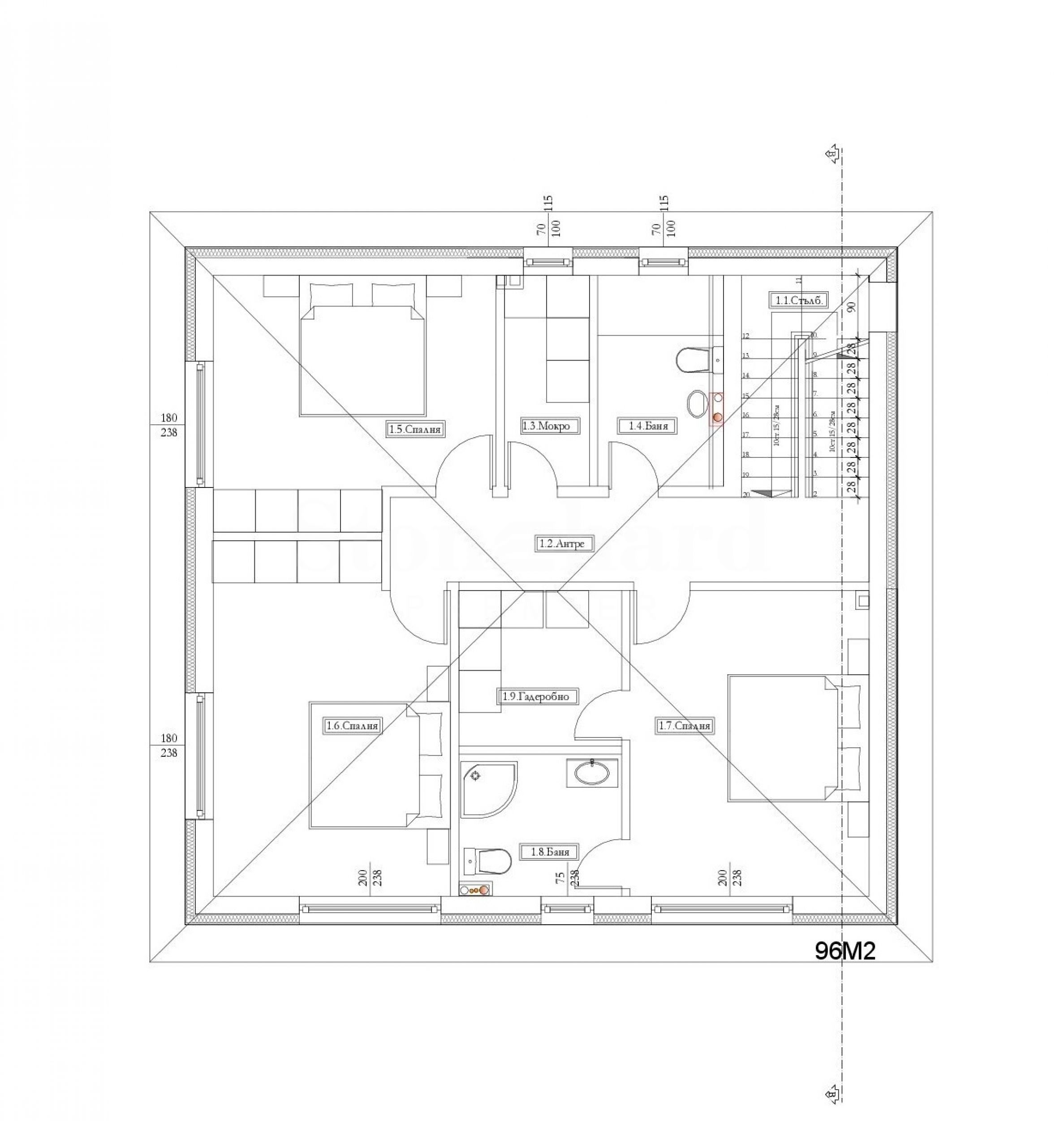
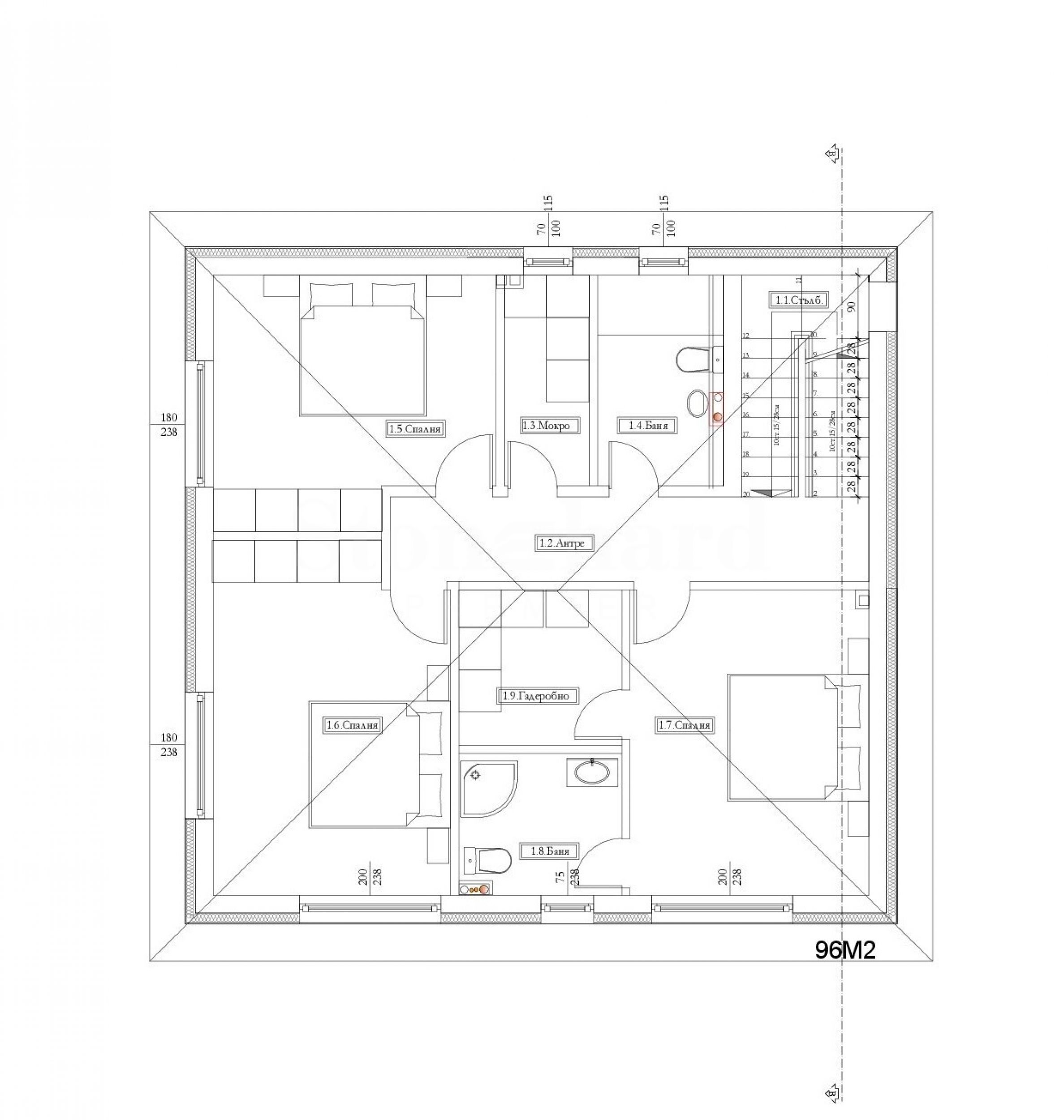
Podział domów nr 1 (podwórko 374 m2) i nr 2 (podwórko 394 m2):
• Poziom piwnicy – 74,30 m2:
- Hol wejściowy – 8,45 m2;
- Garaż podwójny - 34,77 m2;
- Pomieszczenie gospodarcze 1 – 5,38 m2;
- Pomieszczenie gospodarcze 2 – 3,57 m2;
- Klatka schodowa – 8,16 m2.
• Poziom 1 (wysokość 0) – 87 m2:
- Salon z aneksem kuchennym – 52,73 m2;
- Spiżarnia – 3,25 m2;
- Toaleta – 2,11 m2;
- Hol wejściowy – 5,84 m2;
- Klatka schodowa – 5,89 m2.
• Poziom 2 (wysokość 3,00):
- Sypialnia 1 – 13,55 m2;
- Sypialnia 2 – 16,32 m2;
- Sypialnia główna (14,38 m2) z garderobą (4,96 m2) i łazienką z toaletą (4,34 m2);
- Łazienka z WC – 3,57 m2;
- Pomieszczenie mokre - 3,57 m2;
- Korytarz – 8,11 m2;
- Klatka schodowa – 5,89 m2.
Standardowy schemat płatności:
• 20% - umowa przedwstępna;
• 80% - zgoda na użytkowanie.
O okolicy
Projekt domów jednorodzinnych w dzielnicy Seslavtsi oferuje wyjątkową okazję do wygodnego i spokojnego życia w otoczeniu natury, bez rezygnacji z udogodnień miejskiego życia. To idealne miejsce dla rodzin poszukujących równowagi między pracą a życiem osobistym, a także dla wszystkich, którzy cenią jakość życia i naturalne piękno.
Dzielnica Seslavtsi znajduje się w północno-wschodniej części Sofii i jest częścią rejonu Kremikovtsi. Do 1978 r. Seslavtsi była niezależną wsią, ale później została przyłączona do stolicy. Jest znana ze swojej bogatej historii i dziedzictwa kulturowego, w tym kilku klasztorów. Jednym z najważniejszych jest klasztor Seslav „Św. Mikołaj z Miry”. Inne godne uwagi klasztory w okolicy to klasztor Kremikovtsi „Św. Jerzy Zwycięski” i klasztor Bukhov „Św. Archanioł Michał”.
• Infrastruktura
Seslavtsi ma podstawową infrastrukturę, w tym regularną linię autobusową nr 117, która łączy dzielnicę z resztą miasta. Dzielnica ma również nowo wybudowane place zabaw i obiekty sportowe.
• Szkoła
W Seslavtsi znajduje się szkoła podstawowa, do której uczęszczają miejscowe dzieci i która oferuje edukację na wysokim poziomie.
• Przedszkole
W 2022 roku w Seslavtsi otwarto nowy budynek przedszkola, filii DG nr 146 „Zvezditsa”. Posiada przestronne sale lekcyjne i sypialnie, salę gimnastyczną i muzyczną, a także blok kuchenny z zupełnie nowym wyposażeniem. Przedszkole ma również place zabaw na świeżym powietrzu i boisko do piłki nożnej.
• Sklepy
W okolicy znajduje się kilka małych sklepów oferujących artykuły spożywcze i inne podstawowe produkty zaspokajające potrzeby okolicznych mieszkańców.
Ogledziny nieruchomosci
Mozemy zorganizowac ogledziny nieruchomosci, w dogodnym dla Panstwa terminie. W tym celu prosimy o skontaktowanie sie z agentem odpowiedzialnym za te oferte.
Rezerwacja nieruchomosci
Nieruchomosc moze byc zarezerwowana i wycofana ze sprzedazy po wplaceniu zadatku, po czym ustaje ogladanie z innymi kupujacymi i rozpoczyna sie przygotowanie dokumentow do zawarcia umowy przedwstepnej i ostatecznej.
Prosimy o kontakt z agentem odpowiedzialnym za te nieruchomosc w celu uzyskania szczegolowych informacji dotyczacych procedury zakupu i metod platnosci.
Uslugi dodatkowe i obsluga posprzedazowa
Jestesmy sprawdzona firma o dobrej reputacji i wieloletnim doswiadczeniu. Dlatego bedziemy z Panstwem nie tylko w trakcie zakupu, ale takze po jego zakonczeniu, swiadczac na Panstwa zyczenie dodatkowe uslugi, aby w pelni i bezproblemowo korzystac z nowo zakupionej nieruchomosci. Uslugi, ktore mozemy zaoferowac, obejmuja uzyskanie zgody na kredyt hipoteczny z bulgarskiego banku, ubezpieczenia majatku ruchomego i nieruchomosci, ubezpieczenia na zycie, ubezpieczenia medyczne i samochodowe, prace budowlane i remontowe, meblowanie, uslugi prawne i ksiegowe itp.
Lokalizacja na mapie
SPRZEDAŻ
PROJEKT
Nowo wybudowane domy butikowe u podnóża Witoszy
Dragalevtsi / Sofia / Sofia / Bułgaria mapa
Ceny nieruchomości: 670 000 - 820 000 € (bez VAT)
Ceny za m²: 2 078 - 2 204 €/m2 (bez VAT)
SPRZEDAŻ
PROJEKT
Nowy dom z prywatnym podwórkiem, bezpośrednim wejściem z ulicy i widokiem na Górę Witosza
Dragalevtsi / Sofia / Sofia / Bułgaria mapa
Obszar: 240 m2
Cena: 990 000 € ///
SPRZEDAŻ
PROJEKT
Nowoczesny dom szeregowy z ogrodem i miejscami parkingowymi w prestiżowym kompleksie
Lozen park / Sofia / Sofia / Bułgaria mapa
Obszar: 242 m2
Cena: 750 000 € ///
Wybierz tę opcję, a powiadomimy Cię e-mailem w przypadku jakichkolwiek zmian statusu oferty, na przykład:
• Zmiana ceny;
• Nieruchomość weszła w ofertę promocyjną;
• Nieruchomość jest zarezerwowana lub sprzedana;
• Inne wiadomości dotyczące nieruchomości.
• Nieruchomość zostaje wycofana ze sprzedaży;
Możesz w każdej chwili z łatwością zrezygnować z subskrypcji powiadomień.• Zmiany warunków oferty;
• Zmiana kwoty inwestycji;
• Przedmiot inwestycji został w całości zrealizowany;
• Oferta wygasła.
Jeśli w przyszłości zdecydujesz, że nie chcesz już otrzymywać tej oferty, możesz z łatwością zrezygnować z subskrypcji.
Aby otrzymać całkowicie poprawne informacje na temat wolnych nieruchomości dostępnych na sprzedaż w ramach projektu oraz ich aktualnych cen, prosimy o kontakt z naszym biurem, korzystając z podanych danych kontaktowych.
Dokładamy wszelkich starań, aby nasze cenniki były zawsze aktualne i poprawne, jednakże ze względu na dużą liczbę nowych projektów w naszym katalogu oraz dużą dynamikę sprzedaży, często jest to niemożliwe.
Dziękujemy za zrozumienie!



...Jako sprawdzony specjalista, Stonehard PREMIER zajmuje się pozycjonowaniem rynkowym i sprzedażą licznych nowych projektów budowlanych, których realizację powierzyły nam wiodące przedsiębiorstwa w Bułgarii i za granicą...