Opis projekta
Нови дом усред мира и тишине, свежег ваздуха и прелепе природе!
Представљамо вам изузетну прилику за инвестицију и миран породични живот - куће у низу са модерном архитектуром и висококвалитетним извођењем, у једном од најперспективнијих еко-региона око Софије - селу Гурмазово.
Куће су 3 ком. и део су Фазе 1 бутик комплекса градских кућа, пројектованих са пажњом посвећеном детаљима, модерном визијом и максималном функционалношћу простора. Погодне су за живот током целе године. Очекивани почетак рада (Акт 16) је заказан за јул 2026. године.
Наведене цене су без ПДВ-а.
Комплекс се налази на само 20 минута од центра престонице, са одличном комуникацијом, тишином и природом. Подручје карактерише нова градња и модерна инфраструктура, комбинујући приватност и удобност са лаким приступом граду. Село се налази на само 3 км од Божуришта, око 14 км од Банкје и 8 км од метро станице Сливница. Захваљујући ваздушним струјама из Банкје, ваздух овде је препознат као чист и лековит, подручје се сматра једним од еколошки најодрживијих у близини Софије.
Параметри
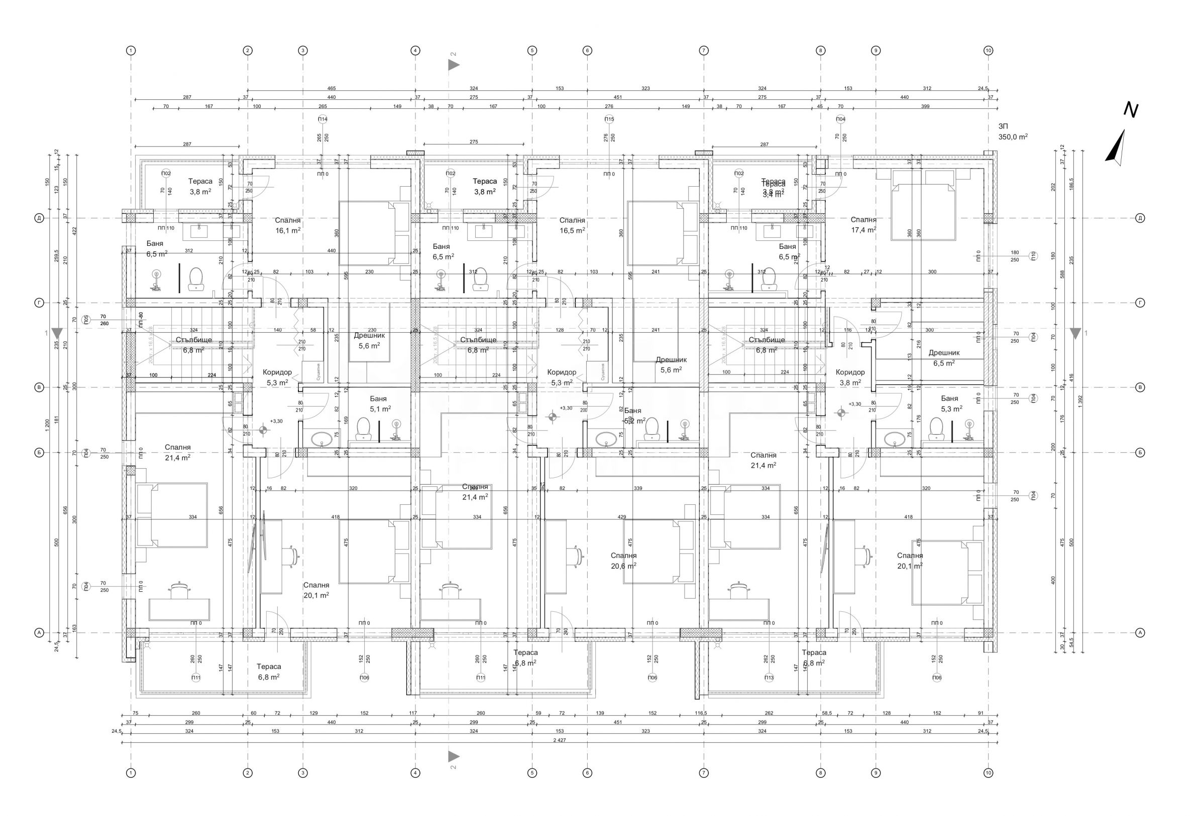
Укупна изграђена површина кућа варира од 213 до 215 квадратних метара, а поред ове површине постоји додатни подрумски спрат од 100 квадратних метара за сваку некретнину.
Распоред је изузетно удобан и погодан за породицу:
• На првом нивоу се налази гаража, котларница, улазни хол, дневни боравак са кухињом и трпезаријом са директним излазом у сопствено двориште, гостејски тоалет;
• На другом нивоу - три одвојене спаваће собе, два купатила са тоалетима, два балкона.
Подрум је додатни простор који нуди разне могућности - складиште, теретану, биоскоп или винску собу.
Куће се нуде у степену завршености „према бугарским грађевинским стандардима“ , градња је од висококвалитетних материјала и технолошких решења највише класе:
• Фасада је опремљена вентилираним системом и облогом од природног камена, што обезбеђује издржљивост и естетику.
• Столарија је немачка – Kömmerling, са одличном звучном и топлотном изолацијом.
• Објекат је опремљен системом топлотне пумпе и подним грејањем – изузетно ефикасно и економично решење за климатизацију током целе године.
• Укључени су хидрофори за константан притисак воде и немачко постројење за пречишћавање воде, ради самодовољности и еколошке одрживости.
Радујемо се вашем упиту.
Уколико желите да закажете разгледање некретнине која вас занима или да посетите једну од наших канцеларија, контактирајте нас. Да бисте заказали дан и време састанка или разгледања, можете позвати број телефона наведен у огласу или послати упит путем е-поште. Наш консултант ће вам помоћи са свим потребним детаљима и заказати време које вам одговара.
Да ли тражите праву некретнину за вас?
Слободно нас контактирајте и реците нам о вашим потребама и жељама. Наш тим ће спровести темељно истраживање тржишта како би вам понудио некретнине које тачно испуњавају ваше критеријуме. Имамо изузетан портфолио висококвалитетних и ексклузивних кућа које су доступне само нашим клијентима. Да бисте први добили информације о њима – контактирајте нас.
Додатне услуге
Као цењени клијент наше компаније, имаћете привилегију да користите услуге нашег искусног правног тима потпуно бесплатно. Поред тога, нудимо свеобухватна решења, укључујући осигурање имовине, бесплатне финансијске савете, као и повољне услове финансирања. Наше услуге се протежу и на област препродаје, изнајмљивања и управљања некретнинама. Пружамо висококвалитетно реновирање и опремање преко специјализованих компанија које су део наше корпоративне групе и наши су дугогодишњи професионални партнери.
Представљамо вам изузетну прилику за инвестицију и миран породични живот - куће у низу са модерном архитектуром и висококвалитетним извођењем, у једном од најперспективнијих еко-региона око Софије - селу Гурмазово.
Куће су 3 ком. и део су Фазе 1 бутик комплекса градских кућа, пројектованих са пажњом посвећеном детаљима, модерном визијом и максималном функционалношћу простора. Погодне су за живот током целе године. Очекивани почетак рада (Акт 16) је заказан за јул 2026. године.
Наведене цене су без ПДВ-а.
Комплекс се налази на само 20 минута од центра престонице, са одличном комуникацијом, тишином и природом. Подручје карактерише нова градња и модерна инфраструктура, комбинујући приватност и удобност са лаким приступом граду. Село се налази на само 3 км од Божуришта, око 14 км од Банкје и 8 км од метро станице Сливница. Захваљујући ваздушним струјама из Банкје, ваздух овде је препознат као чист и лековит, подручје се сматра једним од еколошки најодрживијих у близини Софије.
Параметри
Укупна изграђена површина кућа варира од 213 до 215 квадратних метара, а поред ове површине постоји додатни подрумски спрат од 100 квадратних метара за сваку некретнину.
Распоред је изузетно удобан и погодан за породицу:
• На првом нивоу се налази гаража, котларница, улазни хол, дневни боравак са кухињом и трпезаријом са директним излазом у сопствено двориште, гостејски тоалет;
• На другом нивоу - три одвојене спаваће собе, два купатила са тоалетима, два балкона.
Подрум је додатни простор који нуди разне могућности - складиште, теретану, биоскоп или винску собу.
Куће се нуде у степену завршености „према бугарским грађевинским стандардима“ , градња је од висококвалитетних материјала и технолошких решења највише класе:
• Фасада је опремљена вентилираним системом и облогом од природног камена, што обезбеђује издржљивост и естетику.
• Столарија је немачка – Kömmerling, са одличном звучном и топлотном изолацијом.
• Објекат је опремљен системом топлотне пумпе и подним грејањем – изузетно ефикасно и економично решење за климатизацију током целе године.
• Укључени су хидрофори за константан притисак воде и немачко постројење за пречишћавање воде, ради самодовољности и еколошке одрживости.
Радујемо се вашем упиту.
Уколико желите да закажете разгледање некретнине која вас занима или да посетите једну од наших канцеларија, контактирајте нас. Да бисте заказали дан и време састанка или разгледања, можете позвати број телефона наведен у огласу или послати упит путем е-поште. Наш консултант ће вам помоћи са свим потребним детаљима и заказати време које вам одговара.
Да ли тражите праву некретнину за вас?
Слободно нас контактирајте и реците нам о вашим потребама и жељама. Наш тим ће спровести темељно истраживање тржишта како би вам понудио некретнине које тачно испуњавају ваше критеријуме. Имамо изузетан портфолио висококвалитетних и ексклузивних кућа које су доступне само нашим клијентима. Да бисте први добили информације о њима – контактирајте нас.
Додатне услуге
Као цењени клијент наше компаније, имаћете привилегију да користите услуге нашег искусног правног тима потпуно бесплатно. Поред тога, нудимо свеобухватна решења, укључујући осигурање имовине, бесплатне финансијске савете, као и повољне услове финансирања. Наше услуге се протежу и на област препродаје, изнајмљивања и управљања некретнинама. Пружамо висококвалитетно реновирање и опремање преко специјализованих компанија које су део наше корпоративне групе и наши су дугогодишњи професионални партнери.
Kontakti na našiya ofis
Mesto na karti
PRIBLIZITELNO MESTOPOLOŽENJE
Pošaljite upit za više informacija
Izaberite ovu opciju i obaveštavaćemo Vas putem imejla o promenama statusa ponude, na primer:
• Promena cene;
• Nekretnina je ušla u promotivnu ponudu;
• Nekretnina je rezervisana ili prodata;
• Druge novosti vezane za nekretninu.
• Nekretnina je skinuta sa prodaje;
Možete se lako odjaviti sa notifikacija kad god poželite.
Ploština nekretnina u Dubaiju / UAE se izračunava u kvadratnim stopama. Sve površine u ovoj ponudi su automatski preračunate u kvadratne metre prema formuli 1 m² = 10.7639 kv. stopa.
Najmodavac plaća struju, vodu, grejanje/klimatizaciju, internet, kablovsku televiziju i komunalne usluge.
Originalna cena nekretnine je navedena u lokalnoj valuti dirham (AED). Cena navedena u valuti različitoj od dirhama je indikativna i automatski se izračunava po međukursu, koji ažuriramo 4 puta dnevno. Zato cena navedena u valuti različitoj od dirhama (AED) stalno varira, iako u malim granicama.
Cene su orijentacione. Za apsolutno tačnu cenu kalkulaciju i ponudu, molimo kontaktirajte odgovornog konsultanta!
Izaberite ovu opciju i počećete da dobijate važne obaveštenja vezane za ovu ponudu putem imejla:
• Promene uslova ponude;
• Promena iznosa investicije;
• Predmet investicije je u potpunosti realizovan;
• Važenje ponude je isteklo.
Možete se lako odjaviti ako u budućnosti odlučite da više ne želite da pratite ovu ponudu.
• Promene uslova ponude;
• Promena iznosa investicije;
• Predmet investicije je u potpunosti realizovan;
• Važenje ponude je isteklo.
Možete se lako odjaviti ako u budućnosti odlučite da više ne želite da pratite ovu ponudu.
Izaberite ovu opciju i počećete da dobijate nove ponude sa sličnim predmetom investicije i sa lokacijom u istom području.
Še polučavate po imejla svi novi oferti i aktuelna informacija za našu delatnost
S obzirom na trenutnu snažnu dinamiku prodaje i tržišta, cene i dostupnost slobodnih nekretnina u ovom projektu prikazane na našem sajtu mogu se blago razlikovati od aktuelnih.
Da biste dobili apsolutno tačne informacije o slobodnim nekretninama dostupnim za prodaju u projektu i njihovim aktuelnim cenama, molimo vas da kontaktirate našu kancelariju na navedene kontakt informacije.
Trudimo se da naše cenovnike održavamo apsolutno aktuelnim i tačnim, ali često to nije moguće zbog velikog broja novih projekata u našem katalogu i snažne dinamike prodaje.
Hvala vam na razumevanju!
Da biste dobili apsolutno tačne informacije o slobodnim nekretninama dostupnim za prodaju u projektu i njihovim aktuelnim cenama, molimo vas da kontaktirate našu kancelariju na navedene kontakt informacije.
Trudimo se da naše cenovnike održavamo apsolutno aktuelnim i tačnim, ali često to nije moguće zbog velikog broja novih projekata u našem katalogu i snažne dinamike prodaje.
Hvala vam na razumevanju!


