Једнособан стан по систему „кључ у руке“ у новом комплексу поред мора у граду Бјала
Цена:
142 284 € / 1 878 €/м²
Референтни број: VAR-101309
Локација: Byala (Varna) мапа
Тип зграде/комплекса: Стамбени
Стамбене области: 75.77 м²
Врсте некретнина у згради/комплексу: Jednosobni stanovi
Референтни број: VAR-101309
Локација: Byala (Varna)
Тип зграде/комплекса: Жилищен
Класа зграде/комплекса:
Стамбене области: 75.77 м²
Врсте некретнина у згради/комплексу: Jednosobni stanovi
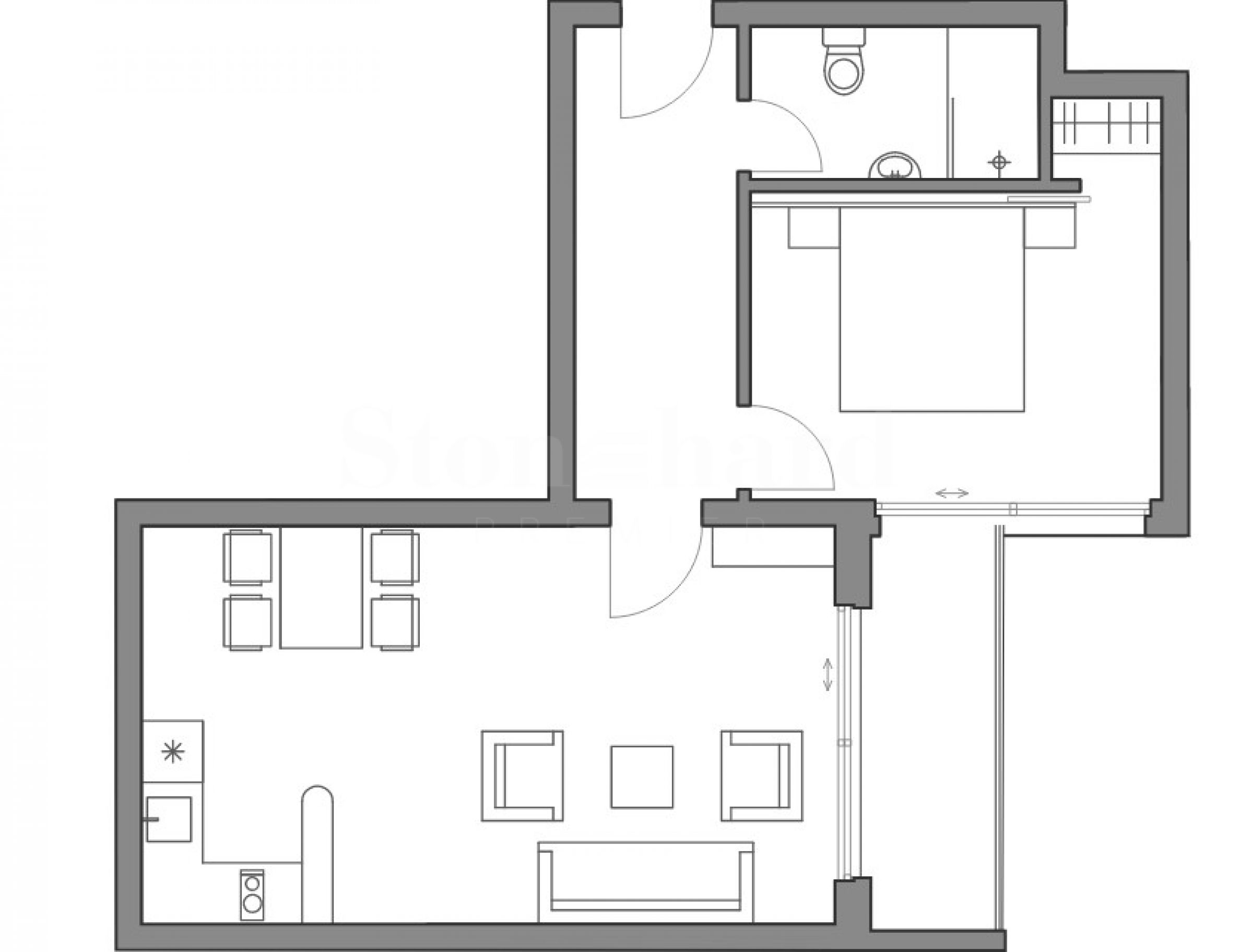
Стан је површине 75,77 квадратних метара, налази се на 3. спрату и има повољну оријентацију - југ/исток.
Прелеп поглед, чист морски ваздух и борова шума!
Импресивни стамбено-вирални комплекс у коме се налази некретнина требало би да буде завршен до летње сезоне 2022. године. Локација је погодна и за рекреацију и за живот, удаљена је само 3 минута од инфраструктуре летовалишта Бјала и са брзим приступом аутомобилом до града Обзора.
Пројекат се састоји од 2 бутик зграде, смештене на самој обали мора, а до плаже се стиже сликовитом стазом - стеновитом обалом међу боровом шумом. У близини се налазе хотели са пет звездица, који имају сву потребну инфраструктуру за потпун одмор (продавнице, ресторани, фитнес центри, СПА салони), као и потпуно опремљене простране плаже, којима је, према бугарском законодавству, приступ отворен за све посетиоце.
Оријентисане ка мору, у непосредној близини једне од најлепших пешчаних плажа на обали Црног мора, чија ширина достиже и до 60 метара, зграде су пројектоване на пет спратова и укључују простране апартмане са предивним погледом на море чак и са првог спрата.
Конструкција је израђена од висококвалитетних материјала, у складу са најновијим трендовима узимајући у обзир поморску климу, са модерном фасадом и додатним елементима: немачки HPL панели, иновативна француска столарија у свакој некретнини, модеран систем засенчења за терасе, италијанске плочице и камен у спољашњим просторима, подне облоге итд.
На територији комплекса:
отворени базен са простором за опуштање;
фитнес и сауна;
бар и простор за роштиљ;
игралиште;
паркинг.
Око базена има пуно лежаљки и сунцобрана за опуштање. Близина мора, планинских брда и борова ствара невероватну атмосферу!
Одржавање комплекса - 10 евра по квадратном метру годишње.
Услугу пружа професионална компанија за управљање, чије дужности укључују:
24-часовно и целогодишње обезбеђење комплекса;
стално чишћење и брига о вашем трупу;
одржавање чистоће у заједничким просторијама комплекса, зградама и објектима за заједничку употребу;
одржавање комплекса и базена;
одржавање вашег стана током зимског периода.
За додатне информације, обратите се одговорном брокеру за ову понуду.
Локација на мапи
Стан је површине 75,77 квадратних метара, налази се на 3. спрату и има повољну оријентацију - југ/исток.
Прелеп поглед, чист морски ваздух и борова шума!
Импресивни стамбено-вирални комплекс у коме се налази некретнина требало би да буде завршен до летње сезоне 2022. године. Локација је погодна и за рекреацију и за живот, удаљена је само 3 минута од инфраструктуре летовалишта Бјала и са брзим приступом аутомобилом до града Обзора.
Пројекат се састоји од 2 бутик зграде, смештене на самој обали мора, а до плаже се стиже сликовитом стазом - стеновитом обалом међу боровом шумом. У близини се налазе хотели са пет звездица, који имају сву потребну инфраструктуру за потпун одмор (продавнице, ресторани, фитнес центри, СПА салони), као и потпуно опремљене простране плаже, којима је, према бугарском законодавству, приступ отворен за све посетиоце.
Оријентисане ка мору, у непосредној близини једне од најлепших пешчаних плажа на обали Црног мора, чија ширина достиже и до 60 метара, зграде су пројектоване на пет спратова и укључују простране апартмане са предивним погледом на море чак и са првог спрата.
Конструкција је израђена од висококвалитетних материјала, у складу са најновијим трендовима узимајући у обзир поморску климу, са модерном фасадом и додатним елементима: немачки HPL панели, иновативна француска столарија у свакој некретнини, модеран систем засенчења за терасе, италијанске плочице и камен у спољашњим просторима, подне облоге итд.
На територији комплекса:
отворени базен са простором за опуштање;
фитнес и сауна;
бар и простор за роштиљ;
игралиште;
паркинг.
Око базена има пуно лежаљки и сунцобрана за опуштање. Близина мора, планинских брда и борова ствара невероватну атмосферу!
Одржавање комплекса - 10 евра по квадратном метру годишње.
Услугу пружа професионална компанија за управљање, чије дужности укључују:
24-часовно и целогодишње обезбеђење комплекса;
стално чишћење и брига о вашем трупу;
одржавање чистоће у заједничким просторијама комплекса, зградама и објектима за заједничку употребу;
одржавање комплекса и базена;
одржавање вашег стана током зимског периода.
За додатне информације, обратите се одговорном брокеру за ову понуду.
Стан је површине 75,77 квадратних метара, налази се на 3. спрату и има повољну оријентацију - југ/исток.
Прелеп поглед, чист морски ваздух и борова шума!
Импресивни стамбено-вирални комплекс у коме се налази некретнина требало би да буде завршен до летње сезоне 2022. године. Локација је погодна и за рекреацију и за живот, удаљена је само 3 минута од инфраструктуре летовалишта Бјала и са брзим приступом аутомобилом до града Обзора.
Пројекат се састоји од 2 бутик зграде, смештене на самој обали мора, а до плаже се стиже сликовитом стазом - стеновитом обалом међу боровом шумом. У близини се налазе хотели са пет звездица, који имају сву потребну инфраструктуру за потпун одмор (продавнице, ресторани, фитнес центри, СПА салони), као и потпуно опремљене простране плаже, којима је, према бугарском законодавству, приступ отворен за све посетиоце.
Оријентисане ка мору, у непосредној близини једне од најлепших пешчаних плажа на обали Црног мора, чија ширина достиже и до 60 метара, зграде су пројектоване на пет спратова и укључују простране апартмане са предивним погледом на море чак и са првог спрата.
Конструкција је израђена од висококвалитетних материјала, у складу са најновијим трендовима узимајући у обзир поморску климу, са модерном фасадом и додатним елементима: немачки HPL панели, иновативна француска столарија у свакој некретнини, модеран систем засенчења за терасе, италијанске плочице и камен у спољашњим просторима, подне облоге итд.
На територији комплекса:
отворени базен са простором за опуштање;
фитнес и сауна;
бар и простор за роштиљ;
игралиште;
паркинг.
Око базена има пуно лежаљки и сунцобрана за опуштање. Близина мора, планинских брда и борова ствара невероватну атмосферу!
Одржавање комплекса - 10 евра по квадратном метру годишње.
Услугу пружа професионална компанија за управљање, чије дужности укључују:
24-часовно и целогодишње обезбеђење комплекса;
стално чишћење и брига о вашем трупу;
одржавање чистоће у заједничким просторијама комплекса, зградама и објектима за заједничку употребу;
одржавање комплекса и базена;
одржавање вашег стана током зимског периода.
За додатне информације, обратите се одговорном брокеру за ову понуду.
РАСПРОДАЈА
ПРОЈЕКАТ
Бутик комплекс са новим становима на обали мора
Byala (Varna) / Varna / Бугарска мапа
Цене некретнина: 35 140 - 206 288 €
Цене по м²: 950 - 1 600 €/м²
РАСПРОДАЈА
ПРОЈЕКАТ
Стан по систему „кључ у руке“ у бутик комплексу поред мора у граду Бјала
Byala (Varna) / Varna / Бугарска мапа
Подручје: 70.61 м²
Цена: 102 385 € /// 1 450 €/м²
Byala (Varna) / Varna / Бугарска мапа
Цене некретнина: 100 848 - 136 528 €
Цене по м²: 1 200 - 1 400 €/м²
Изаберите ову опцију и обавестићемо вас имејлом ако дође до било каквих промена у статусу понуде, на пример:
• Промена цене;
• Некретнина је ушла у промотивну понуду;
• Некретнина је резервисана или продата;
• Остале вести везане за некретнину.
• Некретнина је уклоњена из продаје;
Можете се лако одјавити са обавештења кад год желите.• Измене услова понуде;
• Промена износа инвестиције;
• Предмет инвестиције је у потпуности реализован;
• Понуда је истекла.
Можете се лако одјавити ако у будућности одлучите да више не желите да пратите ову понуду.



...Као доказани стручњак, Стоунхард ПРЕМИЕР ради на тржишном позиционирању и продаји бројних нових грађевинских пројеката, чију су нам реализацију повериле водеће предузетничке компаније у Бугарској и иностранству...