REF#SOF-135323
/
Dvosobni stanovi
/
Realizirani projekti
/
Sofia
/
Malinova Dolina
/
Sofia
/
Бугарска
na karti
Cena:
208 535 € (bez PDV-a) (2 042 €/m2 (bez PDV-a))
*Ukazane cene i dostupnosti od slobodnih nekretnina u projektu su indikativne. Za aktuelne cenovne informacije, molimo vas da nas kontaktirate!
Ref. Broj: SOF-135323 / 4218
Lokacija: Malinova Dolina / Sofia karta
Tip na zgrada/kompleks: Stambeni
Klas na zgradi/kompleksu: Visok standard
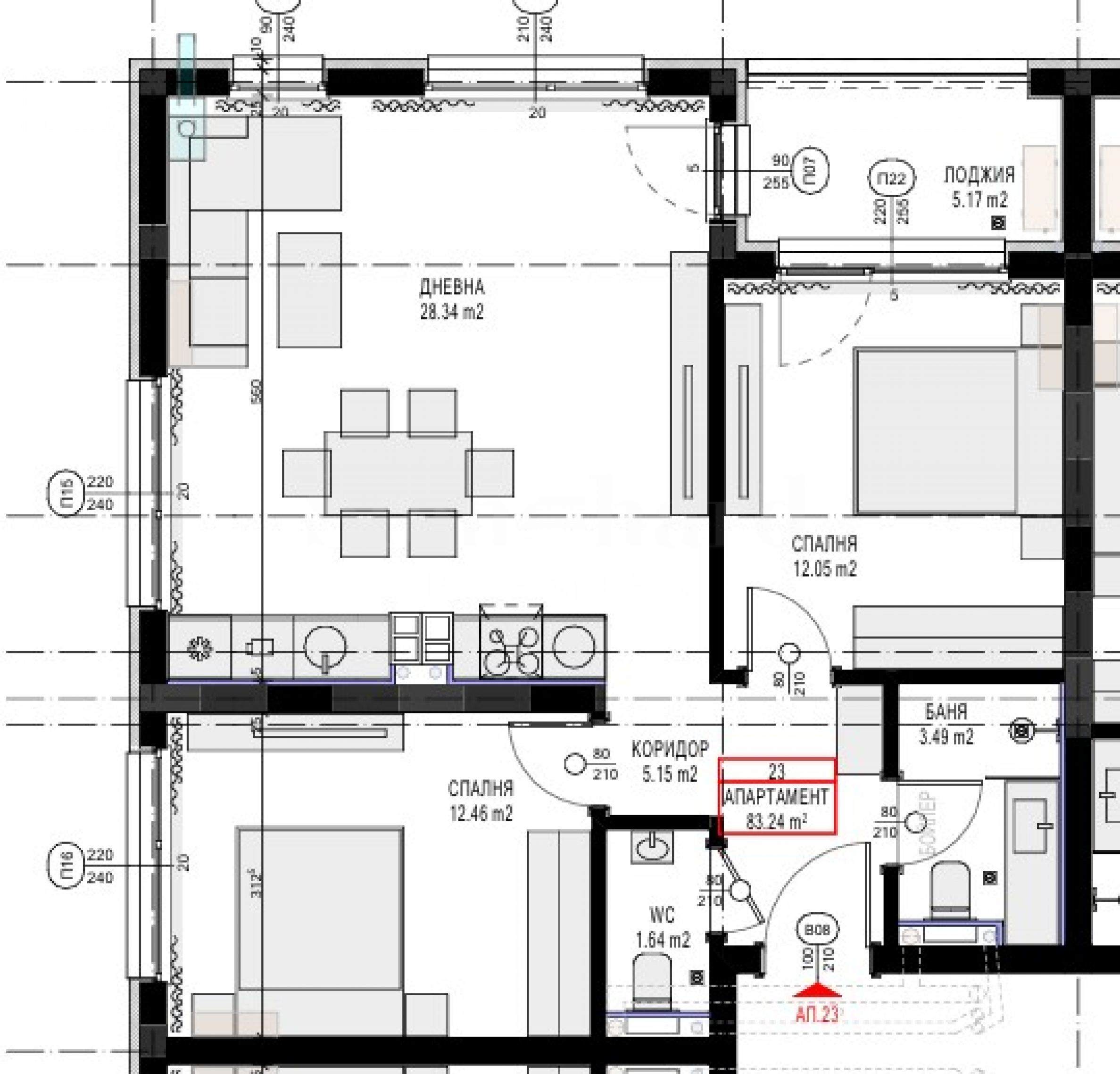
Površine stanova: 102.14 m2
Tipovi nekretnina u zgradi/kompleksu: Dvosobni stanovi
Ref. Broj: SOF-135323 / 4218
Lokacija: Malinova Dolina / Sofia
Tip na zgrada/kompleks: Stambeni
Klas na zgradi/kompleksu: Visok standard
Površine stanova: 102.14 m2
Tipovi nekretnina u zgradi/kompleksu: Dvosobni stanovi
Mesto na karti
PRODAŽBA
PROJEKAT
Dizajnerski tristaen apartman u prestižnoj zgradi A3
Manastirski Livadi - East / Sofia / Sofia / Бугарска karta
Plošča: 165 m2
Cena: 630 000 € /// 3 818 €/m2
Malinova Dolina / Sofia / Sofia / Бугарска karta
Cene na imovinu: 73 000 - 212 000 €
Cene po m²: 1 738 - 1 933 €/m2
Nov kompleks s različitim tipovima apartmana u kv. "Manastirski livadi – Istok"
Manastirski Livadi - East / Sofia / Sofia / Бугарска karta
Cene na imovinu: 183 906 - 449 314 € (bez PDV-a)
Cene po m²: 2 600 - 2 600 €/m2 (bez PDV-a)
Izaberite ovu opciju i obaveštavaćemo Vas putem imejla o promenama statusa ponude, na primer:
• Promena cene;
• Nekretnina je ušla u promotivnu ponudu;
• Nekretnina je rezervisana ili prodata;
• Druge novosti vezane za nekretninu.
• Nekretnina je skinuta sa prodaje;
Možete se lako odjaviti sa notifikacija kad god poželite.• Promene uslova ponude;
• Promena iznosa investicije;
• Predmet investicije je u potpunosti realizovan;
• Važenje ponude je isteklo.
Možete se lako odjaviti ako u budućnosti odlučite da više ne želite da pratite ovu ponudu.
Da biste dobili apsolutno tačne informacije o slobodnim nekretninama dostupnim za prodaju u projektu i njihovim aktuelnim cenama, molimo vas da kontaktirate našu kancelariju na navedene kontakt informacije.
Trudimo se da naše cenovnike održavamo apsolutno aktuelnim i tačnim, ali često to nije moguće zbog velikog broja novih projekata u našem katalogu i snažne dinamike prodaje.
Hvala vam na razumevanju!



...Kao dokazani stručnjak Stonehard PREMIER radi na tržišnom pozicioniranju i prodaji brojnih projekata novogradnje, čija je realizacija poverena od strane vodećih preduzetničkih kompanija u Bugarskoj i inostranstvu...