Mnogoetažni apartman sa pogledom na more u Sv. Sv. Konstantin i Elena
Cena:
1 000 000 € (4 274 €/m2)
*Ukazane cene i dostupnosti od slobodnih nekretnina u projektu su indikativne. Za aktuelne cenovne informacije, molimo vas da nas kontaktirate!
Ref. Broj: VAR-129073 / 4199
Lokacija: St. Constantine and Elena karta
Tip na zgrada/kompleks: Stambeni
Površine stanova: 234 m2
Tipovi nekretnina u zgradi/kompleksu: Veliki stanovi
Ref. Broj: VAR-129073 / 4199
Lokacija: St. Constantine and Elena
Tip na zgrada/kompleks: Stambeni
Klas na zgradi/kompleksu:
Površine stanova: 234 m2
Tipovi nekretnina u zgradi/kompleksu: Veliki stanovi
Zgrada je uvedena u upotrebu (sa Akt 16).
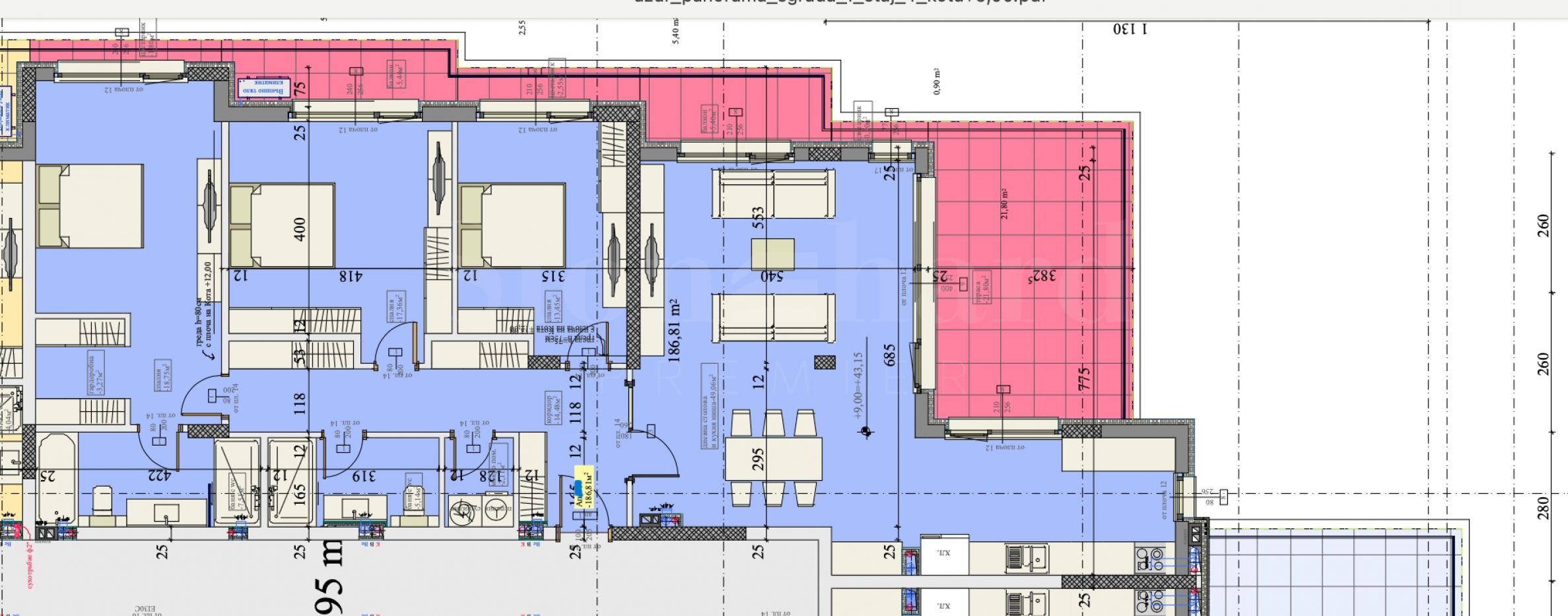
Parametri nekretnine
Stan sa ukupnom površinom od 234 m² nalazi se na 4. spratu od 6 i ima sledeću raspodelu:
hodnik sa mestom za dva velika garderobera - 14.4 m²;
dnevni boravak sa kuhinjskim kutkom i trpezarijom - 49 m²;
dečija soba - 13.45 m²;
spavaća soba - 17.36 m²;
roditeljska spavaća soba - 18.75 m² sa garderoberom - 3.27 m² i kupatilom sa toaletom - 7.5 m²;
vešernica - 2.11 m²;
drugo kupatilo sa toaletom - 5.1 m²;
tri terase - jedna od njih sa površinom od 21.80 m², a druge dve po 5.40 m² svaka.Apartman će biti završen do ključa. Uz nekretninu mogu se dodatno kupiti dva zatvorena parking mesta.
Godišnja taksa održavanja sa dva parking mesta iznosi 4018 evra sa uključenim PDV-om.
Lepa morska panorama, sunčan i udoban dom, mir i neuporedivo čist vazduh - to će dobiti vlasnici apartmana. Nastojanje investitora izvođača kompleksa je da doprinese boljem životnom standardu i zato se oslanja na savremeni dizajn, funkcionalne stanove, bogatu prateću infrastrukturu, prateće usluge upravljanja i održavanja zgrada.
Očekujemo Vaš upit
Ako želite da organizujete razgledanje nekretnine koja Vas interesuje ili da posetite neku od naših kancelarija, molimo Vas da nas kontaktirate. Da biste dogovorili dan i vreme za sastanak ili razgledanje, možete pozvati broj telefona naveden u oglasu ili poslati upit putem elektronske pošte. Naš konsultant će Vam pomoći sa svim potrebnim detaljima i dogovoriti Vam pogodno vreme.
Tražite odgovarajuću nekretninu za Vas?
Ne oklevajte da nas kontaktirate i ispričate nam o Vašim potrebama i preferencijama. Naš tim će sprovesti detaljno istraživanje tržišta kako bi Vam ponudio nekretnine koje tačno odgovaraju Vašim kriterijumima. Raspolažemo sa izuzetnim portfoliom visokokvalitetnih i ekskluzivnih stanova, koji su dostupni samo našim klijentima. Da biste bili prvi koji će dobiti informacije o njima – kontaktirajte nas.
Dodatne usluge
Kao cenjeni klijent naše kompanije, imaćete privilegiju da potpuno besplatno koristite usluge našeg iskusnog pravnog tima. Pored toga, nudimo kompleksna rešenja koja uključuju imovinsko osiguranje, besplatne finansijske konsultacije, kao i povoljne uslove za finansiranje. Naše usluge se prostiru i na oblast preprodaje, izdavanja u zakup i upravljanja nekretninama. Obavljamo visokokvalitetne radove na popravkama i opremanju preko specijalizovanih firmi koje su deo naše korporativne grupe i naši su dugogodišnji profesionalni partneri.
Mesto na karti
Apartmani u elegantnom kompleksu sa medicinskom orijentacijom u Sv. Sv. Konstantin i Elena
St. Constantine and Elena / Varna / Бугарска karta
Klas na zgradi: Luksuozan
Cene na imovinu: 301 532 - 938 141 €
Cene po m²: 3 500 - 4 440 €/m2
PRODAŽBA
PROJEKAT
Mnogostean penthaus s panoramnom gledkom ka moru u Sv. Sv. Konstantin i Elena
St. Constantine and Elena / Varna / Бугарска karta
Plošča: 197 m2
Cena: 900 000 € /// 4 569 €/m2
PRODAŽBA
PROJEKAT
St. Constantine and Elena / Varna / Бугарска karta
Plošča: 331.37 m2
Cena: CENA NA UPIT ///
Izaberite ovu opciju i obaveštavaćemo Vas putem imejla o promenama statusa ponude, na primer:
• Promena cene;
• Nekretnina je ušla u promotivnu ponudu;
• Nekretnina je rezervisana ili prodata;
• Druge novosti vezane za nekretninu.
• Nekretnina je skinuta sa prodaje;
Možete se lako odjaviti sa notifikacija kad god poželite.• Promene uslova ponude;
• Promena iznosa investicije;
• Predmet investicije je u potpunosti realizovan;
• Važenje ponude je isteklo.
Možete se lako odjaviti ako u budućnosti odlučite da više ne želite da pratite ovu ponudu.
Da biste dobili apsolutno tačne informacije o slobodnim nekretninama dostupnim za prodaju u projektu i njihovim aktuelnim cenama, molimo vas da kontaktirate našu kancelariju na navedene kontakt informacije.
Trudimo se da naše cenovnike održavamo apsolutno aktuelnim i tačnim, ali često to nije moguće zbog velikog broja novih projekata u našem katalogu i snažne dinamike prodaje.
Hvala vam na razumevanju!



...Kao dokazani stručnjak Stonehard PREMIER radi na tržišnom pozicioniranju i prodaji brojnih projekata novogradnje, čija je realizacija poverena od strane vodećih preduzetničkih kompanija u Bugarskoj i inostranstvu...