Cena:
89 425 € (bez PDV-a) (1 250 €/m2 (bez PDV-a))
*Ukazane cene i dostupnosti od slobodnih nekretnina u projektu su indikativne. Za aktuelne cenovne informacije, molimo vas da nas kontaktirate!
Ref. Broj: STO-128755 / 4138
Lokacija: Bansko karta
Tip na zgrada/kompleks: Stambeni
Klas na zgradi/kompleksu: Standardan
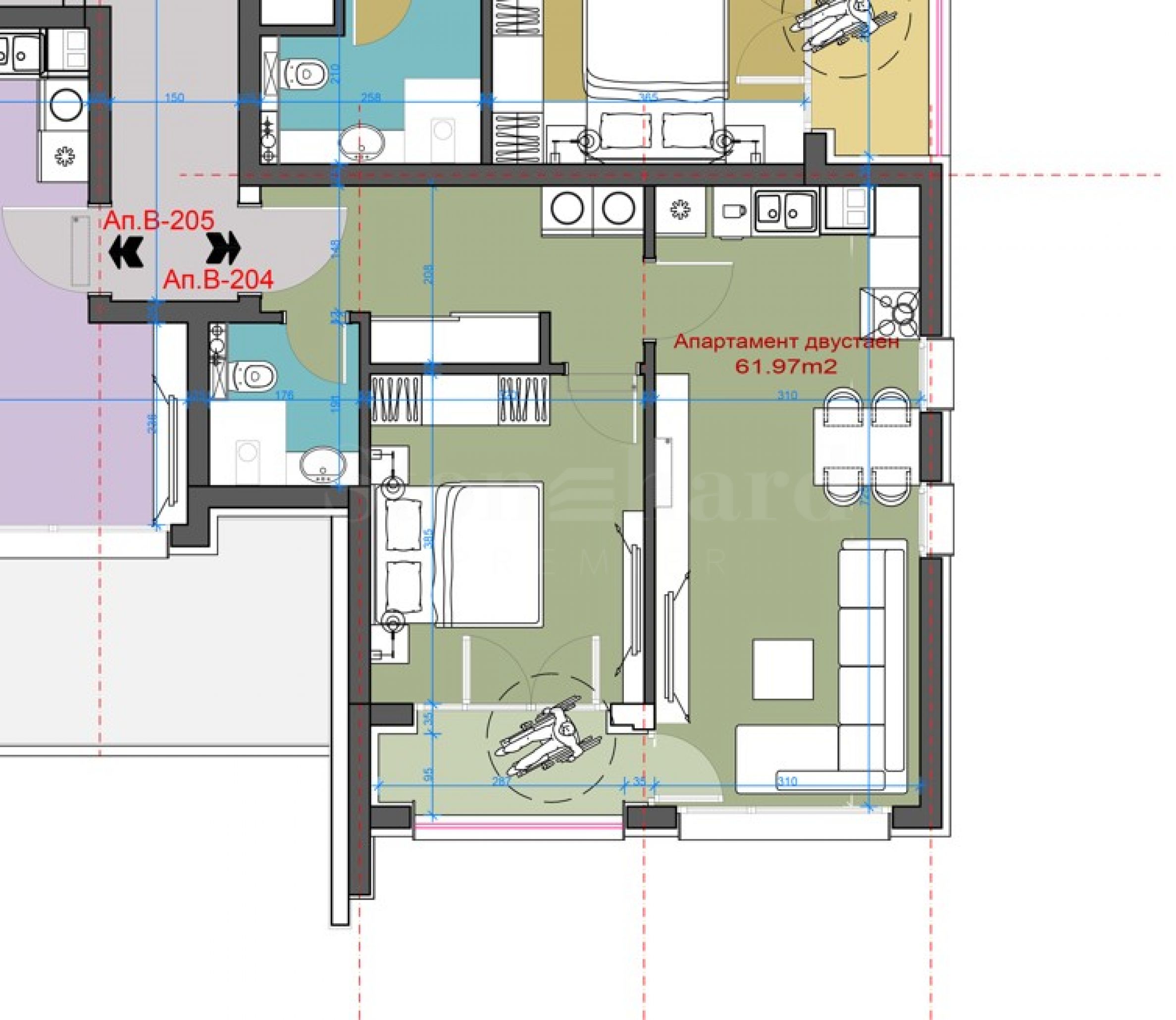
Površine stanova: 71.54 m2
Tipovi nekretnina u zgradi/kompleksu: Jednosobni stanovi
Ref. Broj: STO-128755 / 4138
Lokacija: Bansko
Tip na zgrada/kompleks: Stambeni
Klas na zgradi/kompleksu: Standardan
Površine stanova: 71.54 m2
Tipovi nekretnina u zgradi/kompleksu: Jednosobni stanovi
Mesto na karti
PRODAŽBA
PROJEKAT
Dvosoban apartman sa balkonom u novom luksuznom kompleksu na 350 m od Ski zona u Banskom
Bansko / Blagoevgrad / Бугарска karta
Plošča: 67.76 m2
Cena: 94 864 € /// 1 400 €/m2
PRODAŽBA
PROJEKAT
Južen dvostan apartman sa balkonom u novom luksuznom kompleksu na 350 m od Ski zona u Banskom
Bansko / Blagoevgrad / Бугарска karta
Plošča: 63.89 m2
Cena: 95 835 € /// 1 500 €/m2
PRODAŽBA
PROJEKAT
Dvostean apartman sa balkonom i sa lepim pogledom u kompleksu Panorama
Bansko / Blagoevgrad / Бугарска karta
Plošča: 53.52 m2
Cena: 65 000 € /// 1 214 €/m2
Izaberite ovu opciju i obaveštavaćemo Vas putem imejla o promenama statusa ponude, na primer:
• Promena cene;
• Nekretnina je ušla u promotivnu ponudu;
• Nekretnina je rezervisana ili prodata;
• Druge novosti vezane za nekretninu.
• Nekretnina je skinuta sa prodaje;
Možete se lako odjaviti sa notifikacija kad god poželite.• Promene uslova ponude;
• Promena iznosa investicije;
• Predmet investicije je u potpunosti realizovan;
• Važenje ponude je isteklo.
Možete se lako odjaviti ako u budućnosti odlučite da više ne želite da pratite ovu ponudu.
Da biste dobili apsolutno tačne informacije o slobodnim nekretninama dostupnim za prodaju u projektu i njihovim aktuelnim cenama, molimo vas da kontaktirate našu kancelariju na navedene kontakt informacije.
Trudimo se da naše cenovnike održavamo apsolutno aktuelnim i tačnim, ali često to nije moguće zbog velikog broja novih projekata u našem katalogu i snažne dinamike prodaje.
Hvala vam na razumevanju!



...Kao dokazani stručnjak Stonehard PREMIER radi na tržišnom pozicioniranju i prodaji brojnih projekata novogradnje, čija je realizacija poverena od strane vodećih preduzetničkih kompanija u Bugarskoj i inostranstvu...