Двухкомнатная квартира в элитном доме рядом с сосновым лесом в Панчарево
Цена:
210 189 € (без НДС) (2 208 €/м 2 (без НДС))
*Цены и наличие свободных площадей в проекте указаны ориентировочно. Для получения актуальной информации о ценах, пожалуйста, свяжитесь с нами!
Ссылка. Число: STO-133172 / 4600
Расположение: Панчарево карта
Тип здания/комплекса: Жилой
Класс здания/комплекса: Высокий стандарт
Жилые районы: 95.18 м 2
Типы объектов недвижимости в здании/комплексе: Трёхкомнатные квартиры
Ссылка. Число: STO-133172 / 4600
Расположение: Панчарево
Тип здания/комплекса: Жилой
Класс здания/комплекса: Высокий стандарт
Жилые районы: 95.18 м 2
Типы объектов недвижимости в здании/комплексе: Трёхкомнатные квартиры
Расположение живописное и удобное, всего в нескольких минутах от Софии и в непосредственной близости от озера Панчарево, в районе открытой оперной сцены и зоны для каякинга. Район обладает отличной инфраструктурой – в шаговой доступности находятся парк с детскими площадками, детский сад и школа. До «Самоковского шоссе» можно быстро и легко добраться, а остановка общественного транспорта и магазин Lidl находятся всего в нескольких минутах езды на автомобиле.
БЕЗ КОМИССИИ.
Строительство началось в августе 2025 года.
Срок реализации - 2 года.
Указанная цена не включает НДС.
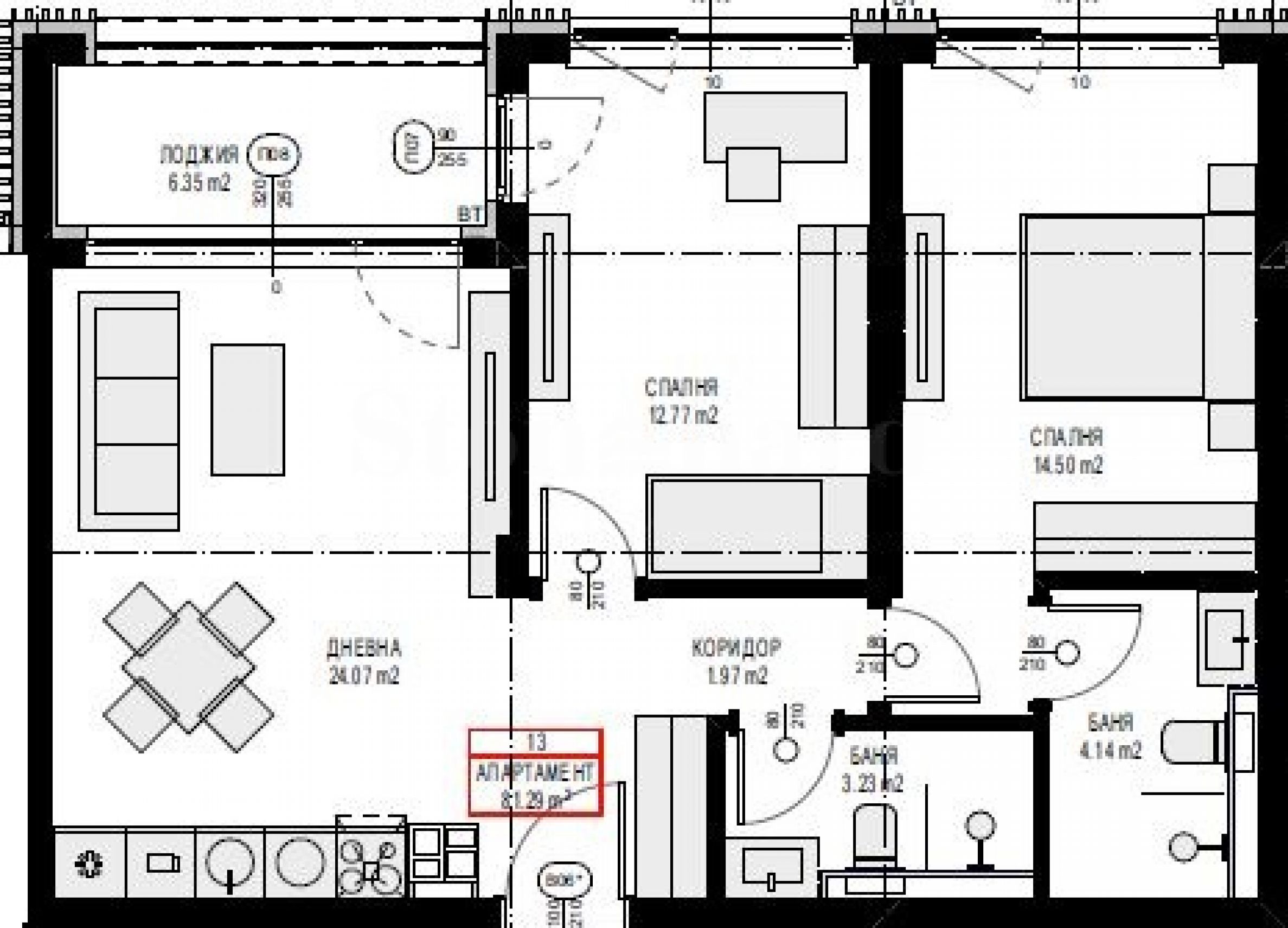
Квартира № 13 расположена на 3-м этаже, выходит окнами на запад и имеет общую площадь 95,18 м2.
Распределение:
• вестибюль/коридор;
• две спальни;
• Две ванные комнаты с туалетами;
• Гостиная с кухней и столовой;
• Терраса с выходом из гостиной и одной из спален.
Архитектурная концепция
Здание представляет собой современный архитектурный жест уважения к природе – форма, которая не доминирует, а созерцает. Проект был разработан известной и отмеченной наградами архитектурной фирмой STUDIO CREATIVE.
Расположенный среди зелени и тишины, он не навязывает себя ландшафту, а тихо вписывается в него – с точными горизонталями, темными вертикалями, подобными теням деревьев, и большими проемами, которые являются не просто окнами, а порталами в спокойствие. Пространства внутри и снаружи свободно перетекают друг в друга – архитектура находится в диалоге со светом, временами года и временем. Это не просто дом, а состояние равновесия, которое ощущается, а не декларируется.
Высококачественные материалы
Здание, спроектированное с вниманием к деталям и с учетом экологических требований, будет построено по самым высоким стандартам: алюминиевые оконные рамы с тройным остеклением, высококачественная теплоизоляция, фасад с натуральными деревянными элементами ARTEFINO, подогрев полов и интеллектуальная система видеонаблюдения с функциями обнаружения риска пожара, затопления или опасности для жильцов.
Квартиры
Квартиры включают три спальни и одну четырехкомнатную. По данным BDS, они предлагаются в частично готовом виде. Из окон квартир открывается вид на озеро или живописный сосновый лес за зданием, поскольку территория полностью окружена зеленью и уже застроена пригодными для проживания домами, без риска строительства в будущем поблизости.
В здании предлагаются в аренду подземные парковочные места и гаражи.
Схемы оплаты
Стандартная схема:
30% при подписании контракта (первоначальный взнос);
30% на Закон 14;
30% на Закон 15;
10% на Закон 16.
Кредитная схема:
10% при подписании контракта;
60% за Акт 14;
20% на Закон 15;
10% на Закон 16.
Инвестиционная программа (скидка -2%):
50% при подписании контракта;
20% на Закон 14;
20% на Закон 15;
10% на Закон 16.
Схема «Супер Инвестиции» (скидка -3%):
80% при подписании контракта;
20% на Закон 16.
Программа «Мир» (+8% к цене):
20% при подписании контракта;
80% в 16 акте.
Мы с нетерпением ждём вашего запроса.
Если вы хотите договориться о просмотре интересующего вас объекта недвижимости или посетить один из наших офисов, пожалуйста, свяжитесь с нами. Чтобы согласовать день и время встречи или просмотра, вы можете позвонить по номеру телефона, указанному в объявлении, или отправить запрос по электронной почте. Наш консультант поможет вам со всеми необходимыми деталями и согласует удобное для вас время.
Вы ищете подходящую недвижимость?
Не стесняйтесь обращаться к нам и рассказывать о ваших потребностях и предпочтениях. Наша команда проведет тщательное исследование рынка, чтобы предложить вам объекты недвижимости, точно соответствующие вашим критериям. У нас есть исключительное портфолио высококачественных и эксклюзивных домов, доступных только нашим клиентам. Чтобы первыми получать информацию о них – свяжитесь с нами.
Дополнительные услуги
Как ценный клиент нашей компании, вы получите привилегию пользоваться услугами нашей опытной юридической команды совершенно бесплатно. Кроме того, мы предлагаем комплексные решения, включая страхование недвижимости, бесплатные финансовые консультации, а также выгодные условия финансирования. Наши услуги также распространяются на сферу перепродажи, аренды и управления недвижимостью. Мы предоставляем высококачественные услуги по ремонту и меблировке через специализированные компании, входящие в нашу корпоративную группу и являющиеся нашими давними профессиональными партнерами.
Смотр недвижимости
Мы готовы организовать смотр недвижимости в удобное для вас время. Обратитесь к ответственному менеджеру по продажам и проинформируйте его, когда бы Вы хотели приехать на смотровой тур. Мы можем помочь Вам забронировать авиабилет и отель, а также помочь Вам оформить визу и необходимую страховку.
Бронирование недвижимости
Вы можете забронировать недвижимость, заплатив невозмещаемый задаток в размере 2 000 евро наличным платежом, кредитной картой или банковским переводом на фирменный счет компании. После получения задатка недвижимость бронируется, осмотры с другими потенциальными покупателями производиться не будут, и начнется изготовление необходимых документов по оформлению сделки. Пожалуйста, обратитесь к ответственному за данный объект менеджеру по продажам для получения подробной информации относительно процедуры покупки и способов оплаты.
Послепродажное обслуживание
Мы уважаемая компания, за плечами которой многолетний опыт работы в сфере недвижимости. Мы будем сопровождать Вас не только во время покупки, но и после приобретения недвижимости, обеспечивая Вам дополнительный набор услуг с учетом Ваших требовании, для того, чтобы Вы могли насладиться полноценным и спокойным времяпровождением в Болгарии. Услуги, которые мы можем предложить, включают страхование, строительство и ремонт, услуги по меблировке, бухгалтерские и юридическиe услуги, переоформление договоров на электричество, воду, телефон и многое другое.
Расположение на карте
Lake IT - квартиры в эксклюзивном новом доме рядом с озером Панчарево
Панчарево / София / Болгария карта
Класс здания: Высокий стандарт
Цены на недвижимость: 202 258 - 282 446 € (без НДС)
Цены за м²: 2 036 - 2 208 €/м 2 (без НДС)
ПРОДАЖА
ПРОЕКТ
Трехкомнатная квартира с фронтальным видом на Панчаревское озеро
Панчарево / София / Болгария карта
Область: 300 м 2
Цена: 1 200 000 € /// 4 000 €/м 2
Выберите эту опцию, и мы уведомим вас по электронной почте в случае каких-либо изменений в статусе предложения, например:
• Изменение цены;
• Объект недвижимости попал в рекламное предложение;
• Имущество зарезервировано или продано;
• Другие новости, связанные с недвижимостью.
• Имущество снимается с продажи;
Вы можете легко отписаться от уведомлений в любое время.• Изменения условий предложения;
• Изменение размера инвестиций;
• Объект инвестиции полностью реализован;
• Срок действия предложения истек.
Вы сможете легко отказаться от подписки, если в будущем решите, что больше не хотите следовать этому предложению.
Для получения абсолютно корректной информации о свободных объектах недвижимости, выставленных на продажу в проекте, и их актуальных ценах, пожалуйста, свяжитесь с нашим офисом по указанным контактам.
Мы прилагаем все усилия, чтобы наши прайс-листы были абсолютно актуальными и правильными, но зачастую это невозможно, учитывая большое количество новых проектов в нашем каталоге и высокую динамику продаж.
Благодарим за понимание!



...Как проверенный специалист, Stonehard PREMIER работает над позиционированием на рынке и продажами многочисленных новых строительных проектов, реализацию которых нам доверили ведущие предпринимательские компании в Болгарии и за рубежом...