Ссылка. Число: LXH-124389
Расположение: Несебр карта
Тип здания/комплекса: Жилой
Жилые районы: 64.55 м 2
Типы объектов недвижимости в здании/комплексе: Двухкомнатные квартиры
Ссылка. Число: LXH-124389
Расположение: Несебр
Тип здания/комплекса: Жилищен
Класс здания/комплекса:
Жилые районы: 64.55 м 2
Типы объектов недвижимости в здании/комплексе: Двухкомнатные квартиры
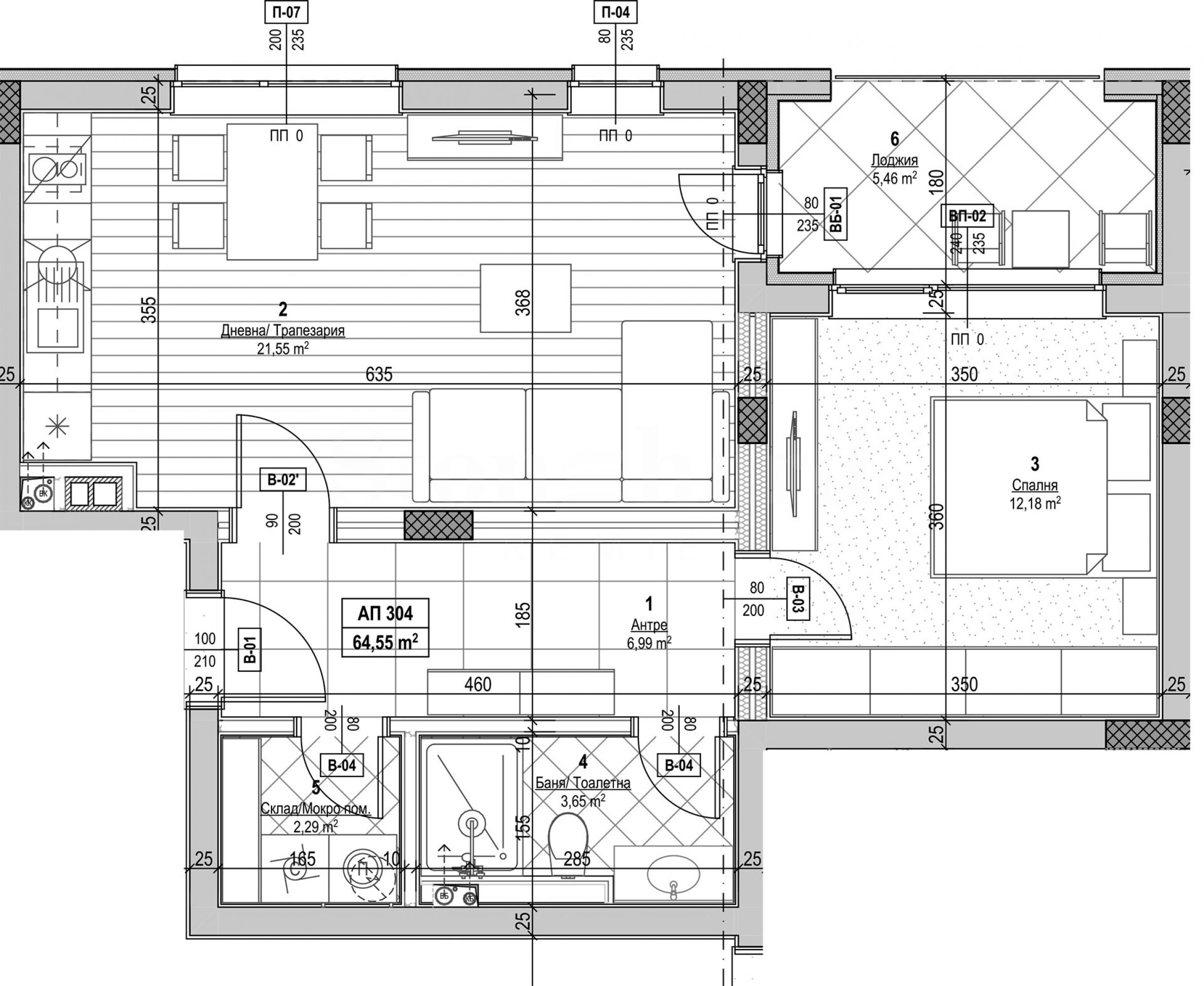
Недвижимость общей площадью 64,55 кв. метров., расположена на 3 этаже с видом на море.
Распределение:
прихожая;
гостиная с кухней;
спальня;
ванная комната с туалетом;
склад;
терраса Квартира продается в состоянии завершенности по БДС, с возможностью отделки «под ключ» и меблировкой с различными вариантами привлекательного внутреннего дизайна.
*Фотографии носят иллюстративный характер.
Никакой платы за обслуживание!
Расположение очень тихое, прямо на берегу моря, с быстрым доступом к Старому городу и всем городским удобствам. Ближайший пляж находится примерно в 400 метрах или в 5 минутах ходьбы.
Номинация в PIPA
Современное здание было номинировано на участие в престижном международном конкурсе PIPA.
Премия Porcelanosa International Project Award — престижный конкурс, организованный группой Porcelanosa, ведущим испанским производителем керамической плитки, кухонного оборудования и оборудования для ванных комнат. Цель конкурса — признание выдающихся архитектурных и интерьерных проектов во всем мире, демонстрирующих инновационное использование продуктов и материалов PORCELANOSA.
Девиз EARTHCRAFTED DESIGNS – дизайн, вдохновленный природой!
Идея состоит в том, чтобы поощрять творчество и самобытность архитектурного дизайна, подчеркивая связь между материалами, полученными из природы, и техническими навыками, которые превращают пространство в произведение искусства.
Квартиры
Здание состоит из четырех жилых этажей и подвала с подземным гаражом.
В комплексе имеются роскошные помещения общего пользования, лифт испанского производителя ORONA и помещение для общих нужд на первом этаже здания, а также озеленение прилегающих частей.
Фасадная отделка здания выполнена фасадной керамикой PORCELANOSA.
На цокольном этаже комплекса расположены 7 гаражей, 5 парковочных мест и 3 кладовки разной площади.
*Есть возможность приобретения парковочных мест.
Квартиры представляют собой двух- и трехкомнатные дома, практичной планировки и просторных комнат. С каждого этажа открывается живописная морская панорама, а преобладающее воздействие дневного хода солнца, а также панорамные окна предполагают естественное освещение в жилищах.
Мы ждем вашего запроса
Если вы хотите организовать просмотр интересующей вас недвижимости или посетить один из наших офисов, пожалуйста, свяжитесь с нами. Чтобы согласовать день и время встречи или осмотра, вы можете позвонить по телефону, указанному в объявлении, или отправить запрос на электронную почту. Наш консультант поможет Вам уточнить все необходимые детали и согласовать удобное для Вас время.
Вы ищете подходящую недвижимость для вас?
Не стесняйтесь обращаться к нам и рассказывать о своих потребностях и предпочтениях. Наша команда проведет тщательное исследование рынка, чтобы предложить вам недвижимость, которая точно соответствует вашим критериям. У нас есть исключительное портфолио высококачественных и эксклюзивных домов, которые доступны только нашим клиентам. Чтобы первыми получать информацию о них - свяжитесь с нами.
Дополнительные услуги
Как ценный клиент нашей компании, вы будете иметь возможность совершенно бесплатно воспользоваться услугами нашей опытной команды юристов. Кроме того, мы предлагаем комплексные решения, включающие страхование имущества, бесплатную финансовую консультацию, а также выгодные условия финансирования. Наши услуги также распространяются на перепродажу, аренду и управление недвижимостью. Мы осуществляем качественные ремонтные работы и меблировку через специализированные компании, входящие в нашу корпоративную группу и являющиеся нашими многолетними профессиональными партнерами.
Смотр недвижимости
Мы готовы организовать смотр недвижимости в удобное для вас время. Обратитесь к ответственному менеджеру по продажам и проинформируйте его, когда бы Вы хотели приехать на смотровой тур. Мы можем помочь Вам забронировать авиабилет и отель, а также помочь Вам оформить визу и необходимую страховку.
Бронирование недвижимости
Вы можете забронировать недвижимость, заплатив невозмещаемый задаток в размере 2 000 евро наличным платежом, кредитной картой или банковским переводом на фирменный счет компании. После получения задатка недвижимость бронируется, осмотры с другими потенциальными покупателями производиться не будут, и начнется изготовление необходимых документов по оформлению сделки. Пожалуйста, обратитесь к ответственному за данный объект менеджеру по продажам для получения подробной информации относительно процедуры покупки и способов оплаты.
Послепродажное обслуживание
Мы уважаемая компания, за плечами которой многолетний опыт работы в сфере недвижимости. Мы будем сопровождать Вас не только во время покупки, но и после приобретения недвижимости, обеспечивая Вам дополнительный набор услуг с учетом Ваших требовании, для того, чтобы Вы могли насладиться полноценным и спокойным времяпровождением в Болгарии. Услуги, которые мы можем предложить, включают страхование, строительство и ремонт, услуги по меблировке, бухгалтерские и юридическиe услуги, переоформление договоров на электричество, воду, телефон и многое другое.
Расположение на карте
Недвижимость общей площадью 64,55 кв. метров., расположена на 3 этаже с видом на море.
Распределение:
прихожая;
гостиная с кухней;
спальня;
ванная комната с туалетом;
склад;
терраса Квартира продается в состоянии завершенности по БДС, с возможностью отделки «под ключ» и меблировкой с различными вариантами привлекательного внутреннего дизайна.
*Фотографии носят иллюстративный характер.
Никакой платы за обслуживание!
Расположение очень тихое, прямо на берегу моря, с быстрым доступом к Старому городу и всем городским удобствам. Ближайший пляж находится примерно в 400 метрах или в 5 минутах ходьбы.
Номинация в PIPA
Современное здание было номинировано на участие в престижном международном конкурсе PIPA.
Премия Porcelanosa International Project Award — престижный конкурс, организованный группой Porcelanosa, ведущим испанским производителем керамической плитки, кухонного оборудования и оборудования для ванных комнат. Цель конкурса — признание выдающихся архитектурных и интерьерных проектов во всем мире, демонстрирующих инновационное использование продуктов и материалов PORCELANOSA.
Девиз EARTHCRAFTED DESIGNS – дизайн, вдохновленный природой!
Идея состоит в том, чтобы поощрять творчество и самобытность архитектурного дизайна, подчеркивая связь между материалами, полученными из природы, и техническими навыками, которые превращают пространство в произведение искусства.
Квартиры
Здание состоит из четырех жилых этажей и подвала с подземным гаражом.
В комплексе имеются роскошные помещения общего пользования, лифт испанского производителя ORONA и помещение для общих нужд на первом этаже здания, а также озеленение прилегающих частей.
Фасадная отделка здания выполнена фасадной керамикой PORCELANOSA.
На цокольном этаже комплекса расположены 7 гаражей, 5 парковочных мест и 3 кладовки разной площади.
*Есть возможность приобретения парковочных мест.
Квартиры представляют собой двух- и трехкомнатные дома, практичной планировки и просторных комнат. С каждого этажа открывается живописная морская панорама, а преобладающее воздействие дневного хода солнца, а также панорамные окна предполагают естественное освещение в жилищах.
Мы ждем вашего запроса
Если вы хотите организовать просмотр интересующей вас недвижимости или посетить один из наших офисов, пожалуйста, свяжитесь с нами. Чтобы согласовать день и время встречи или осмотра, вы можете позвонить по телефону, указанному в объявлении, или отправить запрос на электронную почту. Наш консультант поможет Вам уточнить все необходимые детали и согласовать удобное для Вас время.
Вы ищете подходящую недвижимость для вас?
Не стесняйтесь обращаться к нам и рассказывать о своих потребностях и предпочтениях. Наша команда проведет тщательное исследование рынка, чтобы предложить вам недвижимость, которая точно соответствует вашим критериям. У нас есть исключительное портфолио высококачественных и эксклюзивных домов, которые доступны только нашим клиентам. Чтобы первыми получать информацию о них - свяжитесь с нами.
Дополнительные услуги
Как ценный клиент нашей компании, вы будете иметь возможность совершенно бесплатно воспользоваться услугами нашей опытной команды юристов. Кроме того, мы предлагаем комплексные решения, включающие страхование имущества, бесплатную финансовую консультацию, а также выгодные условия финансирования. Наши услуги также распространяются на перепродажу, аренду и управление недвижимостью. Мы осуществляем качественные ремонтные работы и меблировку через специализированные компании, входящие в нашу корпоративную группу и являющиеся нашими многолетними профессиональными партнерами.
Смотр недвижимости
Мы готовы организовать смотр недвижимости в удобное для вас время. Обратитесь к ответственному менеджеру по продажам и проинформируйте его, когда бы Вы хотели приехать на смотровой тур. Мы можем помочь Вам забронировать авиабилет и отель, а также помочь Вам оформить визу и необходимую страховку.
Бронирование недвижимости
Вы можете забронировать недвижимость, заплатив невозмещаемый задаток в размере 2 000 евро наличным платежом, кредитной картой или банковским переводом на фирменный счет компании. После получения задатка недвижимость бронируется, осмотры с другими потенциальными покупателями производиться не будут, и начнется изготовление необходимых документов по оформлению сделки. Пожалуйста, обратитесь к ответственному за данный объект менеджеру по продажам для получения подробной информации относительно процедуры покупки и способов оплаты.
Послепродажное обслуживание
Мы уважаемая компания, за плечами которой многолетний опыт работы в сфере недвижимости. Мы будем сопровождать Вас не только во время покупки, но и после приобретения недвижимости, обеспечивая Вам дополнительный набор услуг с учетом Ваших требовании, для того, чтобы Вы могли насладиться полноценным и спокойным времяпровождением в Болгарии. Услуги, которые мы можем предложить, включают страхование, строительство и ремонт, услуги по меблировке, бухгалтерские и юридическиe услуги, переоформление договоров на электричество, воду, телефон и многое другое.
Недвижимость общей площадью 64,55 кв. метров., расположена на 3 этаже с видом на море.
Распределение:
прихожая;
гостиная с кухней;
спальня;
ванная комната с туалетом;
склад;
терраса Квартира продается в состоянии завершенности по БДС, с возможностью отделки «под ключ» и меблировкой с различными вариантами привлекательного внутреннего дизайна.
*Фотографии носят иллюстративный характер.
Никакой платы за обслуживание!
Расположение очень тихое, прямо на берегу моря, с быстрым доступом к Старому городу и всем городским удобствам. Ближайший пляж находится примерно в 400 метрах или в 5 минутах ходьбы.
Номинация в PIPA
Современное здание было номинировано на участие в престижном международном конкурсе PIPA.
Премия Porcelanosa International Project Award — престижный конкурс, организованный группой Porcelanosa, ведущим испанским производителем керамической плитки, кухонного оборудования и оборудования для ванных комнат. Цель конкурса — признание выдающихся архитектурных и интерьерных проектов во всем мире, демонстрирующих инновационное использование продуктов и материалов PORCELANOSA.
Девиз EARTHCRAFTED DESIGNS – дизайн, вдохновленный природой!
Идея состоит в том, чтобы поощрять творчество и самобытность архитектурного дизайна, подчеркивая связь между материалами, полученными из природы, и техническими навыками, которые превращают пространство в произведение искусства.
Квартиры
Здание состоит из четырех жилых этажей и подвала с подземным гаражом.
В комплексе имеются роскошные помещения общего пользования, лифт испанского производителя ORONA и помещение для общих нужд на первом этаже здания, а также озеленение прилегающих частей.
Фасадная отделка здания выполнена фасадной керамикой PORCELANOSA.
На цокольном этаже комплекса расположены 7 гаражей, 5 парковочных мест и 3 кладовки разной площади.
*Есть возможность приобретения парковочных мест.
Квартиры представляют собой двух- и трехкомнатные дома, практичной планировки и просторных комнат. С каждого этажа открывается живописная морская панорама, а преобладающее воздействие дневного хода солнца, а также панорамные окна предполагают естественное освещение в жилищах.
Мы ждем вашего запроса
Если вы хотите организовать просмотр интересующей вас недвижимости или посетить один из наших офисов, пожалуйста, свяжитесь с нами. Чтобы согласовать день и время встречи или осмотра, вы можете позвонить по телефону, указанному в объявлении, или отправить запрос на электронную почту. Наш консультант поможет Вам уточнить все необходимые детали и согласовать удобное для Вас время.
Вы ищете подходящую недвижимость для вас?
Не стесняйтесь обращаться к нам и рассказывать о своих потребностях и предпочтениях. Наша команда проведет тщательное исследование рынка, чтобы предложить вам недвижимость, которая точно соответствует вашим критериям. У нас есть исключительное портфолио высококачественных и эксклюзивных домов, которые доступны только нашим клиентам. Чтобы первыми получать информацию о них - свяжитесь с нами.
Дополнительные услуги
Как ценный клиент нашей компании, вы будете иметь возможность совершенно бесплатно воспользоваться услугами нашей опытной команды юристов. Кроме того, мы предлагаем комплексные решения, включающие страхование имущества, бесплатную финансовую консультацию, а также выгодные условия финансирования. Наши услуги также распространяются на перепродажу, аренду и управление недвижимостью. Мы осуществляем качественные ремонтные работы и меблировку через специализированные компании, входящие в нашу корпоративную группу и являющиеся нашими многолетними профессиональными партнерами.
Смотр недвижимости
Мы готовы организовать смотр недвижимости в удобное для вас время. Обратитесь к ответственному менеджеру по продажам и проинформируйте его, когда бы Вы хотели приехать на смотровой тур. Мы можем помочь Вам забронировать авиабилет и отель, а также помочь Вам оформить визу и необходимую страховку.
Бронирование недвижимости
Вы можете забронировать недвижимость, заплатив невозмещаемый задаток в размере 2 000 евро наличным платежом, кредитной картой или банковским переводом на фирменный счет компании. После получения задатка недвижимость бронируется, осмотры с другими потенциальными покупателями производиться не будут, и начнется изготовление необходимых документов по оформлению сделки. Пожалуйста, обратитесь к ответственному за данный объект менеджеру по продажам для получения подробной информации относительно процедуры покупки и способов оплаты.
Послепродажное обслуживание
Мы уважаемая компания, за плечами которой многолетний опыт работы в сфере недвижимости. Мы будем сопровождать Вас не только во время покупки, но и после приобретения недвижимости, обеспечивая Вам дополнительный набор услуг с учетом Ваших требовании, для того, чтобы Вы могли насладиться полноценным и спокойным времяпровождением в Болгарии. Услуги, которые мы можем предложить, включают страхование, строительство и ремонт, услуги по меблировке, бухгалтерские и юридическиe услуги, переоформление договоров на электричество, воду, телефон и многое другое.
ПРОДАЖА
ПРОЕКТ
Двухкомнатные апартаменты с большой верандой в элитном доме в Несебре
Несебр / Бургас / Болгария карта
Область: 111.99 м 2
Цена: 240 000 € /// 2 143 €/м 2
ПРОДАЖА
ПРОЕКТ
Новые двухкомнатные квартиры в элитном доме в Несебре
Несебр / Бургас / Болгария карта
Область: 64.55 м 2
Цена: 220 000 € /// 3 408 €/м 2
ПРОДАЖА
ПРОЕКТ
Двухкомнатные квартиры с частным двором и видом на море в бутик-доме в Несебре
Несебр / Бургас / Болгария карта
Область: 77.14 м 2
Цена: 205 000 € /// 2 658 €/м 2
Выберите эту опцию, и мы уведомим вас по электронной почте в случае каких-либо изменений в статусе предложения, например:
• Изменение цены;
• Объект недвижимости попал в рекламное предложение;
• Имущество зарезервировано или продано;
• Другие новости, связанные с недвижимостью.
• Имущество снимается с продажи;
Вы можете легко отписаться от уведомлений в любое время.• Изменения условий предложения;
• Изменение размера инвестиций;
• Объект инвестиции полностью реализован;
• Срок действия предложения истек.
Вы сможете легко отказаться от подписки, если в будущем решите, что больше не хотите следовать этому предложению.



...Как проверенный специалист, Stonehard PREMIER работает над позиционированием на рынке и продажами многочисленных новых строительных проектов, реализацию которых нам доверили ведущие предпринимательские компании в Болгарии и за рубежом...