Apartament cu două camere într-o clădire modernă în cartierul "Sarafovo", Burgas
Preţ:
88 000 € (1 257 €/m²)
*Prețurile și disponibilitatea proprietăților vacante din cadrul proiectului sunt orientative. Pentru informații actualizate despre prețuri, vă rugăm să ne contactați!
Ref. Număr: LXH-138485 / 5089
Locaţie: Sarafovo / Burgas hartă
Tipul clădirii/complexului: Rezidențial
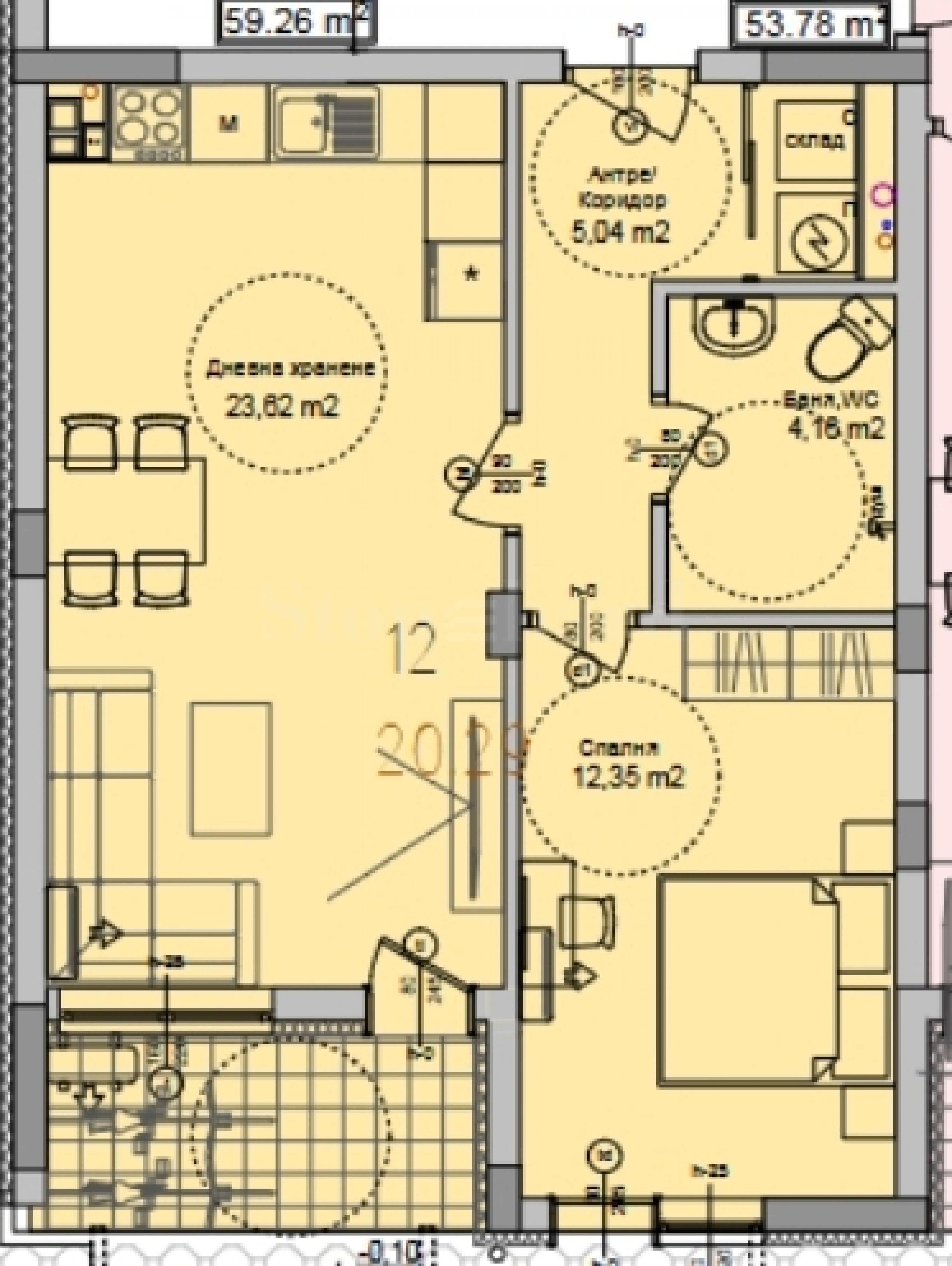
Zone de locuit: 70 m²
Tipuri de proprietăți din clădire/complex: Apartamente cu 2 camere
Ref. Număr: LXH-138485 / 5089
Locaţie: Sarafovo / Burgas
Tipul clădirii/complexului: Rezidențial
Clasa clădirii/complexului:
Zone de locuit: 70 m²
Tipuri de proprietăți din clădire/complex: Apartamente cu 2 camere
Punem în vânzare un apartament cu două camere într-o clădire nouă cu un design modern, situată în cartierul "Sarafovo", Burgas.
Locație
Locație excelentă, la 300 de metri de plajă, zonă cu infrastructură nouă, străzi noi, iluminat stradal și parc cu loc de joacă pentru copii la 150 de metri. La distanță de mers pe jos de centru, stația de autobuz, magazin alimentar și alte facilități.
Proprietatea are o suprafață totală de 70 mp, situată la etajul 1 cu următoarea compartimentare:
• antreu;
• living cu bucătărie;
• dormitor;
• baie cu toaletă;
• depozit;
• terasă.
Locuința se predă în stadiul de finisare conform BDS, cu glet și șapă.
Clădirea este proiectată pe 5 etaje, cu 20 de apartamente cu două și trei camere cu vedere spre parc și mare. Parcarea este asigurată cu un parcare mare în curte pentru 20 de mașini și parcare pentru biciclete.
Fără taxă de întreținere.
Așteptăm întrebarea dumneavoastră
Dacă doriți să organizați o vizionare a proprietății care vă interesează sau să vizitați unul dintre birourile noastre, vă rugăm să ne contactați. Pentru a stabili ziua și ora pentru întâlnire sau vizionare, puteți suna la telefonul indicat în anunț sau să trimiteți o cerere prin e-mail. Consultantul nostru vă va ajuta cu toate detaliile necesare și va stabili un timp convenabil pentru dumneavoastră.
Căutați proprietatea potrivită pentru dumneavoastră?
Nu ezitați să ne contactați și să ne povestiți despre nevoile și preferințele dumneavoastră. Echipa noastră va efectua o cercetare aprofundată a pieței pentru a vă oferi proprietăți care corespund exact criteriilor dumneavoastră. Dispunem de un portofoliu exclusiv de locuințe de înaltă calitate și exclusive, disponibile doar pentru clienții noștri. Pentru a fi printre primii care primesc informații despre acestea – contactați-ne.
Servicii suplimentare
Ca client valoros al companiei noastre, veți avea privilegiul de a beneficia gratuit de serviciile echipei noastre juridice experimentate. În plus, oferim soluții complexe, inclusiv asigurare de proprietate, consultanță financiară gratuită, precum și condiții avantajoase de finanțare. Serviciile noastre se extind și în domeniul revânzării, închirierii și administrării proprietăților. Asigurăm lucrări de reparații de înaltă calitate și mobilare prin firme specializate care fac parte din grupul nostru corporativ și sunt partenerii noștri profesioniști de lungă durată.
Locație pe hartă
Apartamente într-un complex nou modern cu destinație mixtă în Burgas
Slaveykov / Burgas / Burgas / Bulgaria hartă
Clasa de construcție: Standard înalt
Prețurile proprietăților: 97 969 - 293 161 €
Prețuri pe m²: 1 390 - 1 690 €/m²
VÂNZARE
PROIECT
Apartament cu două camere într-o clădire fără taxă de întreținere în cartierul "Sarafovo", Burgas
Sarafovo / Burgas / Burgas / Bulgaria hartă
Zonă: 88.77 m²
Preţ: 110 000 € /// 1 239 €/m²
Apartamente într-o clădire nouă, a 5-a, a complexului modern de lângă Mall Burgas Plaza
Horizont / Burgas / Burgas / Bulgaria hartă
Prețurile proprietăților: 90 000 - 207 000 €
Prețuri pe m²: 1 390 - 1 580 €/m²
Selectați această opțiune și vă vom anunța prin e-mail dacă apar modificări ale stării ofertei, de exemplu:
• Modificarea prețului;
• Proprietatea a intrat într-o ofertă promoțională;
• Proprietatea este rezervată sau vândută;
• Alte știri legate de proprietate.
• Proprietatea este scoasă de la vânzare;
Te poți dezabona cu ușurință de la notificări oricând dorești.• Modificări ale termenilor ofertei;
• Modificarea valorii investiției;
• Obiectul investiției a fost realizat integral;
• Oferta a expirat.
Vă puteți dezabona cu ușurință dacă decideți în viitor că nu mai doriți să urmați această ofertă.
Pentru a primi informații absolut corecte despre proprietățile vacante disponibile spre vânzare în cadrul proiectului și prețurile lor actuale, vă rugăm să contactați biroul nostru la informațiile de contact furnizate.
Depunem toate eforturile pentru a menține listele noastre de prețuri absolut actualizate și corecte, dar acest lucru este adesea imposibil, având în vedere numărul mare de proiecte noi din catalogul nostru și vânzările extrem de dinamice.
Vă mulțumim pentru înțelegere!



...În calitate de specialist dovedit, Stonehard PREMIER lucrează la poziționarea pe piață și la vânzările a numeroase proiecte de construcții noi, a căror implementare ne-a fost încredințată de companii antreprenoriale de top din Bulgaria și din străinătate...