Czteropokojowe mieszkanie w Beyond - budynku z udogodnieniami 100 m od morza w Kawali
Cena:
CENA NA ZAPYTANIE
*Ceny i dostępność wolnych lokali w projekcie mają charakter orientacyjny. Aby uzyskać aktualne informacje o cenach, prosimy o kontakt!
Nr ref. Numer: CH-GR-139048 / 5132
Lokalizacja: Kavala mapa
Typ budynku/kompleksu: Mieszkaniowy
Klasa budynku/kompleksu: Standard
Obszary mieszkaniowe: 150.68 m2
Rodzaje nieruchomości w budynku/kompleksie:
Nr ref. Numer: CH-GR-139048 / 5132
Lokalizacja: Kavala
Typ budynku/kompleksu: Mieszkaniowy
Klasa budynku/kompleksu: Standard
Obszary mieszkaniowe: 150.68 m2
Rodzaje nieruchomości w budynku/kompleksie:
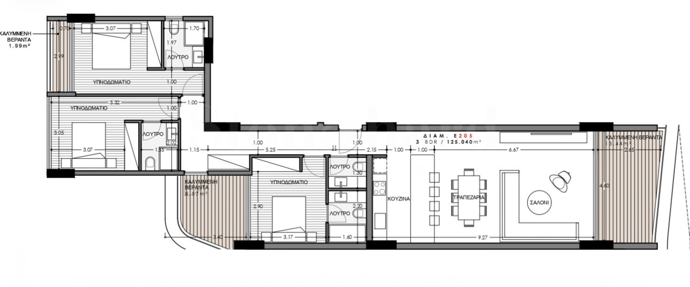
Prezentowany apartament o powierzchni całkowitej 150,68 m² znajduje się na czwartym piętrze. Układ obejmuje jasny i przestronny salon z kuchnią i jadalnią, trzy sypialnie, każda z własną łazienką, osobną toaletę dla gości, a także trzy tarasy oferujące różnorodne widoki i możliwości relaksu.
Prestiżowa lokalizacja z dużym potencjałem
Kawala to urokliwe nadmorskie miasteczko, które łączy bogate dziedzictwo kulturowe, niezwykłą architekturę i malowniczą linię brzegową. Okolica oferuje jedne z najpiękniejszych plaż – Amos, Batis, Toska i Palio, charakteryzujące się krystalicznie czystą wodą i drobnym, złotym piaskiem. Wybrzeże pełne jest przytulnych pubów i restauracji z panoramicznymi widokami, w których można delektować się świeżą kuchnią śródziemnomorską lub orzeźwiającym greckim frappe.
Budynek położony jest w doskonałej, centralnej lokalizacji, niecałe 100 metrów od morza. Oprócz pięknych widoków na wybrzeże, zapewnia szybki dostęp do centrum miasta, a także liczne udogodnienia – sklepy, restauracje, apteki i lokale usługowe, które ułatwiają i uprzyjemniają codzienne życie.
Miasto oferuje bogactwo zabytków kulturowych i historycznych, w tym imponujący akwedukt, autentyczną starówkę i dom Muhammada Alego – każdy z nich emanuje duchem innej epoki historycznej. Kawala to nie tylko popularny cel podróży, ale także doskonałe miejsce do zamieszkania na stałe, dzięki dobrze rozwiniętej infrastrukturze i całorocznym usługom.
O Beyond
Po gruntownej renowacji budynek zyska zupełnie nowy, nowoczesny wygląd, inspirowany współczesnymi trendami architektonicznymi. Charakterystyczne, zaokrąglone linie i stylowe elementy dekoracyjne na elewacji nadadzą projektowi wyrazisty charakter w nadmorskiej sylwetce. Wbudowane oświetlenie elewacji podkreśli detale architektoniczne i stworzy imponującą atmosferę nocą.
Budynek oferuje apartamenty trzy-, cztero- i pięciopokojowe o przemyślanym układzie i schludnym wyglądzie, spełniające wymagania nowoczesnego stylu życia. Apartamenty będą oferowane pod klucz – z wysokiej klasy drzwiami, podłogami, oświetleniem, w pełni wyposażonymi kuchniami i elegancko wykończonymi łazienkami. Zastosowane materiały charakteryzują się sprawdzoną jakością i trwałością, co stanowi doskonałą podstawę do personalizacji wnętrza zgodnie z indywidualnym stylem przyszłych właścicieli.
Oprócz udogodnień w rezydencjach, projekt oferuje również szereg przestrzeni wspólnych, zaprojektowanych tak, aby zwiększyć poczucie komfortu i nadmorskiego stylu życia. Znajdzie się tam basen z miejscami do relaksu, wyznaczone miejsca do grillowania oraz eleganckie pergole z jadalniami na świeżym powietrzu – idealne na wspólne chwile z bliskimi, w towarzystwie widoków na morze i świeżej bryzy.
Skontaktuj się z nami, aby uzyskać więcej informacji i profesjonalną konsultację.
Lokalizacja na mapie
Nowe apartamenty w całkowicie odnowionym budynku 100 m od morza w Kawali
Kavala / Kavala / Grecja mapa
Klasa budynku: Standard
Ceny nieruchomości: CENA NA ZAPYTANIE
Apartamenty i domy w The Neapolis Harmony, 350 metrów od plaży
Kavala / Kavala / Grecja mapa
Klasa budynku: Wysoki standard
Ceny nieruchomości: 415 000 - 480 000 €
Ceny za m²: 2 918 - 3 876 €/m2
Wybierz tę opcję, a powiadomimy Cię e-mailem w przypadku jakichkolwiek zmian statusu oferty, na przykład:
• Zmiana ceny;
• Nieruchomość weszła w ofertę promocyjną;
• Nieruchomość jest zarezerwowana lub sprzedana;
• Inne wiadomości dotyczące nieruchomości.
• Nieruchomość zostaje wycofana ze sprzedaży;
Możesz w każdej chwili z łatwością zrezygnować z subskrypcji powiadomień.• Zmiany warunków oferty;
• Zmiana kwoty inwestycji;
• Przedmiot inwestycji został w całości zrealizowany;
• Oferta wygasła.
Jeśli w przyszłości zdecydujesz, że nie chcesz już otrzymywać tej oferty, możesz z łatwością zrezygnować z subskrypcji.
Aby otrzymać całkowicie poprawne informacje na temat wolnych nieruchomości dostępnych na sprzedaż w ramach projektu oraz ich aktualnych cen, prosimy o kontakt z naszym biurem, korzystając z podanych danych kontaktowych.
Dokładamy wszelkich starań, aby nasze cenniki były zawsze aktualne i poprawne, jednakże ze względu na dużą liczbę nowych projektów w naszym katalogu oraz dużą dynamikę sprzedaży, często jest to niemożliwe.
Dziękujemy za zrozumienie!



...Jako sprawdzony specjalista, Stonehard PREMIER zajmuje się pozycjonowaniem rynkowym i sprzedażą licznych nowych projektów budowlanych, których realizację powierzyły nam wiodące przedsiębiorstwa w Bułgarii i za granicą...