Dwupokojowe mieszkanie w nowym, butikowym kompleksie składającym się z 4 budynków w dzielnicy „Prosław”
REF#PLV-136162
/
Apartamenty trzypokojowe
/
Zrealizowane projekty
/
Plovdiv
/
Proslav
/
Plovdiv
/
Bułgaria
aktualny
Cena:
153 000 € (1 408 €/m2)
*Ceny i dostępność wolnych lokali w projekcie mają charakter orientacyjny. Aby uzyskać aktualne informacje o cenach, prosimy o kontakt!
Nr ref. Numer: PLV-136162 / 4876
Lokalizacja: Proslav / Plovdiv mapa
Typ budynku/kompleksu: Mieszkaniowy
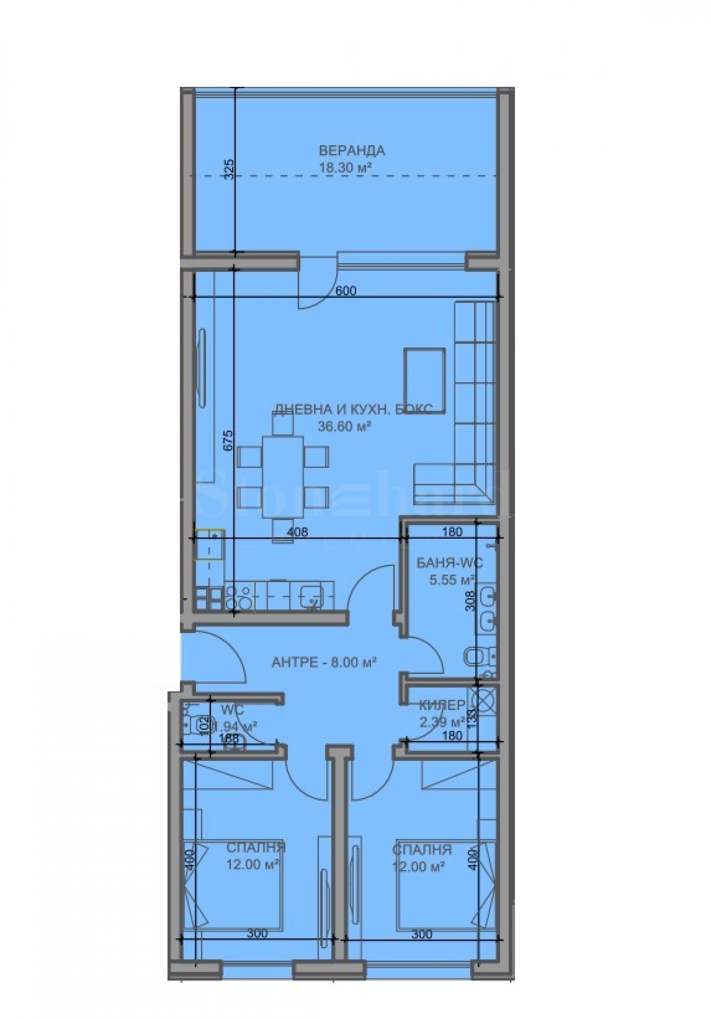
Obszary mieszkaniowe: 108.68 m2
Rodzaje nieruchomości w budynku/kompleksie: Apartamenty trzypokojowe
Nr ref. Numer: PLV-136162 / 4876
Lokalizacja: Proslav / Plovdiv
Typ budynku/kompleksu: Mieszkaniowy
Klasa budynku/kompleksu:
Obszary mieszkaniowe: 108.68 m2
Rodzaje nieruchomości w budynku/kompleksie: Apartamenty trzypokojowe
Przedsprzedaż! Premiera Aktu 14 spodziewana jest w sierpniu 2026 r., a Aktu 16 w sierpniu 2027 r.
Projekt składa się z czterech czteropiętrowych budynków, w każdym z zaledwie 11 apartamentami – dwu- i trzypokojowymi. Oferuje on spokojne i starannie dobrane środowisko życia, niską gęstość zabudowy i doskonale rozplanowane mieszkania.
Nieruchomość o łącznej powierzchni 108,68 mkw. położona jest na 1 piętrze z 4 budynków i posiada werandę o powierzchni 18,30 mkw.
Mieszkania są wydawane w stopniu wykończenia zgodnym z bułgarskimi normami budowlanymi, który obejmuje:
• podłoga - wylewka cementowa;
• ściany i sufity - tynki gipsowe;
• drzwi wejściowe pancerne;
• zainstalowano przełączniki, gniazdka i piony instalacyjne;
• ocieplenie zewnętrzne budynku i części wspólnych materiałami wysokiej klasy;
• stolarka aluminiowa o wysokiej klasie profili i podwójnymi szybami;
• wyloty klimatyzatora.
Dzięki temu właściciele mogą wykończyć dom według własnego gustu i stylu.
Architektura i środowisko
Kompleks kontynuuje ugruntowaną jakość pierwszego budynku ukończonego w tym regionie. Oferuje nowoczesną wizję, dbałość o detale i otoczenie, w którym natura i architektura pozostają w pełnej równowadze.
Zalety
• cztery nowoczesne budynki, każdy o 4 piętrach;
• tylko 11 mieszkań w każdym budynku;
• mieszkania dwupokojowe i trzypokojowe o funkcjonalnym rozkładzie;
• bogato zagospodarowane przestrzenie wewnętrzne;
• place zabaw i miejsca rekreacji;
• miejsca parkingowe podziemne i naziemne oraz garaże;
• doskonały dojazd i spokojne, dobrze rozwinięte otoczenie.
Plan płatności
• przy umowie przedwstępnej - 30%;
• Ustawa 14 – 60%;
• Akt 15 – 10%.
Aby uzyskać więcej informacji skontaktuj się z brokerem odpowiedzialnym za ofertę.
Lokalizacja na mapie
SPRZEDAŻ
PROJEKT
Mieszkanie dwupokojowe w kompleksie z osiedlem Akt 16, w parku "Rekreacja i Kultura"
Hristo Smirnenski / Plovdiv / Plovdiv / Bułgaria mapa
Obszar: 91.34 m2
Cena: 156 000 € /// 1 708 €/m2
Apartamenty w nowym innowacyjnym kompleksie w dzielnicy „Hristo Smirnenski”
Hristo Smirnenski / Plovdiv / Plovdiv / Bułgaria mapa
Ceny nieruchomości: 82 871 - 391 179 €
Ceny za m²: 1 370 - 1 500 €/m2
SPRZEDAŻ
PROJEKT
Nowe przestronne mieszkanie w nowoczesnym kompleksie przy ul. 16 przy parku
Hristo Smirnenski / Plovdiv / Plovdiv / Bułgaria mapa
Obszar: 205.98 m2
Cena: 340 000 € /// 1 651 €/m2
Wybierz tę opcję, a powiadomimy Cię e-mailem w przypadku jakichkolwiek zmian statusu oferty, na przykład:
• Zmiana ceny;
• Nieruchomość weszła w ofertę promocyjną;
• Nieruchomość jest zarezerwowana lub sprzedana;
• Inne wiadomości dotyczące nieruchomości.
• Nieruchomość zostaje wycofana ze sprzedaży;
Możesz w każdej chwili z łatwością zrezygnować z subskrypcji powiadomień.• Zmiany warunków oferty;
• Zmiana kwoty inwestycji;
• Przedmiot inwestycji został w całości zrealizowany;
• Oferta wygasła.
Jeśli w przyszłości zdecydujesz, że nie chcesz już otrzymywać tej oferty, możesz z łatwością zrezygnować z subskrypcji.
Aby otrzymać całkowicie poprawne informacje na temat wolnych nieruchomości dostępnych na sprzedaż w ramach projektu oraz ich aktualnych cen, prosimy o kontakt z naszym biurem, korzystając z podanych danych kontaktowych.
Dokładamy wszelkich starań, aby nasze cenniki były zawsze aktualne i poprawne, jednakże ze względu na dużą liczbę nowych projektów w naszym katalogu oraz dużą dynamikę sprzedaży, często jest to niemożliwe.
Dziękujemy za zrozumienie!



...Jako sprawdzony specjalista, Stonehard PREMIER zajmuje się pozycjonowaniem rynkowym i sprzedażą licznych nowych projektów budowlanych, których realizację powierzyły nam wiodące przedsiębiorstwa w Bułgarii i za granicą...