Czteropokojowy apartament z dużym tarasem i wspaniałym widokiem w 7 Angels
aktualny
Cena:
730 439 € (bez VAT) (1 700 €/m2 (bez VAT))
*Ceny i dostępność wolnych lokali w projekcie mają charakter orientacyjny. Aby uzyskać aktualne informacje o cenach, prosimy o kontakt!
Nr ref. Numer: STO 135789 / 3566
Lokalizacja: Borovets mapa
Typ budynku/kompleksu: Mieszkaniowy
Klasa budynku/kompleksu: Luksusowy
Obszary mieszkaniowe: 429.67 m2
Rodzaje nieruchomości w budynku/kompleksie:
Nr ref. Numer: STO 135789 / 3566
Lokalizacja: Borovets
Typ budynku/kompleksu: Mieszkaniowy
Klasa budynku/kompleksu: Luksusowy
Obszary mieszkaniowe: 429.67 m2
Rodzaje nieruchomości w budynku/kompleksie:
Projekt zostanie zrealizowany bez kompromisów i ma ambicję stać się jedną z najbardziej znanych i prestiżowych rezydencji w arystokratycznym górskim kurorcie Bułgarii, założonym przez cara Ferdynanda ponad 120 lat temu. Projekt zakłada gruntowną przebudowę dwóch istniejących budynków dawnego hotelu Zodiac w kurorcie Borowec i przekształcenie ich w luksusową rezydencję górską z komfortowymi apartamentami i szeroką gamą udogodnień dla mieszkańców.
Z POZWOLENIEM NA BUDOWĘ!
Planowane zakończenie - koniec 2026 r.
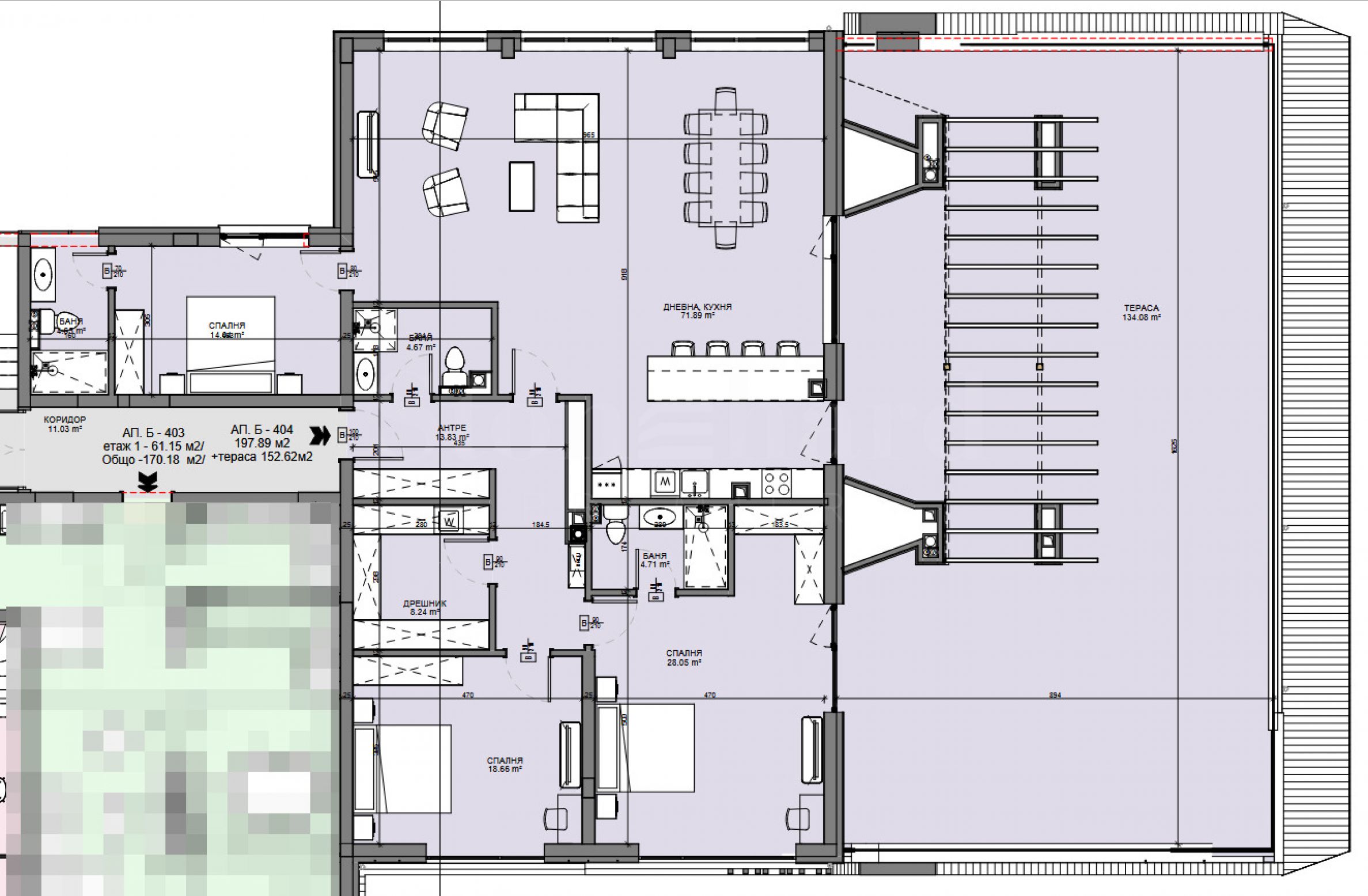
Nieruchomość znajduje się na 4. piętrze i oferuje 429,67 m² powierzchni całkowitej (powierzchnia netto 349,77 m² + powierzchnie wspólne 79,90 m²). Składa się z holu wejściowego, salonu z kuchnią i jadalnią, sypialni głównej z łazienką i garderobą, dwóch sypialni z łazienkami oraz tarasu z dostępem do salonu i jednej z sypialni.
Lokalizacja
Dzięki ustronnemu położeniu na wysokości 1340 m n.p.m., Borowec oferuje wyjątkowo czyste powietrze, a rzeka Bystrzyca, przepływająca przez cały kurort, ma prąd powietrza, który nadaje powietrzu szczególną strukturę, sprzyjając gojeniu się ran i szybkiemu powrotowi do zdrowia. Okolica jest idealnym miejscem do uprawiania turystyki zimowej i letniej, narciarstwa, kolarstwa, wędrówek górskich, biegów górskich, wspinaczki skałkowej, paralotniarstwa i jazdy konnej. Oferuje 58 km zróżnicowanych tras narciarskich, odpowiednich zarówno dla początkujących, jak i zaawansowanych narciarzy. Lokalizacja zapewnia szybki dostęp do centrum kurortu, 900 m od kolejki gondolowej i zaledwie 50 m od 800-metrowej trasy narciarskiej dla początkujących.
Apartamenty z widokiem panoramicznym - do użytku własnego lub na inwestycję
Kompleks składa się z trzech części – dwóch budynków mieszkalnych i restauracji pomiędzy nimi, która łączy je ciepłą więzią. Wysokość konstrukcyjna wynosi 2,50-2,60 metra w budynku B i ponad 3,20 metra w budynku A. Zaprojektowano 58 apartamentów z możliwością łączenia – kawalerki oraz apartamenty jedno-, dwu- i trzypokojowe, z których część posiada tarasy ogrodowe, a pozostałe są typu maisonette. Apartamenty zostały starannie zaprojektowane z myślą o zapewnieniu najwyższego komfortu życia, a panoramiczne przeszklenia budynku zapewniają zarówno obfitość naturalnego światła, jak i wspaniałe widoki na zapierające dech w piersiach piękno natury.
Apartamenty oferowane są w stanie "pod klucz" z wykończonymi podłogami (parkietem), ścianami, wykończonymi i wyposażonymi łazienkami; stolarka drewniana, trójwarstwowa, profil niemiecki, z potrójnymi szybami i nakładką aluminiową, chroniąca drewno przed zimnem i słońcem, aby służyło przez wiele lat; drzwi wejściowe antywłamaniowe i wewnętrzne z płyty MDF, zainstalowane grzejniki oraz system Smart Home w cenie. Ogrzewanie gazowe i grzejnikowe.
7 Angels zaoferuje również zintegrowany system inteligentnego domu w każdym domu, z dwiema opcjami do wyboru.
Opcja 1 (podstawowa) obejmuje:
• Sterowanie kotłem gazowym;
• Zarządzanie systemem alarmowym na życzenie Klienta (z przygotowaniem do uruchomienia systemu bezpieczeństwa z możliwością wykonywania zdjęć w momencie wykrycia ruchu i przesyłania obrazu w czasie rzeczywistym do właściciela nieruchomości);
• Alarm przeciwpożarowy;
• Oświetlenie powitalne na progu każdego domu;
• Zarządzanie Internetem i telewizją kablową.
Opcja 2 obejmuje:
• Sterowanie kotłem gazowym;
• Zarządzanie systemem alarmowym na życzenie Klienta (z przygotowaniem do uruchomienia systemu bezpieczeństwa z możliwością wykonywania zdjęć w momencie wykrycia ruchu i przesyłania obrazu w czasie rzeczywistym do właściciela nieruchomości);
• Alarm przeciwpożarowy;
• Oświetlenie powitalne na progu każdego domu;
• Zarządzanie Internetem i telewizją kablową;
• Automatyczne przesuwanie zasłon;
• Implementacja wszelkich dodatkowych funkcji SMART HOME na życzenie klienta.
Każdy właściciel nieruchomości w 7 Angels będzie miał również dostęp do usługi Captive Portal, gdzie będzie mógł monitorować temperaturę w domu oraz zużycie energii za pomocą cyfrowego licznika energii elektrycznej i gazu. Dla dodatkowej wygody i bezpieczeństwa, dostęp do parkingu i udogodnień w nowoczesnym centrum SPA kompleksu będzie zabezpieczony kodem QR.
Podana cena nie zawiera podatku VAT.
Pełne spektrum doświadczeń
Osiedle 7 Angels zostanie wybudowane zgodnie z koncepcją Zdrowego Budownictwa, z wykorzystaniem najnowocześniejszych technologii budowlanych i rozwiązań zapewniających efektywność energetyczną i przyjazne środowisko życia. Jego imponująca wizja w stylu alpejskim inspirowana jest najlepszymi ośrodkami narciarskimi w Szwajcarii.
Wizję architektoniczną podkreślają luksusowo zaprojektowane przestrzenie wspólne z windami KONE, a mieszkańcy będą mieli dostęp do restauracji marek premium, włoskiej kawiarni, przechowalni sprzętu narciarskiego, ultramodernego centrum odnowy biologicznej i SPA, w którym znajdą się sauny wewnętrzne i zewnętrzne, mały basen z dyfuzorami, łaźnia parowa i pokoje masażu, a także centrum fitness ze sprzętem marki Kettler i Tehnogym.
Przez cały dzień będzie zapewniony bezpłatny transport z kompleksu do stacji kolejki gondolowej, a w pobliżu powstanie strefa gier i zabaw dla dzieci.
7 Aniołów – kiedy natura leczy
7 Angels zaoferuje Ci nie tylko najnowocześniejsze udogodnienia, ale także możliwość bliskiego kontaktu z uzdrawiającą mocą Góry Riła.
Kompleks przekształci się w doskonałe miejsce do wypoczynku i relaksu w zdrowym otoczeniu i krystalicznie czystym powietrzu. Borowec to tradycyjne miejsce leczenia i rehabilitacji chorób płuc, a rwąca rzeka Bystrzyca, przepływająca w pobliżu kompleksu Siedmiu Aniołów, dodatkowo nasyca powietrze tlenem.
Energia tego wyjątkowego miejsca połączy się z wiedzą doświadczonych uzdrowicieli praktykujących medycynę naturalną, którzy będą stałymi gośćmi w dwóch specjalnie stworzonych gabinetach. Będziecie mogli skorzystać z umiejętności specjalistów z zakresu ajurwedy, diagnostyki tęczówki oka, terapii Yumeiho i wielu innych, dzięki czemu czas spędzony w 7 Angels stanie się doświadczeniem dla ciała i duszy.
W 7 Angels czeka na Ciebie podróż w głąb siebie, z dala od zgiełku miasta, w otoczeniu wielowiekowego lasu sosnowego.
Jeśli potrzebujesz aktywnego wypoczynku, 7 Angels oferuje liczne możliwości uprawiania sportu w pobliżu. W okolicy trwają prace nad budową licznych ścieżek rowerowych, które zapewnią rowerowym warunki do jazdy w ośrodku i w górach. Zimą stok narciarski obok kompleksu to idealna opcja dla początkujących narciarzy i dzieci.
Możliwość zakupu własnego miejsca parkingowego na parkingu zewnętrznym kompleksu lub w garażu podziemnym:
• miejsca parkingowe naziemne - 8000 euro netto;
• miejsca parkingowe podziemne - 12 000 euro netto.
Standardowy schemat płatności:
• Kaucja rezerwacyjna - 7000 do 11000 euro w zależności od rodzaju apartamentu (kaucja utrzymuje nieruchomość w rezerwacji do „pierwszego rzutu”) - umowa wstępna podpisywana jest w ciągu 14 dni od wpłaty kaucji rezerwacyjnej;
• 25% minus depozyt - po podpisaniu Umowy Przedwstępnej;
• 25% w przypadku montażu okien;
• 30% z zamontowaną fasadą;
• 20% na ustawę 16.
Plan płatności z niewielką wpłatą początkową i dużą wpłatą końcową na podstawie Ustawy 16 (1750 euro/m2 bez VAT):
• Depozyt rezerwacyjny;
• 20% ceny nieruchomości pomniejszone o kwotę zadatku przy wydaniu Pozwolenia na Budowę + uroczyste otwarcie placu budowy z wytyczoną linią i poziomem zabudowy oraz sporządzonym protokołem wskazującym punkty odniesienia regulacyjne i niwelacyjne;
• 80% ceny nieruchomości w momencie wydania Ustawy 16 i oddania budynku do użytkowania oraz nabycia prawa własności nieruchomości w formie aktu notarialnego.
Opłata za utrzymanie
Obowiązkowa opłata za utrzymanie jest stała przez pierwsze 2 lata i wynosi 15 euro/m2 netto od całkowitej powierzchni domu, wliczając części wspólne.
Dzięki zrównoważonej i innowacyjnej koncepcji, 7 Angels oferuje możliwość życia w zdrowym otoczeniu, z najwyższej klasy udogodnieniami oraz bliskością stoków narciarskich i wyciągów ośrodka. Skontaktuj się z nami, aby uzyskać więcej informacji i profesjonalną konsultację!
Ogledziny nieruchomosci
Mozemy zorganizowac ogledziny nieruchomosci, w dogodnym dla Panstwa terminie. W tym celu prosimy o skontaktowanie sie z agentem odpowiedzialnym za te oferte.
Rezerwacja nieruchomosci
Nieruchomosc moze byc zarezerwowana i wycofana ze sprzedazy po wplaceniu zadatku, po czym ustaje ogladanie z innymi kupujacymi i rozpoczyna sie przygotowanie dokumentow do zawarcia umowy przedwstepnej i ostatecznej.
Prosimy o kontakt z agentem odpowiedzialnym za te nieruchomosc w celu uzyskania szczegolowych informacji dotyczacych procedury zakupu i metod platnosci.
Uslugi dodatkowe i obsluga posprzedazowa
Jestesmy sprawdzona firma o dobrej reputacji i wieloletnim doswiadczeniu. Dlatego bedziemy z Panstwem nie tylko w trakcie zakupu, ale takze po jego zakonczeniu, swiadczac na Panstwa zyczenie dodatkowe uslugi, aby w pelni i bezproblemowo korzystac z nowo zakupionej nieruchomosci. Uslugi, ktore mozemy zaoferowac, obejmuja uzyskanie zgody na kredyt hipoteczny z bulgarskiego banku, ubezpieczenia majatku ruchomego i nieruchomosci, ubezpieczenia na zycie, ubezpieczenia medyczne i samochodowe, prace budowlane i remontowe, meblowanie, uslugi prawne i ksiegowe itp.
Lokalizacja na mapie
PRAWA
Kompleks 7 Aniołów — nowo wybudowane luksusowe apartamenty w Borowcu
Borovets / Sofia / Bułgaria mapa
Klasa budynku: Luksusowy
Ceny nieruchomości: 165 472 - 730 439 € (bez VAT)
Ceny za m²: 1 600 - 1 700 €/m2 (bez VAT)
Wybierz tę opcję, a powiadomimy Cię e-mailem w przypadku jakichkolwiek zmian statusu oferty, na przykład:
• Zmiana ceny;
• Nieruchomość weszła w ofertę promocyjną;
• Nieruchomość jest zarezerwowana lub sprzedana;
• Inne wiadomości dotyczące nieruchomości.
• Nieruchomość zostaje wycofana ze sprzedaży;
Możesz w każdej chwili z łatwością zrezygnować z subskrypcji powiadomień.• Zmiany warunków oferty;
• Zmiana kwoty inwestycji;
• Przedmiot inwestycji został w całości zrealizowany;
• Oferta wygasła.
Jeśli w przyszłości zdecydujesz, że nie chcesz już otrzymywać tej oferty, możesz z łatwością zrezygnować z subskrypcji.
Aby otrzymać całkowicie poprawne informacje na temat wolnych nieruchomości dostępnych na sprzedaż w ramach projektu oraz ich aktualnych cen, prosimy o kontakt z naszym biurem, korzystając z podanych danych kontaktowych.
Dokładamy wszelkich starań, aby nasze cenniki były zawsze aktualne i poprawne, jednakże ze względu na dużą liczbę nowych projektów w naszym katalogu oraz dużą dynamikę sprzedaży, często jest to niemożliwe.
Dziękujemy za zrozumienie!



...Jako sprawdzony specjalista, Stonehard PREMIER zajmuje się pozycjonowaniem rynkowym i sprzedażą licznych nowych projektów budowlanych, których realizację powierzyły nam wiodące przedsiębiorstwa w Bułgarii i za granicą...