Dwupokojowe mieszkanie w nowym budynku 500 m od plaży „Harmanite”, Sozopol
aktualnyCena:
171 000 € (1 611 €/m2)
*Ceny i dostępność wolnych lokali w projekcie mają charakter orientacyjny. Aby uzyskać aktualne informacje o cenach, prosimy o kontakt!
Nr ref. Numer: LXH-135760 / 4854
Lokalizacja: Sozopol mapa
Typ budynku/kompleksu: Mieszkaniowy
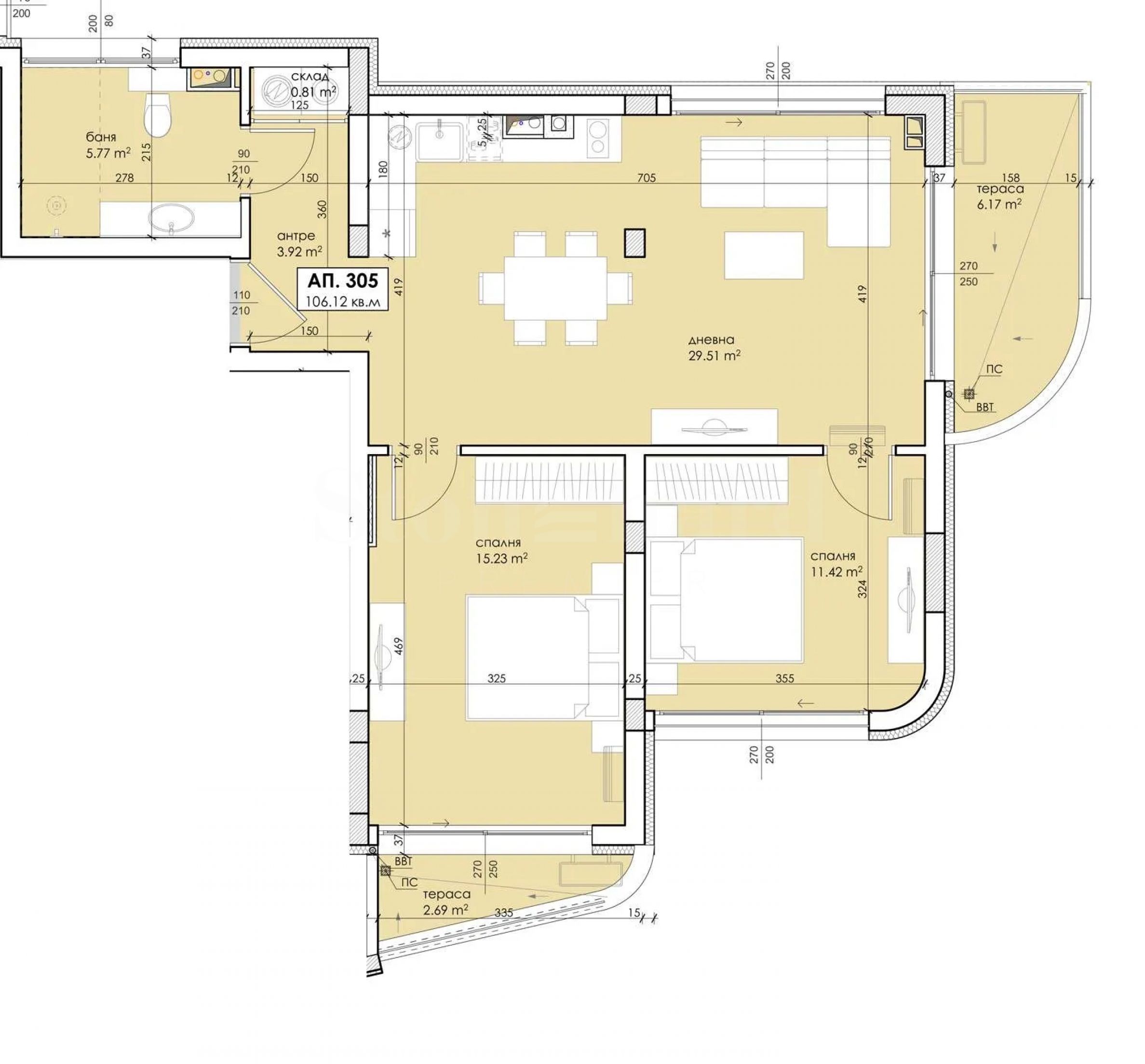
Obszary mieszkaniowe: 106.12 m2
Rodzaje nieruchomości w budynku/kompleksie: Apartamenty trzypokojowe
Nr ref. Numer: LXH-135760 / 4854
Lokalizacja: Sozopol
Typ budynku/kompleksu: Mieszkaniowy
Klasa budynku/kompleksu:
Obszary mieszkaniowe: 106.12 m2
Rodzaje nieruchomości w budynku/kompleksie: Apartamenty trzypokojowe
W trakcie realizacji. Oczekiwana ustawa nr 16 – grudzień 2027 r.
Nieruchomość znajduje się na trzecim piętrze i oferuje powierzchnię całkowitą 106,12 m2 z ekspozycją wschodnio-północno-południową.
Dystrybucja:
• hol wejściowy/korytarz;
• salon z kuchnią;
• dwie sypialnie;
• łazienka z toaletą;
• dwa tarasy.
Mieszkanie wynajmowane jest w następującym stopniu wykończenia zgodnie z bułgarskim kodeksem cywilnym:
• Stolarka PCV – SALAMANDER 76;
• parapety z kamienia naturalnego;
• drzwi wejściowe do mieszkań antywłamaniowe;
• ściany i sufity: tynk wapienno-cementowy z profilami narożnymi;
• podłogi: wylewka cementowa;
• balkon z tynkiem elewacyjnym i zamontowanymi oprawami oświetleniowymi;
• hydroizolacja z płyt bitumicznych opalanych gazem Venus o grubości 3 mm oraz płytek granitowych;
• balustrada – zgodnie z projektem.
Istnieje możliwość wykończenia "pod klucz", a za dodatkową opłatą również umeblowania.
Apartament nadaje się zarówno do zamieszkania całorocznego, jak i do wykorzystania na cele wakacyjne.
O budynku
Budynek ma 4 kondygnacje i atrakcyjną wizję, oferuje mieszkania dwu- i trzypokojowe oraz 18 miejsc parkingowych naziemnych i podziemnych. Wjazd do garażu podziemnego zaprojektowano z rampą prowadzącą przez podwórze i ulicę.
Dane techniczne:
• klatki schodowe i części wspólne: płytki granitowe lub kamień;
• ściany i sufity: tynki i lateks;
• balustrady – zgodnie z projektem;
• zamontowano podnośniki hydrauliczne;
• hydroizolacja dachu papą bitumiczną gazową Venus 3mm;
• izolacja termiczna – XPS 10 cm.
• zaprawa cementowa;
• posadzka miejsc parkingowych i garażu - beton polerowany;
• ściany zewnętrzne elewacji: cegła 25cm – Wienerberger Thermo;
• ocieplenie ścian murowanych styropianem 10cm – Baumit;
• siatka elewacyjna otynkowana klejem – Baumit;
• tynk polimerowy strukturalny – Baumit;
• izolacja termiczna na powierzchniach betonowych – XPS 10cm;
• Instalacja wodno-kanalizacyjna - rura wodna polipropylenowa na „korku”;
• wykonano instalację elektryczną silnoprądową oświetlenia i gniazdek;
• zamontowano liczniki energii elektrycznej, tablicę elektryczną w mieszkaniu;
• zamontowano przełączniki i gniazdka;
• zamontowano oprawy oświetleniowe na balkonach;
• montaż dzwonka i domofonu;
• instalacje wewnętrzne internetu i telewizji.
Czekamy na Państwa zapytanie.
Jeśli chcesz umówić się na obejrzenie interesującej Cię nieruchomości lub odwiedzić jedno z naszych biur, skontaktuj się z nami. Aby umówić się na spotkanie lub oględziny, zadzwoń pod numer telefonu podany w ogłoszeniu lub wyślij zapytanie e-mailem. Nasz konsultant pomoże Ci w ustaleniu wszystkich niezbędnych szczegółów i ustali dogodny termin.
Szukasz odpowiedniej nieruchomości dla siebie?
Skontaktuj się z nami i opowiedz nam o swoich potrzebach i preferencjach. Nasz zespół przeprowadzi dogłębną analizę rynku, aby zaoferować Ci nieruchomości idealnie odpowiadające Twoim kryteriom. Posiadamy wyjątkowe portfolio wysokiej jakości, ekskluzywnych domów, dostępnych wyłącznie dla naszych klientów. Aby być pierwszym, który otrzyma o nich informacje – skontaktuj się z nami.
Usługi dodatkowe
Jako ceniony klient naszej firmy, będziesz miał przywilej korzystania z usług naszego doświadczonego zespołu prawnego całkowicie bezpłatnie. Ponadto oferujemy kompleksowe rozwiązania, w tym ubezpieczenia nieruchomości, bezpłatne doradztwo finansowe, a także korzystne warunki finansowania. Nasze usługi obejmują również odsprzedaż, wynajem i zarządzanie nieruchomościami. Zapewniamy wysokiej jakości remonty i wyposażenie wnętrz za pośrednictwem wyspecjalizowanych firm wchodzących w skład naszej grupy kapitałowej i będących naszymi wieloletnimi partnerami.
Ogledziny nieruchomosci
Mozemy zorganizowac ogledziny nieruchomosci, w dogodnym dla Panstwa terminie. W tym celu prosimy o skontaktowanie sie z agentem odpowiedzialnym za te oferte.
Rezerwacja nieruchomosci
Nieruchomosc moze byc zarezerwowana i wycofana ze sprzedazy po wplaceniu zadatku, po czym ustaje ogladanie z innymi kupujacymi i rozpoczyna sie przygotowanie dokumentow do zawarcia umowy przedwstepnej i ostatecznej.
Prosimy o kontakt z agentem odpowiedzialnym za te nieruchomosc w celu uzyskania szczegolowych informacji dotyczacych procedury zakupu i metod platnosci.
Uslugi dodatkowe i obsluga posprzedazowa
Jestesmy sprawdzona firma o dobrej reputacji i wieloletnim doswiadczeniu. Dlatego bedziemy z Panstwem nie tylko w trakcie zakupu, ale takze po jego zakonczeniu, swiadczac na Panstwa zyczenie dodatkowe uslugi, aby w pelni i bezproblemowo korzystac z nowo zakupionej nieruchomosci. Uslugi, ktore mozemy zaoferowac, obejmuja uzyskanie zgody na kredyt hipoteczny z bulgarskiego banku, ubezpieczenia majatku ruchomego i nieruchomosci, ubezpieczenia na zycie, ubezpieczenia medyczne i samochodowe, prace budowlane i remontowe, meblowanie, uslugi prawne i ksiegowe itp.
Lokalizacja na mapie
SPRZEDAŻ
PROJEKT
Nowy dwupoziomowy dom z ogródkiem i dwiema sypialniami, w kompleksie z basenem w Sozopolu
Sozopol / Burgas / Bułgaria mapa
Obszar: 105.30 m2
Cena: 156 000 € /// 1 481 €/m2
SPRZEDAŻ
PROJEKT
Panoramiczny apartament z dwiema sypialniami w eleganckim budynku w Sozopolu
Sozopol / Burgas / Bułgaria mapa
Obszar: 166.97 m2
Cena: 150 000 € /// 898 €/m2
Apartamenty w nowym budynku w dzielnicy Misarya w Sozopolu
Sozopol / Burgas / Bułgaria mapa
Ceny nieruchomości: 98 000 - 171 000 €
Ceny za m²: 1 599 - 2 254 €/m2
Wybierz tę opcję, a powiadomimy Cię e-mailem w przypadku jakichkolwiek zmian statusu oferty, na przykład:
• Zmiana ceny;
• Nieruchomość weszła w ofertę promocyjną;
• Nieruchomość jest zarezerwowana lub sprzedana;
• Inne wiadomości dotyczące nieruchomości.
• Nieruchomość zostaje wycofana ze sprzedaży;
Możesz w każdej chwili z łatwością zrezygnować z subskrypcji powiadomień.• Zmiany warunków oferty;
• Zmiana kwoty inwestycji;
• Przedmiot inwestycji został w całości zrealizowany;
• Oferta wygasła.
Jeśli w przyszłości zdecydujesz, że nie chcesz już otrzymywać tej oferty, możesz z łatwością zrezygnować z subskrypcji.
Aby otrzymać całkowicie poprawne informacje na temat wolnych nieruchomości dostępnych na sprzedaż w ramach projektu oraz ich aktualnych cen, prosimy o kontakt z naszym biurem, korzystając z podanych danych kontaktowych.
Dokładamy wszelkich starań, aby nasze cenniki były zawsze aktualne i poprawne, jednakże ze względu na dużą liczbę nowych projektów w naszym katalogu oraz dużą dynamikę sprzedaży, często jest to niemożliwe.
Dziękujemy za zrozumienie!



...Jako sprawdzony specjalista, Stonehard PREMIER zajmuje się pozycjonowaniem rynkowym i sprzedażą licznych nowych projektów budowlanych, których realizację powierzyły nam wiodące przedsiębiorstwa w Bułgarii i za granicą...