Nowo wybudowane mieszkanie trzypokojowe w butikowym budynku
Cena:
210 500 € (bez VAT) (2 537 €/m2 (bez VAT))
*Ceny i dostępność wolnych lokali w projekcie mają charakter orientacyjny. Aby uzyskać aktualne informacje o cenach, prosimy o kontakt!
Nr ref. Numer: AP 135528 / 4647
Lokalizacja: Krustova Vada / Sofia mapa
Typ budynku/kompleksu: Mieszkaniowy
Klasa budynku/kompleksu: Wysoki standard
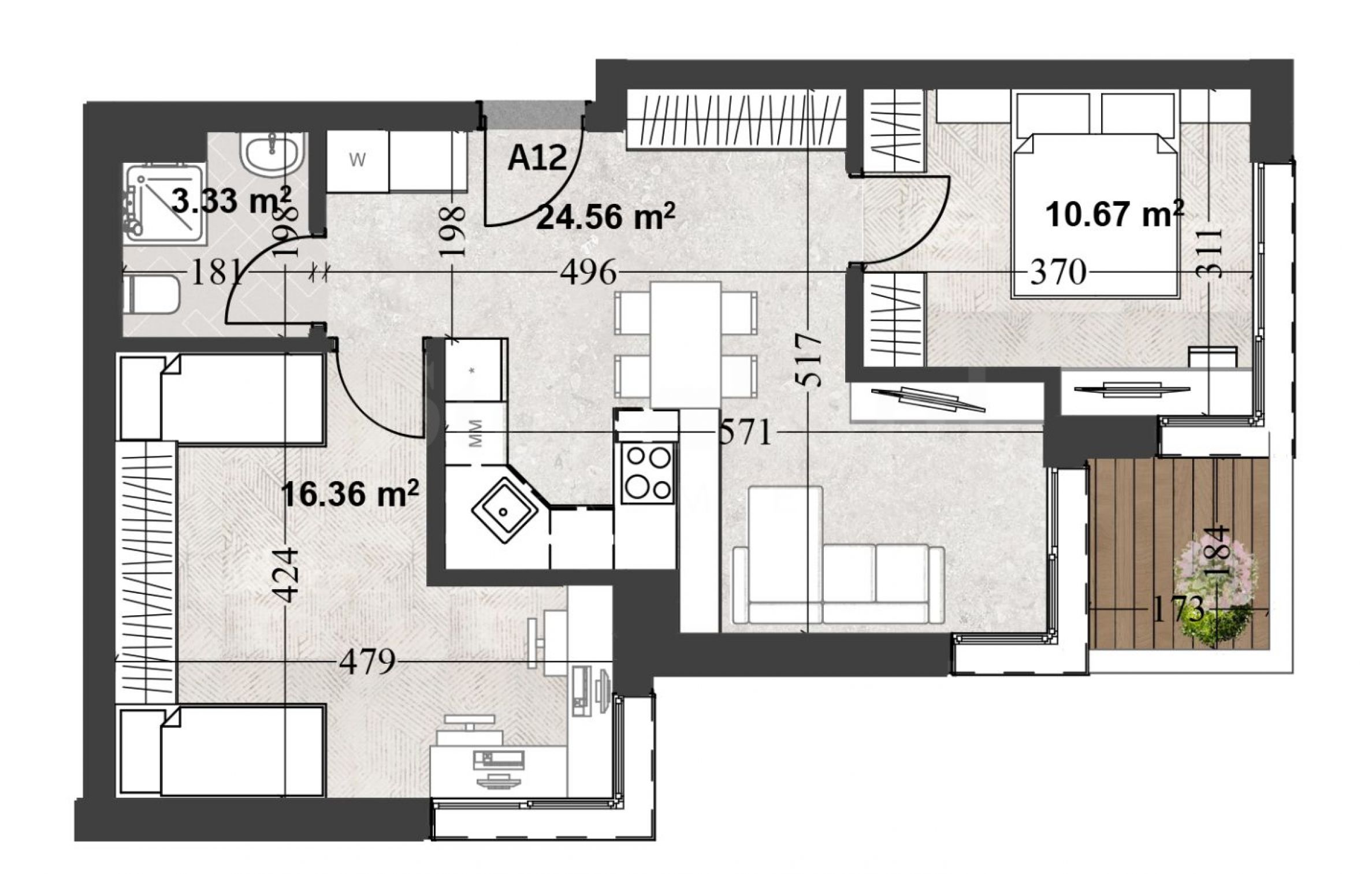
Obszary mieszkaniowe: 82.98 m2
Rodzaje nieruchomości w budynku/kompleksie: Apartamenty trzypokojowe
Nr ref. Numer: AP 135528 / 4647
Lokalizacja: Krustova Vada / Sofia
Typ budynku/kompleksu: Mieszkaniowy
Klasa budynku/kompleksu: Wysoki standard
Obszary mieszkaniowe: 82.98 m2
Rodzaje nieruchomości w budynku/kompleksie: Apartamenty trzypokojowe
Budynek położony jest w prestiżowej południowej części stolicy – w bliskim sąsiedztwie zoo, zaledwie 950 m od centrum handlowego Paradise Center i stacji metra Witosza. Położony przy cichej, wewnętrznej uliczce, budynek zapewnia prywatność i bezpieczeństwo, a także szybkie połączenie nowym bulwarem Philipa Kuteva z bulwarem Cherni Vrah i szosą Simeonovsko. Okolica łączy w sobie ciszę, doskonałą infrastrukturę i szybki dostęp do kluczowych punktów miasta.
Mieszkanie znajduje się na trzecim piętrze i ma powierzchnię całkowitą 82,98 m2. Jego rozkład jest następujący:
• korytarz;
• salon z kuchnią i jadalnią,
• 2 sypialnie;
• łazienka z toaletą;
• loggia.
Budynek ma pięć kondygnacji naziemnych i jedną podziemną. Na kondygnacji podziemnej znajdują się garaże, miejsca parkingowe i piwnice. Pozostałe pięć kondygnacji mieszkalnych mieści 14 mieszkań dwu-, trzy- i czteropokojowych.
Nieruchomości łączą jasne przestrzenie, czyste linie i poczucie spokoju – wszystko zostało zaprojektowane z dbałością o detale, z myślą o osobach ceniących jakość i nowoczesny styl życia. Innowacyjna koncepcja łączy nowoczesną architekturę, kontakt z naturą i nowe technologie.
Nowoczesne i wysokiej jakości budownictwo, bardzo wysoki standard jakości użytych materiałów.
Dane techniczne:
• Klasa energetyczna A – Budynek zaprojektowano z myślą o wysokiej efektywności energetycznej, co zapewnia niskie zużycie energii oraz optymalne koszty ogrzewania i chłodzenia – dla bardziej zrównoważonego i komfortowego stylu życia.
• Instalacja fotowoltaiczna - Wbudowany system zasilania części wspólnych, który przyczynia się do obniżenia kosztów energii i bardziej ekologicznej eksploatacji budynku.
• Elewacja klasy premium - Elewacja ceramiczna o nowoczesnym wzornictwie i doskonałej trwałości przez długi czas.
• Okna francuskie - Maksymalna powierzchnia przeszklona zapewniająca więcej światła, przestrzeni i naturalne połączenie z otoczeniem.
• Stolarka aluminiowa najwyższej klasy - z doskonałą izolacją cieplną i akustyczną, nowoczesnym wyglądem i długą żywotnością.
• Dyskretne oświetlenie elewacji i ogrodu, podkreślające architekturę i zapewniające komfort i bezpieczeństwo w nocy.
• Wysoce skuteczna izolacja akustyczna - gwarantuje ciszę, prywatność i komfort akustyczny w każdym domu.
• Gotowe instalacje dla systemów pomp ciepła – energooszczędne rozwiązanie do ogrzewania, chłodzenia i podgrzewania wody.
• Luksusowe części wspólne - zaprojektowane według indywidualnego projektu wnętrza, z wykorzystaniem materiałów najwyższej jakości i z dbałością o każdy szczegół.
• We wszystkich apartamentach zainstalowano ogrzewanie podłogowe, gwarantujące całoroczny komfort.
• Bogato zagospodarowany, ogrodzony dziedziniec - ciche, zielone i estetyczne otoczenie sprzyjające rekreacji i relaksowi.
• Parking podziemny - Przestronny i dobrze zorganizowany, z bezpośrednim dostępem do budynku, zaprojektowany tak, aby umożliwić wygodne parkowanie również większych samochodów.
• Ograniczony dostęp - Zautomatyzowany system kontroli wideo umożliwiający dostęp do budynku i wewnętrznego dziedzińca zapewnia większe bezpieczeństwo i spokój ducha.
Trzy systemy płatności:
Schemat 1:
•30% po uzgodnieniu wstępnym
•30% dla Aktu 14
•30% dla Aktu 15
•10% dla Ustawy 16
Schemat 2:
•60% po zawarciu umowy przedwstępnej
•30% dla Aktu 15
•10% dla Ustawy 16
Schemat 3:
•90% z umową przedwstępną
•10% dla Ustawy 16
Rezerwacja możliwa po wpłaceniu depozytu.
Istnieje możliwość zakupu zewnętrznych miejsc parkingowych - 35 000 € (68 454 lewów), podziemnych miejsc parkingowych - 39 000 € (76 277 lewów) i garaży podziemnych - 45 000 € (88 012 lewów). Ceny nie zawierają podatku VAT.
Rozpoczęcie budowy: listopad 2025 r., przewidywane oddanie do użytku 16 grudnia 2027 r.
Czekamy na Państwa zapytanie.
Jeśli chcesz umówić się na obejrzenie interesującej Cię nieruchomości lub odwiedzić jedno z naszych biur, skontaktuj się z nami. Aby umówić się na spotkanie lub oględziny, zadzwoń pod numer telefonu podany w ogłoszeniu lub wyślij zapytanie e-mailem. Nasz konsultant pomoże Ci w ustaleniu wszystkich niezbędnych szczegółów i ustali dogodny termin.
Szukasz odpowiedniej nieruchomości dla siebie?
Skontaktuj się z nami i opowiedz nam o swoich potrzebach i preferencjach. Nasz zespół przeprowadzi dogłębną analizę rynku, aby zaoferować Ci nieruchomości idealnie odpowiadające Twoim kryteriom. Posiadamy wyjątkowe portfolio wysokiej jakości, ekskluzywnych domów, dostępnych wyłącznie dla naszych klientów. Aby być pierwszym, który otrzyma o nich informacje – skontaktuj się z nami.
Usługi dodatkowe
Jako ceniony klient naszej firmy, będziesz miał przywilej korzystania z usług naszego doświadczonego zespołu prawnego całkowicie bezpłatnie. Ponadto oferujemy kompleksowe rozwiązania, w tym ubezpieczenia nieruchomości, bezpłatne doradztwo finansowe, a także korzystne warunki finansowania. Nasze usługi obejmują również odsprzedaż, wynajem i zarządzanie nieruchomościami. Zapewniamy wysokiej jakości remonty i wyposażenie wnętrz za pośrednictwem wyspecjalizowanych firm wchodzących w skład naszej grupy kapitałowej i będących naszymi wieloletnimi partnerami.
Ogledziny nieruchomosci
Mozemy zorganizowac ogledziny nieruchomosci, w dogodnym dla Panstwa terminie. W tym celu prosimy o skontaktowanie sie z agentem odpowiedzialnym za te oferte.
Rezerwacja nieruchomosci
Nieruchomosc moze byc zarezerwowana i wycofana ze sprzedazy po wplaceniu zadatku, po czym ustaje ogladanie z innymi kupujacymi i rozpoczyna sie przygotowanie dokumentow do zawarcia umowy przedwstepnej i ostatecznej.
Prosimy o kontakt z agentem odpowiedzialnym za te nieruchomosc w celu uzyskania szczegolowych informacji dotyczacych procedury zakupu i metod platnosci.
Uslugi dodatkowe i obsluga posprzedazowa
Jestesmy sprawdzona firma o dobrej reputacji i wieloletnim doswiadczeniu. Dlatego bedziemy z Panstwem nie tylko w trakcie zakupu, ale takze po jego zakonczeniu, swiadczac na Panstwa zyczenie dodatkowe uslugi, aby w pelni i bezproblemowo korzystac z nowo zakupionej nieruchomosci. Uslugi, ktore mozemy zaoferowac, obejmuja uzyskanie zgody na kredyt hipoteczny z bulgarskiego banku, ubezpieczenia majatku ruchomego i nieruchomosci, ubezpieczenia na zycie, ubezpieczenia medyczne i samochodowe, prace budowlane i remontowe, meblowanie, uslugi prawne i ksiegowe itp.
Lokalizacja na mapie
PRAWA
SPRZEDAŻ
PROJEKT
Trzypokojowe mieszkanie nr 73 z widokiem na Witoszę, w Butiku OKINAWA
Malinova Dolina / Sofia / Sofia / Bułgaria mapa
Klasa budynku/kompleksu: Wysoki standard
Obszar: 116.34 m2
Cena: 291 000 € /// 2 501 €/m2
PRAWA
SPRZEDAŻ
PROJEKT
Trzypokojowe mieszkanie w OKINAWA Boutique Residence w dzielnicy OKINAWA „Malinowa Dolina”
Malinova Dolina / Sofia / Sofia / Bułgaria mapa
Klasa budynku/kompleksu: Wysoki standard
Obszar: 136 m2
Cena: 338 000 € /// 2 485 €/m2
SPRZEDAŻ
PROJEKT
Luksusowy apartament dwupokojowy w elitarnym kompleksie w dzielnicy „Dragalevtsi”
Dragalevtsi / Sofia / Sofia / Bułgaria mapa
Obszar: 106 m2
Cena: 450 000 € /// 4 245 €/m2
Wybierz tę opcję, a powiadomimy Cię e-mailem w przypadku jakichkolwiek zmian statusu oferty, na przykład:
• Zmiana ceny;
• Nieruchomość weszła w ofertę promocyjną;
• Nieruchomość jest zarezerwowana lub sprzedana;
• Inne wiadomości dotyczące nieruchomości.
• Nieruchomość zostaje wycofana ze sprzedaży;
Możesz w każdej chwili z łatwością zrezygnować z subskrypcji powiadomień.• Zmiany warunków oferty;
• Zmiana kwoty inwestycji;
• Przedmiot inwestycji został w całości zrealizowany;
• Oferta wygasła.
Jeśli w przyszłości zdecydujesz, że nie chcesz już otrzymywać tej oferty, możesz z łatwością zrezygnować z subskrypcji.
Aby otrzymać całkowicie poprawne informacje na temat wolnych nieruchomości dostępnych na sprzedaż w ramach projektu oraz ich aktualnych cen, prosimy o kontakt z naszym biurem, korzystając z podanych danych kontaktowych.
Dokładamy wszelkich starań, aby nasze cenniki były zawsze aktualne i poprawne, jednakże ze względu na dużą liczbę nowych projektów w naszym katalogu oraz dużą dynamikę sprzedaży, często jest to niemożliwe.
Dziękujemy za zrozumienie!



...Jako sprawdzony specjalista, Stonehard PREMIER zajmuje się pozycjonowaniem rynkowym i sprzedażą licznych nowych projektów budowlanych, których realizację powierzyły nam wiodące przedsiębiorstwa w Bułgarii i za granicą...