Przestronny sklep w nowoczesnym nowym budynku przy ul. „Simeonovsko Shose” Blvd.
aktualny
Cena:
644 540 € (bez VAT) ()
*Ceny i dostępność wolnych lokali w projekcie mają charakter orientacyjny. Aby uzyskać aktualne informacje o cenach, prosimy o kontakt!
Nr ref. Numer: SOF-134298 / 4689
Lokalizacja: Vitosha / Sofia mapa
Typ budynku/kompleksu: Mieszkaniowy
Klasa budynku/kompleksu: Standard
Obszary mieszkaniowe: 247.90 m2
Rodzaje nieruchomości w budynku/kompleksie:
Nr ref. Numer: SOF-134298 / 4689
Lokalizacja: Vitosha / Sofia
Typ budynku/kompleksu: Mieszkaniowy
Klasa budynku/kompleksu: Standard
Obszary mieszkaniowe: 247.90 m2
Rodzaje nieruchomości w budynku/kompleksie:
Rozpoczęcie budowy - wrzesień 2025. Oczekiwane zakończenie budowy nr 16 - latem 2027.
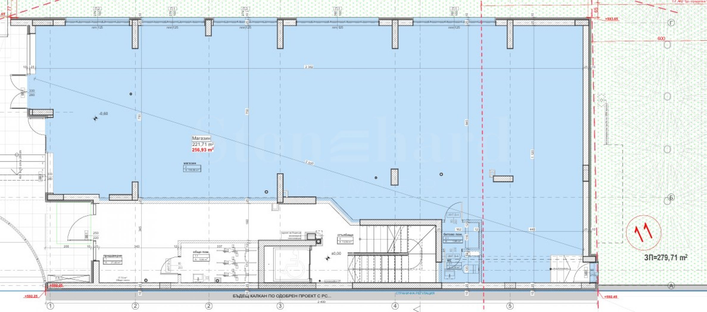
Nieruchomość znajduje się na parterze i ma powierzchnię całkowitą 247,90 m², a powierzchnię netto – 197,07 m². Jest oferowana w stanie deweloperskim „pod klucz”. Posiada łazienkę. Ogrzewanie gazowe, a także wbudowaną instalację klimatyzacji w systemie multi-split.
Podana cena nie zawiera podatku VAT.
Istnieje możliwość dokupienia 4 miejsc parkingowych przy sklepie w cenie 20 000 euro (39 116,60 BGN) bez VAT każde.
O budynku
Budynek jest butikowy, składa się z 9 apartamentów, sklepu na parterze z 4 miejscami parkingowymi na zewnątrz, 4 dodatkowymi miejscami parkingowymi podziemnymi i 11 garażami.
Obiekt składa się z 6 pięter, z kondygnacją podziemną, na której znajdują się miejsca parkingowe i garaże, sklepem na parterze oraz pięcioma piętrami mieszkalnymi z mieszkaniami dwu- i trzypokojowymi.
Zakłada się wykorzystanie najnowocześniejszych technologii, w połączeniu z materiałami i urządzeniami najwyższej klasy od wiodących światowych producentów.
Dane techniczne:
• Dachy – ocieplone izolacją termiczną z wełny mineralnej o grubości 15 cm i hydroizolacją membraną TPO lub PVC, wykończone na krawędziach blachą plastyfikowaną;
• Elewacje – ocieplone styropianem EPS 10 cm, izolacja termiczna 10 cm; pakiet systemowy Baumit z gotową powłoką z tynku silikatowego w kolorze, dekoracja Etalbond lub HPL, na elewacjach częściowo marmur naturalny;
• Tarasy wykończone płytami granitowymi i naturalnym parapetem granitowym wzdłuż krawędzi deski;
• Schody – stopnie, podłoga – granit naturalny, ściany tynkowane, szpachlowane, malowane lateksem. Balustrada schodowa aluminiowa – typ „Robot”, kolor „Antracyt”. Zamontowano przyciski oświetlenia, czujniki ruchu i oświetlenie sufitowe;
• Wykonano przyłącza wodno-kanalizacyjne i elektryczne, zainstalowano domofon z kamerą. Na parterze przy wszystkich wejściach zainstalowano monitoring wizyjny. Zainstalowano pakiety instalacyjne od dostawców internetu.
• Okna – wysokiej klasy profil Salamander pięciokomorowy, z pakietem trzyszybowym 4+4+6, w tym ze szkłem niskoemisyjnym;
• Drzwi wejściowe wewnętrzne metalowe z dekoracyjną powłoką HPL 70 mm. Ocieplane wełną twardą, zawiasy metalowe, zamek wielopunktowy;
• Garaże – otynkowane i pomalowane ściany i sufity. Zamontowane bramy garażowe z napędem elektrycznym. Zamontowane własne panele elektryczne;
• Balustrady balkonowe – aluminiowe z częściowym szkłem triplex, w całości wykończone, wykonane według projektu;
• Winda – Orona (Hiszpania), importer i konserwator UNIKEN.
Dla inwestora
Firma budowlana zajmuje się budową obiektów kubaturowych, infrastruktury drogowej, wszelkiego rodzaju pracami wykończeniowymi, budownictwem pod klucz, renowacją budynków użyteczności publicznej i mieszkalnych, remontami budowlanymi, instalacjami elektrycznymi i wodno-kanalizacyjnymi wewnętrznymi i zewnętrznymi, planowaniem pionowym budynków, renowacją, odnową, izolacją i renowacją starych budynków.
Czekamy na Państwa zapytanie.
Jeśli chcesz umówić się na obejrzenie interesującej Cię nieruchomości lub odwiedzić jedno z naszych biur, skontaktuj się z nami. Aby umówić się na spotkanie lub oględziny, zadzwoń pod numer telefonu podany w ogłoszeniu lub wyślij zapytanie e-mailem. Nasz konsultant pomoże Ci w ustaleniu wszystkich niezbędnych szczegółów i ustali dogodny termin.
Szukasz odpowiedniej nieruchomości dla siebie?
Skontaktuj się z nami i opowiedz nam o swoich potrzebach i preferencjach. Nasz zespół przeprowadzi dogłębną analizę rynku, aby zaoferować Ci nieruchomości idealnie odpowiadające Twoim kryteriom. Posiadamy wyjątkowe portfolio wysokiej jakości, ekskluzywnych domów, dostępnych wyłącznie dla naszych klientów. Aby być pierwszym, który otrzyma o nich informacje – skontaktuj się z nami.
Usługi dodatkowe
Jako ceniony klient naszej firmy, będziesz miał przywilej korzystania z usług naszego doświadczonego zespołu prawnego całkowicie bezpłatnie. Ponadto oferujemy kompleksowe rozwiązania, w tym ubezpieczenia nieruchomości, bezpłatne doradztwo finansowe, a także korzystne warunki finansowania. Nasze usługi obejmują również odsprzedaż, wynajem i zarządzanie nieruchomościami. Zapewniamy wysokiej jakości remonty i wyposażenie wnętrz za pośrednictwem wyspecjalizowanych firm wchodzących w skład naszej grupy kapitałowej i będących naszymi wieloletnimi partnerami.
Ogledziny nieruchomosci
Mozemy zorganizowac ogledziny nieruchomosci, w dogodnym dla Panstwa terminie. W tym celu prosimy o skontaktowanie sie z agentem odpowiedzialnym za te oferte.
Rezerwacja nieruchomosci
Nieruchomosc moze byc zarezerwowana i wycofana ze sprzedazy po wplaceniu zadatku, po czym ustaje ogladanie z innymi kupujacymi i rozpoczyna sie przygotowanie dokumentow do zawarcia umowy przedwstepnej i ostatecznej.
Prosimy o kontakt z agentem odpowiedzialnym za te nieruchomosc w celu uzyskania szczegolowych informacji dotyczacych procedury zakupu i metod platnosci.
Uslugi dodatkowe i obsluga posprzedazowa
Jestesmy sprawdzona firma o dobrej reputacji i wieloletnim doswiadczeniu. Dlatego bedziemy z Panstwem nie tylko w trakcie zakupu, ale takze po jego zakonczeniu, swiadczac na Panstwa zyczenie dodatkowe uslugi, aby w pelni i bezproblemowo korzystac z nowo zakupionej nieruchomosci. Uslugi, ktore mozemy zaoferowac, obejmuja uzyskanie zgody na kredyt hipoteczny z bulgarskiego banku, ubezpieczenia majatku ruchomego i nieruchomosci, ubezpieczenia na zycie, ubezpieczenia medyczne i samochodowe, prace budowlane i remontowe, meblowanie, uslugi prawne i ksiegowe itp.
Lokalizacja na mapie
PRAWA
SPRZEDAŻ
PROJEKT
Sklep nr 1 z dużymi witrynami w OKINAWA Boutique Residence
Malinova Dolina / Sofia / Sofia / Bułgaria mapa
Klasa budynku/kompleksu: Wysoki standard
Obszar: 259.76 m2
Cena: 649 400 € ///
PRAWA
Kompleks Synerga Premium – przestrzeń życiowa inspirowana naturą i miastem
Mladost 3 / Sofia / Sofia / Bułgaria mapa
Klasa budynku: Luksusowy
Ceny nieruchomości: 243 713 - 877 422 € (bez VAT)
Ceny za m²: 2 430 - 3 200 €/m2 (bez VAT)
PRAWA
SPRZEDAŻ
PROJEKT
Sklep nr 2 w rezydencji butikowej OKINAWA
Malinova Dolina / Sofia / Sofia / Bułgaria mapa
Klasa budynku/kompleksu: Wysoki standard
Obszar: 153.19 m2
Cena: 382 975 € ///
Wybierz tę opcję, a powiadomimy Cię e-mailem w przypadku jakichkolwiek zmian statusu oferty, na przykład:
• Zmiana ceny;
• Nieruchomość weszła w ofertę promocyjną;
• Nieruchomość jest zarezerwowana lub sprzedana;
• Inne wiadomości dotyczące nieruchomości.
• Nieruchomość zostaje wycofana ze sprzedaży;
Możesz w każdej chwili z łatwością zrezygnować z subskrypcji powiadomień.• Zmiany warunków oferty;
• Zmiana kwoty inwestycji;
• Przedmiot inwestycji został w całości zrealizowany;
• Oferta wygasła.
Jeśli w przyszłości zdecydujesz, że nie chcesz już otrzymywać tej oferty, możesz z łatwością zrezygnować z subskrypcji.
Aby otrzymać całkowicie poprawne informacje na temat wolnych nieruchomości dostępnych na sprzedaż w ramach projektu oraz ich aktualnych cen, prosimy o kontakt z naszym biurem, korzystając z podanych danych kontaktowych.
Dokładamy wszelkich starań, aby nasze cenniki były zawsze aktualne i poprawne, jednakże ze względu na dużą liczbę nowych projektów w naszym katalogu oraz dużą dynamikę sprzedaży, często jest to niemożliwe.
Dziękujemy za zrozumienie!



...Jako sprawdzony specjalista, Stonehard PREMIER zajmuje się pozycjonowaniem rynkowym i sprzedażą licznych nowych projektów budowlanych, których realizację powierzyły nam wiodące przedsiębiorstwa w Bułgarii i za granicą...