Dwupokojowe mieszkanie z ogrodem nad jeziorem IT, luksusowe nowe budownictwo w Pancharewie
Nr ref. Numer: STO-133100 / 4600
Lokalizacja: Pancharevo mapa
Typ budynku/kompleksu: Mieszkaniowy
Klasa budynku/kompleksu: Wysoki standard
Obszary mieszkaniowe: 114.32 m2
Rodzaje nieruchomości w budynku/kompleksie: Apartamenty trzypokojowe
Nr ref. Numer: STO-133100
Lokalizacja: Pancharevo
Typ budynku/kompleksu: Жилищен
Klasa budynku/kompleksu: Wysoki standard
Obszary mieszkaniowe: 114.32 m2
Rodzaje nieruchomości w budynku/kompleksie: Apartamenty trzypokojowe
Obiekt jest malowniczo i dogodnie położony, zaledwie kilka minut od Sofii, w pobliżu jeziora Panczarewo, w pobliżu Opery Plenerowej i szlaku kajakowego. Okolica oferuje doskonałą infrastrukturę – w zasięgu spaceru znajduje się park z placami zabaw, przedszkole i szkoła. Dojazd do „Samokovsko szose” jest szybki i łatwy, a przystanek komunikacji miejskiej i sklep Lidl oddalone są o zaledwie kilka minut jazdy samochodem.
BEZ PROWIZJI.
Rozpoczęcie budowy - sierpień 2025
Okres realizacji - 2 lata.
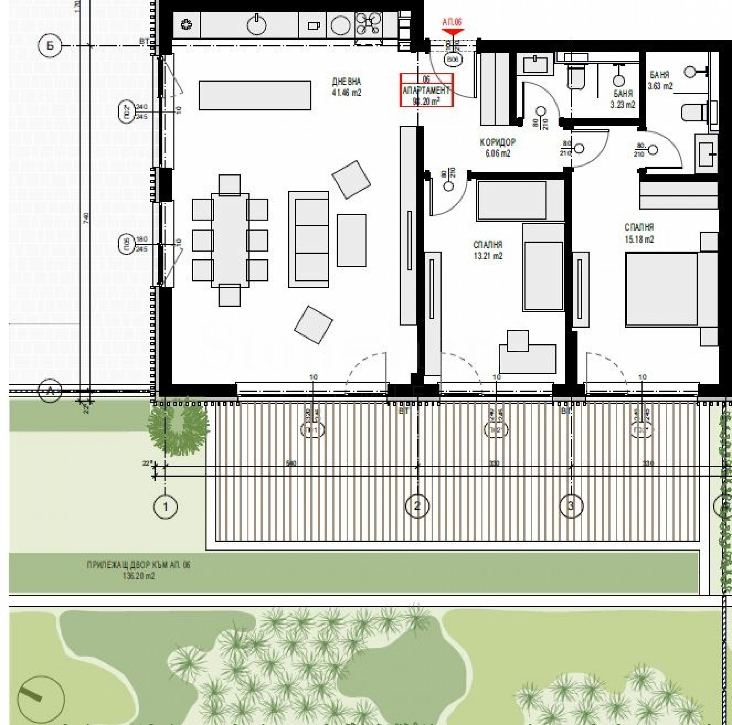
Apartament nr 6 położony jest na 1 piętrze, od strony wschodniej, ma powierzchnię całkowitą 114,32 m2 i własne podwórko o powierzchni 136,20 m2.
Dystrybucja:
• hol wejściowy/korytarz;
• dwie sypialnie;
• dwie łazienki z toaletami;
• salon z kuchnią i jadalnią;
• dziedziniec z dostępem z każdego pomieszczenia.
Materiały wysokiej klasy
Zaprojektowany z dbałością o detale i środowisko, budynek Lake IT zostanie wybudowany według najwyższych standardów: stolarka aluminiowa z potrójnymi szybami, wysokiej klasy izolacja termiczna, elewacja z naturalnymi elementami drewnianymi ARTEFINO, ogrzewanie podłogowe oraz inteligentny system monitoringu wideo z funkcjami wykrywania ryzyka pożaru, zalania lub zagrożenia dla mieszkańców.
Mieszkanie
Apartamenty to apartamenty trzypokojowe i jeden apartament czteropokojowy. Są one oferowane w stanie deweloperskim zgodnym z BDS. Z apartamentów roztacza się widok na jezioro lub malowniczy las sosnowy za budynkiem, ponieważ lokalizacja jest w całości otoczona zielenią i już zabudowanym terenem z domami nadającymi się do zamieszkania – bez ryzyka przyszłej zabudowy w pobliżu.
W budynku znajdują się miejsca parkingowe podziemne oraz garaże na sprzedaż.
Koncepcja architektoniczna - żyj IT... kochaj IT... Jezioro IT
Budynek to współczesny gest architektoniczny wyrażający szacunek dla natury – forma, która nie dominuje, lecz kontempluje. Projekt jest dziełem uznanej i wielokrotnie nagradzanej pracowni architektonicznej STUDIO CREATIVE :
„Budynek Lake IT jest przedłużeniem natury, architekturą w stanie kontemplacji. Pośród łagodnej ciszy różnorodnych gatunków drzew, które tworzą leśną atmosferę, budynek Lake IT wznosi się nie jak obca bryła, lecz jako naturalne przedłużenie krajobrazu, czysty, rytmiczny i pozostający w głębokim dialogu z otoczeniem. To nie tylko architektura, ale gest szacunku dla miejsca, w którym został posadzony.
Forma jest precyzyjna, matematyczna i przejrzysta, a jednocześnie emanuje przytulnością. Prostoliniowa bryła, z równymi i długimi liniami poziomymi, spoczywa spokojnie na budynku, nie zakłócając go. Ciemne piony fasady nie rozdzielają się, lecz pulsują w rytmie otaczających ją drzew, tworząc wrażenie architektonicznych cieni, które chwytają światło i załamują je na swój własny sposób.
Duże przeszklone otwory to nie okna, lecz portale do kontemplacji. Jezioro IT jest absolutnym partnerem krajobrazu, stając się jego tłem. Wnętrze i zewnętrze są w ciągłym ruchu, przenikając się nawzajem, zmieniając się wraz z czasem, światłem i porą roku. Budynek nie zabiega o uwagę, nie deklaruje swojej obecności, obserwuje, odbija, nawiązuje dialog z naturą, pozwalając sobie być lustrem miejsca. To architektura, która nie dyktuje, lecz słucha. W nocy światło rozchodzi się niczym oddech, stłumione, równomierne, bez nadmiernego blasku, nie zakłóca ciemności, lecz akceptuje ją i dyskretnie ujawnia jej detale.
„To nie jest po prostu dom. To stan spokoju, równowagi, architektury, która wie, że prawdziwa wartość tkwi nie w tym, co pokazuje, ale w tym, co pozwala odczuć”.
Schematy płatności
Standardowy schemat:
30% przy podpisaniu umowy (wpłata początkowa);
30% dla Ustawy 14;
30% dla Ustawy 15;
10% dla Ustawy 16.
Program kredytowy:
10% po podpisaniu umowy;
60% dla Ustawy 14;
20% dla Ustawy 15;
10% dla Ustawy 16.
Program „Inwestuj” (-2% zniżki):
50% po podpisaniu umowy;
20% dla Ustawy 14;
20% dla Ustawy 15;
10% dla Ustawy 16.
Program „Super Invest” (-3% zniżki):
80% po podpisaniu umowy;
20% dla Ustawy 16.
Program „Pokój” (+8% do ceny):
20% po podpisaniu umowy;
80% w Akcie 16.
Czekamy na Państwa zapytanie.
Jeśli chcesz umówić się na obejrzenie interesującej Cię nieruchomości lub odwiedzić jedno z naszych biur, skontaktuj się z nami. Aby umówić się na spotkanie lub oględziny, zadzwoń pod numer telefonu podany w ogłoszeniu lub wyślij zapytanie e-mailem. Nasz konsultant pomoże Ci w ustaleniu wszystkich niezbędnych szczegółów i ustali dogodny termin.
Szukasz odpowiedniej nieruchomości dla siebie?
Skontaktuj się z nami i opowiedz nam o swoich potrzebach i preferencjach. Nasz zespół przeprowadzi dogłębną analizę rynku, aby zaoferować Ci nieruchomości idealnie odpowiadające Twoim kryteriom. Posiadamy wyjątkowe portfolio wysokiej jakości, ekskluzywnych domów, dostępnych wyłącznie dla naszych klientów. Aby być pierwszym, który otrzyma o nich informacje – skontaktuj się z nami.
Usługi dodatkowe
Jako ceniony klient naszej firmy, będziesz miał przywilej korzystania z usług naszego doświadczonego zespołu prawnego całkowicie bezpłatnie. Ponadto oferujemy kompleksowe rozwiązania, w tym ubezpieczenia nieruchomości, bezpłatne doradztwo finansowe, a także korzystne warunki finansowania. Nasze usługi obejmują również odsprzedaż, wynajem i zarządzanie nieruchomościami. Zapewniamy wysokiej jakości remonty i wyposażenie wnętrz za pośrednictwem wyspecjalizowanych firm wchodzących w skład naszej grupy kapitałowej i będących naszymi wieloletnimi partnerami.
Ogledziny nieruchomosci
Mozemy zorganizowac ogledziny nieruchomosci, w dogodnym dla Panstwa terminie. W tym celu prosimy o skontaktowanie sie z agentem odpowiedzialnym za te oferte.
Rezerwacja nieruchomosci
Nieruchomosc moze byc zarezerwowana i wycofana ze sprzedazy po wplaceniu zadatku, po czym ustaje ogladanie z innymi kupujacymi i rozpoczyna sie przygotowanie dokumentow do zawarcia umowy przedwstepnej i ostatecznej.
Prosimy o kontakt z agentem odpowiedzialnym za te nieruchomosc w celu uzyskania szczegolowych informacji dotyczacych procedury zakupu i metod platnosci.
Uslugi dodatkowe i obsluga posprzedazowa
Jestesmy sprawdzona firma o dobrej reputacji i wieloletnim doswiadczeniu. Dlatego bedziemy z Panstwem nie tylko w trakcie zakupu, ale takze po jego zakonczeniu, swiadczac na Panstwa zyczenie dodatkowe uslugi, aby w pelni i bezproblemowo korzystac z nowo zakupionej nieruchomosci. Uslugi, ktore mozemy zaoferowac, obejmuja uzyskanie zgody na kredyt hipoteczny z bulgarskiego banku, ubezpieczenia majatku ruchomego i nieruchomosci, ubezpieczenia na zycie, ubezpieczenia medyczne i samochodowe, prace budowlane i remontowe, meblowanie, uslugi prawne i ksiegowe itp.
Lokalizacja na mapie
Obiekt jest malowniczo i dogodnie położony, zaledwie kilka minut od Sofii, w pobliżu jeziora Panczarewo, w pobliżu Opery Plenerowej i szlaku kajakowego. Okolica oferuje doskonałą infrastrukturę – w zasięgu spaceru znajduje się park z placami zabaw, przedszkole i szkoła. Dojazd do „Samokovsko szose” jest szybki i łatwy, a przystanek komunikacji miejskiej i sklep Lidl oddalone są o zaledwie kilka minut jazdy samochodem.
BEZ PROWIZJI.
Rozpoczęcie budowy - sierpień 2025
Okres realizacji - 2 lata.
Apartament nr 6 położony jest na 1 piętrze, od strony wschodniej, ma powierzchnię całkowitą 114,32 m2 i własne podwórko o powierzchni 136,20 m2.
Dystrybucja:
• hol wejściowy/korytarz;
• dwie sypialnie;
• dwie łazienki z toaletami;
• salon z kuchnią i jadalnią;
• dziedziniec z dostępem z każdego pomieszczenia.
Materiały wysokiej klasy
Zaprojektowany z dbałością o detale i środowisko, budynek Lake IT zostanie wybudowany według najwyższych standardów: stolarka aluminiowa z potrójnymi szybami, wysokiej klasy izolacja termiczna, elewacja z naturalnymi elementami drewnianymi ARTEFINO, ogrzewanie podłogowe oraz inteligentny system monitoringu wideo z funkcjami wykrywania ryzyka pożaru, zalania lub zagrożenia dla mieszkańców.
Mieszkanie
Apartamenty to apartamenty trzypokojowe i jeden apartament czteropokojowy. Są one oferowane w stanie deweloperskim zgodnym z BDS. Z apartamentów roztacza się widok na jezioro lub malowniczy las sosnowy za budynkiem, ponieważ lokalizacja jest w całości otoczona zielenią i już zabudowanym terenem z domami nadającymi się do zamieszkania – bez ryzyka przyszłej zabudowy w pobliżu.
W budynku znajdują się miejsca parkingowe podziemne oraz garaże na sprzedaż.
Koncepcja architektoniczna - żyj IT... kochaj IT... Jezioro IT
Budynek to współczesny gest architektoniczny wyrażający szacunek dla natury – forma, która nie dominuje, lecz kontempluje. Projekt jest dziełem uznanej i wielokrotnie nagradzanej pracowni architektonicznej STUDIO CREATIVE :
„Budynek Lake IT jest przedłużeniem natury, architekturą w stanie kontemplacji. Pośród łagodnej ciszy różnorodnych gatunków drzew, które tworzą leśną atmosferę, budynek Lake IT wznosi się nie jak obca bryła, lecz jako naturalne przedłużenie krajobrazu, czysty, rytmiczny i pozostający w głębokim dialogu z otoczeniem. To nie tylko architektura, ale gest szacunku dla miejsca, w którym został posadzony.
Forma jest precyzyjna, matematyczna i przejrzysta, a jednocześnie emanuje przytulnością. Prostoliniowa bryła, z równymi i długimi liniami poziomymi, spoczywa spokojnie na budynku, nie zakłócając go. Ciemne piony fasady nie rozdzielają się, lecz pulsują w rytmie otaczających ją drzew, tworząc wrażenie architektonicznych cieni, które chwytają światło i załamują je na swój własny sposób.
Duże przeszklone otwory to nie okna, lecz portale do kontemplacji. Jezioro IT jest absolutnym partnerem krajobrazu, stając się jego tłem. Wnętrze i zewnętrze są w ciągłym ruchu, przenikając się nawzajem, zmieniając się wraz z czasem, światłem i porą roku. Budynek nie zabiega o uwagę, nie deklaruje swojej obecności, obserwuje, odbija, nawiązuje dialog z naturą, pozwalając sobie być lustrem miejsca. To architektura, która nie dyktuje, lecz słucha. W nocy światło rozchodzi się niczym oddech, stłumione, równomierne, bez nadmiernego blasku, nie zakłóca ciemności, lecz akceptuje ją i dyskretnie ujawnia jej detale.
„To nie jest po prostu dom. To stan spokoju, równowagi, architektury, która wie, że prawdziwa wartość tkwi nie w tym, co pokazuje, ale w tym, co pozwala odczuć”.
Schematy płatności
Standardowy schemat:
30% przy podpisaniu umowy (wpłata początkowa);
30% dla Ustawy 14;
30% dla Ustawy 15;
10% dla Ustawy 16.
Program kredytowy:
10% po podpisaniu umowy;
60% dla Ustawy 14;
20% dla Ustawy 15;
10% dla Ustawy 16.
Program „Inwestuj” (-2% zniżki):
50% po podpisaniu umowy;
20% dla Ustawy 14;
20% dla Ustawy 15;
10% dla Ustawy 16.
Program „Super Invest” (-3% zniżki):
80% po podpisaniu umowy;
20% dla Ustawy 16.
Program „Pokój” (+8% do ceny):
20% po podpisaniu umowy;
80% w Akcie 16.
Czekamy na Państwa zapytanie.
Jeśli chcesz umówić się na obejrzenie interesującej Cię nieruchomości lub odwiedzić jedno z naszych biur, skontaktuj się z nami. Aby umówić się na spotkanie lub oględziny, zadzwoń pod numer telefonu podany w ogłoszeniu lub wyślij zapytanie e-mailem. Nasz konsultant pomoże Ci w ustaleniu wszystkich niezbędnych szczegółów i ustali dogodny termin.
Szukasz odpowiedniej nieruchomości dla siebie?
Skontaktuj się z nami i opowiedz nam o swoich potrzebach i preferencjach. Nasz zespół przeprowadzi dogłębną analizę rynku, aby zaoferować Ci nieruchomości idealnie odpowiadające Twoim kryteriom. Posiadamy wyjątkowe portfolio wysokiej jakości, ekskluzywnych domów, dostępnych wyłącznie dla naszych klientów. Aby być pierwszym, który otrzyma o nich informacje – skontaktuj się z nami.
Usługi dodatkowe
Jako ceniony klient naszej firmy, będziesz miał przywilej korzystania z usług naszego doświadczonego zespołu prawnego całkowicie bezpłatnie. Ponadto oferujemy kompleksowe rozwiązania, w tym ubezpieczenia nieruchomości, bezpłatne doradztwo finansowe, a także korzystne warunki finansowania. Nasze usługi obejmują również odsprzedaż, wynajem i zarządzanie nieruchomościami. Zapewniamy wysokiej jakości remonty i wyposażenie wnętrz za pośrednictwem wyspecjalizowanych firm wchodzących w skład naszej grupy kapitałowej i będących naszymi wieloletnimi partnerami.
Ogledziny nieruchomosci
Mozemy zorganizowac ogledziny nieruchomosci, w dogodnym dla Panstwa terminie. W tym celu prosimy o skontaktowanie sie z agentem odpowiedzialnym za te oferte.
Rezerwacja nieruchomosci
Nieruchomosc moze byc zarezerwowana i wycofana ze sprzedazy po wplaceniu zadatku, po czym ustaje ogladanie z innymi kupujacymi i rozpoczyna sie przygotowanie dokumentow do zawarcia umowy przedwstepnej i ostatecznej.
Prosimy o kontakt z agentem odpowiedzialnym za te nieruchomosc w celu uzyskania szczegolowych informacji dotyczacych procedury zakupu i metod platnosci.
Uslugi dodatkowe i obsluga posprzedazowa
Jestesmy sprawdzona firma o dobrej reputacji i wieloletnim doswiadczeniu. Dlatego bedziemy z Panstwem nie tylko w trakcie zakupu, ale takze po jego zakonczeniu, swiadczac na Panstwa zyczenie dodatkowe uslugi, aby w pelni i bezproblemowo korzystac z nowo zakupionej nieruchomosci. Uslugi, ktore mozemy zaoferowac, obejmuja uzyskanie zgody na kredyt hipoteczny z bulgarskiego banku, ubezpieczenia majatku ruchomego i nieruchomosci, ubezpieczenia na zycie, ubezpieczenia medyczne i samochodowe, prace budowlane i remontowe, meblowanie, uslugi prawne i ksiegowe itp.
Obiekt jest malowniczo i dogodnie położony, zaledwie kilka minut od Sofii, w pobliżu jeziora Panczarewo, w pobliżu Opery Plenerowej i szlaku kajakowego. Okolica oferuje doskonałą infrastrukturę – w zasięgu spaceru znajduje się park z placami zabaw, przedszkole i szkoła. Dojazd do „Samokovsko szose” jest szybki i łatwy, a przystanek komunikacji miejskiej i sklep Lidl oddalone są o zaledwie kilka minut jazdy samochodem.
BEZ PROWIZJI.
Rozpoczęcie budowy - sierpień 2025
Okres realizacji - 2 lata.
Apartament nr 6 położony jest na 1 piętrze, od strony wschodniej, ma powierzchnię całkowitą 114,32 m2 i własne podwórko o powierzchni 136,20 m2.
Dystrybucja:
• hol wejściowy/korytarz;
• dwie sypialnie;
• dwie łazienki z toaletami;
• salon z kuchnią i jadalnią;
• dziedziniec z dostępem z każdego pomieszczenia.
Materiały wysokiej klasy
Zaprojektowany z dbałością o detale i środowisko, budynek Lake IT zostanie wybudowany według najwyższych standardów: stolarka aluminiowa z potrójnymi szybami, wysokiej klasy izolacja termiczna, elewacja z naturalnymi elementami drewnianymi ARTEFINO, ogrzewanie podłogowe oraz inteligentny system monitoringu wideo z funkcjami wykrywania ryzyka pożaru, zalania lub zagrożenia dla mieszkańców.
Mieszkanie
Apartamenty to apartamenty trzypokojowe i jeden apartament czteropokojowy. Są one oferowane w stanie deweloperskim zgodnym z BDS. Z apartamentów roztacza się widok na jezioro lub malowniczy las sosnowy za budynkiem, ponieważ lokalizacja jest w całości otoczona zielenią i już zabudowanym terenem z domami nadającymi się do zamieszkania – bez ryzyka przyszłej zabudowy w pobliżu.
W budynku znajdują się miejsca parkingowe podziemne oraz garaże na sprzedaż.
Koncepcja architektoniczna - żyj IT... kochaj IT... Jezioro IT
Budynek to współczesny gest architektoniczny wyrażający szacunek dla natury – forma, która nie dominuje, lecz kontempluje. Projekt jest dziełem uznanej i wielokrotnie nagradzanej pracowni architektonicznej STUDIO CREATIVE :
„Budynek Lake IT jest przedłużeniem natury, architekturą w stanie kontemplacji. Pośród łagodnej ciszy różnorodnych gatunków drzew, które tworzą leśną atmosferę, budynek Lake IT wznosi się nie jak obca bryła, lecz jako naturalne przedłużenie krajobrazu, czysty, rytmiczny i pozostający w głębokim dialogu z otoczeniem. To nie tylko architektura, ale gest szacunku dla miejsca, w którym został posadzony.
Forma jest precyzyjna, matematyczna i przejrzysta, a jednocześnie emanuje przytulnością. Prostoliniowa bryła, z równymi i długimi liniami poziomymi, spoczywa spokojnie na budynku, nie zakłócając go. Ciemne piony fasady nie rozdzielają się, lecz pulsują w rytmie otaczających ją drzew, tworząc wrażenie architektonicznych cieni, które chwytają światło i załamują je na swój własny sposób.
Duże przeszklone otwory to nie okna, lecz portale do kontemplacji. Jezioro IT jest absolutnym partnerem krajobrazu, stając się jego tłem. Wnętrze i zewnętrze są w ciągłym ruchu, przenikając się nawzajem, zmieniając się wraz z czasem, światłem i porą roku. Budynek nie zabiega o uwagę, nie deklaruje swojej obecności, obserwuje, odbija, nawiązuje dialog z naturą, pozwalając sobie być lustrem miejsca. To architektura, która nie dyktuje, lecz słucha. W nocy światło rozchodzi się niczym oddech, stłumione, równomierne, bez nadmiernego blasku, nie zakłóca ciemności, lecz akceptuje ją i dyskretnie ujawnia jej detale.
„To nie jest po prostu dom. To stan spokoju, równowagi, architektury, która wie, że prawdziwa wartość tkwi nie w tym, co pokazuje, ale w tym, co pozwala odczuć”.
Schematy płatności
Standardowy schemat:
30% przy podpisaniu umowy (wpłata początkowa);
30% dla Ustawy 14;
30% dla Ustawy 15;
10% dla Ustawy 16.
Program kredytowy:
10% po podpisaniu umowy;
60% dla Ustawy 14;
20% dla Ustawy 15;
10% dla Ustawy 16.
Program „Inwestuj” (-2% zniżki):
50% po podpisaniu umowy;
20% dla Ustawy 14;
20% dla Ustawy 15;
10% dla Ustawy 16.
Program „Super Invest” (-3% zniżki):
80% po podpisaniu umowy;
20% dla Ustawy 16.
Program „Pokój” (+8% do ceny):
20% po podpisaniu umowy;
80% w Akcie 16.
Czekamy na Państwa zapytanie.
Jeśli chcesz umówić się na obejrzenie interesującej Cię nieruchomości lub odwiedzić jedno z naszych biur, skontaktuj się z nami. Aby umówić się na spotkanie lub oględziny, zadzwoń pod numer telefonu podany w ogłoszeniu lub wyślij zapytanie e-mailem. Nasz konsultant pomoże Ci w ustaleniu wszystkich niezbędnych szczegółów i ustali dogodny termin.
Szukasz odpowiedniej nieruchomości dla siebie?
Skontaktuj się z nami i opowiedz nam o swoich potrzebach i preferencjach. Nasz zespół przeprowadzi dogłębną analizę rynku, aby zaoferować Ci nieruchomości idealnie odpowiadające Twoim kryteriom. Posiadamy wyjątkowe portfolio wysokiej jakości, ekskluzywnych domów, dostępnych wyłącznie dla naszych klientów. Aby być pierwszym, który otrzyma o nich informacje – skontaktuj się z nami.
Usługi dodatkowe
Jako ceniony klient naszej firmy, będziesz miał przywilej korzystania z usług naszego doświadczonego zespołu prawnego całkowicie bezpłatnie. Ponadto oferujemy kompleksowe rozwiązania, w tym ubezpieczenia nieruchomości, bezpłatne doradztwo finansowe, a także korzystne warunki finansowania. Nasze usługi obejmują również odsprzedaż, wynajem i zarządzanie nieruchomościami. Zapewniamy wysokiej jakości remonty i wyposażenie wnętrz za pośrednictwem wyspecjalizowanych firm wchodzących w skład naszej grupy kapitałowej i będących naszymi wieloletnimi partnerami.
Ogledziny nieruchomosci
Mozemy zorganizowac ogledziny nieruchomosci, w dogodnym dla Panstwa terminie. W tym celu prosimy o skontaktowanie sie z agentem odpowiedzialnym za te oferte.
Rezerwacja nieruchomosci
Nieruchomosc moze byc zarezerwowana i wycofana ze sprzedazy po wplaceniu zadatku, po czym ustaje ogladanie z innymi kupujacymi i rozpoczyna sie przygotowanie dokumentow do zawarcia umowy przedwstepnej i ostatecznej.
Prosimy o kontakt z agentem odpowiedzialnym za te nieruchomosc w celu uzyskania szczegolowych informacji dotyczacych procedury zakupu i metod platnosci.
Uslugi dodatkowe i obsluga posprzedazowa
Jestesmy sprawdzona firma o dobrej reputacji i wieloletnim doswiadczeniu. Dlatego bedziemy z Panstwem nie tylko w trakcie zakupu, ale takze po jego zakonczeniu, swiadczac na Panstwa zyczenie dodatkowe uslugi, aby w pelni i bezproblemowo korzystac z nowo zakupionej nieruchomosci. Uslugi, ktore mozemy zaoferowac, obejmuja uzyskanie zgody na kredyt hipoteczny z bulgarskiego banku, ubezpieczenia majatku ruchomego i nieruchomosci, ubezpieczenia na zycie, ubezpieczenia medyczne i samochodowe, prace budowlane i remontowe, meblowanie, uslugi prawne i ksiegowe itp.
Lake IT - apartamenty w ekskluzywnym nowym budynku tuż przy jeziorze Pancharevo
Pancharevo / Sofia / Bułgaria mapa
Klasa budynku: Wysoki standard
Ceny nieruchomości: 237 950 - 332 540 €
Ceny za m²: 2 300 - 2 600 €/m2
Wybierz tę opcję, a powiadomimy Cię e-mailem w przypadku jakichkolwiek zmian statusu oferty, na przykład:
• Zmiana ceny;
• Nieruchomość weszła w ofertę promocyjną;
• Nieruchomość jest zarezerwowana lub sprzedana;
• Inne wiadomości dotyczące nieruchomości.
• Nieruchomość zostaje wycofana ze sprzedaży;
Możesz w każdej chwili z łatwością zrezygnować z subskrypcji powiadomień.• Zmiany warunków oferty;
• Zmiana kwoty inwestycji;
• Przedmiot inwestycji został w całości zrealizowany;
• Oferta wygasła.
Jeśli w przyszłości zdecydujesz, że nie chcesz już otrzymywać tej oferty, możesz z łatwością zrezygnować z subskrypcji.



...Jako sprawdzony specjalista, Stonehard PREMIER zajmuje się pozycjonowaniem rynkowym i sprzedażą licznych nowych projektów budowlanych, których realizację powierzyły nam wiodące przedsiębiorstwa w Bułgarii i za granicą...