Jednopokojowe mieszkanie w innowacyjnym kompleksie przy ul. Akt 16 w dzielnicy Boyana
Cena:
190 000 € (bez VAT) / 2 500 €/m2 (bez VAT)
Nr ref. Numer: SOF-129165
Lokalizacja: Boyana / Sofia mapa
Typ budynku/kompleksu: Mieszkaniowy
Klasa budynku/kompleksu: Wysoki standard
Obszary mieszkaniowe: 76 m2
Rodzaje nieruchomości w budynku/kompleksie: Apartamenty dwupokojowe
Nr ref. Numer: SOF-129165
Lokalizacja: Boyana / Sofia
Typ budynku/kompleksu: Жилищен
Klasa budynku/kompleksu: Wysoki standard
Obszary mieszkaniowe: 76 m2
Rodzaje nieruchomości w budynku/kompleksie: Apartamenty dwupokojowe
Położony w prestiżowej okolicy, kompleks łączy w sobie doskonałą lokalizację, wysokiej jakości materiały i nowoczesne technologie, co czyni go idealnym wyborem dla osób poszukujących komfortowego życia w dobrze zorganizowanej, miejskiej przestrzeni z bliskim dostępem do natury. Dzięki dogodnemu dojazdowi do Bulwaru Bułgarskiego i Obwodnicy, można szybko dotrzeć do centrum miasta, a bliskość Parku Witosza zapewnia świeże powietrze i piękne widoki.
Parametry właściwości
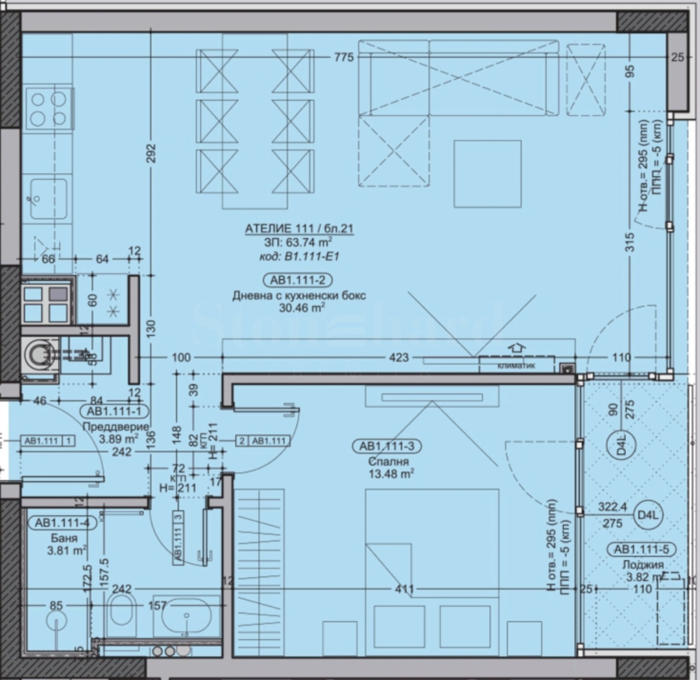
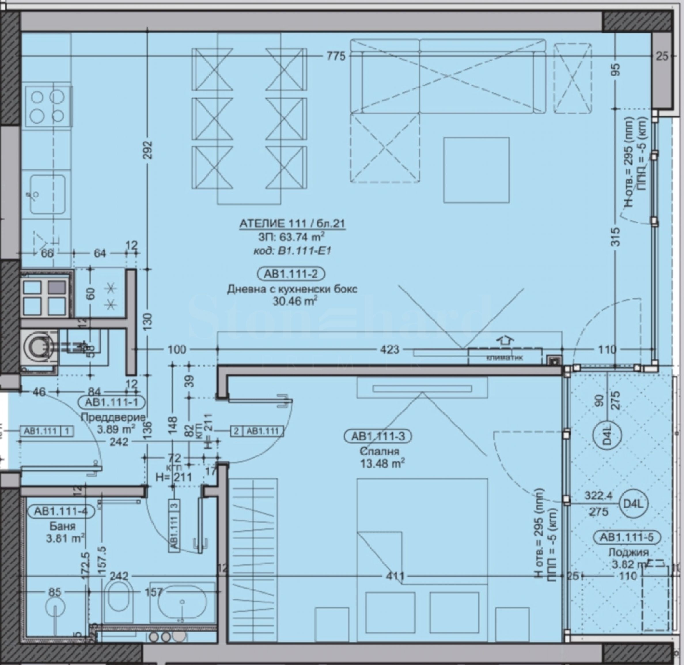
Mieszkanie znajduje się na 1. piętrze, od strony północno-wschodniej i ma powierzchnię całkowitą 76,34 m². Składa się z przedpokoju, łazienki z WC, sypialni, salonu z aneksem kuchennym oraz tarasu typu loggia, na który można wyjść zarówno z salonu, jak i z sypialni.
Oferowany jest w następującym stopniu zaawansowania według BDS:
podłogi z izolacją akustyczną Copersound P-TEX;
Łączniki i gniazdka Legrand Valena Life;
Okna PCV z potrójnymi szybami Kömmerling;
ogrzewanie gazowe z kotłem Bosch i okablowaniem klimatyzacyjnym;
Drzwi wejściowe pełne, model iDoor 20-23;
taras wyłożony mrozoodpornymi płytkami granitowymi. *Każdy z apartamentów w kompleksie wyposażony jest w system Smart Home, umożliwiający sterowanie oświetleniem, ogrzewaniem, klimatyzacją i systemem bezpieczeństwa przy użyciu urządzenia mobilnego.
Dodatkowo do nieruchomości można dokupić miejsce parkingowe w garażu podziemnym w cenie 68 454 BGN (35 000 EUR) bez VAT.
Podana cena nie zawiera podatku VAT.
O kompleksie
Kompleks, składający się z 8 budynków, oferujących łącznie 204 apartamenty i kawalerki, został zaprojektowany z myślą o funkcjonalnym rozkładzie i panoramicznym widoku na miasto i góry. Tereny zielone między budynkami obejmują ogrody, alejki spacerowe, miejsca rekreacyjne i place zabaw. Dla dodatkowego komfortu mieszkańców przewidziano centrum fitness, restaurację, kontrolowany dostęp i ochronę. Podziemny parking oferuje wygodne miejsca postojowe i garaże.
Architektura kompleksu harmonijnie współgra z otoczeniem, a elewacje wypełnione są naturalnymi materiałami, takimi jak drewno i kamień, co zapewnia nowoczesny wygląd, doskonałą izolację i trwałość.
Jakość i zrównoważony rozwój w budownictwie:
konstrukcja żelbetowa monolityczna;
ścianki działowe z pustaków ceramicznych firmy Wienerberger;
Izolacja termiczna EPS 10 cm oraz elewacja z kamienia naturalnego i klinkieru;
Izolacja termiczna XPS na dachu;
luksusowe części wspólne z granitowymi i windami Kone dla 8 osób;
zagospodarowanie terenu za pomocą automatycznego systemu nawadniającego;
automatyczne drzwi garażowe sterowane pilotem. Czekamy na Państwa zapytanie.
Jeśli chcesz umówić się na obejrzenie interesującej Cię nieruchomości lub odwiedzić jedno z naszych biur, skontaktuj się z nami. Aby umówić się na spotkanie lub oględziny, zadzwoń pod numer telefonu podany w ogłoszeniu lub wyślij zapytanie e-mailem. Nasz konsultant pomoże Ci w ustaleniu wszystkich niezbędnych szczegółów i ustali dogodny termin.
Szukasz odpowiedniej nieruchomości dla siebie?
Skontaktuj się z nami i opowiedz nam o swoich potrzebach i preferencjach. Nasz zespół przeprowadzi dogłębną analizę rynku, aby zaoferować Ci nieruchomości idealnie odpowiadające Twoim kryteriom. Posiadamy wyjątkowe portfolio wysokiej jakości, ekskluzywnych domów, dostępnych wyłącznie dla naszych klientów. Aby być pierwszym, który otrzyma o nich informacje – skontaktuj się z nami.
Usługi dodatkowe
Jako ceniony klient naszej firmy, będziesz miał przywilej korzystania z usług naszego doświadczonego zespołu prawnego całkowicie bezpłatnie. Ponadto oferujemy kompleksowe rozwiązania, w tym ubezpieczenia nieruchomości, bezpłatne doradztwo finansowe, a także korzystne warunki finansowania. Nasze usługi obejmują również odsprzedaż, wynajem i zarządzanie nieruchomościami. Zapewniamy wysokiej jakości remonty i wyposażenie wnętrz za pośrednictwem wyspecjalizowanych firm wchodzących w skład naszej grupy kapitałowej i będących naszymi wieloletnimi partnerami.
Ogledziny nieruchomosci
Mozemy zorganizowac ogledziny nieruchomosci, w dogodnym dla Panstwa terminie. W tym celu prosimy o skontaktowanie sie z agentem odpowiedzialnym za te oferte.
Rezerwacja nieruchomosci
Nieruchomosc moze byc zarezerwowana i wycofana ze sprzedazy po wplaceniu zadatku, po czym ustaje ogladanie z innymi kupujacymi i rozpoczyna sie przygotowanie dokumentow do zawarcia umowy przedwstepnej i ostatecznej.
Prosimy o kontakt z agentem odpowiedzialnym za te nieruchomosc w celu uzyskania szczegolowych informacji dotyczacych procedury zakupu i metod platnosci.
Uslugi dodatkowe i obsluga posprzedazowa
Jestesmy sprawdzona firma o dobrej reputacji i wieloletnim doswiadczeniu. Dlatego bedziemy z Panstwem nie tylko w trakcie zakupu, ale takze po jego zakonczeniu, swiadczac na Panstwa zyczenie dodatkowe uslugi, aby w pelni i bezproblemowo korzystac z nowo zakupionej nieruchomosci. Uslugi, ktore mozemy zaoferowac, obejmuja uzyskanie zgody na kredyt hipoteczny z bulgarskiego banku, ubezpieczenia majatku ruchomego i nieruchomosci, ubezpieczenia na zycie, ubezpieczenia medyczne i samochodowe, prace budowlane i remontowe, meblowanie, uslugi prawne i ksiegowe itp.
Lokalizacja na mapie
Położony w prestiżowej okolicy, kompleks łączy w sobie doskonałą lokalizację, wysokiej jakości materiały i nowoczesne technologie, co czyni go idealnym wyborem dla osób poszukujących komfortowego życia w dobrze zorganizowanej, miejskiej przestrzeni z bliskim dostępem do natury. Dzięki dogodnemu dojazdowi do Bulwaru Bułgarskiego i Obwodnicy, można szybko dotrzeć do centrum miasta, a bliskość Parku Witosza zapewnia świeże powietrze i piękne widoki.
Parametry właściwości
Mieszkanie znajduje się na 1. piętrze, od strony północno-wschodniej i ma powierzchnię całkowitą 76,34 m². Składa się z przedpokoju, łazienki z WC, sypialni, salonu z aneksem kuchennym oraz tarasu typu loggia, na który można wyjść zarówno z salonu, jak i z sypialni.
Oferowany jest w następującym stopniu zaawansowania według BDS:
podłogi z izolacją akustyczną Copersound P-TEX;
Łączniki i gniazdka Legrand Valena Life;
Okna PCV z potrójnymi szybami Kömmerling;
ogrzewanie gazowe z kotłem Bosch i okablowaniem klimatyzacyjnym;
Drzwi wejściowe pełne, model iDoor 20-23;
taras wyłożony mrozoodpornymi płytkami granitowymi. *Każdy z apartamentów w kompleksie wyposażony jest w system Smart Home, umożliwiający sterowanie oświetleniem, ogrzewaniem, klimatyzacją i systemem bezpieczeństwa przy użyciu urządzenia mobilnego.
Dodatkowo do nieruchomości można dokupić miejsce parkingowe w garażu podziemnym w cenie 68 454 BGN (35 000 EUR) bez VAT.
Podana cena nie zawiera podatku VAT.
O kompleksie
Kompleks, składający się z 8 budynków, oferujących łącznie 204 apartamenty i kawalerki, został zaprojektowany z myślą o funkcjonalnym rozkładzie i panoramicznym widoku na miasto i góry. Tereny zielone między budynkami obejmują ogrody, alejki spacerowe, miejsca rekreacyjne i place zabaw. Dla dodatkowego komfortu mieszkańców przewidziano centrum fitness, restaurację, kontrolowany dostęp i ochronę. Podziemny parking oferuje wygodne miejsca postojowe i garaże.
Architektura kompleksu harmonijnie współgra z otoczeniem, a elewacje wypełnione są naturalnymi materiałami, takimi jak drewno i kamień, co zapewnia nowoczesny wygląd, doskonałą izolację i trwałość.
Jakość i zrównoważony rozwój w budownictwie:
konstrukcja żelbetowa monolityczna;
ścianki działowe z pustaków ceramicznych firmy Wienerberger;
Izolacja termiczna EPS 10 cm oraz elewacja z kamienia naturalnego i klinkieru;
Izolacja termiczna XPS na dachu;
luksusowe części wspólne z granitowymi i windami Kone dla 8 osób;
zagospodarowanie terenu za pomocą automatycznego systemu nawadniającego;
automatyczne drzwi garażowe sterowane pilotem. Czekamy na Państwa zapytanie.
Jeśli chcesz umówić się na obejrzenie interesującej Cię nieruchomości lub odwiedzić jedno z naszych biur, skontaktuj się z nami. Aby umówić się na spotkanie lub oględziny, zadzwoń pod numer telefonu podany w ogłoszeniu lub wyślij zapytanie e-mailem. Nasz konsultant pomoże Ci w ustaleniu wszystkich niezbędnych szczegółów i ustali dogodny termin.
Szukasz odpowiedniej nieruchomości dla siebie?
Skontaktuj się z nami i opowiedz nam o swoich potrzebach i preferencjach. Nasz zespół przeprowadzi dogłębną analizę rynku, aby zaoferować Ci nieruchomości idealnie odpowiadające Twoim kryteriom. Posiadamy wyjątkowe portfolio wysokiej jakości, ekskluzywnych domów, dostępnych wyłącznie dla naszych klientów. Aby być pierwszym, który otrzyma o nich informacje – skontaktuj się z nami.
Usługi dodatkowe
Jako ceniony klient naszej firmy, będziesz miał przywilej korzystania z usług naszego doświadczonego zespołu prawnego całkowicie bezpłatnie. Ponadto oferujemy kompleksowe rozwiązania, w tym ubezpieczenia nieruchomości, bezpłatne doradztwo finansowe, a także korzystne warunki finansowania. Nasze usługi obejmują również odsprzedaż, wynajem i zarządzanie nieruchomościami. Zapewniamy wysokiej jakości remonty i wyposażenie wnętrz za pośrednictwem wyspecjalizowanych firm wchodzących w skład naszej grupy kapitałowej i będących naszymi wieloletnimi partnerami.
Ogledziny nieruchomosci
Mozemy zorganizowac ogledziny nieruchomosci, w dogodnym dla Panstwa terminie. W tym celu prosimy o skontaktowanie sie z agentem odpowiedzialnym za te oferte.
Rezerwacja nieruchomosci
Nieruchomosc moze byc zarezerwowana i wycofana ze sprzedazy po wplaceniu zadatku, po czym ustaje ogladanie z innymi kupujacymi i rozpoczyna sie przygotowanie dokumentow do zawarcia umowy przedwstepnej i ostatecznej.
Prosimy o kontakt z agentem odpowiedzialnym za te nieruchomosc w celu uzyskania szczegolowych informacji dotyczacych procedury zakupu i metod platnosci.
Uslugi dodatkowe i obsluga posprzedazowa
Jestesmy sprawdzona firma o dobrej reputacji i wieloletnim doswiadczeniu. Dlatego bedziemy z Panstwem nie tylko w trakcie zakupu, ale takze po jego zakonczeniu, swiadczac na Panstwa zyczenie dodatkowe uslugi, aby w pelni i bezproblemowo korzystac z nowo zakupionej nieruchomosci. Uslugi, ktore mozemy zaoferowac, obejmuja uzyskanie zgody na kredyt hipoteczny z bulgarskiego banku, ubezpieczenia majatku ruchomego i nieruchomosci, ubezpieczenia na zycie, ubezpieczenia medyczne i samochodowe, prace budowlane i remontowe, meblowanie, uslugi prawne i ksiegowe itp.
Położony w prestiżowej okolicy, kompleks łączy w sobie doskonałą lokalizację, wysokiej jakości materiały i nowoczesne technologie, co czyni go idealnym wyborem dla osób poszukujących komfortowego życia w dobrze zorganizowanej, miejskiej przestrzeni z bliskim dostępem do natury. Dzięki dogodnemu dojazdowi do Bulwaru Bułgarskiego i Obwodnicy, można szybko dotrzeć do centrum miasta, a bliskość Parku Witosza zapewnia świeże powietrze i piękne widoki.
Parametry właściwości
Mieszkanie znajduje się na 1. piętrze, od strony północno-wschodniej i ma powierzchnię całkowitą 76,34 m². Składa się z przedpokoju, łazienki z WC, sypialni, salonu z aneksem kuchennym oraz tarasu typu loggia, na który można wyjść zarówno z salonu, jak i z sypialni.
Oferowany jest w następującym stopniu zaawansowania według BDS:
podłogi z izolacją akustyczną Copersound P-TEX;
Łączniki i gniazdka Legrand Valena Life;
Okna PCV z potrójnymi szybami Kömmerling;
ogrzewanie gazowe z kotłem Bosch i okablowaniem klimatyzacyjnym;
Drzwi wejściowe pełne, model iDoor 20-23;
taras wyłożony mrozoodpornymi płytkami granitowymi. *Każdy z apartamentów w kompleksie wyposażony jest w system Smart Home, umożliwiający sterowanie oświetleniem, ogrzewaniem, klimatyzacją i systemem bezpieczeństwa przy użyciu urządzenia mobilnego.
Dodatkowo do nieruchomości można dokupić miejsce parkingowe w garażu podziemnym w cenie 68 454 BGN (35 000 EUR) bez VAT.
Podana cena nie zawiera podatku VAT.
O kompleksie
Kompleks, składający się z 8 budynków, oferujących łącznie 204 apartamenty i kawalerki, został zaprojektowany z myślą o funkcjonalnym rozkładzie i panoramicznym widoku na miasto i góry. Tereny zielone między budynkami obejmują ogrody, alejki spacerowe, miejsca rekreacyjne i place zabaw. Dla dodatkowego komfortu mieszkańców przewidziano centrum fitness, restaurację, kontrolowany dostęp i ochronę. Podziemny parking oferuje wygodne miejsca postojowe i garaże.
Architektura kompleksu harmonijnie współgra z otoczeniem, a elewacje wypełnione są naturalnymi materiałami, takimi jak drewno i kamień, co zapewnia nowoczesny wygląd, doskonałą izolację i trwałość.
Jakość i zrównoważony rozwój w budownictwie:
konstrukcja żelbetowa monolityczna;
ścianki działowe z pustaków ceramicznych firmy Wienerberger;
Izolacja termiczna EPS 10 cm oraz elewacja z kamienia naturalnego i klinkieru;
Izolacja termiczna XPS na dachu;
luksusowe części wspólne z granitowymi i windami Kone dla 8 osób;
zagospodarowanie terenu za pomocą automatycznego systemu nawadniającego;
automatyczne drzwi garażowe sterowane pilotem. Czekamy na Państwa zapytanie.
Jeśli chcesz umówić się na obejrzenie interesującej Cię nieruchomości lub odwiedzić jedno z naszych biur, skontaktuj się z nami. Aby umówić się na spotkanie lub oględziny, zadzwoń pod numer telefonu podany w ogłoszeniu lub wyślij zapytanie e-mailem. Nasz konsultant pomoże Ci w ustaleniu wszystkich niezbędnych szczegółów i ustali dogodny termin.
Szukasz odpowiedniej nieruchomości dla siebie?
Skontaktuj się z nami i opowiedz nam o swoich potrzebach i preferencjach. Nasz zespół przeprowadzi dogłębną analizę rynku, aby zaoferować Ci nieruchomości idealnie odpowiadające Twoim kryteriom. Posiadamy wyjątkowe portfolio wysokiej jakości, ekskluzywnych domów, dostępnych wyłącznie dla naszych klientów. Aby być pierwszym, który otrzyma o nich informacje – skontaktuj się z nami.
Usługi dodatkowe
Jako ceniony klient naszej firmy, będziesz miał przywilej korzystania z usług naszego doświadczonego zespołu prawnego całkowicie bezpłatnie. Ponadto oferujemy kompleksowe rozwiązania, w tym ubezpieczenia nieruchomości, bezpłatne doradztwo finansowe, a także korzystne warunki finansowania. Nasze usługi obejmują również odsprzedaż, wynajem i zarządzanie nieruchomościami. Zapewniamy wysokiej jakości remonty i wyposażenie wnętrz za pośrednictwem wyspecjalizowanych firm wchodzących w skład naszej grupy kapitałowej i będących naszymi wieloletnimi partnerami.
Ogledziny nieruchomosci
Mozemy zorganizowac ogledziny nieruchomosci, w dogodnym dla Panstwa terminie. W tym celu prosimy o skontaktowanie sie z agentem odpowiedzialnym za te oferte.
Rezerwacja nieruchomosci
Nieruchomosc moze byc zarezerwowana i wycofana ze sprzedazy po wplaceniu zadatku, po czym ustaje ogladanie z innymi kupujacymi i rozpoczyna sie przygotowanie dokumentow do zawarcia umowy przedwstepnej i ostatecznej.
Prosimy o kontakt z agentem odpowiedzialnym za te nieruchomosc w celu uzyskania szczegolowych informacji dotyczacych procedury zakupu i metod platnosci.
Uslugi dodatkowe i obsluga posprzedazowa
Jestesmy sprawdzona firma o dobrej reputacji i wieloletnim doswiadczeniu. Dlatego bedziemy z Panstwem nie tylko w trakcie zakupu, ale takze po jego zakonczeniu, swiadczac na Panstwa zyczenie dodatkowe uslugi, aby w pelni i bezproblemowo korzystac z nowo zakupionej nieruchomosci. Uslugi, ktore mozemy zaoferowac, obejmuja uzyskanie zgody na kredyt hipoteczny z bulgarskiego banku, ubezpieczenia majatku ruchomego i nieruchomosci, ubezpieczenia na zycie, ubezpieczenia medyczne i samochodowe, prace budowlane i remontowe, meblowanie, uslugi prawne i ksiegowe itp.
Apartamenty w I etapie nowoczesnego kompleksu w pobliżu „Simeonovsko szose”
Malinova Dolina / Sofia / Sofia / Bułgaria mapa
Ceny nieruchomości: 114 096 - 247 180 €
Ceny za m²: 1 828 - 2 296 €/m2
SPRZEDAŻ
PROJEKT
Jednopokojowe mieszkanie na 18. piętrze z widokiem na góry i miasto w Smart Tower
Krustova Vada / Sofia / Sofia / Bułgaria mapa
Obszar: 88.62 m2
Cena: 350 000 € /// 3 949 €/m2
Apartamenty przy ulicy „Prof. Krikor Azaryan” w dzielnicy „Malinova Dolina”
Malinova Dolina / Sofia / Sofia / Bułgaria mapa
Ceny nieruchomości: 187 575 - 396 363 €
Ceny za m²: 2 330 - 3 881 €/m2
Wybierz tę opcję, a powiadomimy Cię e-mailem w przypadku jakichkolwiek zmian statusu oferty, na przykład:
• Zmiana ceny;
• Nieruchomość weszła w ofertę promocyjną;
• Nieruchomość jest zarezerwowana lub sprzedana;
• Inne wiadomości dotyczące nieruchomości.
• Nieruchomość zostaje wycofana ze sprzedaży;
Możesz w każdej chwili z łatwością zrezygnować z subskrypcji powiadomień.• Zmiany warunków oferty;
• Zmiana kwoty inwestycji;
• Przedmiot inwestycji został w całości zrealizowany;
• Oferta wygasła.
Jeśli w przyszłości zdecydujesz, że nie chcesz już otrzymywać tej oferty, możesz z łatwością zrezygnować z subskrypcji.



...Jako sprawdzony specjalista, Stonehard PREMIER zajmuje się pozycjonowaniem rynkowym i sprzedażą licznych nowych projektów budowlanych, których realizację powierzyły nam wiodące przedsiębiorstwa w Bułgarii i za granicą...