Czteropokojowy apartament dwupoziomowy z prywatnym podwórkiem w nowoczesnym budynku obok stacji metra „Łomsko Shosse”
aktualny
Cena:
309 750 € (2 243 €/m2)
*Ceny i dostępność wolnych lokali w projekcie mają charakter orientacyjny. Aby uzyskać aktualne informacje o cenach, prosimy o kontakt!
Nr ref. Numer: SOF-126641 / 3941
Lokalizacja: Vrabnitsa 2 / Sofia mapa
Typ budynku/kompleksu: Mieszkaniowy
Obszary mieszkaniowe: 138.12 m2
Rodzaje nieruchomości w budynku/kompleksie:
Nr ref. Numer: SOF-126641 / 3941
Lokalizacja: Vrabnitsa 2 / Sofia
Typ budynku/kompleksu: Mieszkaniowy
Klasa budynku/kompleksu:
Obszary mieszkaniowe: 138.12 m2
Rodzaje nieruchomości w budynku/kompleksie:
Tutaj będziesz mógł cieszyć się spokojem okolicy, nie rezygnując z łatwego dostępu do centrów handlowych, restauracji i komunikacji miejskiej. Idealne miejsce dla osób poszukujących połączenia nowoczesnego stylu, udogodnień i bliskości wszystkiego, czego potrzebujesz!
W trakcie budowy. Posiada ustawę nr 14. Planowana ustawa nr 16 - 05.2026.
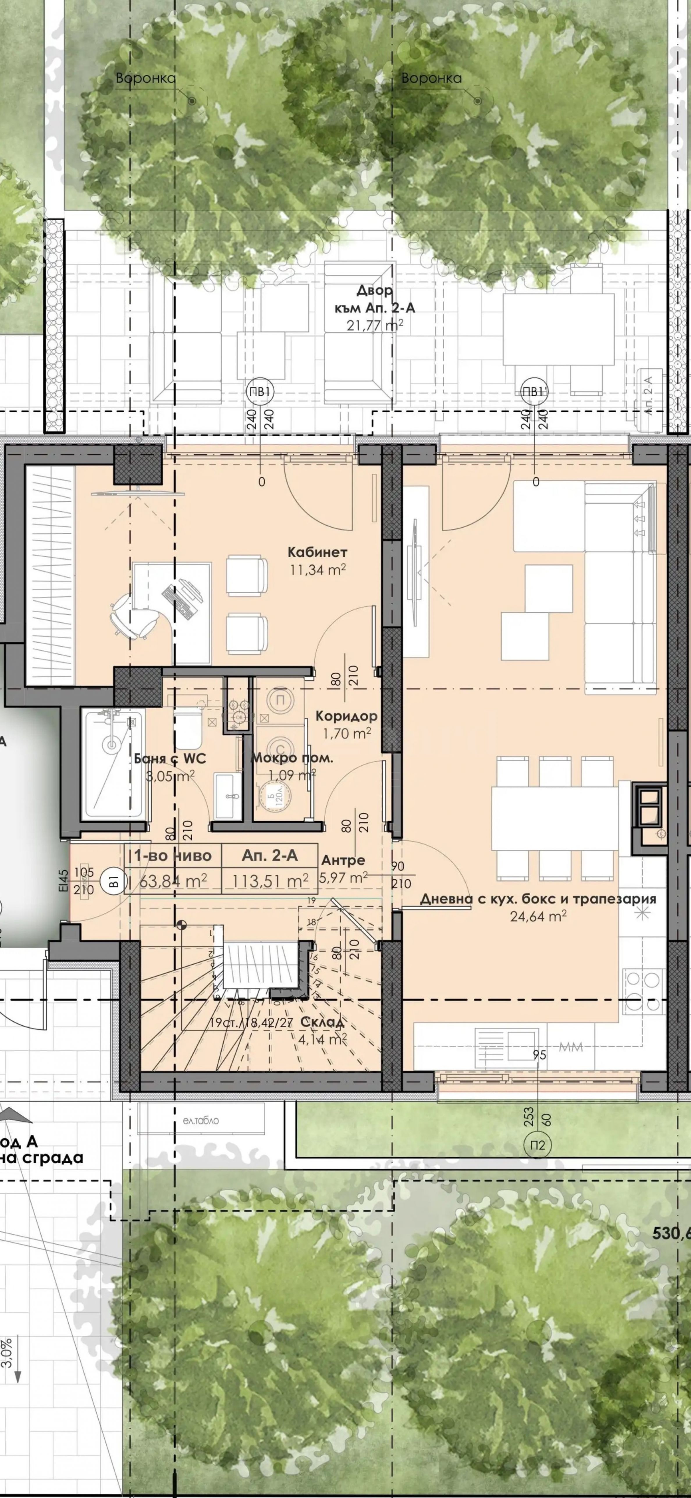
Mieszkanie znajduje się na 1. i 2. piętrze w 9. budynku i ma powierzchnię całkowitą 138,12 m². Sprzedawane jest z wykończeniem wysokiej jakości według bułgarskich standardów (na gładzi i jastrychu).
Ekspozycja mieszkania jest wschodnia.
Dystrybucja:
pierwszy poziom: hol wejściowy/korytarz, salon z jadalnią i kuchnią, pomieszczenie gospodarcze, gabinet, pomieszczenie gospodarcze, łazienka z toaletą;
drugi poziom: korytarz, dwie sypialnie, łazienka z toaletą. Do apartamentu przynależy prywatne podwórko o powierzchni 48,02 mkw.
Koncepcja budynku
Tereny zielone i wysokie drzewa stanowią integralną część koncepcji architektonicznej. Przestrzeń wokół budynku będzie bogato zagospodarowana, z licznymi nasadzeniami lip, których aromat pobudzi zmysły i pozostawi trwałe wspomnienie harmonii między naturą a domem.
Bliskość zmodernizowanego Parku Północnego i brak dużych zakładów przemysłowych w pobliżu zapewniają środowisko z czystym powietrzem i doskonałe warunki do aktywnego trybu życia i uprawiania sportów na świeżym powietrzu.
Budynek składa się z dwóch kondygnacji podziemnych i dziewięciu kondygnacji naziemnych. Zaprojektowano go z dwoma oddzielnymi wejściami, z których każde prowadzi do holu, windy i klatki schodowej z bezpośrednim dostępem do piwnicy i garaży. Apartamenty o zróżnicowanej powierzchni oferują jasne pokoje, duże okna i balkony z pięknymi widokami. Nieruchomości na parterze to piękne penthousy z przestronnymi, prywatnymi dziedzińcami.
W piwnicy przewidziano wystarczającą liczbę garaży, rozmieszczonych na dwóch poziomach, a dodatkowe miejsca parkingowe znajdują się na zewnątrz budynku.
Dane techniczne budynku:
elewacja - tynk silikatowy Caparol lub San Marco oraz rama dekoracyjna z płyt etalbond i HPL otaczająca budynek;
wykonanie dodatkowej hydroizolacji piwnicy i betonu hydroizolacyjnego;
murowanie z cegły Wienerberger;
stolarka aluminiowa najwyższej klasy na profilach Weiss Profil Thermo Pro WP85;
ogrzewane za pomocą konwektorów elektrycznych i klimatyzatorów;
Windy KONE;
Drzwi wejściowe pancerne SOLID Idoor, wykończone marmurem;
lobby i części wspólne zaprojektowane według specjalnej aranżacji wnętrz - z marmurową aranżacją wnętrz połączoną z elementami dekoracyjnymi firmy Laminam;
ogrodzenie i kontrolowany dostęp do podwórka i budynku za pomocą chipa;
zagospodarowanie terenu i układ wertykalny - z dużym udziałem zieleni parkowej i różnorodnych ogrodów skalnych z egzotyczną roślinnością. Plan płatności:
• Umowa przedwstępna - 60%;
• Ustawa 15 - 30%;
• Ustawa 16 - 10%.
Odległości i udogodnienia w pobliżu:
50 metrów od stacji metra „Lomsko Shose”;
do autobusów 85, 285 i tramwaju 6.
200 m od Szkoły Podstawowej nr 61 im. św. Cyryla i Metodego;
500 m od Szkoły Podstawowej nr 74 „Gotse Delchev”;
do sklepów - BILLA, Lidl, T-MARKET. Czekamy na Państwa zapytanie.
Jeśli chcesz umówić się na obejrzenie interesującej Cię nieruchomości lub odwiedzić jedno z naszych biur, skontaktuj się z nami. Aby umówić się na spotkanie lub oględziny, zadzwoń pod numer telefonu podany w ogłoszeniu lub wyślij zapytanie e-mailem. Nasz konsultant pomoże Ci w ustaleniu wszystkich niezbędnych szczegółów i ustali dogodny termin.
Szukasz odpowiedniej nieruchomości dla siebie?
Skontaktuj się z nami i opowiedz nam o swoich potrzebach i preferencjach. Nasz zespół przeprowadzi dogłębną analizę rynku, aby zaoferować Ci nieruchomości idealnie odpowiadające Twoim kryteriom. Posiadamy wyjątkowe portfolio wysokiej jakości, ekskluzywnych domów, dostępnych wyłącznie dla naszych klientów. Aby być pierwszym, który otrzyma o nich informacje – skontaktuj się z nami.
Usługi dodatkowe
Jako ceniony klient naszej firmy, będziesz miał przywilej korzystania z usług naszego doświadczonego zespołu prawnego całkowicie bezpłatnie. Ponadto oferujemy kompleksowe rozwiązania, w tym ubezpieczenia nieruchomości, bezpłatne doradztwo finansowe, a także korzystne warunki finansowania. Nasze usługi obejmują również odsprzedaż, wynajem i zarządzanie nieruchomościami. Zapewniamy wysokiej jakości remonty i wyposażenie wnętrz za pośrednictwem wyspecjalizowanych firm wchodzących w skład naszej grupy kapitałowej i będących naszymi wieloletnimi partnerami.
Ogledziny nieruchomosci
Mozemy zorganizowac ogledziny nieruchomosci, w dogodnym dla Panstwa terminie. W tym celu prosimy o skontaktowanie sie z agentem odpowiedzialnym za te oferte.
Rezerwacja nieruchomosci
Nieruchomosc moze byc zarezerwowana i wycofana ze sprzedazy po wplaceniu zadatku, po czym ustaje ogladanie z innymi kupujacymi i rozpoczyna sie przygotowanie dokumentow do zawarcia umowy przedwstepnej i ostatecznej.
Prosimy o kontakt z agentem odpowiedzialnym za te nieruchomosc w celu uzyskania szczegolowych informacji dotyczacych procedury zakupu i metod platnosci.
Uslugi dodatkowe i obsluga posprzedazowa
Jestesmy sprawdzona firma o dobrej reputacji i wieloletnim doswiadczeniu. Dlatego bedziemy z Panstwem nie tylko w trakcie zakupu, ale takze po jego zakonczeniu, swiadczac na Panstwa zyczenie dodatkowe uslugi, aby w pelni i bezproblemowo korzystac z nowo zakupionej nieruchomosci. Uslugi, ktore mozemy zaoferowac, obejmuja uzyskanie zgody na kredyt hipoteczny z bulgarskiego banku, ubezpieczenia majatku ruchomego i nieruchomosci, ubezpieczenia na zycie, ubezpieczenia medyczne i samochodowe, prace budowlane i remontowe, meblowanie, uslugi prawne i ksiegowe itp.
Lokalizacja na mapie
SPRZEDAŻ
PROJEKT
Luksusowy penthouse z widokiem na Góry Witosza i Park Hotel „Moskwa” w dzielnicy „Wschód”
Iztok / Sofia / Sofia / Bułgaria mapa
Klasa budynku/kompleksu: Wysoki standard
Obszar: 314.22 m2
Cena: 1 580 000 € /// 5 028 €/m2
PRAWA
SPRZEDAŻ
PROJEKT
Apartament typu maisonette z dużym tarasem panoramicznym z widokiem na całą Sofię, tuż przy bulwarze „Slivnitsa”.
Banishora / Sofia / Sofia / Bułgaria mapa
Obszar: 224.88 m2
Cena: 395 000 € /// 1 756 €/m2
SPRZEDAŻ
PROJEKT
Apartament dwupoziomowy z dwiema sypialniami, w nowym budynku w dzielnicy „Manastirski Livadi”
Manastirski Livadi - East / Sofia / Sofia / Bułgaria mapa
Obszar: 123.17 m2
Cena: 270 974 € /// 2 200 €/m2
Wybierz tę opcję, a powiadomimy Cię e-mailem w przypadku jakichkolwiek zmian statusu oferty, na przykład:
• Zmiana ceny;
• Nieruchomość weszła w ofertę promocyjną;
• Nieruchomość jest zarezerwowana lub sprzedana;
• Inne wiadomości dotyczące nieruchomości.
• Nieruchomość zostaje wycofana ze sprzedaży;
Możesz w każdej chwili z łatwością zrezygnować z subskrypcji powiadomień.• Zmiany warunków oferty;
• Zmiana kwoty inwestycji;
• Przedmiot inwestycji został w całości zrealizowany;
• Oferta wygasła.
Jeśli w przyszłości zdecydujesz, że nie chcesz już otrzymywać tej oferty, możesz z łatwością zrezygnować z subskrypcji.
Aby otrzymać całkowicie poprawne informacje na temat wolnych nieruchomości dostępnych na sprzedaż w ramach projektu oraz ich aktualnych cen, prosimy o kontakt z naszym biurem, korzystając z podanych danych kontaktowych.
Dokładamy wszelkich starań, aby nasze cenniki były zawsze aktualne i poprawne, jednakże ze względu na dużą liczbę nowych projektów w naszym katalogu oraz dużą dynamikę sprzedaży, często jest to niemożliwe.
Dziękujemy za zrozumienie!



...Jako sprawdzony specjalista, Stonehard PREMIER zajmuje się pozycjonowaniem rynkowym i sprzedażą licznych nowych projektów budowlanych, których realizację powierzyły nam wiodące przedsiębiorstwa w Bułgarii i za granicą...