Jednopokojowe mieszkanie z werandą w nowym kompleksie w dzielnicy ``Manastirski livadi - Wschód''
REF#SOF 125429
/
Apartamenty dwupokojowe
/
Zrealizowane projekty
/
Sofia
/
Manastirski Livadi - East
/
Sofia
/
Bułgaria
aktualny
Cena:
161 196 € (2 875 €/m2)
*Ceny i dostępność wolnych lokali w projekcie mają charakter orientacyjny. Aby uzyskać aktualne informacje o cenach, prosimy o kontakt!
Nr ref. Numer: SOF 125429 / 3690
Lokalizacja: Manastirski Livadi - East / Sofia mapa
Typ budynku/kompleksu: Mieszkaniowy
Klasa budynku/kompleksu: Wysoki standard
Obszary mieszkaniowe: 56.07 m2
Rodzaje nieruchomości w budynku/kompleksie: Apartamenty dwupokojowe
Nr ref. Numer: SOF 125429 / 3690
Lokalizacja: Manastirski Livadi - East / Sofia
Typ budynku/kompleksu: Mieszkaniowy
Klasa budynku/kompleksu: Wysoki standard
Obszary mieszkaniowe: 56.07 m2
Rodzaje nieruchomości w budynku/kompleksie: Apartamenty dwupokojowe
Obszar ten wyróżnia się czystym powietrzem i wspaniałymi widokami na Górę Witosza. Znajdują się tam cztery przedszkola, prywatna kuchnia dla dzieci, dwie szkoły z kursami języków obcych, sklepy spożywcze i biura firm spedycyjnych. W pobliżu kompleksu planowana jest budowa parku liniowego o powierzchni 27 akrów.
Ostatni etap budowy - przed Ustawą 16. Przewidywane zakończenie - grudzień 2025 r.
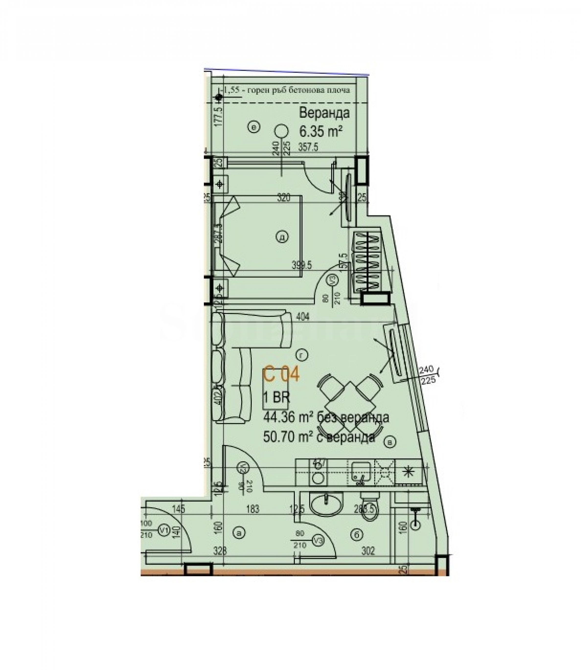
Apartament znajduje się na parterze i oferuje 56,07 m2 powierzchni całkowitej, z czego 5,36 m2 stanowią części wspólne, a 6,35 m2 stanowią werandy.
Składa się z:
salon z jadalnią i aneksem kuchennym;
weranda;
sypialnia;
łazienka z toaletą. Istnieje możliwość zakupu miejsc parkingowych podziemnych i garaży.
Harmonia z naturą i środowiskiem miejskim
Budynek zachwyca eleganckim designem o czystych liniach, połączeniu trawertynu i drewna oraz oknami typu porte-fenêtre, które nie tylko gwarantują obfitość naturalnego światła, ale także otwierają widok na Górę Witosza i tereny zielone otaczające kompleks. Właściciele będą mieli do dyspozycji bogato zagospodarowany ogród z alejkami spacerowymi i miejscami rekreacyjnymi, zaprojektowany z wysoką i niską roślinnością oraz efektami wodnymi, a także ograniczonym dostępem dla większego bezpieczeństwa i spokoju. Do dyspozycji mieszkańców są miejsca parkingowe w garażu podziemnym, a na parterze znajdzie się duży supermarket.
Niski procent części wspólnych
Nieruchomości w kompleksie zostały zaprojektowane z myślą o wygodzie i komforcie mieszkańców. W sprzedaży dostępne są apartamenty jedno-, dwu-, trzy- i czteropokojowe, przy czym apartamenty na ostatnim piętrze posiadają przestronne tarasy, a apartamenty na parterze – własne ogródki. Każdy apartament posiada przestronne i słoneczne pokoje z dużymi oknami typu porte-fenêtre. Istnieje możliwość montażu wodnego ogrzewania podłogowego i chłodzenia podłogowego. Nieruchomości oferowane są w stanie deweloperskim (BDS).
Materiały najwyższej klasy w budownictwie:
fasada wentylowana - z izolacją termiczną z wełny, aluminium imitującego drewno oraz włoskich płyt Laminam;
Cegły Wienerberger;
podwójna ściana murowana z izolacją akustyczną pomiędzy poszczególnymi mieszkaniami;
wygłuszenie podłogi;
Okna aluminiowe Reynaers MasterLine 8 z 3 szybami i ciepłą ramką dystansową;
luksusowe części wspólne z trawertynem;
Windy Schindlera ze ścianami wyłożonymi podświetlanym onyksem;
możliwość wykonania wodnego ogrzewania i chłodzenia podłogowego.
Czekamy na Państwa zapytanie.
Jeśli chcesz umówić się na obejrzenie interesującej Cię nieruchomości lub odwiedzić jedno z naszych biur, skontaktuj się z nami. Aby umówić się na spotkanie lub oględziny, zadzwoń pod numer telefonu podany w ogłoszeniu lub wyślij zapytanie e-mailem. Nasz konsultant pomoże Ci w ustaleniu wszystkich niezbędnych szczegółów i ustali dogodny termin.
Szukasz odpowiedniej nieruchomości dla siebie?
Skontaktuj się z nami i opowiedz nam o swoich potrzebach i preferencjach. Nasz zespół przeprowadzi dogłębną analizę rynku, aby zaoferować Ci nieruchomości idealnie odpowiadające Twoim kryteriom. Posiadamy wyjątkowe portfolio wysokiej jakości, ekskluzywnych domów, dostępnych wyłącznie dla naszych klientów. Aby być pierwszym, który otrzyma o nich informacje – skontaktuj się z nami.
Usługi dodatkowe
Jako ceniony klient naszej firmy, będziesz miał przywilej korzystania z usług naszego doświadczonego zespołu prawnego całkowicie bezpłatnie. Ponadto oferujemy kompleksowe rozwiązania, w tym ubezpieczenia nieruchomości, bezpłatne doradztwo finansowe, a także korzystne warunki finansowania. Nasze usługi obejmują również odsprzedaż, wynajem i zarządzanie nieruchomościami. Zapewniamy wysokiej jakości remonty i wyposażenie wnętrz za pośrednictwem wyspecjalizowanych firm wchodzących w skład naszej grupy kapitałowej i będących naszymi wieloletnimi partnerami.
Ogledziny nieruchomosci
Mozemy zorganizowac ogledziny nieruchomosci, w dogodnym dla Panstwa terminie. W tym celu prosimy o skontaktowanie sie z agentem odpowiedzialnym za te oferte.
Rezerwacja nieruchomosci
Nieruchomosc moze byc zarezerwowana i wycofana ze sprzedazy po wplaceniu zadatku, po czym ustaje ogladanie z innymi kupujacymi i rozpoczyna sie przygotowanie dokumentow do zawarcia umowy przedwstepnej i ostatecznej.
Prosimy o kontakt z agentem odpowiedzialnym za te nieruchomosc w celu uzyskania szczegolowych informacji dotyczacych procedury zakupu i metod platnosci.
Uslugi dodatkowe i obsluga posprzedazowa
Jestesmy sprawdzona firma o dobrej reputacji i wieloletnim doswiadczeniu. Dlatego bedziemy z Panstwem nie tylko w trakcie zakupu, ale takze po jego zakonczeniu, swiadczac na Panstwa zyczenie dodatkowe uslugi, aby w pelni i bezproblemowo korzystac z nowo zakupionej nieruchomosci. Uslugi, ktore mozemy zaoferowac, obejmuja uzyskanie zgody na kredyt hipoteczny z bulgarskiego banku, ubezpieczenia majatku ruchomego i nieruchomosci, ubezpieczenia na zycie, ubezpieczenia medyczne i samochodowe, prace budowlane i remontowe, meblowanie, uslugi prawne i ksiegowe itp.
Lokalizacja na mapie
SPRZEDAŻ
PROJEKT
Nowe, południowe mieszkanie jednopokojowe „pod klucz”
Gotse Delchev / Sofia / Sofia / Bułgaria mapa
Obszar: 69 m2
Cena: 270 000 € /// 3 913 €/m2
SPRZEDAŻ
PROJEKT
Nowe, południowe, jednopokojowe mieszkanie „pod klucz” w Sofii
Gotse Delchev / Sofia / Sofia / Bułgaria mapa
Obszar: 69 m2
Cena: 280 000 € /// 4 058 €/m2
Budynek mieszkalny wielorodzinny z zagospodarowanym ogrodem i różnymi typami mieszkań w dzielnicy „Malinova Dolina”
Malinova Dolina / Sofia / Sofia / Bułgaria mapa
Ceny nieruchomości: Cena na zapytanie
Wybierz tę opcję, a powiadomimy Cię e-mailem w przypadku jakichkolwiek zmian statusu oferty, na przykład:
• Zmiana ceny;
• Nieruchomość weszła w ofertę promocyjną;
• Nieruchomość jest zarezerwowana lub sprzedana;
• Inne wiadomości dotyczące nieruchomości.
• Nieruchomość zostaje wycofana ze sprzedaży;
Możesz w każdej chwili z łatwością zrezygnować z subskrypcji powiadomień.• Zmiany warunków oferty;
• Zmiana kwoty inwestycji;
• Przedmiot inwestycji został w całości zrealizowany;
• Oferta wygasła.
Jeśli w przyszłości zdecydujesz, że nie chcesz już otrzymywać tej oferty, możesz z łatwością zrezygnować z subskrypcji.
Aby otrzymać całkowicie poprawne informacje na temat wolnych nieruchomości dostępnych na sprzedaż w ramach projektu oraz ich aktualnych cen, prosimy o kontakt z naszym biurem, korzystając z podanych danych kontaktowych.
Dokładamy wszelkich starań, aby nasze cenniki były zawsze aktualne i poprawne, jednakże ze względu na dużą liczbę nowych projektów w naszym katalogu oraz dużą dynamikę sprzedaży, często jest to niemożliwe.
Dziękujemy za zrozumienie!



...Jako sprawdzony specjalista, Stonehard PREMIER zajmuje się pozycjonowaniem rynkowym i sprzedażą licznych nowych projektów budowlanych, których realizację powierzyły nam wiodące przedsiębiorstwa w Bułgarii i za granicą...