Jednopokojowe mieszkanie z ogródkiem w nowym butikowym budynku, dzielnica \"Dragalevtsi\".
REF#SOF-111946
/
Apartamenty dwupokojowe
/
Zrealizowane projekty
/
Sofia
/
Dragalevtsi
/
Sofia
/
Bułgaria
aktualny
Cena:
289 140 € (bez VAT) (3 000 €/m2 (bez VAT))
*Ceny i dostępność wolnych lokali w projekcie mają charakter orientacyjny. Aby uzyskać aktualne informacje o cenach, prosimy o kontakt!
Nr ref. Numer: SOF-111946 / 3329
Lokalizacja: Dragalevtsi / Sofia mapa
Typ budynku/kompleksu: Mieszkaniowy
Obszary mieszkaniowe: 96.38 m2
Rodzaje nieruchomości w budynku/kompleksie: Apartamenty dwupokojowe
Nr ref. Numer: SOF-111946 / 3329
Lokalizacja: Dragalevtsi / Sofia
Typ budynku/kompleksu: Mieszkaniowy
Klasa budynku/kompleksu:
Obszary mieszkaniowe: 96.38 m2
Rodzaje nieruchomości w budynku/kompleksie: Apartamenty dwupokojowe
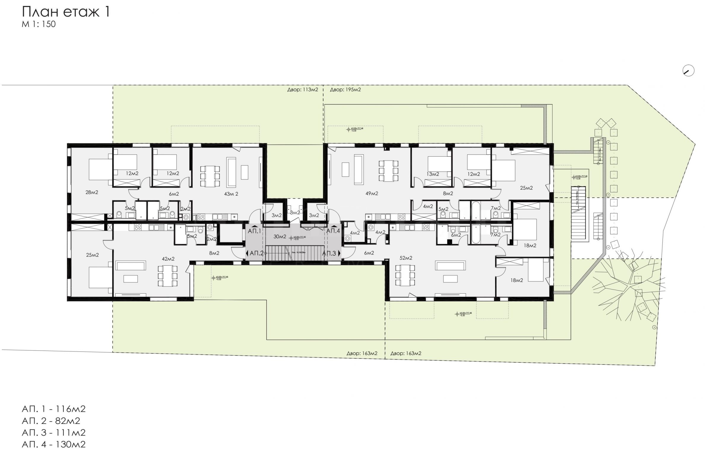
Apartament znajduje się na parterze i składa się z salonu z kuchnią, sypialni, łazienki z toaletą, pomieszczenia gospodarczego oraz prywatnego ogródka o powierzchni 163 m2.
Formacja obszaru:
powierzchnia całkowita - 96,38 mkw.;
powierzchnie wspólne - 14,38 mkw.;
powierzchnia netto - 82 mkw.;
podwórko - 163 mkw;
Do mieszkania przynależy piwnica o powierzchni 4 mkw.
Budynek jest butikowy, ogrodzony i oferuje bogato zagospodarowany ogród oraz liczne drzewa, które zapewniają przyjemny, chłodny mikroklimat latem. Wykonanie charakteryzuje się wysoką jakością, a dominuje w nim naturalna okładzina – elewacja z naturalnego kamienia oraz częściowa okładzina z naturalnego drewna – modrzewia syberyjskiego. Apartamenty charakteryzują się wysokimi sufitami, wysokiej klasy stolarką aluminiową i przeszkleniami typu „francuski”. Do apartamentów prowadzi przestronny hol, a komunikacja pionowa odbywa się za pomocą windy i reprezentacyjnej klatki schodowej z naturalnym oświetleniem i wentylacją.
Apartament jest wykończony zgodnie z bułgarskimi standardami, z pływającymi wylewkami na warstwie izolacji akustycznej, które zwiększają komfort i ochronę przed hałasem, oraz stolarką aluminiową, spełniającą wszelkie nowoczesne standardy, z panoramicznymi przeszkleniami z widokiem na góry i miasto.
Istnieje możliwość zakupu miejsca parkingowego w garażu podziemnym w cenie 35 000 euro netto.
Aby uzyskać dodatkowe informacje i umówić się na obejrzenie nieruchomości, prosimy o kontakt z pośrednikiem odpowiedzialnym za ofertę.
Ogledziny nieruchomosci
Mozemy zorganizowac ogledziny nieruchomosci, w dogodnym dla Panstwa terminie. W tym celu prosimy o skontaktowanie sie z agentem odpowiedzialnym za te oferte.
Rezerwacja nieruchomosci
Nieruchomosc moze byc zarezerwowana i wycofana ze sprzedazy po wplaceniu zadatku, po czym ustaje ogladanie z innymi kupujacymi i rozpoczyna sie przygotowanie dokumentow do zawarcia umowy przedwstepnej i ostatecznej.
Prosimy o kontakt z agentem odpowiedzialnym za te nieruchomosc w celu uzyskania szczegolowych informacji dotyczacych procedury zakupu i metod platnosci.
Uslugi dodatkowe i obsluga posprzedazowa
Jestesmy sprawdzona firma o dobrej reputacji i wieloletnim doswiadczeniu. Dlatego bedziemy z Panstwem nie tylko w trakcie zakupu, ale takze po jego zakonczeniu, swiadczac na Panstwa zyczenie dodatkowe uslugi, aby w pelni i bezproblemowo korzystac z nowo zakupionej nieruchomosci. Uslugi, ktore mozemy zaoferowac, obejmuja uzyskanie zgody na kredyt hipoteczny z bulgarskiego banku, ubezpieczenia majatku ruchomego i nieruchomosci, ubezpieczenia na zycie, ubezpieczenia medyczne i samochodowe, prace budowlane i remontowe, meblowanie, uslugi prawne i ksiegowe itp.
Lokalizacja na mapie
PRAWA
SPRZEDAŻ
PROJEKT
Przestronne mieszkanie z jedną sypialnią w zamkniętym kompleksie w dzielnicy Gorna Banya
Gorna Banya / Sofia / Sofia / Bułgaria mapa
Obszar: 98 m2
Cena: 225 422 € /// 2 300 €/m2
PRAWA
SPRZEDAŻ
PROJEKT
Designerski apartament z miejscem parkingowym w luksusowym budynku OKINAWA
Malinova Dolina / Sofia / Sofia / Bułgaria mapa
Klasa budynku/kompleksu: Wysoki standard
Obszar: 76.54 m2
Cena: 244 900 € /// 3 200 €/m2
SPRZEDAŻ
PROJEKT
Nowe, południowe mieszkanie jednopokojowe „pod klucz”
Gotse Delchev / Sofia / Sofia / Bułgaria mapa
Obszar: 69 m2
Cena: 270 000 € /// 3 913 €/m2
Wybierz tę opcję, a powiadomimy Cię e-mailem w przypadku jakichkolwiek zmian statusu oferty, na przykład:
• Zmiana ceny;
• Nieruchomość weszła w ofertę promocyjną;
• Nieruchomość jest zarezerwowana lub sprzedana;
• Inne wiadomości dotyczące nieruchomości.
• Nieruchomość zostaje wycofana ze sprzedaży;
Możesz w każdej chwili z łatwością zrezygnować z subskrypcji powiadomień.• Zmiany warunków oferty;
• Zmiana kwoty inwestycji;
• Przedmiot inwestycji został w całości zrealizowany;
• Oferta wygasła.
Jeśli w przyszłości zdecydujesz, że nie chcesz już otrzymywać tej oferty, możesz z łatwością zrezygnować z subskrypcji.
Aby otrzymać całkowicie poprawne informacje na temat wolnych nieruchomości dostępnych na sprzedaż w ramach projektu oraz ich aktualnych cen, prosimy o kontakt z naszym biurem, korzystając z podanych danych kontaktowych.
Dokładamy wszelkich starań, aby nasze cenniki były zawsze aktualne i poprawne, jednakże ze względu na dużą liczbę nowych projektów w naszym katalogu oraz dużą dynamikę sprzedaży, często jest to niemożliwe.
Dziękujemy za zrozumienie!



...Jako sprawdzony specjalista, Stonehard PREMIER zajmuje się pozycjonowaniem rynkowym i sprzedażą licznych nowych projektów budowlanych, których realizację powierzyły nam wiodące przedsiębiorstwa w Bułgarii i za granicą...