Jednopokojowe mieszkanie w nowym butikowym budynku
Cena:
210 500 € (bez VAT) (2 537 €/m2 (bez VAT))
*Ceny i dostępność wolnych lokali w projekcie mają charakter orientacyjny. Aby uzyskać aktualne informacje o cenach, prosimy o kontakt!
Nr ref. Numer: SOF-137980 / 4647
Lokalizacja: Krustova Vada / Sofia mapa
Typ budynku/kompleksu: Mieszkaniowy
Klasa budynku/kompleksu: Wysoki standard
Obszary mieszkaniowe: 82.98 m2
Rodzaje nieruchomości w budynku/kompleksie: Apartamenty dwupokojowe
Nr ref. Numer: SOF-137980 / 4647
Lokalizacja: Krustova Vada / Sofia
Typ budynku/kompleksu: Mieszkaniowy
Klasa budynku/kompleksu: Wysoki standard
Obszary mieszkaniowe: 82.98 m2
Rodzaje nieruchomości w budynku/kompleksie: Apartamenty dwupokojowe
Budynek położony jest w prestiżowej południowej części stolicy – w bliskim sąsiedztwie zoo, zaledwie 950 m od centrum handlowego Paradise Center i stacji metra Witosza. Położony przy cichej, wewnętrznej uliczce, budynek zapewnia prywatność i bezpieczeństwo, a także szybkie połączenie nowym bulwarem Philipa Kuteva z bulwarem Cherni Vrah i szosą Simeonovsko. Okolica łączy w sobie ciszę, doskonałą infrastrukturę i szybki dostęp do kluczowych punktów miasta.
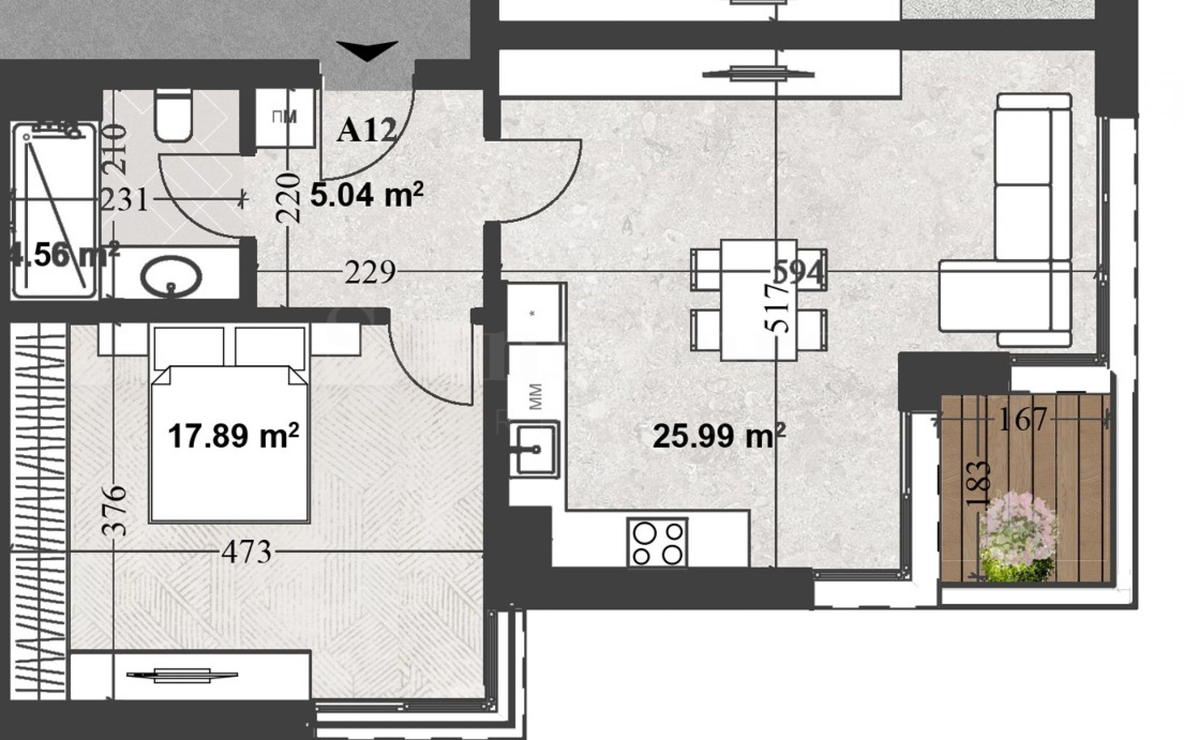
Mieszkanie (apart. 12) znajduje się na trzecim piętrze i ma powierzchnię całkowitą 82,98 m2 oraz następujący układ:
• korytarz;
• salon z kuchnią i jadalnią,
• sypialnia;
• łazienka z toaletą;
• loggia.
Budynek ma pięć kondygnacji naziemnych i jedną podziemną. Na kondygnacji podziemnej znajdują się garaże, miejsca parkingowe i piwnice. Pozostałe pięć kondygnacji mieszkalnych mieści 14 mieszkań dwu-, trzy- i czteropokojowych.
Nieruchomości łączą jasne przestrzenie, czyste linie i poczucie spokoju – wszystko zostało zaprojektowane z dbałością o detale, z myślą o osobach ceniących jakość i nowoczesny styl życia. Innowacyjna koncepcja łączy nowoczesną architekturę, kontakt z naturą i nowe technologie.
Nowoczesne i wysokiej jakości budownictwo, bardzo wysoki standard jakości użytych materiałów.
Dane techniczne:
• Klasa energetyczna A – Budynek zaprojektowano z myślą o wysokiej efektywności energetycznej, co zapewnia niskie zużycie energii oraz optymalne koszty ogrzewania i chłodzenia – dla bardziej zrównoważonego i komfortowego stylu życia.
• Instalacja fotowoltaiczna - Wbudowany system zasilania części wspólnych, który przyczynia się do obniżenia kosztów energii i bardziej ekologicznej eksploatacji budynku.
• Elewacja klasy premium - Elewacja ceramiczna o nowoczesnym wzornictwie i doskonałej trwałości przez długi czas.
• Okna francuskie - Maksymalna powierzchnia przeszklona zapewniająca więcej światła, przestrzeni i naturalne połączenie z otoczeniem.
• Stolarka aluminiowa najwyższej klasy - z doskonałą izolacją cieplną i akustyczną, nowoczesnym wyglądem i długą żywotnością.
• Dyskretne oświetlenie elewacji i ogrodu, podkreślające architekturę i zapewniające komfort i bezpieczeństwo w nocy.
• Wysoce skuteczna izolacja akustyczna - gwarantuje ciszę, prywatność i komfort akustyczny w każdym domu.
• Gotowe instalacje dla systemów pomp ciepła – energooszczędne rozwiązanie do ogrzewania, chłodzenia i podgrzewania wody.
• Luksusowe części wspólne - zaprojektowane według indywidualnego projektu wnętrza, z wykorzystaniem materiałów najwyższej jakości i z dbałością o każdy szczegół.
• We wszystkich apartamentach zainstalowano ogrzewanie podłogowe, gwarantujące całoroczny komfort.
• Bogato zagospodarowany, ogrodzony dziedziniec - ciche, zielone i estetyczne otoczenie sprzyjające rekreacji i relaksowi.
• Parking podziemny - Przestronny i dobrze zorganizowany, z bezpośrednim dostępem do budynku, zaprojektowany tak, aby umożliwić wygodne parkowanie również większych samochodów.
• Ograniczony dostęp - Zautomatyzowany system kontroli wideo umożliwiający dostęp do budynku i wewnętrznego dziedzińca zapewnia większe bezpieczeństwo i spokój ducha.
Trzy systemy płatności:
Schemat 1:
•30% po uzgodnieniu wstępnym
•30% dla Aktu 14
•30% dla Aktu 15
•10% dla Ustawy 16
Schemat 2:
•60% po zawarciu umowy przedwstępnej
•30% dla Aktu 15
•10% dla Ustawy 16
Schemat 3:
•90% z umową przedwstępną
•10% dla Ustawy 16
Rezerwacja możliwa po wpłaceniu depozytu.
Istnieje możliwość zakupu zewnętrznych miejsc parkingowych - 35 000 € (68 454 lewów), podziemnych miejsc parkingowych - 39 000 € (76 277 lewów) i garaży podziemnych - 45 000 € (88 012 lewów). Ceny nie zawierają podatku VAT.
Rozpoczęcie budowy: listopad 2025 r., przewidywane oddanie do użytku 16 grudnia 2027 r.
Lokalizacja na mapie
SPRZEDAŻ
PROJEKT
Mieszkanie jednopokojowe w innowacyjnym, energooszczędnym budynku mieszkalnym z instalacją fotowoltaiczną
Manastirski Livadi - East / Sofia / Sofia / Bułgaria mapa
Obszar: 83 m2
Cena: 231 083 € /// 2 784 €/m2
SPRZEDAŻ
PROJEKT
Jednopokojowe mieszkanie z ogródkiem i garażem w cenie, tuż przy parku w dzielnicy "Gorna Banya"
Gorna Banya / Sofia / Sofia / Bułgaria mapa
Obszar: 73.20 m2
Cena: 218 525 € /// 2 985 €/m2
SPRZEDAŻ
PROJEKT
Nowe mieszkanie jednopokojowe w kompleksie mieszkalnym z dużym, bujnie zagospodarowanym ogrodem
Malinova Dolina / Sofia / Sofia / Bułgaria mapa
Obszar: 76.19 m2
Cena: 188 888 € /// 2 479 €/m2
Wybierz tę opcję, a powiadomimy Cię e-mailem w przypadku jakichkolwiek zmian statusu oferty, na przykład:
• Zmiana ceny;
• Nieruchomość weszła w ofertę promocyjną;
• Nieruchomość jest zarezerwowana lub sprzedana;
• Inne wiadomości dotyczące nieruchomości.
• Nieruchomość zostaje wycofana ze sprzedaży;
Możesz w każdej chwili z łatwością zrezygnować z subskrypcji powiadomień.• Zmiany warunków oferty;
• Zmiana kwoty inwestycji;
• Przedmiot inwestycji został w całości zrealizowany;
• Oferta wygasła.
Jeśli w przyszłości zdecydujesz, że nie chcesz już otrzymywać tej oferty, możesz z łatwością zrezygnować z subskrypcji.
Aby otrzymać całkowicie poprawne informacje na temat wolnych nieruchomości dostępnych na sprzedaż w ramach projektu oraz ich aktualnych cen, prosimy o kontakt z naszym biurem, korzystając z podanych danych kontaktowych.
Dokładamy wszelkich starań, aby nasze cenniki były zawsze aktualne i poprawne, jednakże ze względu na dużą liczbę nowych projektów w naszym katalogu oraz dużą dynamikę sprzedaży, często jest to niemożliwe.
Dziękujemy za zrozumienie!



...Jako sprawdzony specjalista, Stonehard PREMIER zajmuje się pozycjonowaniem rynkowym i sprzedażą licznych nowych projektów budowlanych, których realizację powierzyły nam wiodące przedsiębiorstwa w Bułgarii i za granicą...