EKSKLUZYWNY
PRAWA

Jednopokojowe mieszkanie w nowym butikowym budynku

Cena:

210 500(bez VAT) (2 537 €/m2 (bez VAT))

*Ceny i dostępność wolnych lokali w projekcie mają charakter orientacyjny. Aby uzyskać aktualne informacje o cenach, prosimy o kontakt!

Nr ref. Numer: SOF-137980 / 4647

Lokalizacja: Krustova Vada / Sofia mapa

Typ budynku/kompleksu: Mieszkaniowy

Klasa budynku/kompleksu: Wysoki standard

Obszary mieszkaniowe: 82.98 m2

Rodzaje nieruchomości w budynku/kompleksie: Apartamenty dwupokojowe

Nr ref. Numer: SOF-137980 / 4647

Lokalizacja: Krustova Vada / Sofia

Typ budynku/kompleksu: Mieszkaniowy

Klasa budynku/kompleksu: Wysoki standard

Obszary mieszkaniowe: 82.98 m2

Rodzaje nieruchomości w budynku/kompleksie: Apartamenty dwupokojowe

Opis projektu
Oferujemy Państwu ekskluzywną ofertę sprzedaży apartamentu (apart. 12) w nowoczesnej, miejskiej rezydencji o wyjątkowym designie, położonej w prestiżowej południowej części Sofii. Apartament łączy w sobie elegancką architekturę, wysokiej jakości materiały i nowoczesne technologie.

Budynek położony jest w prestiżowej południowej części stolicy – w bliskim sąsiedztwie zoo, zaledwie 950 m od centrum handlowego Paradise Center i stacji metra Witosza. Położony przy cichej, wewnętrznej uliczce, budynek zapewnia prywatność i bezpieczeństwo, a także szybkie połączenie nowym bulwarem Philipa Kuteva z bulwarem Cherni Vrah i szosą Simeonovsko. Okolica łączy w sobie ciszę, doskonałą infrastrukturę i szybki dostęp do kluczowych punktów miasta.

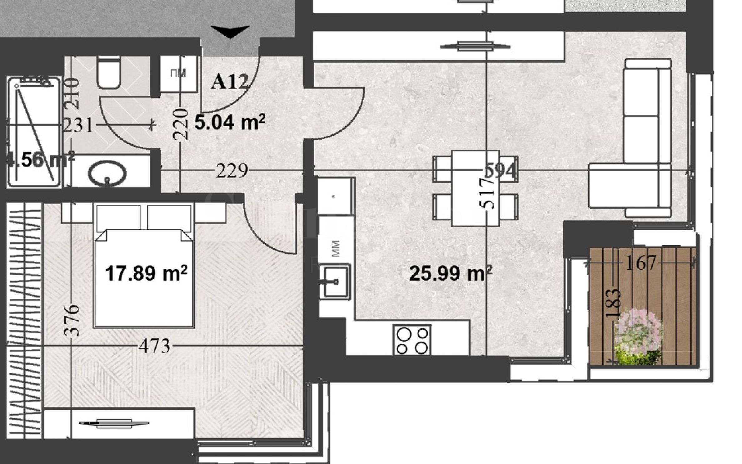
Mieszkanie (apart. 12) znajduje się na trzecim piętrze i ma powierzchnię całkowitą 82,98 m2 oraz następujący układ:
• korytarz;
• salon z kuchnią i jadalnią,
• sypialnia;
• łazienka z toaletą;
• loggia.

Budynek ma pięć kondygnacji naziemnych i jedną podziemną. Na kondygnacji podziemnej znajdują się garaże, miejsca parkingowe i piwnice. Pozostałe pięć kondygnacji mieszkalnych mieści 14 mieszkań dwu-, trzy- i czteropokojowych.

Nieruchomości łączą jasne przestrzenie, czyste linie i poczucie spokoju – wszystko zostało zaprojektowane z dbałością o detale, z myślą o osobach ceniących jakość i nowoczesny styl życia. Innowacyjna koncepcja łączy nowoczesną architekturę, kontakt z naturą i nowe technologie.

Nowoczesne i wysokiej jakości budownictwo, bardzo wysoki standard jakości użytych materiałów.

Dane techniczne:
• Klasa energetyczna A – Budynek zaprojektowano z myślą o wysokiej efektywności energetycznej, co zapewnia niskie zużycie energii oraz optymalne koszty ogrzewania i chłodzenia – dla bardziej zrównoważonego i komfortowego stylu życia.
• Instalacja fotowoltaiczna - Wbudowany system zasilania części wspólnych, który przyczynia się do obniżenia kosztów energii i bardziej ekologicznej eksploatacji budynku.
• Elewacja klasy premium - Elewacja ceramiczna o nowoczesnym wzornictwie i doskonałej trwałości przez długi czas.
• Okna francuskie - Maksymalna powierzchnia przeszklona zapewniająca więcej światła, przestrzeni i naturalne połączenie z otoczeniem.
• Stolarka aluminiowa najwyższej klasy - z doskonałą izolacją cieplną i akustyczną, nowoczesnym wyglądem i długą żywotnością.
• Dyskretne oświetlenie elewacji i ogrodu, podkreślające architekturę i zapewniające komfort i bezpieczeństwo w nocy.
• Wysoce skuteczna izolacja akustyczna - gwarantuje ciszę, prywatność i komfort akustyczny w każdym domu.
• Gotowe instalacje dla systemów pomp ciepła – energooszczędne rozwiązanie do ogrzewania, chłodzenia i podgrzewania wody.
• Luksusowe części wspólne - zaprojektowane według indywidualnego projektu wnętrza, z wykorzystaniem materiałów najwyższej jakości i z dbałością o każdy szczegół.
• We wszystkich apartamentach zainstalowano ogrzewanie podłogowe, gwarantujące całoroczny komfort.
• Bogato zagospodarowany, ogrodzony dziedziniec - ciche, zielone i estetyczne otoczenie sprzyjające rekreacji i relaksowi.
• Parking podziemny - Przestronny i dobrze zorganizowany, z bezpośrednim dostępem do budynku, zaprojektowany tak, aby umożliwić wygodne parkowanie również większych samochodów.
• Ograniczony dostęp - Zautomatyzowany system kontroli wideo umożliwiający dostęp do budynku i wewnętrznego dziedzińca zapewnia większe bezpieczeństwo i spokój ducha.

Trzy systemy płatności:
Schemat 1:
•30% po uzgodnieniu wstępnym
•30% dla Aktu 14
•30% dla Aktu 15
•10% dla Ustawy 16
Schemat 2:
•60% po zawarciu umowy przedwstępnej
•30% dla Aktu 15
•10% dla Ustawy 16
Schemat 3:
•90% z umową przedwstępną
•10% dla Ustawy 16
Rezerwacja możliwa po wpłaceniu depozytu.

Istnieje możliwość zakupu zewnętrznych miejsc parkingowych - 35 000 € (68 454 lewów), podziemnych miejsc parkingowych - 39 000 € (76 277 lewów) i garaży podziemnych - 45 000 € (88 012 lewów). Ceny nie zawierają podatku VAT.

Rozpoczęcie budowy: listopad 2025 r., przewidywane oddanie do użytku 16 grudnia 2027 r.
Kontakty do naszego biura

Kontakty do naszego biura

Lokalizacja na mapie

PRZYBLIŻONA LOKALIZACJA
Wyślij zapytanie, aby uzyskać więcej informacji

Kontakty do naszego biura

Twoje imię*
Twój e-mail*
Twój telefon*

„Stonehard Marketing” Ltd. chroni Twoje dane osobowe i stosuje Politykę Prywatności firmy, zgodnie z wymogami Rozporządzenia (UE) nr 2016/679. W następnym kroku będziesz mógł wyrazić zgodę lub sprzeciw na przechowywanie i przetwarzanie Twoich danych osobowych. Dokonaj wyboru w wiadomości e-mail, którą wyślemy do Ciebie po otrzymaniu zapytania.

Więcej nieruchomości o podobnych cechach
NOWA
OFERTA
WTÓRNY
SPRZEDAŻ
ZAKOŃCZONY
PROJEKT

Na sprzedaż mieszkanie jednopokojowe w wykończonym pod klucz, butikowym budynku z pozwoleniem na budowę wydanym 16 czerwca w dzielnicy Krastova Vada

Krustova Vada / Sofia / Sofia / Bułgaria mapa

Obszar: 76.78 m2

Cena: 268 730 € /// 3 500 €/m2

NOWA
OFERTA
WTÓRNY
SPRZEDAŻ
ZAKOŃCZONY
PROJEKT

Mieszkanie jednopokojowe z miejscem parkingowym na 8 piętrze w Teatralnej Park Residence

Oborishte / Sofia / Sofia / Bułgaria mapa

Obszar: 64.44 m2

Cena: 416 974 € /// 6 471 €/m2

NOWA
OFERTA
WTÓRNY
SPRZEDAŻ
ZAKOŃCZONY
PROJEKT

Na sprzedaż mieszkanie jednopokojowe, gotowe do zamieszkania, nowe budownictwo w dzielnicy "Krustova Vada", ACT 16 czerwca

Krustova Vada / Sofia / Sofia / Bułgaria mapa

Obszar: 81.60 m2

Cena: 285 600 € /// 3 500 €/m2

...Jako sprawdzony specjalista, Stonehard PREMIER zajmuje się pozycjonowaniem rynkowym i sprzedażą licznych nowych projektów budowlanych, których realizację powierzyły nam wiodące przedsiębiorstwa w Bułgarii i za granicą...

Wybierz tę opcję, a powiadomimy Cię e-mailem w przypadku jakichkolwiek zmian statusu oferty, na przykład:

• Zmiana ceny;

• Nieruchomość weszła w ofertę promocyjną;

• Nieruchomość jest zarezerwowana lub sprzedana;

• Inne wiadomości dotyczące nieruchomości.

• Nieruchomość zostaje wycofana ze sprzedaży;

Możesz w każdej chwili z łatwością zrezygnować z subskrypcji powiadomień.
Powierzchnię nieruchomości w Dubaju / ZEA oblicza się w stopach kwadratowych. Wszystkie powierzchnie podane w tej ofercie są automatycznie przeliczane na metry kwadratowe według wzoru 1 m2 = 10,7639 stóp kwadratowych.
Wynajmujący płaci za prąd, wodę, ogrzewanie/chłodzenie, internet, telewizję kablową i wywóz odpadów stałych.
Pierwotna cena nieruchomości podana jest w lokalnej walucie, dirhamie (AED). Cena podana w walucie innej niż dirham ma charakter orientacyjny i jest przeliczana automatycznie na podstawie kursu krzyżowego, który aktualizujemy 4 razy dziennie. Dlatego też cena podawana w innej walucie niż dirham (AED) podlega ciągłym wahaniom, choć w niewielkich granicach.
Ceny mają charakter orientacyjny. Aby uzyskać dokładną kalkulację ceny i ofertę, prosimy o kontakt z odpowiedzialnym konsultantem!
Wybierz tę opcję, a zaczniesz otrzymywać nowe oferty o podobnym przedmiocie inwestycyjnym i zlokalizowane w tym samym obszarze.
Wszystkie nowe oferty i bieżące informacje o naszej działalności otrzymasz na swój adres e-mail.
Biorąc pod uwagę obecną silną sprzedaż i dynamikę rynku, ceny i dostępność wolnych nieruchomości w tym projekcie podane na naszej stronie mogą nieznacznie różnić się od aktualnych.
Aby otrzymać całkowicie poprawne informacje na temat wolnych nieruchomości dostępnych na sprzedaż w ramach projektu oraz ich aktualnych cen, prosimy o kontakt z naszym biurem, korzystając z podanych danych kontaktowych.
Dokładamy wszelkich starań, aby nasze cenniki były zawsze aktualne i poprawne, jednakże ze względu na dużą liczbę nowych projektów w naszym katalogu oraz dużą dynamikę sprzedaży, często jest to niemożliwe.
Dziękujemy za zrozumienie!