Dwupokojowe mieszkanie w nowym, butikowym kompleksie składającym się z 4 budynków w dzielnicy „Prosław”

Cena:

153 000 (1 408 €/m2)

*Ceny i dostępność wolnych lokali w projekcie mają charakter orientacyjny. Aby uzyskać aktualne informacje o cenach, prosimy o kontakt!

Nr ref. Numer: PLV-136162 / 4876

Lokalizacja: Proslav / Plovdiv mapa

Typ budynku/kompleksu: Mieszkaniowy

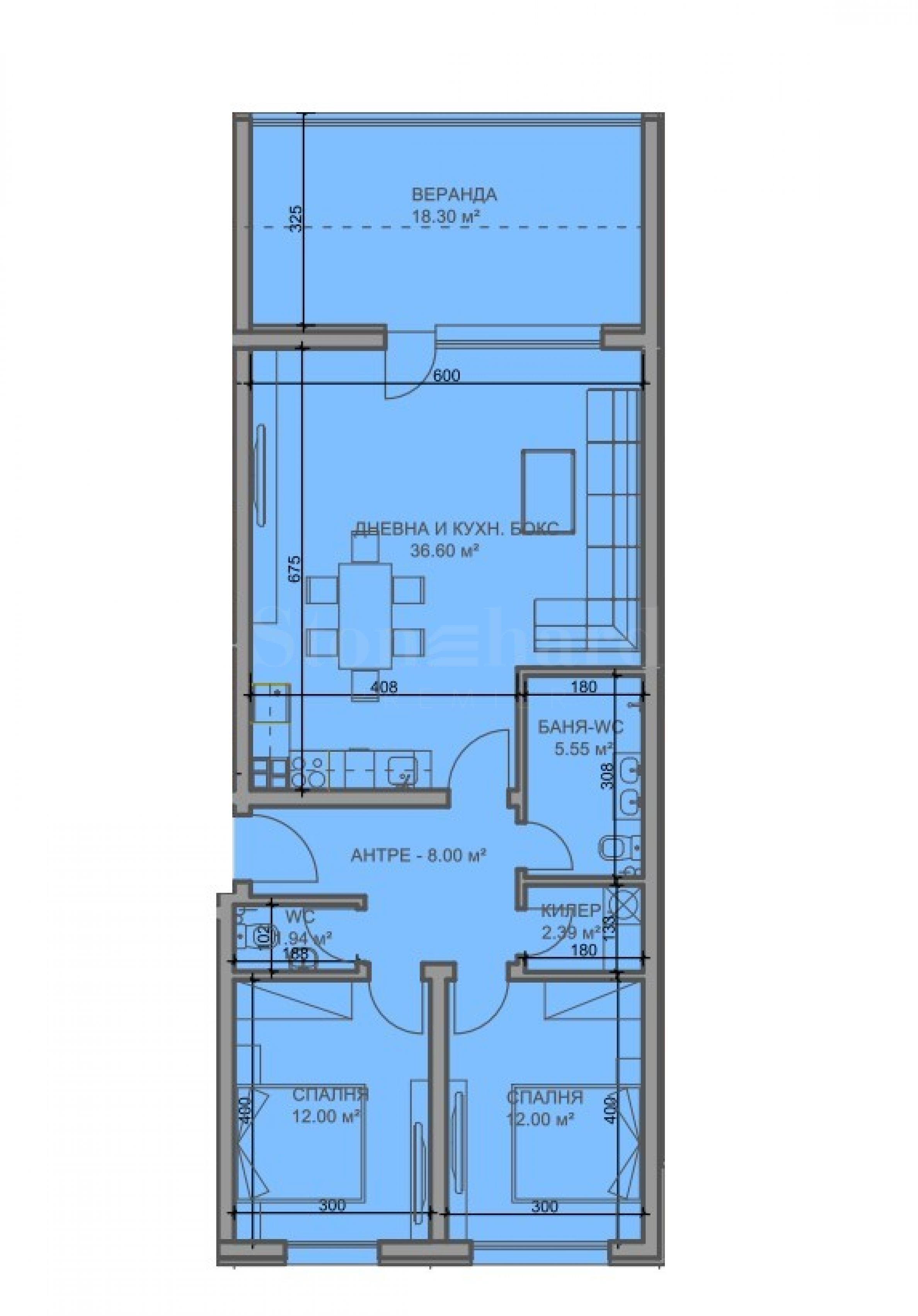
Obszary mieszkaniowe: 108.68 m2

Rodzaje nieruchomości w budynku/kompleksie: Apartamenty trzypokojowe

Nr ref. Numer: PLV-136162 / 4876

Lokalizacja: Proslav / Plovdiv

Typ budynku/kompleksu: Mieszkaniowy

Klasa budynku/kompleksu:  

Obszary mieszkaniowe: 108.68 m2

Rodzaje nieruchomości w budynku/kompleksie: Apartamenty trzypokojowe

Opis projektu
Prezentujemy trzypokojowe mieszkanie w nowym, kameralnym kompleksie mieszkaniowym w dzielnicy „Proslav”. Doskonała lokalizacja w cichej i zielonej okolicy, z dojazdem asfaltową drogą, w pobliżu Centrum Wioślarskiego, restauracji, sklepów, przystanku komunikacji miejskiej itp.

Przedsprzedaż! Premiera Aktu 14 spodziewana jest w sierpniu 2026 r., a Aktu 16 w sierpniu 2027 r.

Projekt składa się z czterech czteropiętrowych budynków, w każdym z zaledwie 11 apartamentami – dwu- i trzypokojowymi. Oferuje on spokojne i starannie dobrane środowisko życia, niską gęstość zabudowy i doskonale rozplanowane mieszkania.

Nieruchomość o łącznej powierzchni 108,68 mkw. położona jest na 1 piętrze z 4 budynków i posiada werandę o powierzchni 18,30 mkw.

Mieszkania są wydawane w stopniu wykończenia zgodnym z bułgarskimi normami budowlanymi, który obejmuje:
• podłoga - wylewka cementowa;
• ściany i sufity - tynki gipsowe;
• drzwi wejściowe pancerne;
• zainstalowano przełączniki, gniazdka i piony instalacyjne;
• ocieplenie zewnętrzne budynku i części wspólnych materiałami wysokiej klasy;
• stolarka aluminiowa o wysokiej klasie profili i podwójnymi szybami;
• wyloty klimatyzatora.

Dzięki temu właściciele mogą wykończyć dom według własnego gustu i stylu.

Architektura i środowisko

Kompleks kontynuuje ugruntowaną jakość pierwszego budynku ukończonego w tym regionie. Oferuje nowoczesną wizję, dbałość o detale i otoczenie, w którym natura i architektura pozostają w pełnej równowadze.

Zalety
• cztery nowoczesne budynki, każdy o 4 piętrach;
• tylko 11 mieszkań w każdym budynku;
• mieszkania dwupokojowe i trzypokojowe o funkcjonalnym rozkładzie;
• bogato zagospodarowane przestrzenie wewnętrzne;
• place zabaw i miejsca rekreacji;
• miejsca parkingowe podziemne i naziemne oraz garaże;
• doskonały dojazd i spokojne, dobrze rozwinięte otoczenie.

Plan płatności
• przy umowie przedwstępnej - 30%;
• Ustawa 14 – 60%;
• Akt 15 – 10%.

Aby uzyskać więcej informacji skontaktuj się z brokerem odpowiedzialnym za ofertę.
Kontakty do naszego biura
Kontakty do naszego biura

Lokalizacja na mapie

PRZYBLIŻONA LOKALIZACJA
Wyślij zapytanie, aby uzyskać więcej informacji
Kontakty do naszego biura
Twoje imię*
Twój e-mail*
Twój telefon*

„Stonehard Marketing” Ltd. chroni Twoje dane osobowe i stosuje Politykę Prywatności firmy, zgodnie z wymogami Rozporządzenia (UE) nr 2016/679. W następnym kroku będziesz mógł wyrazić zgodę lub sprzeciw na przechowywanie i przetwarzanie Twoich danych osobowych. Dokonaj wyboru w wiadomości e-mail, którą wyślemy do Ciebie po otrzymaniu zapytania.

Więcej nieruchomości o podobnych cechach
NOWA
OFERTA
WTÓRNY
SPRZEDAŻ
ZAKOŃCZONY
PROJEKT

Dwupokojowe mieszkanie w prestiżowym, zamkniętym kompleksie w dzielnicy „Karshiyaka”

Kurshiyaka / Plovdiv / Plovdiv / Bułgaria mapa

Obszar: 120.56 m2

Cena: 204 952 € /// 1 700 €/m2

NOWA
OFERTA
EKSKLUZYWNY
PRAWA
WTÓRNY
SPRZEDAŻ
ZAKOŃCZONY
PROJEKT

Przestronny apartament rodzinny w Royal Garden 2 – renomowanym adresie w Płowdiwie

Hristo Smirnenski / Plovdiv / Plovdiv / Bułgaria mapa

Obszar: 147 m2

Cena: 338 000 € /// 2 299 €/m2

NOWA
OFERTA
WTÓRNY
SPRZEDAŻ
ZAKOŃCZONY
PROJEKT

Dwupokojowy apartament z tarasem widokowym i widokiem na Rodopy w dzielnicy „Ostromiła”

Ostromila / Plovdiv / Plovdiv / Bułgaria mapa

Obszar: 205.65 m2

Cena: 181 656 € /// 883 €/m2

...Jako sprawdzony specjalista, Stonehard PREMIER zajmuje się pozycjonowaniem rynkowym i sprzedażą licznych nowych projektów budowlanych, których realizację powierzyły nam wiodące przedsiębiorstwa w Bułgarii i za granicą...

Wybierz tę opcję, a powiadomimy Cię e-mailem w przypadku jakichkolwiek zmian statusu oferty, na przykład:

• Zmiana ceny;

• Nieruchomość weszła w ofertę promocyjną;

• Nieruchomość jest zarezerwowana lub sprzedana;

• Inne wiadomości dotyczące nieruchomości.

• Nieruchomość zostaje wycofana ze sprzedaży;

Możesz w każdej chwili z łatwością zrezygnować z subskrypcji powiadomień.
Powierzchnię nieruchomości w Dubaju / ZEA oblicza się w stopach kwadratowych. Wszystkie powierzchnie podane w tej ofercie są automatycznie przeliczane na metry kwadratowe według wzoru 1 m2 = 10,7639 stóp kwadratowych.
Wynajmujący płaci za prąd, wodę, ogrzewanie/chłodzenie, internet, telewizję kablową i wywóz odpadów stałych.
Pierwotna cena nieruchomości podana jest w lokalnej walucie, dirhamie (AED). Cena podana w walucie innej niż dirham ma charakter orientacyjny i jest przeliczana automatycznie na podstawie kursu krzyżowego, który aktualizujemy 4 razy dziennie. Dlatego też cena podawana w innej walucie niż dirham (AED) podlega ciągłym wahaniom, choć w niewielkich granicach.
Ceny mają charakter orientacyjny. Aby uzyskać dokładną kalkulację ceny i ofertę, prosimy o kontakt z odpowiedzialnym konsultantem!
Wybierz tę opcję, a zaczniesz otrzymywać nowe oferty o podobnym przedmiocie inwestycyjnym i zlokalizowane w tym samym obszarze.
Wszystkie nowe oferty i bieżące informacje o naszej działalności otrzymasz na swój adres e-mail.
Biorąc pod uwagę obecną silną sprzedaż i dynamikę rynku, ceny i dostępność wolnych nieruchomości w tym projekcie podane na naszej stronie mogą nieznacznie różnić się od aktualnych.
Aby otrzymać całkowicie poprawne informacje na temat wolnych nieruchomości dostępnych na sprzedaż w ramach projektu oraz ich aktualnych cen, prosimy o kontakt z naszym biurem, korzystając z podanych danych kontaktowych.
Dokładamy wszelkich starań, aby nasze cenniki były zawsze aktualne i poprawne, jednakże ze względu na dużą liczbę nowych projektów w naszym katalogu oraz dużą dynamikę sprzedaży, często jest to niemożliwe.
Dziękujemy za zrozumienie!