Dwupokojowe mieszkanie w nowoczesnym nowym budynku na osiedlu. \"Lulina 5\"

aktualny

Cena:

171 800 (1 731 €/m2)

*Ceny i dostępność wolnych lokali w projekcie mają charakter orientacyjny. Aby uzyskać aktualne informacje o cenach, prosimy o kontakt!

Nr ref. Numer: SOF-129252 / 4203

Lokalizacja: Lyulin 5 / Sofia mapa

Typ budynku/kompleksu: Mieszkaniowy

Klasa budynku/kompleksu: Wysoki standard

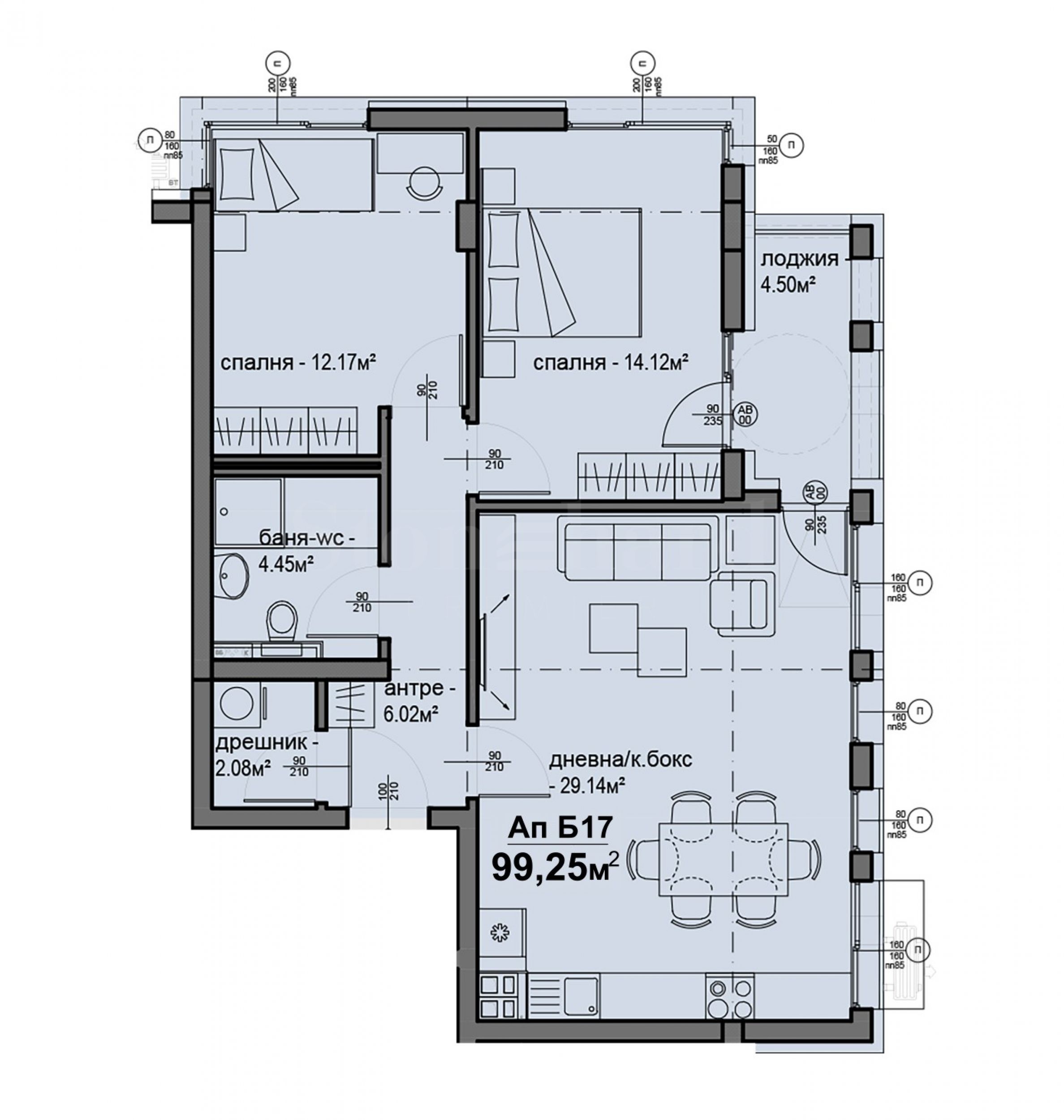
Obszary mieszkaniowe: 99.25 m2

Rodzaje nieruchomości w budynku/kompleksie: Apartamenty trzypokojowe

Nr ref. Numer: SOF-129252 / 4203

Lokalizacja: Lyulin 5 / Sofia

Typ budynku/kompleksu: Mieszkaniowy

Klasa budynku/kompleksu: Wysoki standard

Obszary mieszkaniowe: 99.25 m2

Rodzaje nieruchomości w budynku/kompleksie: Apartamenty trzypokojowe

Opis projektu
Oferujemy na sprzedaż komfortowe, dwupokojowe mieszkanie w nowo wybudowanym budynku mieszkalnym w dzielnicy „Lyulin 5” – nowoczesnym projekcie łączącym przestrzeń, wygodę i jakość.

Planowane zakończenie – grudzień 2026 r.

Budynek, położony na działce o powierzchni 2350 m², oferuje komfortowe warunki mieszkalne, funkcjonalne rozkłady mieszkań i nowoczesną architekturę. Lokalizacja jest dogodna, z szybkim dostępem do obwodnicy i węzła autostradowego Struma, w pobliżu szkół i przedszkoli, sklepów, LIDL, fitness itp.

Parametry nieruchomości:
• Piętro - 4 z 9, ekspozycja - zachód/północ;
• Powierzchnia całkowita - 99,25 m2 (w tym 10,96 m2 powierzchni wspólnych);
• Układ: hol wejściowy, schowek/garderoba, łazienka/WC, salon z kuchnią, dwie sypialnie, taras typu loggia, z wyjściem z salonu i jednej sypialni;
• Stopień ukończenia - zgodnie z bułgarskimi normami budowlanymi (dotyczącymi szpachli i wylewek).

Cechy budynku:
• Całkowita powierzchnia zabudowana: 9000 m2, z czego 7000 m2 powierzchni mieszkalnej i 2000 m2 piwnicy.
• Dwa osobne wejścia z osobnymi terenami zielonymi i miejscami parkingowymi.
• Łącznie 75 apartamentów zaprojektowanych z uwzględnieniem optymalnych rozmiarów i kształtów, by zapewnić maksymalną funkcjonalność – apartamenty z jedną, dwiema i trzema sypialniami.
• Windy szybkobieżne.
• Do dyspozycji gości są miejsca parkingowe w piwnicy, garażach i na parkingu zewnętrznym.
• Do dyspozycji mieszkańców będą 4 lokale usługowe.

Jakość wykonania

Budynek powstaje z materiałów najwyższej jakości, spełniających wszystkie normy europejskie i bułgarskie, łączących nowoczesne technologie z bezkompromisową jakością wykonania:
• Elewacja - system Etalbond, kamień i EPS Caparol;
• Budynek zasilany gazem, jest również przyłącze do klimatyzatorów;
• Okna z potrójnymi szybami „4 pory roku”.

Plan płatności:
• 2000 euro – pierwsza rata (odliczana od drugiej raty);
• 50% - przy Umowie Przedwstępnej;
• 30% - do 10.12.2025
• 10% - do 31.05.2026
• 5% - Ustawa 15;
• 5% - Ustawa 16.

*Sposób płatności możemy dostosować do życzeń klienta!

Czekamy na Państwa zapytanie.

Jeśli chcesz umówić się na obejrzenie interesującej Cię nieruchomości lub odwiedzić jedno z naszych biur, skontaktuj się z nami. Aby umówić się na spotkanie lub oględziny, zadzwoń pod numer telefonu podany w ogłoszeniu lub wyślij zapytanie e-mailem. Nasz konsultant pomoże Ci w ustaleniu wszystkich niezbędnych szczegółów i ustali dogodny termin.

Szukasz odpowiedniej nieruchomości dla siebie?

Skontaktuj się z nami i opowiedz nam o swoich potrzebach i preferencjach. Nasz zespół przeprowadzi dogłębną analizę rynku, aby zaoferować Ci nieruchomości idealnie odpowiadające Twoim kryteriom. Posiadamy wyjątkowe portfolio wysokiej jakości, ekskluzywnych domów, dostępnych wyłącznie dla naszych klientów. Aby być pierwszym, który otrzyma o nich informacje – skontaktuj się z nami.

Usługi dodatkowe

Jako ceniony klient naszej firmy, będziesz miał przywilej korzystania z usług naszego doświadczonego zespołu prawnego całkowicie bezpłatnie. Ponadto oferujemy kompleksowe rozwiązania, w tym ubezpieczenia nieruchomości, bezpłatne doradztwo finansowe, a także korzystne warunki finansowania. Nasze usługi obejmują również odsprzedaż, wynajem i zarządzanie nieruchomościami. Zapewniamy wysokiej jakości remonty i wyposażenie wnętrz za pośrednictwem wyspecjalizowanych firm wchodzących w skład naszej grupy kapitałowej i będących naszymi wieloletnimi partnerami.

Ogledziny nieruchomosci
Mozemy zorganizowac ogledziny nieruchomosci, w dogodnym dla Panstwa terminie. W tym celu prosimy o skontaktowanie sie z agentem odpowiedzialnym za te oferte.

Rezerwacja nieruchomosci
Nieruchomosc moze byc zarezerwowana i wycofana ze sprzedazy po wplaceniu zadatku, po czym ustaje ogladanie z innymi kupujacymi i rozpoczyna sie przygotowanie dokumentow do zawarcia umowy przedwstepnej i ostatecznej.
Prosimy o kontakt z agentem odpowiedzialnym za te nieruchomosc w celu uzyskania szczegolowych informacji dotyczacych procedury zakupu i metod platnosci.

Uslugi dodatkowe i obsluga posprzedazowa
Jestesmy sprawdzona firma o dobrej reputacji i wieloletnim doswiadczeniu. Dlatego bedziemy z Panstwem nie tylko w trakcie zakupu, ale takze po jego zakonczeniu, swiadczac na Panstwa zyczenie dodatkowe uslugi, aby w pelni i bezproblemowo korzystac z nowo zakupionej nieruchomosci. Uslugi, ktore mozemy zaoferowac, obejmuja uzyskanie zgody na kredyt hipoteczny z bulgarskiego banku, ubezpieczenia majatku ruchomego i nieruchomosci, ubezpieczenia na zycie, ubezpieczenia medyczne i samochodowe, prace budowlane i remontowe, meblowanie, uslugi prawne i ksiegowe itp.
Kontakty do naszego biura
Kontakty do naszego biura

Lokalizacja na mapie

PRZYBLIŻONA LOKALIZACJA
Wyślij zapytanie, aby uzyskać więcej informacji
Kontakty do naszego biura
Twoje imię*
Twój e-mail*
Twój telefon*

„Stonehard Marketing” Ltd. chroni Twoje dane osobowe i stosuje Politykę Prywatności firmy, zgodnie z wymogami Rozporządzenia (UE) nr 2016/679. W następnym kroku będziesz mógł wyrazić zgodę lub sprzeciw na przechowywanie i przetwarzanie Twoich danych osobowych. Dokonaj wyboru w wiadomości e-mail, którą wyślemy do Ciebie po otrzymaniu zapytania.

Więcej nieruchomości o podobnych cechach
NOWA
OFERTA

Budynek mieszkalny wielorodzinny z zagospodarowanym ogrodem i różnymi typami mieszkań w dzielnicy „Malinova Dolina”

Malinova Dolina / Sofia / Sofia / Bułgaria mapa

Ceny nieruchomości: Cena na zapytanie

NOWA
OFERTA
WTÓRNY
SPRZEDAŻ
ZAKOŃCZONY
PROJEKT

Dwupokojowe mieszkanie w nowoczesnym nowym budynku przy ul. Akt 16 w \"Malinova Dolina\"

Malinova Dolina / Sofia / Sofia / Bułgaria mapa

Obszar: 104.99 m2

Cena: 273 000 € /// 2 600 €/m2

NOWA
OFERTA
WTÓRNY
SPRZEDAŻ
ZAKOŃCZONY
PROJEKT

Dwupokojowe mieszkanie w nowym kompleksie, blisko stacji metra i centrum handlowego Paradise Mall

Krustova Vada / Sofia / Sofia / Bułgaria mapa

Obszar: 147.05 m2

Cena: 399 000 € /// 2 713 €/m2

...Jako sprawdzony specjalista, Stonehard PREMIER zajmuje się pozycjonowaniem rynkowym i sprzedażą licznych nowych projektów budowlanych, których realizację powierzyły nam wiodące przedsiębiorstwa w Bułgarii i za granicą...

Wybierz tę opcję, a powiadomimy Cię e-mailem w przypadku jakichkolwiek zmian statusu oferty, na przykład:

• Zmiana ceny;

• Nieruchomość weszła w ofertę promocyjną;

• Nieruchomość jest zarezerwowana lub sprzedana;

• Inne wiadomości dotyczące nieruchomości.

• Nieruchomość zostaje wycofana ze sprzedaży;

Możesz w każdej chwili z łatwością zrezygnować z subskrypcji powiadomień.
Powierzchnię nieruchomości w Dubaju / ZEA oblicza się w stopach kwadratowych. Wszystkie powierzchnie podane w tej ofercie są automatycznie przeliczane na metry kwadratowe według wzoru 1 m2 = 10,7639 stóp kwadratowych.
Wynajmujący płaci za prąd, wodę, ogrzewanie/chłodzenie, internet, telewizję kablową i wywóz odpadów stałych.
Pierwotna cena nieruchomości podana jest w lokalnej walucie, dirhamie (AED). Cena podana w walucie innej niż dirham ma charakter orientacyjny i jest przeliczana automatycznie na podstawie kursu krzyżowego, który aktualizujemy 4 razy dziennie. Dlatego też cena podawana w innej walucie niż dirham (AED) podlega ciągłym wahaniom, choć w niewielkich granicach.
Ceny mają charakter orientacyjny. Aby uzyskać dokładną kalkulację ceny i ofertę, prosimy o kontakt z odpowiedzialnym konsultantem!
Wybierz tę opcję, a zaczniesz otrzymywać nowe oferty o podobnym przedmiocie inwestycyjnym i zlokalizowane w tym samym obszarze.
Wszystkie nowe oferty i bieżące informacje o naszej działalności otrzymasz na swój adres e-mail.
Biorąc pod uwagę obecną silną sprzedaż i dynamikę rynku, ceny i dostępność wolnych nieruchomości w tym projekcie podane na naszej stronie mogą nieznacznie różnić się od aktualnych.
Aby otrzymać całkowicie poprawne informacje na temat wolnych nieruchomości dostępnych na sprzedaż w ramach projektu oraz ich aktualnych cen, prosimy o kontakt z naszym biurem, korzystając z podanych danych kontaktowych.
Dokładamy wszelkich starań, aby nasze cenniki były zawsze aktualne i poprawne, jednakże ze względu na dużą liczbę nowych projektów w naszym katalogu oraz dużą dynamikę sprzedaży, często jest to niemożliwe.
Dziękujemy za zrozumienie!