Dwupokojowe mieszkanie w prestiżowej dzielnicy. „Bojana”, obok Blvd. \"Bułgaria\"
Cena:
336 258 € (bez VAT) / 2 700 €/m2 (bez VAT)
Nr ref. Numer: SOF-128399 / 3854
Lokalizacja: Boyana / Sofia mapa
Typ budynku/kompleksu: Mieszkaniowy
Klasa budynku/kompleksu: Wysoki standard
Obszary mieszkaniowe: 124.54 m2
Rodzaje nieruchomości w budynku/kompleksie: Apartamenty trzypokojowe
Nr ref. Numer: SOF-128399
Lokalizacja: Boyana / Sofia
Typ budynku/kompleksu: Жилищен
Klasa budynku/kompleksu: Wysoki standard
Obszary mieszkaniowe: 124.54 m2
Rodzaje nieruchomości w budynku/kompleksie: Apartamenty trzypokojowe
Położony w prestiżowej dzielnicy kompleks łączy w sobie doskonałą lokalizację, wysokiej jakości materiały i nowoczesne technologie, co czyni go idealnym wyborem dla osób poszukujących wygodnego życia w dobrze zorganizowanym środowisku miejskim z bliskim sąsiedztwem natury. Dzięki dogodnemu dostępowi do Bulwaru Bułgarskiego i Obwodnicy można szybko dotrzeć do centrum miasta, a bliskość Parku Witosza zapewnia świeże powietrze i piękne widoki.
Parametry właściwości
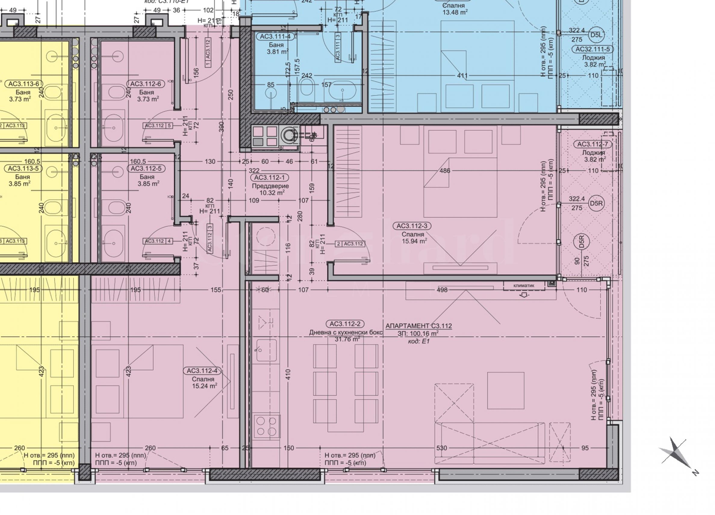
Apartament znajduje się na 1 piętrze, z ekspozycją wschód/północ/zachód i ma powierzchnię całkowitą 124,54 m2. Składa się z przedpokoju, dwóch łazienek z toaletami, dwóch sypialni, salonu z kuchnią, tarasu typu loggia, z dostępem z salonu i jednej z sypialni.
Oferowany jest w następującym stopniu zaawansowania zgodnie z BDS:
podłogi z izolacją akustyczną Copersound P-TEX;
Wyłączniki i gniazdka Legrand Valena Life;
Okna PCV z potrójnym pakietem szybowym Kömmerling;
ogrzewanie gazowe z piecem Bosch i okablowaniem klimatyzatorów;
Drzwi wejściowe pełne, model iDoor 20-23;
taras wyłożony płytkami granitowymi odpornymi na mróz. *Każdy apartament w kompleksie wyposażony jest w system Smart Home , umożliwiający sterowanie oświetleniem, ogrzewaniem, klimatyzacją i systemem bezpieczeństwa za pomocą urządzenia mobilnego.
Dodatkowo do nieruchomości można dokupić miejsce parkingowe w garażu podziemnym za kwotę 27 000 euro netto.
O kompleksie
Kompleks składający się z 8 budynków z 204 apartamentami i studiami został zaprojektowany z funkcjonalnymi układami i panoramicznymi widokami na miasto i góry. Zielone przestrzenie między budynkami zostały zaprojektowane z ogrodami, ścieżkami spacerowymi, terenami rekreacyjnymi i placami zabaw. Dla dodatkowego komfortu zapewniono centrum fitness, restaurację, kontrolowany dostęp i ochronę na żywo. Podziemny parking oferuje wygodne miejsca parkingowe i garaże.
Architektura kompleksu harmonijnie współgra z otaczającym środowiskiem, a elewacje wypełnione są naturalnymi materiałami, takimi jak drewno i kamień, co zapewnia nowoczesny wygląd, doskonałą izolację i trwałość.
Jakość i zrównoważony rozwój w budownictwie:
konstrukcja żelbetowa monolityczna;
ścianki działowe z pustaków ceramicznych firmy Wienerberger;
Izolacja termiczna EPS 10 cm oraz elewacja z kamienia naturalnego i klinkieru;
Izolacja termiczna XPS na dachu;
luksusowe części wspólne z granitowymi i windami Kone dla 8 osób;
zagospodarowanie terenu za pomocą automatycznego systemu nawadniającego;
automatyczne drzwi garażowe sterowane pilotem. Czekamy na Państwa zapytanie.
Jeśli chcesz umówić się na obejrzenie interesującej Cię nieruchomości lub odwiedzić jedno z naszych biur, skontaktuj się z nami. Aby umówić się na spotkanie lub obejrzenie nieruchomości, możesz zadzwonić pod numer telefonu podany w ogłoszeniu lub wysłać zapytanie e-mailem. Nasz konsultant pomoże Ci we wszystkich niezbędnych szczegółach i ustali dogodny dla Ciebie termin.
Szukasz odpowiedniej nieruchomości dla siebie?
Nie wahaj się skontaktować z nami i opowiedzieć nam o swoich potrzebach i preferencjach. Nasz zespół przeprowadzi dokładne badanie rynku, aby zaoferować Ci nieruchomości, które dokładnie spełniają Twoje kryteria. Posiadamy wyjątkowe portfolio wysokiej jakości i ekskluzywnych domów, które są dostępne tylko dla naszych klientów. Aby jako pierwszy otrzymać informacje o nich – skontaktuj się z nami.
Usługi dodatkowe
Jako ceniony klient naszej firmy, będziesz miał przywilej korzystania z usług naszego doświadczonego zespołu prawnego całkowicie bezpłatnie. Ponadto oferujemy kompleksowe rozwiązania, w tym ubezpieczenia majątkowe, bezpłatne doradztwo finansowe, a także korzystne warunki finansowania. Nasze usługi obejmują również obszar odsprzedaży, wynajmu i zarządzania nieruchomościami. Zapewniamy wysokiej jakości renowację i wyposażenie za pośrednictwem wyspecjalizowanych firm, które są częścią naszej grupy korporacyjnej i są naszymi wieloletnimi partnerami zawodowymi.
Ogledziny nieruchomosci
Mozemy zorganizowac ogledziny nieruchomosci, w dogodnym dla Panstwa terminie. W tym celu prosimy o skontaktowanie sie z agentem odpowiedzialnym za te oferte.
Rezerwacja nieruchomosci
Nieruchomosc moze byc zarezerwowana i wycofana ze sprzedazy po wplaceniu zadatku, po czym ustaje ogladanie z innymi kupujacymi i rozpoczyna sie przygotowanie dokumentow do zawarcia umowy przedwstepnej i ostatecznej.
Prosimy o kontakt z agentem odpowiedzialnym za te nieruchomosc w celu uzyskania szczegolowych informacji dotyczacych procedury zakupu i metod platnosci.
Uslugi dodatkowe i obsluga posprzedazowa
Jestesmy sprawdzona firma o dobrej reputacji i wieloletnim doswiadczeniu. Dlatego bedziemy z Panstwem nie tylko w trakcie zakupu, ale takze po jego zakonczeniu, swiadczac na Panstwa zyczenie dodatkowe uslugi, aby w pelni i bezproblemowo korzystac z nowo zakupionej nieruchomosci. Uslugi, ktore mozemy zaoferowac, obejmuja uzyskanie zgody na kredyt hipoteczny z bulgarskiego banku, ubezpieczenia majatku ruchomego i nieruchomosci, ubezpieczenia na zycie, ubezpieczenia medyczne i samochodowe, prace budowlane i remontowe, meblowanie, uslugi prawne i ksiegowe itp.
Lokalizacja na mapie
Położony w prestiżowej dzielnicy kompleks łączy w sobie doskonałą lokalizację, wysokiej jakości materiały i nowoczesne technologie, co czyni go idealnym wyborem dla osób poszukujących wygodnego życia w dobrze zorganizowanym środowisku miejskim z bliskim sąsiedztwem natury. Dzięki dogodnemu dostępowi do Bulwaru Bułgarskiego i Obwodnicy można szybko dotrzeć do centrum miasta, a bliskość Parku Witosza zapewnia świeże powietrze i piękne widoki.
Parametry właściwości
Apartament znajduje się na 1 piętrze, z ekspozycją wschód/północ/zachód i ma powierzchnię całkowitą 124,54 m2. Składa się z przedpokoju, dwóch łazienek z toaletami, dwóch sypialni, salonu z kuchnią, tarasu typu loggia, z dostępem z salonu i jednej z sypialni.
Oferowany jest w następującym stopniu zaawansowania zgodnie z BDS:
podłogi z izolacją akustyczną Copersound P-TEX;
Wyłączniki i gniazdka Legrand Valena Life;
Okna PCV z potrójnym pakietem szybowym Kömmerling;
ogrzewanie gazowe z piecem Bosch i okablowaniem klimatyzatorów;
Drzwi wejściowe pełne, model iDoor 20-23;
taras wyłożony płytkami granitowymi odpornymi na mróz. *Każdy apartament w kompleksie wyposażony jest w system Smart Home , umożliwiający sterowanie oświetleniem, ogrzewaniem, klimatyzacją i systemem bezpieczeństwa za pomocą urządzenia mobilnego.
Dodatkowo do nieruchomości można dokupić miejsce parkingowe w garażu podziemnym za kwotę 27 000 euro netto.
O kompleksie
Kompleks składający się z 8 budynków z 204 apartamentami i studiami został zaprojektowany z funkcjonalnymi układami i panoramicznymi widokami na miasto i góry. Zielone przestrzenie między budynkami zostały zaprojektowane z ogrodami, ścieżkami spacerowymi, terenami rekreacyjnymi i placami zabaw. Dla dodatkowego komfortu zapewniono centrum fitness, restaurację, kontrolowany dostęp i ochronę na żywo. Podziemny parking oferuje wygodne miejsca parkingowe i garaże.
Architektura kompleksu harmonijnie współgra z otaczającym środowiskiem, a elewacje wypełnione są naturalnymi materiałami, takimi jak drewno i kamień, co zapewnia nowoczesny wygląd, doskonałą izolację i trwałość.
Jakość i zrównoważony rozwój w budownictwie:
konstrukcja żelbetowa monolityczna;
ścianki działowe z pustaków ceramicznych firmy Wienerberger;
Izolacja termiczna EPS 10 cm oraz elewacja z kamienia naturalnego i klinkieru;
Izolacja termiczna XPS na dachu;
luksusowe części wspólne z granitowymi i windami Kone dla 8 osób;
zagospodarowanie terenu za pomocą automatycznego systemu nawadniającego;
automatyczne drzwi garażowe sterowane pilotem. Czekamy na Państwa zapytanie.
Jeśli chcesz umówić się na obejrzenie interesującej Cię nieruchomości lub odwiedzić jedno z naszych biur, skontaktuj się z nami. Aby umówić się na spotkanie lub obejrzenie nieruchomości, możesz zadzwonić pod numer telefonu podany w ogłoszeniu lub wysłać zapytanie e-mailem. Nasz konsultant pomoże Ci we wszystkich niezbędnych szczegółach i ustali dogodny dla Ciebie termin.
Szukasz odpowiedniej nieruchomości dla siebie?
Nie wahaj się skontaktować z nami i opowiedzieć nam o swoich potrzebach i preferencjach. Nasz zespół przeprowadzi dokładne badanie rynku, aby zaoferować Ci nieruchomości, które dokładnie spełniają Twoje kryteria. Posiadamy wyjątkowe portfolio wysokiej jakości i ekskluzywnych domów, które są dostępne tylko dla naszych klientów. Aby jako pierwszy otrzymać informacje o nich – skontaktuj się z nami.
Usługi dodatkowe
Jako ceniony klient naszej firmy, będziesz miał przywilej korzystania z usług naszego doświadczonego zespołu prawnego całkowicie bezpłatnie. Ponadto oferujemy kompleksowe rozwiązania, w tym ubezpieczenia majątkowe, bezpłatne doradztwo finansowe, a także korzystne warunki finansowania. Nasze usługi obejmują również obszar odsprzedaży, wynajmu i zarządzania nieruchomościami. Zapewniamy wysokiej jakości renowację i wyposażenie za pośrednictwem wyspecjalizowanych firm, które są częścią naszej grupy korporacyjnej i są naszymi wieloletnimi partnerami zawodowymi.
Ogledziny nieruchomosci
Mozemy zorganizowac ogledziny nieruchomosci, w dogodnym dla Panstwa terminie. W tym celu prosimy o skontaktowanie sie z agentem odpowiedzialnym za te oferte.
Rezerwacja nieruchomosci
Nieruchomosc moze byc zarezerwowana i wycofana ze sprzedazy po wplaceniu zadatku, po czym ustaje ogladanie z innymi kupujacymi i rozpoczyna sie przygotowanie dokumentow do zawarcia umowy przedwstepnej i ostatecznej.
Prosimy o kontakt z agentem odpowiedzialnym za te nieruchomosc w celu uzyskania szczegolowych informacji dotyczacych procedury zakupu i metod platnosci.
Uslugi dodatkowe i obsluga posprzedazowa
Jestesmy sprawdzona firma o dobrej reputacji i wieloletnim doswiadczeniu. Dlatego bedziemy z Panstwem nie tylko w trakcie zakupu, ale takze po jego zakonczeniu, swiadczac na Panstwa zyczenie dodatkowe uslugi, aby w pelni i bezproblemowo korzystac z nowo zakupionej nieruchomosci. Uslugi, ktore mozemy zaoferowac, obejmuja uzyskanie zgody na kredyt hipoteczny z bulgarskiego banku, ubezpieczenia majatku ruchomego i nieruchomosci, ubezpieczenia na zycie, ubezpieczenia medyczne i samochodowe, prace budowlane i remontowe, meblowanie, uslugi prawne i ksiegowe itp.
Położony w prestiżowej dzielnicy kompleks łączy w sobie doskonałą lokalizację, wysokiej jakości materiały i nowoczesne technologie, co czyni go idealnym wyborem dla osób poszukujących wygodnego życia w dobrze zorganizowanym środowisku miejskim z bliskim sąsiedztwem natury. Dzięki dogodnemu dostępowi do Bulwaru Bułgarskiego i Obwodnicy można szybko dotrzeć do centrum miasta, a bliskość Parku Witosza zapewnia świeże powietrze i piękne widoki.
Parametry właściwości
Apartament znajduje się na 1 piętrze, z ekspozycją wschód/północ/zachód i ma powierzchnię całkowitą 124,54 m2. Składa się z przedpokoju, dwóch łazienek z toaletami, dwóch sypialni, salonu z kuchnią, tarasu typu loggia, z dostępem z salonu i jednej z sypialni.
Oferowany jest w następującym stopniu zaawansowania zgodnie z BDS:
podłogi z izolacją akustyczną Copersound P-TEX;
Wyłączniki i gniazdka Legrand Valena Life;
Okna PCV z potrójnym pakietem szybowym Kömmerling;
ogrzewanie gazowe z piecem Bosch i okablowaniem klimatyzatorów;
Drzwi wejściowe pełne, model iDoor 20-23;
taras wyłożony płytkami granitowymi odpornymi na mróz. *Każdy apartament w kompleksie wyposażony jest w system Smart Home , umożliwiający sterowanie oświetleniem, ogrzewaniem, klimatyzacją i systemem bezpieczeństwa za pomocą urządzenia mobilnego.
Dodatkowo do nieruchomości można dokupić miejsce parkingowe w garażu podziemnym za kwotę 27 000 euro netto.
O kompleksie
Kompleks składający się z 8 budynków z 204 apartamentami i studiami został zaprojektowany z funkcjonalnymi układami i panoramicznymi widokami na miasto i góry. Zielone przestrzenie między budynkami zostały zaprojektowane z ogrodami, ścieżkami spacerowymi, terenami rekreacyjnymi i placami zabaw. Dla dodatkowego komfortu zapewniono centrum fitness, restaurację, kontrolowany dostęp i ochronę na żywo. Podziemny parking oferuje wygodne miejsca parkingowe i garaże.
Architektura kompleksu harmonijnie współgra z otaczającym środowiskiem, a elewacje wypełnione są naturalnymi materiałami, takimi jak drewno i kamień, co zapewnia nowoczesny wygląd, doskonałą izolację i trwałość.
Jakość i zrównoważony rozwój w budownictwie:
konstrukcja żelbetowa monolityczna;
ścianki działowe z pustaków ceramicznych firmy Wienerberger;
Izolacja termiczna EPS 10 cm oraz elewacja z kamienia naturalnego i klinkieru;
Izolacja termiczna XPS na dachu;
luksusowe części wspólne z granitowymi i windami Kone dla 8 osób;
zagospodarowanie terenu za pomocą automatycznego systemu nawadniającego;
automatyczne drzwi garażowe sterowane pilotem. Czekamy na Państwa zapytanie.
Jeśli chcesz umówić się na obejrzenie interesującej Cię nieruchomości lub odwiedzić jedno z naszych biur, skontaktuj się z nami. Aby umówić się na spotkanie lub obejrzenie nieruchomości, możesz zadzwonić pod numer telefonu podany w ogłoszeniu lub wysłać zapytanie e-mailem. Nasz konsultant pomoże Ci we wszystkich niezbędnych szczegółach i ustali dogodny dla Ciebie termin.
Szukasz odpowiedniej nieruchomości dla siebie?
Nie wahaj się skontaktować z nami i opowiedzieć nam o swoich potrzebach i preferencjach. Nasz zespół przeprowadzi dokładne badanie rynku, aby zaoferować Ci nieruchomości, które dokładnie spełniają Twoje kryteria. Posiadamy wyjątkowe portfolio wysokiej jakości i ekskluzywnych domów, które są dostępne tylko dla naszych klientów. Aby jako pierwszy otrzymać informacje o nich – skontaktuj się z nami.
Usługi dodatkowe
Jako ceniony klient naszej firmy, będziesz miał przywilej korzystania z usług naszego doświadczonego zespołu prawnego całkowicie bezpłatnie. Ponadto oferujemy kompleksowe rozwiązania, w tym ubezpieczenia majątkowe, bezpłatne doradztwo finansowe, a także korzystne warunki finansowania. Nasze usługi obejmują również obszar odsprzedaży, wynajmu i zarządzania nieruchomościami. Zapewniamy wysokiej jakości renowację i wyposażenie za pośrednictwem wyspecjalizowanych firm, które są częścią naszej grupy korporacyjnej i są naszymi wieloletnimi partnerami zawodowymi.
Ogledziny nieruchomosci
Mozemy zorganizowac ogledziny nieruchomosci, w dogodnym dla Panstwa terminie. W tym celu prosimy o skontaktowanie sie z agentem odpowiedzialnym za te oferte.
Rezerwacja nieruchomosci
Nieruchomosc moze byc zarezerwowana i wycofana ze sprzedazy po wplaceniu zadatku, po czym ustaje ogladanie z innymi kupujacymi i rozpoczyna sie przygotowanie dokumentow do zawarcia umowy przedwstepnej i ostatecznej.
Prosimy o kontakt z agentem odpowiedzialnym za te nieruchomosc w celu uzyskania szczegolowych informacji dotyczacych procedury zakupu i metod platnosci.
Uslugi dodatkowe i obsluga posprzedazowa
Jestesmy sprawdzona firma o dobrej reputacji i wieloletnim doswiadczeniu. Dlatego bedziemy z Panstwem nie tylko w trakcie zakupu, ale takze po jego zakonczeniu, swiadczac na Panstwa zyczenie dodatkowe uslugi, aby w pelni i bezproblemowo korzystac z nowo zakupionej nieruchomosci. Uslugi, ktore mozemy zaoferowac, obejmuja uzyskanie zgody na kredyt hipoteczny z bulgarskiego banku, ubezpieczenia majatku ruchomego i nieruchomosci, ubezpieczenia na zycie, ubezpieczenia medyczne i samochodowe, prace budowlane i remontowe, meblowanie, uslugi prawne i ksiegowe itp.
PRAWA
SPRZEDAŻ
PROJEKT
Przestronny, designerski apartament z miejscem parkingowym w luksusowym budynku z lokalem nr 16
Malinova Dolina / Sofia / Sofia / Bułgaria mapa
Klasa budynku/kompleksu: Wysoki standard
Obszar: 136 m2
Cena: 434 900 € /// 3 198 €/m2
Apartamenty w I etapie nowoczesnego kompleksu w pobliżu „Simeonovsko szose”
Malinova Dolina / Sofia / Sofia / Bułgaria mapa
Ceny nieruchomości: 114 096 - 247 180 €
Ceny za m²: 1 828 - 2 296 €/m2
Apartamenty przy ulicy „Prof. Krikor Azaryan” w dzielnicy „Malinova Dolina”
Malinova Dolina / Sofia / Sofia / Bułgaria mapa
Ceny nieruchomości: 187 575 - 396 363 €
Ceny za m²: 2 330 - 3 881 €/m2
Wybierz tę opcję, a powiadomimy Cię e-mailem w przypadku jakichkolwiek zmian statusu oferty, na przykład:
• Zmiana ceny;
• Nieruchomość weszła w ofertę promocyjną;
• Nieruchomość jest zarezerwowana lub sprzedana;
• Inne wiadomości dotyczące nieruchomości.
• Nieruchomość zostaje wycofana ze sprzedaży;
Możesz w każdej chwili z łatwością zrezygnować z subskrypcji powiadomień.• Zmiany warunków oferty;
• Zmiana kwoty inwestycji;
• Przedmiot inwestycji został w całości zrealizowany;
• Oferta wygasła.
Jeśli w przyszłości zdecydujesz, że nie chcesz już otrzymywać tej oferty, możesz z łatwością zrezygnować z subskrypcji.



...Jako sprawdzony specjalista, Stonehard PREMIER zajmuje się pozycjonowaniem rynkowym i sprzedażą licznych nowych projektów budowlanych, których realizację powierzyły nam wiodące przedsiębiorstwa w Bułgarii i za granicą...