Trzypokojowe mieszkanie w nowym luksusowym budynku obok Bazy Wioślarskiej
REF#PLV-124169
/
Apartamenty trzypokojowe
/
Obroty
/
Plovdiv
/
Hristo Smirnenski
/
Plovdiv
/
Bułgaria
aktualny
Cena:
Cena na zapytanie ()
*Ceny i dostępność wolnych lokali w projekcie mają charakter orientacyjny. Aby uzyskać aktualne informacje o cenach, prosimy o kontakt!
Nr ref. Numer: PLV-124169 / 3124
Lokalizacja: Hristo Smirnenski / Plovdiv mapa
Typ budynku/kompleksu: Mieszkaniowy
Klasa budynku/kompleksu: Wysoki standard
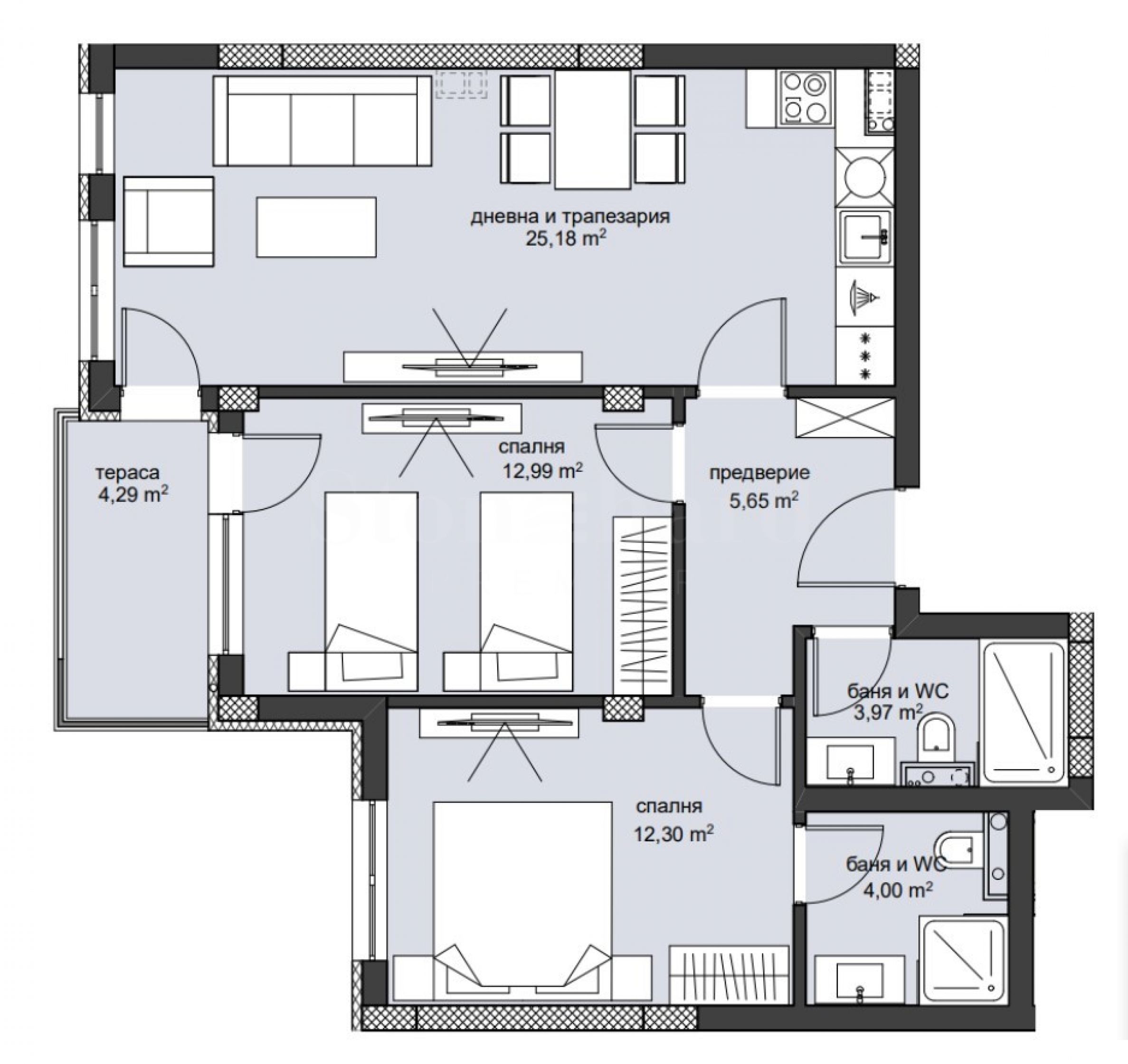
Obszary mieszkaniowe: 101.62 m2
Rodzaje nieruchomości w budynku/kompleksie: Apartamenty trzypokojowe
Nr ref. Numer: PLV-124169 / 3124
Lokalizacja: Hristo Smirnenski / Plovdiv
Typ budynku/kompleksu: Mieszkaniowy
Klasa budynku/kompleksu: Wysoki standard
Obszary mieszkaniowe: 101.62 m2
Rodzaje nieruchomości w budynku/kompleksie: Apartamenty trzypokojowe
BRAK PROWIZJI!
Budynek został oddany do użytku (Ustawą nr 16).
Kompleks o imponującej wysokości 51 metrów będzie górował nad pozostałymi budynkami, dając wrażenie przestronności i umożliwiając podziwianie panoramy gór Rodopy i symbolicznego wzgórza miasta Płowdiw - „Wzgórza Mladezhki”.
Budynek najnowszej generacji, łączący w sobie nowoczesną architekturę, energooszczędność i najwyższą jakość.
Kompleks będzie składał się z 4 części, w których znajdzie się łącznie 241 apartamentów, od 3 do 6 kawalerek, apartamentów jedno- i dwupokojowych na piętrze. Każda część będzie miała osobne wejście z przyległą windą, która zapewni komfortowe połączenie z podziemnym parkingiem budynku. Części wspólne zostaną luksusowo wykończone wysokiej jakości materiałami i utrzymane w niepowtarzalnym stylu. Apartamenty mają funkcjonalny układ, dzięki czemu pomieszczenia są jasne i przestronne. Na parterze znajdują się powierzchnie komercyjne i biurowe.
Nieruchomość o powierzchni 101,62 mkw. położona jest na 9. piętrze z 11.
Apartamenty wynajmowane są w stanie wykończonym zgodnie z bułgarskimi normami budowlanymi, z tynkiem i wylewką.
Obiekt zapewnia 100% parkingu naziemnego i podziemnego, a także garaże.
Dane techniczne:
• okna - aluminiowe 6-komorowe Etem, 2-szybowe, 4 sezony;
• windy - Orona 8-miejscowa;
• części wspólne – posadzki marmurowe, windy wyłożone granitem, czarne aluminiowe balustrady;
• fasada - podwieszana elewacja łącząca materiały Laminam, HPL i Etalbond;
• drzwi wejściowe – Everest.
Plan płatności:
• 2000 euro - depozyt stop;
• 10% po podpisaniu umowy przedwstępnej;
• 20% na wysokości 0,00;
• 10% po osiągnięciu wysokości mieszkania;
• 10% na płytę dachową;
• 20% przy montażu instalacji elektrycznej i wodno-kanalizacyjnej;
• 10% dla Ustawy 15.
Projekt jest dziełem sprawdzonego inwestora, mającego na rynku ponad 10 zrealizowanych projektów.
Aby uzyskać więcej informacji skontaktuj się z brokerem odpowiedzialnym za ofertę.
Ogledziny nieruchomosci
Mozemy zorganizowac ogledziny nieruchomosci, w dogodnym dla Panstwa terminie. W tym celu prosimy o skontaktowanie sie z agentem odpowiedzialnym za te oferte.
Rezerwacja nieruchomosci
Nieruchomosc moze byc zarezerwowana i wycofana ze sprzedazy po wplaceniu zadatku, po czym ustaje ogladanie z innymi kupujacymi i rozpoczyna sie przygotowanie dokumentow do zawarcia umowy przedwstepnej i ostatecznej.
Prosimy o kontakt z agentem odpowiedzialnym za te nieruchomosc w celu uzyskania szczegolowych informacji dotyczacych procedury zakupu i metod platnosci.
Uslugi dodatkowe i obsluga posprzedazowa
Jestesmy sprawdzona firma o dobrej reputacji i wieloletnim doswiadczeniu. Dlatego bedziemy z Panstwem nie tylko w trakcie zakupu, ale takze po jego zakonczeniu, swiadczac na Panstwa zyczenie dodatkowe uslugi, aby w pelni i bezproblemowo korzystac z nowo zakupionej nieruchomosci. Uslugi, ktore mozemy zaoferowac, obejmuja uzyskanie zgody na kredyt hipoteczny z bulgarskiego banku, ubezpieczenia majatku ruchomego i nieruchomosci, ubezpieczenia na zycie, ubezpieczenia medyczne i samochodowe, prace budowlane i remontowe, meblowanie, uslugi prawne i ksiegowe itp.
Lokalizacja na mapie
Apartamenty w nowym innowacyjnym kompleksie w dzielnicy „Hristo Smirnenski”
Hristo Smirnenski / Plovdiv / Plovdiv / Bułgaria mapa
Ceny nieruchomości: 81 083 - 383 249 €
Ceny za m²: 1 360 - 1 470 €/m2
Апартаменти в нов иноватен комекс в кв. „Ос
Ostromila / Plovdiv / Plovdiv / Bułgaria mapa
Ceny nieruchomości: 87 848 - 162 104 €
Ceny za m²: 1 326 - 1 326 €/m2
Apartamenty w nowym kompleksie butikowym składającym się z 4 budynków w dzielnicy „Prosław”
Proslav / Plovdiv / Plovdiv / Bułgaria mapa
Ceny nieruchomości: 90 000 - 155 000 €
Ceny za m²: 1 200 - 1 260 €/m2
Wybierz tę opcję, a powiadomimy Cię e-mailem w przypadku jakichkolwiek zmian statusu oferty, na przykład:
• Zmiana ceny;
• Nieruchomość weszła w ofertę promocyjną;
• Nieruchomość jest zarezerwowana lub sprzedana;
• Inne wiadomości dotyczące nieruchomości.
• Nieruchomość zostaje wycofana ze sprzedaży;
Możesz w każdej chwili z łatwością zrezygnować z subskrypcji powiadomień.• Zmiany warunków oferty;
• Zmiana kwoty inwestycji;
• Przedmiot inwestycji został w całości zrealizowany;
• Oferta wygasła.
Jeśli w przyszłości zdecydujesz, że nie chcesz już otrzymywać tej oferty, możesz z łatwością zrezygnować z subskrypcji.
Aby otrzymać całkowicie poprawne informacje na temat wolnych nieruchomości dostępnych na sprzedaż w ramach projektu oraz ich aktualnych cen, prosimy o kontakt z naszym biurem, korzystając z podanych danych kontaktowych.
Dokładamy wszelkich starań, aby nasze cenniki były zawsze aktualne i poprawne, jednakże ze względu na dużą liczbę nowych projektów w naszym katalogu oraz dużą dynamikę sprzedaży, często jest to niemożliwe.
Dziękujemy za zrozumienie!



...Jako sprawdzony specjalista, Stonehard PREMIER zajmuje się pozycjonowaniem rynkowym i sprzedażą licznych nowych projektów budowlanych, których realizację powierzyły nam wiodące przedsiębiorstwa w Bułgarii i za granicą...