Studio z werandą w nowo wybudowanym kompleksie w Carewie
aktualny
Cena:
69 817 € (1 501 €/m2)
*Ceny i dostępność wolnych lokali w projekcie mają charakter orientacyjny. Aby uzyskać aktualne informacje o cenach, prosimy o kontakt!
Nr ref. Numer: LXH-119439 / 3639
Lokalizacja: Tsarevo mapa
Typ budynku/kompleksu: Mieszkaniowy
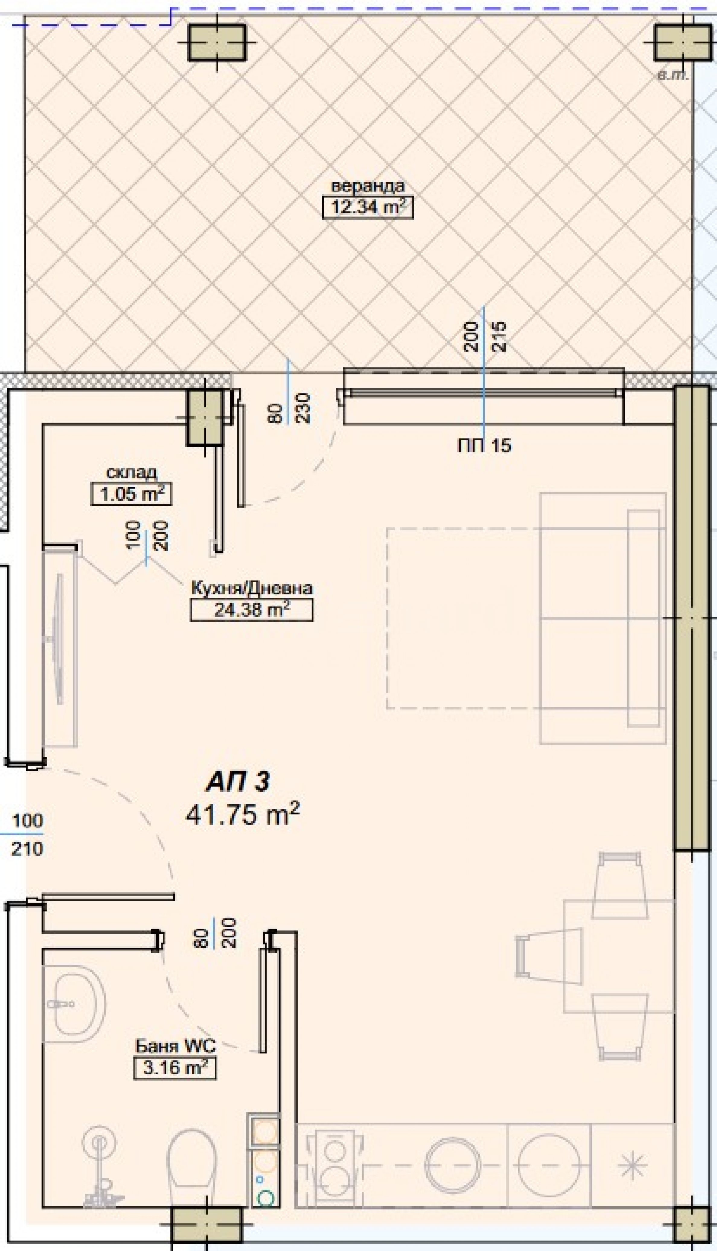
Obszary mieszkaniowe: 46.50 m2
Rodzaje nieruchomości w budynku/kompleksie: Studia
Nr ref. Numer: LXH-119439 / 3639
Lokalizacja: Tsarevo
Typ budynku/kompleksu: Mieszkaniowy
Klasa budynku/kompleksu:
Obszary mieszkaniowe: 46.50 m2
Rodzaje nieruchomości w budynku/kompleksie: Studia
Planowany Akt 16 - Sierpień 2025
Nieruchomość o powierzchni całkowitej 46,50 mkw. położona jest na 1 piętrze, w 4-piętrowym budynku z windą i ograniczoną liczbą mieszkań - 14 lokali i 23 miejsca parkingowe.
Zaprojektowany w stylu śródziemnomorskim, butikowy budynek zostanie wypełniony materiałami najwyższej klasy:
ocieplenia elewacji i tynki - Baumit;
Płyty elewacyjne HPL Fundermax;
cegły - Wienerberger;
okna aluminiowe. Apartamenty są jednopokojowe, dwupokojowe i trzypokojowe. Nieruchomości są wynajmowane w stopniu wykończenia BDS: tynkowane ściany i wylewane podłogi, w pełni ukończone instalacje elektryczne i hydrauliczne, zamontowana stolarka.
Lokalizacja
Wygodna lokalizacja pomiędzy centralną częścią kurortu - Nowym Miastem i dzielnicą "Vasiliko" - Starym Miastem, z widokiem na całą zatokę między dwoma dzielnicami, z widokiem na morze, port i kościół "Wniebowzięcia Najświętszej Marii Panny". Obszar ten jest znany jako "Biała Plaża". W odległości spaceru od plaży ze słynnym Django Surf & Bar i plażą Nestinarka.
Ogledziny nieruchomosci
Mozemy zorganizowac ogledziny nieruchomosci, w dogodnym dla Panstwa terminie. W tym celu prosimy o skontaktowanie sie z agentem odpowiedzialnym za te oferte.
Rezerwacja nieruchomosci
Nieruchomosc moze byc zarezerwowana i wycofana ze sprzedazy po wplaceniu zadatku, po czym ustaje ogladanie z innymi kupujacymi i rozpoczyna sie przygotowanie dokumentow do zawarcia umowy przedwstepnej i ostatecznej.
Prosimy o kontakt z agentem odpowiedzialnym za te nieruchomosc w celu uzyskania szczegolowych informacji dotyczacych procedury zakupu i metod platnosci.
Uslugi dodatkowe i obsluga posprzedazowa
Jestesmy sprawdzona firma o dobrej reputacji i wieloletnim doswiadczeniu. Dlatego bedziemy z Panstwem nie tylko w trakcie zakupu, ale takze po jego zakonczeniu, swiadczac na Panstwa zyczenie dodatkowe uslugi, aby w pelni i bezproblemowo korzystac z nowo zakupionej nieruchomosci. Uslugi, ktore mozemy zaoferowac, obejmuja uzyskanie zgody na kredyt hipoteczny z bulgarskiego banku, ubezpieczenia majatku ruchomego i nieruchomosci, ubezpieczenia na zycie, ubezpieczenia medyczne i samochodowe, prace budowlane i remontowe, meblowanie, uslugi prawne i ksiegowe itp.
Lokalizacja na mapie
PRAWA
SPRZEDAŻ
PROJEKT
Nowe mieszkania w nowoczesnym budynku mieszkalnym w Carewie
Tsarevo / Burgas / Bułgaria mapa
Klasa budynku: Wysoki standard
Ceny nieruchomości: 80 660 - 181 780 €
Ceny za m²: 1 280 - 1 942 €/m2
SPRZEDAŻ
PROJEKT
Dwa apartamenty z jedną sypialnią w kompleksie przy plaży Nestinarka, Carewo
Tsarevo / Burgas / Bułgaria mapa
Obszar: 104.13 m2
Cena: 108 000 € /// 1 037 €/m2
SPRZEDAŻ
PROJEKT
Dwa studia w kompleksie z udogodnieniami, w pobliżu plaży Nestinarka, Carewo
Tsarevo / Burgas / Bułgaria mapa
Obszar: 85 m2
Cena: 99 000 € /// 1 165 €/m2
Wybierz tę opcję, a powiadomimy Cię e-mailem w przypadku jakichkolwiek zmian statusu oferty, na przykład:
• Zmiana ceny;
• Nieruchomość weszła w ofertę promocyjną;
• Nieruchomość jest zarezerwowana lub sprzedana;
• Inne wiadomości dotyczące nieruchomości.
• Nieruchomość zostaje wycofana ze sprzedaży;
Możesz w każdej chwili z łatwością zrezygnować z subskrypcji powiadomień.• Zmiany warunków oferty;
• Zmiana kwoty inwestycji;
• Przedmiot inwestycji został w całości zrealizowany;
• Oferta wygasła.
Jeśli w przyszłości zdecydujesz, że nie chcesz już otrzymywać tej oferty, możesz z łatwością zrezygnować z subskrypcji.
Aby otrzymać całkowicie poprawne informacje na temat wolnych nieruchomości dostępnych na sprzedaż w ramach projektu oraz ich aktualnych cen, prosimy o kontakt z naszym biurem, korzystając z podanych danych kontaktowych.
Dokładamy wszelkich starań, aby nasze cenniki były zawsze aktualne i poprawne, jednakże ze względu na dużą liczbę nowych projektów w naszym katalogu oraz dużą dynamikę sprzedaży, często jest to niemożliwe.
Dziękujemy za zrozumienie!



...Jako sprawdzony specjalista, Stonehard PREMIER zajmuje się pozycjonowaniem rynkowym i sprzedażą licznych nowych projektów budowlanych, których realizację powierzyły nam wiodące przedsiębiorstwa w Bułgarii i za granicą...