Однокомнатная квартира в новом инновационном комплексе в районе «Христо Смирненский»
Цена:
84 150 € (1 420 €/м 2)
*Цены и наличие свободных площадей в проекте указаны ориентировочно. Для получения актуальной информации о ценах, пожалуйста, свяжитесь с нами!
Ссылка. Число: PLV-138877 / 4973
Расположение: Христо Смирненски / Пловдив карта
Тип здания/комплекса: Жилой
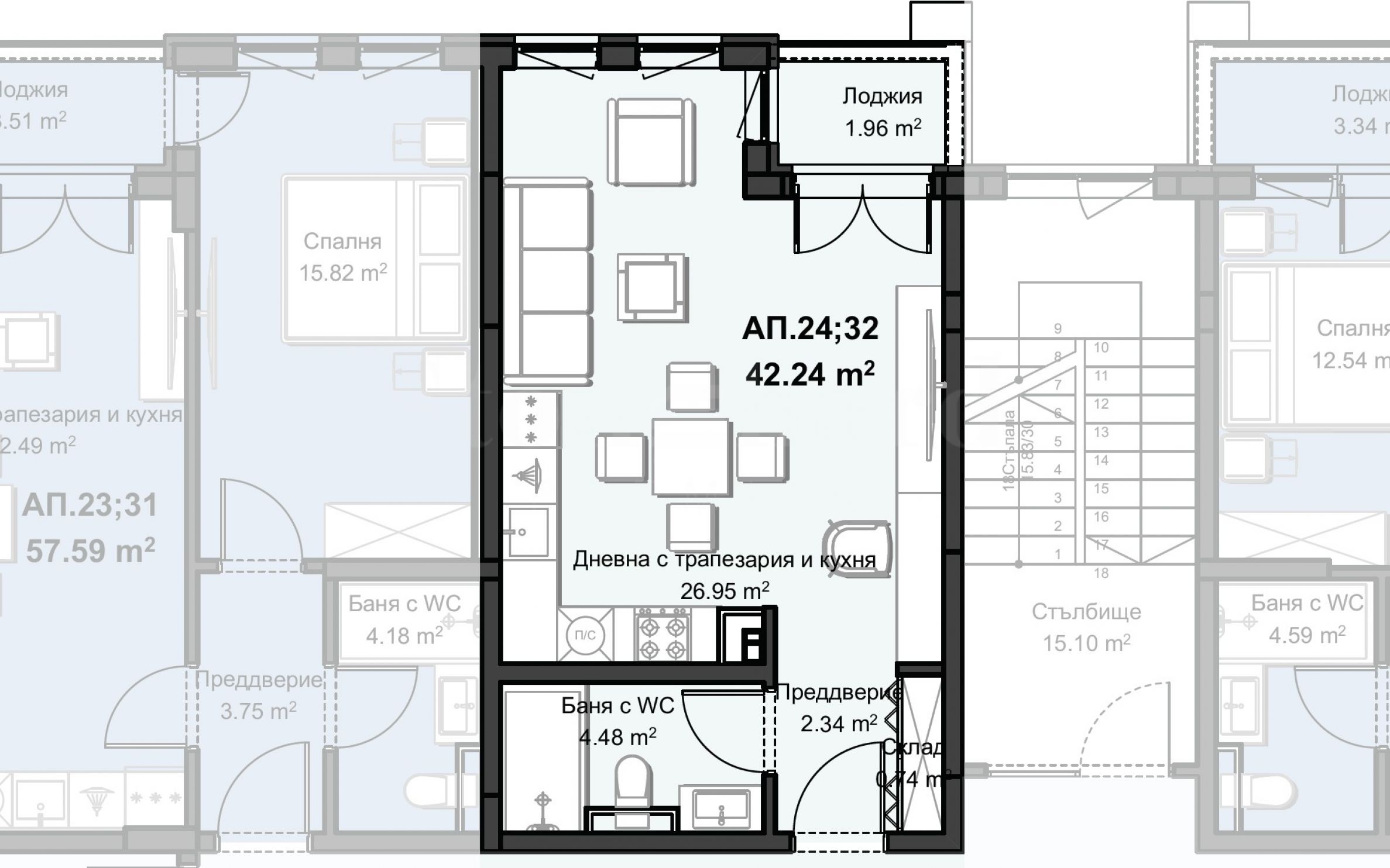
Жилые районы: 59.26 м 2
Типы объектов недвижимости в здании/комплексе: Квартиры-студии
Ссылка. Число: PLV-138877 / 4973
Расположение: Христо Смирненски / Пловдив
Тип здания/комплекса: Жилой
Класс здания/комплекса:
Жилые районы: 59.26 м 2
Типы объектов недвижимости в здании/комплексе: Квартиры-студии
Представляем однокомнатную квартиру в инновационном и масштабном жилом комплексе, расположенном в одном из самых востребованных и быстро развивающихся районов Пловдива — квартале «Христо Смирненски». Местоположение гарантирует отличную транспортную доступность — в пешей доступности находятся гребная база, торговый центр «Пловдив», крупные больницы, школы, детские сады и остановки общественного транспорта. В то же время, оно предлагает тишину, безопасность и ощущение отдельного, спокойного мира в черте города.
В настоящее время идет процесс предварительных продаж. Начало строительства – апрель 2026 года, а реализация Акта 16 запланирована на 36 месяцев после начала строительства.
БЕЗ КОМИССИИ!
Комплекс сочетает в себе изысканный дизайн, высокое качество исполнения и функциональность, отвечая современным потребностям современного городского жителя.
Этот жилой комплекс, спроектированный с учетом полноценного образа жизни, предлагает разнообразные апартаменты — от практичных однокомнатных до просторных многокомнатных квартир с возможностью объединения. Все апартаменты отличаются превосходной планировкой, обилием света и впечатляющим видом на зелень, городской пейзаж и даже на гребную базу, расположенную после 5-го этажа.
Квартира общей площадью 59,26 м2 расположена на 4-м этаже 7-го этажа.
Объекты сдаются в состоянии готовности, соответствующем болгарским строительным стандартам, с оштукатуриванием и стяжкой.
Комплекс включает в себя более 6000 м2 благоустроенных территорий, спроектированных как парк с аллеями, детскими площадками и зонами отдыха, которые создают ощущение простора, свободы и спокойствия. Парковка полностью обеспечена за счет наземных и подземных парковочных мест и гаражей.
Существенным преимуществом является наличие торговой зоны внутри комплекса, где арендаторы и коммерческие помещения тщательно отбираются. В настоящее время заключаются контракты с отобранными брендами и поставщиками услуг — цель состоит в том, чтобы предоставить все ключевые удобства в одном месте: продуктовый магазин, тренажерный зал, аптека, ресторан, стоматологическая клиника и другие. Помещения предоставляются не случайным торговцам, а отбираются таким образом, чтобы они действительно повышали ценность недвижимости и качество жизни жильцов.
Технические отличительных отличительных указанных характеристики соответствуют самым высоким стандартам:
• 6-камерные алюминиевые окна антрацитового цвета;
• Высота потолка в помещении - 2,75 м;
• Внешняя теплоизоляция - 10 см каменной ваты;
• Фасад - сочетание панелей Etalbond и HPL;
• Централизованная система фильтрации питьевой воды и водяной насос;
• зарядные станции для электромобилей;
• бронированная входная дверь для каждой квартиры;
• установил выключатели, розетки и сантехническую вилку;
• Скрытый наружный блок системы кондиционирования воздуха – встроен в фасад (без наружных блоков на террасах);
• Роскошно отделанные общие зоны с использованием гранитной плитки на больших площадях;
• В каждом отсеке по два высококлассных лифта;
• Круглосуточное видеонаблюдение и контролируемый доступ;
• Профессиональное управление комплексом с акцентом на бескомпромиссное техническое обслуживание и безопасность.
Указанные цены соответствуют схеме оплаты:
• 20% от суммы предварительного контракта;
• 80% Акта 16.
Предлагаются и другие схемы оплаты с дополнительными скидками.
Этот проект создан для людей, которые ищут нечто большее, чем просто недвижимость, а современный, хорошо организованный и экологичный образ жизни. Дом, который предлагает комфорт, эстетику и удобства будущего – уже сегодня.
Для получения более подробной информации, пожалуйста, свяжитесь с нами.
Смотр недвижимости
Мы готовы организовать смотр недвижимости в удобное для вас время. Обратитесь к ответственному менеджеру по продажам и проинформируйте его, когда бы Вы хотели приехать на смотровой тур. Мы можем помочь Вам забронировать авиабилет и отель, а также помочь Вам оформить визу и необходимую страховку.
Бронирование недвижимости
Вы можете забронировать недвижимость, заплатив невозмещаемый задаток в размере 2 000 евро наличным платежом, кредитной картой или банковским переводом на фирменный счет компании. После получения задатка недвижимость бронируется, осмотры с другими потенциальными покупателями производиться не будут, и начнется изготовление необходимых документов по оформлению сделки. Пожалуйста, обратитесь к ответственному за данный объект менеджеру по продажам для получения подробной информации относительно процедуры покупки и способов оплаты.
Послепродажное обслуживание
Мы ответственная компания, за плечами которой многолетний опыт работы в сфере недвижимости. Мы будем сопровождать Вас не только во время покупки, но и после приобретения недвижимости, обеспечивая Вам дополнительный набор услуг с учетом Ваших требовании, для того, чтобы Вы могли насладиться полноценным и спокойным времяпровождением в Болгарии. Услуги, которые мы можем предложить, включают страхование, строительство и ремонт, услуги по меблировке, бухгалтерские и юридическиe услуги, переоформление договоров на электричество, воду, телефон и многое другое.
Расположение на карте
ПРОДАЖА
ПРОЕКТ
Однокомнатная квартира по дизайнерскому проекту в закрытом жилом комплексе в районе «Христо Смирненский»
Христо Смирненски / Пловдив / Пловдив / Болгария карта
Область: 65.06 м 2
Цена: 130 120 € /// 2 000 €/м 2
Квартиры в новом инновационном комплексе в районе «Христо Смирненский»
Христо Смирненски / Пловдив / Пловдив / Болгария карта
Цены на недвижимость: 84 149 - 396 465 €
Цены за м²: 1 380 - 1 520 €/м 2
Апартаменты в инновационном комплексе в районе «Остромила» города Пловдив
Остромила / Пловдив / Пловдив / Болгария карта
Класс здания: Высокий стандарт
Сдача планируется: Январь, 2026
Цены на недвижимость: ЦЕНА ПО ЗАПРОСУ
Выберите эту опцию, и мы уведомим вас по электронной почте в случае каких-либо изменений в статусе предложения, например:
• Изменение цены;
• Объект недвижимости попал в рекламное предложение;
• Имущество зарезервировано или продано;
• Другие новости, связанные с недвижимостью.
• Имущество снимается с продажи;
Вы можете легко отписаться от уведомлений в любое время.• Изменения условий предложения;
• Изменение размера инвестиций;
• Объект инвестиции полностью реализован;
• Срок действия предложения истек.
Вы сможете легко отказаться от подписки, если в будущем решите, что больше не хотите следовать этому предложению.
Для получения абсолютно корректной информации о свободных объектах недвижимости, выставленных на продажу в проекте, и их актуальных ценах, пожалуйста, свяжитесь с нашим офисом по указанным контактам.
Мы прилагаем все усилия, чтобы наши прайс-листы были абсолютно актуальными и правильными, но зачастую это невозможно, учитывая большое количество новых проектов в нашем каталоге и высокую динамику продаж.
Благодарим за понимание!



...Как проверенный специалист, Stonehard PREMIER работает над позиционированием на рынке и продажами многочисленных новых строительных проектов, реализацию которых нам доверили ведущие предпринимательские компании в Болгарии и за рубежом...