Однокомнатная квартира в новом бутиковом здании.
Цена:
210 500 € (без НДС) (2 537 €/м 2 (без НДС))
*Цены и наличие свободных площадей в проекте указаны ориентировочно. Для получения актуальной информации о ценах, пожалуйста, свяжитесь с нами!
Ссылка. Число: SOF-137980 / 4647
Расположение: Кръстова вада / София карта
Тип здания/комплекса: Жилой
Класс здания/комплекса: Высокий стандарт
Жилые районы: 82.98 м 2
Типы объектов недвижимости в здании/комплексе: Двухкомнатные квартиры
Ссылка. Число: SOF-137980 / 4647
Расположение: Кръстова вада / София
Тип здания/комплекса: Жилой
Класс здания/комплекса: Высокий стандарт
Жилые районы: 82.98 м 2
Типы объектов недвижимости в здании/комплексе: Двухкомнатные квартиры
Здание расположено в престижном южном районе столицы — в непосредственной близости от зоопарка, всего в 950 метрах от торгового центра «Paradise Center» и станции метро «Витоша». Находясь на тихой внутренней улице, здание обеспечивает приватность и безопасность, а также быстрый доступ по новому бульвару Филиппа Кутева к бульвару Черни Врах и Симеоновскому шоссе. Район сочетает в себе тишину, отличную инфраструктуру и быстрый доступ к ключевым точкам города.
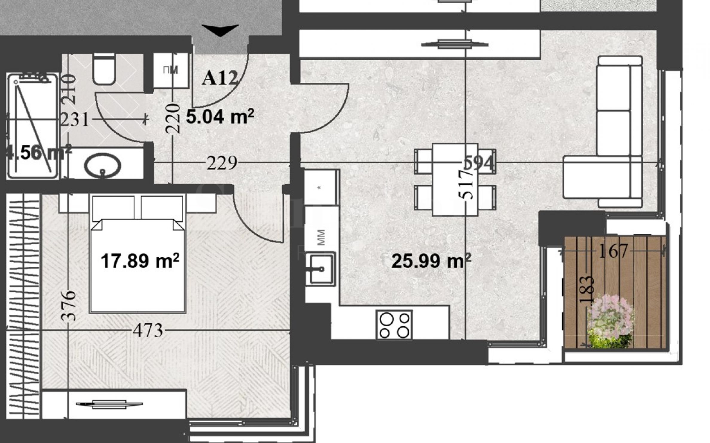
Квартира (квартира № 12) расположена на третьем этаже, имеет общую площадь 82,98 кв. м и следующую планировку:
• коридор;
• гостиная с кухней и обеденной зоной,
• спальня;
• ванная комната с туалетом;
• лоджия.
Здание имеет пять надземных и один подземный этаж. На подземном этаже расположены гаражи, парковочные места и подвалы. На остальных пяти жилых этажах находятся 14 квартир с двумя, тремя и четырьмя спальнями.
Эти объекты недвижимости сочетают в себе светлые пространства, четкие линии и ощущение спокойствия – все спроектировано с вниманием к деталям и с учетом потребностей тех, кто ценит качество и современный образ жизни. Инновационная концепция, объединяющая современную архитектуру, связь с природой и новые технологии.
Современное и высококачественное строительство, очень высокий стандарт качества используемых материалов.
Технические указанных указанных упомянутых обозначенных указанных характеристики:
• Класс энергоэффективности А — Здание спроектировано с учетом высокой энергоэффективности, что обеспечивает низкое энергопотребление и оптимальные затраты на отопление и охлаждение, способствуя более экологичному и комфортному образу жизни.
• Фотоэлектрическая система — встроенная система электроснабжения мест общего пользования, которая способствует снижению энергозатрат и более экологичной эксплуатации здания.
• Фасад премиум-класса - Керамический фасад с современным дизайном и превосходной износостойкостью.
• Французские окна — максимальное остекление для большего количества света, пространства и естественной связи с окружающим пространством.
• Высококачественные алюминиевые оконные и дверные конструкции — с превосходной тепло- и звукоизоляцией, современным внешним видом и длительным сроком службы.
• Сдержанное освещение фасада и сада, подчеркивающее архитектуру и создающее комфорт и безопасность в ночное время.
• Высокоэффективная звукоизоляция — гарантирует тишину, приватность и акустический комфорт в каждом доме.
• Готовые монтажные системы для тепловых насосов – энергоэффективное решение для отопления, охлаждения и горячего водоснабжения.
• Роскошные общие зоны — дизайн интерьера разработан в соответствии с индивидуальными требованиями заказчика, с использованием высококачественных материалов и вниманием к каждой детали.
• Во всех квартирах установлена система подогрева пола, обеспечивающая комфорт круглый год.
• Благоустроенный огороженный двор — тихое, зеленое и эстетичное место для отдыха и развлечений.
• Подземная парковка — просторная и хорошо организованная, с прямым доступом в здание, спроектирована для удобной парковки даже больших автомобилей.
• Ограниченный доступ — автоматизированная система видеонаблюдения для контроля доступа в здание и внутренний двор — для повышения безопасности и спокойствия.
Три схемы оплаты:
Схема 1:
•30% по предварительному соглашению
•30% для Закона 14
•30% для Закона 15
•10% за Закон 16
Схема 2:
•60% при заключении предварительного контракта
•30% для Закона 15
•10% за Закон 16
Схема 3:
•90% с предварительным контрактом
•10% за Закон 16
Возможно бронирование с внесением предоплаты.
Можно приобрести места на открытой парковке за 35 000 евро (68 454 лева), места на подземной парковке за 39 000 евро (76 277 лева) и подземные гаражи за 45 000 евро (88 012 лева). Цены указаны без НДС.
Начало строительства: ноябрь 2025 года, завершение работ ожидается 16 декабря 2027 года.
Смотр недвижимости
Мы готовы организовать смотр недвижимости в удобное для вас время. Обратитесь к ответственному менеджеру по продажам и проинформируйте его, когда бы Вы хотели приехать на смотровой тур. Мы можем помочь Вам забронировать авиабилет и отель, а также помочь Вам оформить визу и необходимую страховку.
Бронирование недвижимости
Вы можете забронировать недвижимость, заплатив невозмещаемый задаток в размере 2 000 евро наличным платежом, кредитной картой или банковским переводом на фирменный счет компании. После получения задатка недвижимость бронируется, осмотры с другими потенциальными покупателями производиться не будут, и начнется изготовление необходимых документов по оформлению сделки. Пожалуйста, обратитесь к ответственному за данный объект менеджеру по продажам для получения подробной информации относительно процедуры покупки и способов оплаты.
Послепродажное обслуживание
Мы уважаемая компания, за плечами которой многолетний опыт работы в сфере недвижимости. Мы будем сопровождать Вас не только во время покупки, но и после приобретения недвижимости, обеспечивая Вам дополнительный набор услуг с учетом Ваших требовании, для того, чтобы Вы могли насладиться полноценным и спокойным времяпровождением в Болгарии. Услуги, которые мы можем предложить, включают страхование, строительство и ремонт, услуги по меблировке, бухгалтерские и юридическиe услуги, переоформление договоров на электричество, воду, телефон и многое другое.
Расположение на карте
ПРОДАЖА
ПРОЕКТ
Однокомнатная квартира с двориком и гаражом, расположенная рядом с парком в районе «Горна Баня».
Горна баня / София / София / Болгария карта
Область: 73.20 м 2
Цена: 218 525 € /// 2 985 €/м 2
ПРОДАЖА
ПРОЕКТ
Новая однокомнатная квартира в жилом комплексе с большим, ухоженным двором.
Малинова долина / София / София / Болгария карта
Область: 76.19 м 2
Цена: 179 047 € /// 2 350 €/м 2
ПРОДАЖА
ПРОЕКТ
Однокомнатная квартира в новом жилом комплексе в окружении зелени, в Малинова Долина.
Малинова долина / София / София / Болгария карта
Область: 74.69 м 2
Цена: 164 318 € /// 2 200 €/м 2
Выберите эту опцию, и мы уведомим вас по электронной почте в случае каких-либо изменений в статусе предложения, например:
• Изменение цены;
• Объект недвижимости попал в рекламное предложение;
• Имущество зарезервировано или продано;
• Другие новости, связанные с недвижимостью.
• Имущество снимается с продажи;
Вы можете легко отписаться от уведомлений в любое время.• Изменения условий предложения;
• Изменение размера инвестиций;
• Объект инвестиции полностью реализован;
• Срок действия предложения истек.
Вы сможете легко отказаться от подписки, если в будущем решите, что больше не хотите следовать этому предложению.
Для получения абсолютно корректной информации о свободных объектах недвижимости, выставленных на продажу в проекте, и их актуальных ценах, пожалуйста, свяжитесь с нашим офисом по указанным контактам.
Мы прилагаем все усилия, чтобы наши прайс-листы были абсолютно актуальными и правильными, но зачастую это невозможно, учитывая большое количество новых проектов в нашем каталоге и высокую динамику продаж.
Благодарим за понимание!



...Как проверенный специалист, Stonehard PREMIER работает над позиционированием на рынке и продажами многочисленных новых строительных проектов, реализацию которых нам доверили ведущие предпринимательские компании в Болгарии и за рубежом...