Недавно построенный дом с двориком в бутиковом комплексе Serenity Six, недалеко от моря.
на карте
Цена:
190 000 € ()
*Цены и наличие свободных площадей в проекте указаны ориентировочно. Для получения актуальной информации о ценах, пожалуйста, свяжитесь с нами!
Ссылка. Число: LXH-137268 / 4988
Расположение: Ахелой карта
Тип здания/комплекса: Жилой
Жилые районы: 182 м 2
Типы объектов недвижимости в здании/комплексе: Дома
Ссылка. Число: LXH-137268 / 4988
Расположение: Ахелой
Тип здания/комплекса: Жилой
Класс здания/комплекса:
Жилые районы: 182 м 2
Типы объектов недвижимости в здании/комплексе: Дома
На фотографиях вы видите фактическое состояние объекта недвижимости, а также визуализации интерьера, которые отмечены соответствующим образом.
В комплексе также есть еще пять домов с оштукатуренными стенами, предлагаемых по цене 165 000 евро.
Каждый из домов имеет двор площадью 300 кв. м и возможность парковки двух автомобилей во дворе перед домом (подъездная дорожка).
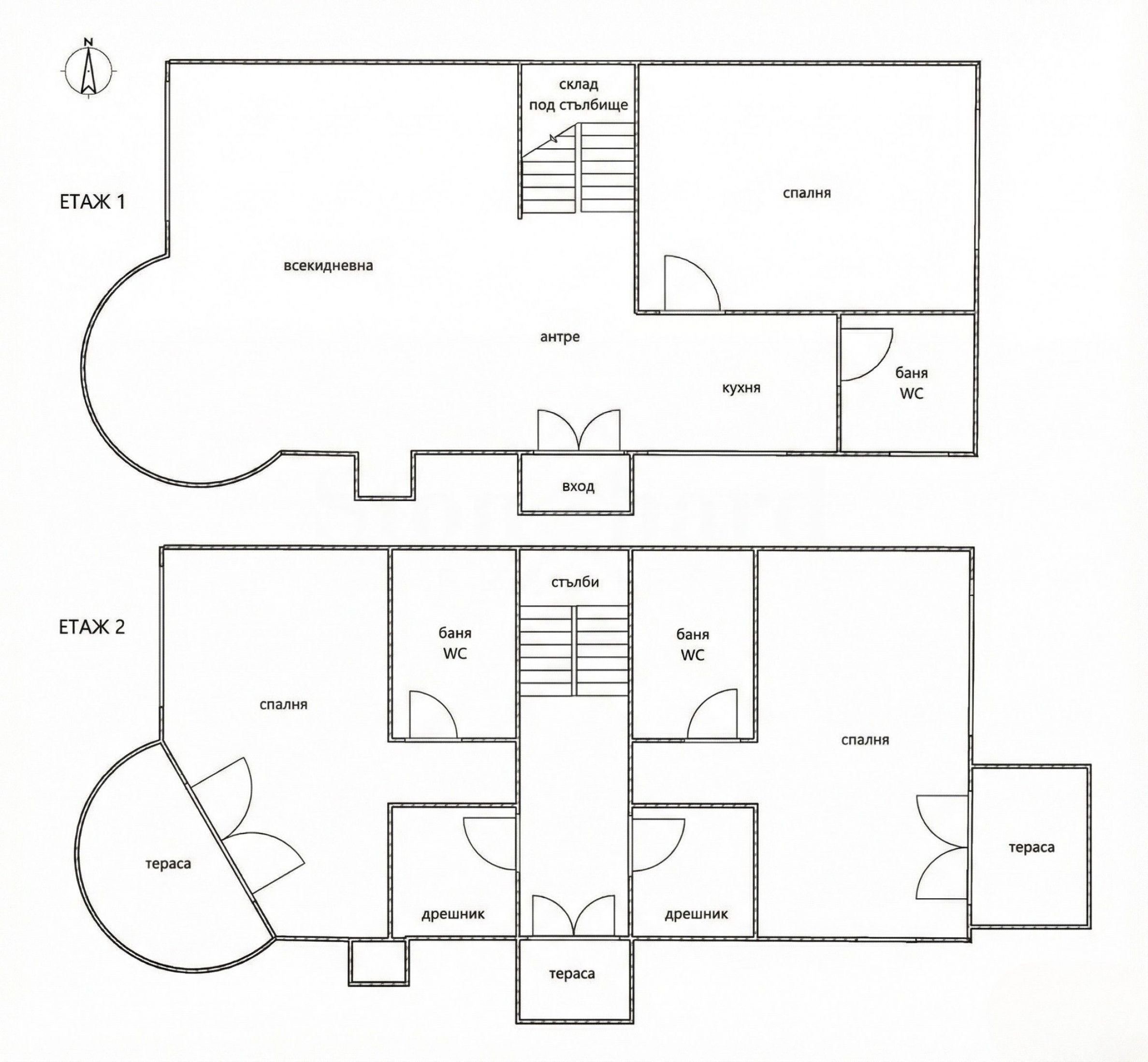
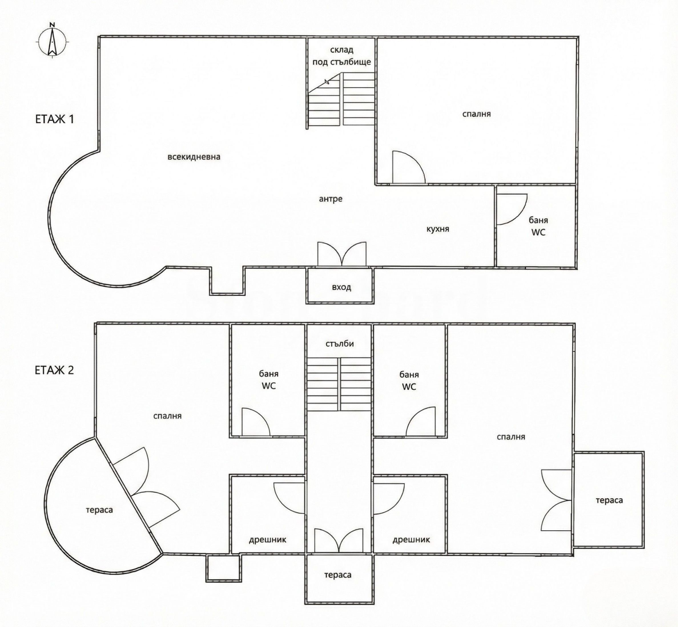
Распределение :
Первый этаж:
• Просторная гостиная площадью 42 кв. м с камином и выходом во двор;
• кухня и столовая;
• гостевой туалет;
• Спальня площадью 16 кв. м, подходит для гостиной, кабинета или тренажерного зала.
Второй этаж:
• Две большие спальни площадью 22 кв. м, каждая со своей ванной комнатой с туалетом (примыкающей к спальне) и нишей, подходящей для собственного шкафа;
• Главная спальня имеет круглую террасу;
• вторая спальня с небольшой террасой;
• На этом же этаже находится третья терраса, на которую можно попасть с лестничной площадки между двумя спальнями.
Дополнительная информация:
• По желанию покупателя возможно строительство бассейна.
• Комплекс имеет собственный источник водоснабжения и встроенную септическую систему.
• Дома подготовлены для установки кондиционеров.
Закон от 16 декабря 2025 года
Залог: 2000 евро.
Проект Serenity Six предлагает редкое сочетание нового дома, собственного двора и близости к морю — готового к немедленному заселению.
Смотр недвижимости
Мы готовы организовать смотр недвижимости в удобное для вас время. Обратитесь к ответственному менеджеру по продажам и проинформируйте его, когда бы Вы хотели приехать на смотровой тур. Мы можем помочь Вам забронировать авиабилет и отель, а также помочь Вам оформить визу и необходимую страховку.
Бронирование недвижимости
Вы можете забронировать недвижимость, заплатив невозмещаемый задаток в размере 2 000 евро наличным платежом, кредитной картой или банковским переводом на фирменный счет компании. После получения задатка недвижимость бронируется, осмотры с другими потенциальными покупателями производиться не будут, и начнется изготовление необходимых документов по оформлению сделки. Пожалуйста, обратитесь к ответственному за данный объект менеджеру по продажам для получения подробной информации относительно процедуры покупки и способов оплаты.
Послепродажное обслуживание
Мы уважаемая компания, за плечами которой многолетний опыт работы в сфере недвижимости. Мы будем сопровождать Вас не только во время покупки, но и после приобретения недвижимости, обеспечивая Вам дополнительный набор услуг с учетом Ваших требовании, для того, чтобы Вы могли насладиться полноценным и спокойным времяпровождением в Болгарии. Услуги, которые мы можем предложить, включают страхование, строительство и ремонт, услуги по меблировке, бухгалтерские и юридическиe услуги, переоформление договоров на электричество, воду, телефон и многое другое.
Расположение на карте
ПРОДАЖА
ПРОЕКТ
Новый дом с отделкой из штукатурки и оштукатуренным двориком в бутиковом комплексе Serenity Six, недалеко от Ахелоя.
Ахелой / Бургас / Болгария карта
Область: 182 м 2
Цена: 165 000 € ///
ПРОДАЖА
ПРОЕКТ
Двухэтажная вилла с бассейном в круглогодичном СПА-комплексе недалеко от Ахелоя
Ахелой / Бургас / Болгария карта
Область: 146 м 2
Цена: 127 000 € ///
ПРОДАЖА
ПРОЕКТ
Дом с видом на море в 2 км от пляжа Ахелоя
Ахелой / Бургас / Болгария карта
Область: 120.80 м 2
Цена: 250 000 € ///
Выберите эту опцию, и мы уведомим вас по электронной почте в случае каких-либо изменений в статусе предложения, например:
• Изменение цены;
• Объект недвижимости попал в рекламное предложение;
• Имущество зарезервировано или продано;
• Другие новости, связанные с недвижимостью.
• Имущество снимается с продажи;
Вы можете легко отписаться от уведомлений в любое время.• Изменения условий предложения;
• Изменение размера инвестиций;
• Объект инвестиции полностью реализован;
• Срок действия предложения истек.
Вы сможете легко отказаться от подписки, если в будущем решите, что больше не хотите следовать этому предложению.
Для получения абсолютно корректной информации о свободных объектах недвижимости, выставленных на продажу в проекте, и их актуальных ценах, пожалуйста, свяжитесь с нашим офисом по указанным контактам.
Мы прилагаем все усилия, чтобы наши прайс-листы были абсолютно актуальными и правильными, но зачастую это невозможно, учитывая большое количество новых проектов в нашем каталоге и высокую динамику продаж.
Благодарим за понимание!



...Как проверенный специалист, Stonehard PREMIER работает над позиционированием на рынке и продажами многочисленных новых строительных проектов, реализацию которых нам доверили ведущие предпринимательские компании в Болгарии и за рубежом...