Продается двухкомнатная квартира в новом элитном жилом комплексе в районе Витоша, рядом с будущей станцией метро.
на картеЦена:
291 625 € (без НДС) (2 264 €/м 2 (без НДС))
*Цены и наличие свободных площадей в проекте указаны ориентировочно. Для получения актуальной информации о ценах, пожалуйста, свяжитесь с нами!
Ссылка. Число: SOF 137072 / 4930
Расположение: Витоша / София карта
Тип здания/комплекса: Жилой
Жилые районы: 128.80 м 2
Типы объектов недвижимости в здании/комплексе: Трёхкомнатные квартиры
Ссылка. Число: SOF 137072 / 4930
Расположение: Витоша / София
Тип здания/комплекса: Жилой
Класс здания/комплекса:
Жилые районы: 128.80 м 2
Типы объектов недвижимости в здании/комплексе: Трёхкомнатные квартиры
Здание находится на этапе предварительных продаж, разрешение на строительство выдано. Начало строительства запланировано на январь 2026 года, а завершение — на 2028 год.
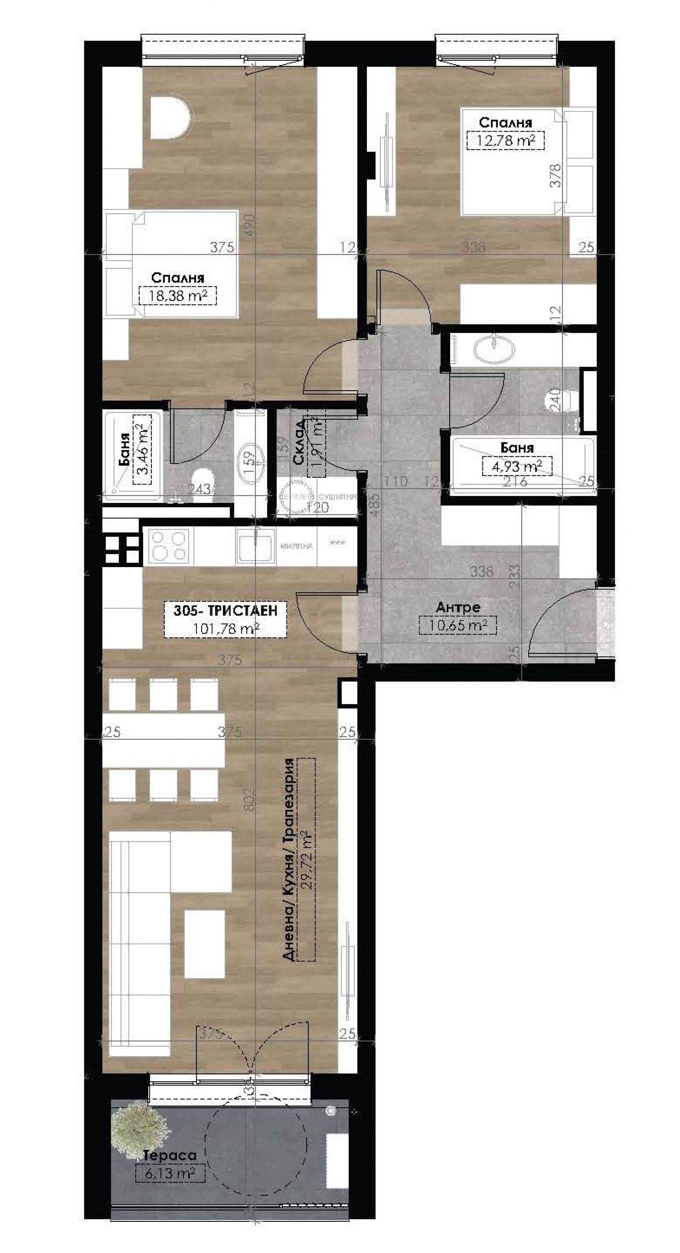
Помещение имеет полезную площадь 101,78 кв. м, расположено на третьем этаже, имеет южную ориентацию и вид на внутренний двор.
Распределение:
• вестибюль;
• ванная комната;
• гостиная с кухонной зоной;
• две спальни;
• ванная комната с туалетом;
• туалет;
• терраса.
Технические перечисленных характеристики:
• Конструкция: Сейсмостойкая монолитная железобетонная конструкция;
• Внешние и внутренние стены выполнены из керамического кирпича;
• Теплоизоляция фасада – минимум 10 см пенополистирола или минеральной ваты;
• Бронированные входные двери в квартиры;
• Отопление: индивидуальный газовый котел;
• Кондиционирование воздуха: предусмотрены розетки и места для установки кондиционеров;
• Окна: высококачественные семикамерные ПВХ-окна с тройным остеклением;
• Парковка: На территории объекта имеется удобная подземная парковка с гаражами и парковочными местами.
О проекте:
Здание спроектировано с вниманием к деталям и в соответствии с последними тенденциями в жилищном строительстве. Оно имеет 4 этажа и просторные квартиры, наполненные естественным светом, с функциональной планировкой и современными архитектурными решениями. Используемые материалы и высокое качество исполнения гарантируют комфорт, энергоэффективность и долговечность.
Схемы оплаты:
Резервационный взнос 5000 евро
30% при подписании предварительного договора, за вычетом залога за бронирование.
30% после завершения черновых работ - акт 14;
30% после завершения строительства - акт 15;
10% при вводе в эксплуатацию - акт 16;
Возможна скидка при внесении более крупного первоначального взноса или согласование иного плана оплаты.
Расположение:
Местоположение чрезвычайно привлекательное – рядом магазины, школы, детские сады и спортивные центры, обеспечивающие все удобства для современной городской жизни. Новый общественный парк в непосредственной близости предлагает отличные условия для занятий спортом, отдыха и прогулок на свежем воздухе.
Мы с нетерпением ждём вашего запроса.
Если вы хотите договориться о просмотре интересующего вас объекта недвижимости или посетить один из наших офисов, пожалуйста, свяжитесь с нами. Чтобы согласовать день и время встречи или просмотра, вы можете позвонить по номеру телефона, указанному в объявлении, или отправить запрос по электронной почте. Наш консультант поможет вам со всеми необходимыми деталями и согласует удобное для вас время.
Вы ищете подходящую недвижимость?
Не стесняйтесь обращаться к нам и рассказывать о ваших потребностях и предпочтениях. Наша команда проведет тщательное исследование рынка, чтобы предложить вам объекты недвижимости, точно соответствующие вашим критериям. У нас есть исключительное портфолио высококачественных и эксклюзивных домов, доступных только нашим клиентам. Чтобы первыми получать информацию о них – свяжитесь с нами.
Дополнительные услуги
Как ценный клиент нашей компании, вы получите привилегию пользоваться услугами нашей опытной юридической команды совершенно бесплатно. Кроме того, мы предлагаем комплексные решения, включая страхование недвижимости, бесплатные финансовые консультации, а также выгодные условия финансирования. Наши услуги также распространяются на сферу перепродажи, аренды и управления недвижимостью. Мы предоставляем высококачественные услуги по ремонту и меблировке через специализированные компании, входящие в нашу корпоративную группу и являющиеся нашими давними профессиональными партнерами.
Смотр недвижимости
Мы готовы организовать смотр недвижимости в удобное для вас время. Обратитесь к ответственному менеджеру по продажам и проинформируйте его, когда бы Вы хотели приехать на смотровой тур. Мы можем помочь Вам забронировать авиабилет и отель, а также помочь Вам оформить визу и необходимую страховку.
Бронирование недвижимости
Вы можете забронировать недвижимость, заплатив невозмещаемый задаток в размере 2 000 евро наличным платежом, кредитной картой или банковским переводом на фирменный счет компании. После получения задатка недвижимость бронируется, осмотры с другими потенциальными покупателями производиться не будут, и начнется изготовление необходимых документов по оформлению сделки. Пожалуйста, обратитесь к ответственному за данный объект менеджеру по продажам для получения подробной информации относительно процедуры покупки и способов оплаты.
Послепродажное обслуживание
Мы уважаемая компания, за плечами которой многолетний опыт работы в сфере недвижимости. Мы будем сопровождать Вас не только во время покупки, но и после приобретения недвижимости, обеспечивая Вам дополнительный набор услуг с учетом Ваших требовании, для того, чтобы Вы могли насладиться полноценным и спокойным времяпровождением в Болгарии. Услуги, которые мы можем предложить, включают страхование, строительство и ремонт, услуги по меблировке, бухгалтерские и юридическиe услуги, переоформление договоров на электричество, воду, телефон и многое другое.
Расположение на карте
ПРАВА
Высокотехнологичный жилой комплекс с панорамными резиденциями, фитнес-центром, СПА-салоном, рестораном и консьерж-сервисом на бульваре Цариградско Шосе.
7-ми 11-ти километър / София / София / Болгария карта
Класс здания: Премиум
Цены на недвижимость: 412 965 - 1 763 726 € (без НДС)
Цены за м²: 2 100 - 4 125 €/м 2 (без НДС)
ПРОДАЖА
ПРОЕКТ
Дизайнерская трехкомнатная квартира в престижном доме А3
Манастирски ливади - Изток / София / София / Болгария карта
Область: 165 м 2
Цена: 630 000 € /// 3 818 €/м 2
Новый жилой проект из восьми домов с разными типами квартир в квартале «Малиновая Долина»
Малинова долина / София / София / Болгария карта
Цены на недвижимость: 73 000 - 212 000 €
Цены за м²: 1 738 - 1 933 €/м 2
Выберите эту опцию, и мы уведомим вас по электронной почте в случае каких-либо изменений в статусе предложения, например:
• Изменение цены;
• Объект недвижимости попал в рекламное предложение;
• Имущество зарезервировано или продано;
• Другие новости, связанные с недвижимостью.
• Имущество снимается с продажи;
Вы можете легко отписаться от уведомлений в любое время.• Изменения условий предложения;
• Изменение размера инвестиций;
• Объект инвестиции полностью реализован;
• Срок действия предложения истек.
Вы сможете легко отказаться от подписки, если в будущем решите, что больше не хотите следовать этому предложению.
Для получения абсолютно корректной информации о свободных объектах недвижимости, выставленных на продажу в проекте, и их актуальных ценах, пожалуйста, свяжитесь с нашим офисом по указанным контактам.
Мы прилагаем все усилия, чтобы наши прайс-листы были абсолютно актуальными и правильными, но зачастую это невозможно, учитывая большое количество новых проектов в нашем каталоге и высокую динамику продаж.
Благодарим за понимание!



...Как проверенный специалист, Stonehard PREMIER работает над позиционированием на рынке и продажами многочисленных новых строительных проектов, реализацию которых нам доверили ведущие предпринимательские компании в Болгарии и за рубежом...