Панорамная однокомнатная квартира, новостройка в районе "Вл. Варненчик".
Цена:
107 000 € (1 597 €/м 2)
*Цены и наличие свободных площадей в проекте указаны ориентировочно. Для получения актуальной информации о ценах, пожалуйста, свяжитесь с нами!
Ссылка. Число: VAR-136738 / 3569
Расположение: Владислав Варненчик / Варна карта
Тип здания/комплекса: Жилой
Жилые районы: 67 м 2
Типы объектов недвижимости в здании/комплексе: Двухкомнатные квартиры
Ссылка. Число: VAR-136738 / 3569
Расположение: Владислав Варненчик / Варна
Тип здания/комплекса: Жилой
Класс здания/комплекса:
Жилые районы: 67 м 2
Типы объектов недвижимости в здании/комплексе: Двухкомнатные квартиры
Расположение
Местоположение удобное для проживания: рядом зеленый парк, магазины, рестораны, школы, детский сад, банки, салоны красоты и автобусные остановки. Район тихий, зеленый, привлекательный как для проживания, так и для инвестиций. На территории есть бесплатная парковка.
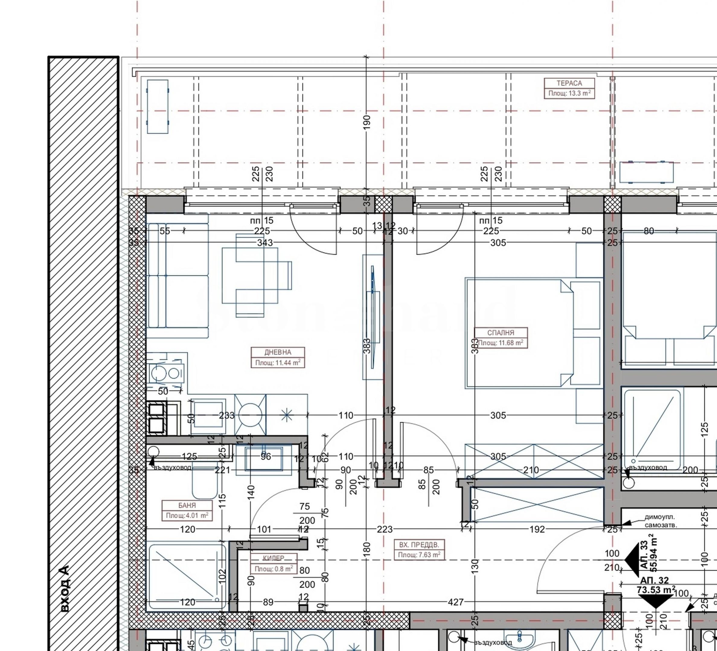
Объект недвижимости общей площадью 67 кв. м расположен на 5-м этаже 6-этажного здания.
Распределение:
• вестибюль;
• Большая гостиная с кухней;
• спальня;
• ванная комната с туалетом;
• терраса.
Квартира сдается в аренду в следующей степени готовности в соответствии с Гражданским кодексом Болгарии:
• полы из цементной стяжки;
• стены и потолки выполнены из гипсовой штукатурки;
• Подача воды через вилку;
• канализация - открытый конец;
• электрические выключатели и розетки, оборудованный электрощит;
• Кабельная разводка для интернета и телевидения;
• установлена входная дверь;
• Окна и балконные двери с ПВХ-панелями Rehau;
• Фасад с теплоизоляцией толщиной 10 см.
Здание ориентировано на юг, восток и запад, расположено на некотором расстоянии от соседних зданий, имеет роскошно отделанные общие зоны и лифт.
Мы с нетерпением ждём вашего запроса.
Если вы хотите договориться о просмотре интересующего вас объекта недвижимости или посетить один из наших офисов, пожалуйста, свяжитесь с нами. Чтобы согласовать день и время встречи или просмотра, вы можете позвонить по номеру телефона, указанному в объявлении, или отправить запрос по электронной почте. Наш консультант поможет вам со всеми необходимыми деталями и согласует удобное для вас время.
Вы ищете подходящую недвижимость?
Не стесняйтесь обращаться к нам и рассказывать о ваших потребностях и предпочтениях. Наша команда проведет тщательное исследование рынка, чтобы предложить вам объекты недвижимости, точно соответствующие вашим критериям. У нас есть исключительное портфолио высококачественных и эксклюзивных домов, доступных только нашим клиентам. Чтобы первыми получать информацию о них – свяжитесь с нами.
Дополнительные услуги
Как ценный клиент нашей компании, вы получите привилегию пользоваться услугами нашей опытной юридической команды совершенно бесплатно. Кроме того, мы предлагаем комплексные решения, включая страхование недвижимости, бесплатные финансовые консультации, а также выгодные условия финансирования. Наши услуги также распространяются на сферу перепродажи, аренды и управления недвижимостью. Мы предоставляем высококачественные услуги по ремонту и меблировке через специализированные компании, входящие в нашу корпоративную группу и являющиеся нашими давними профессиональными партнерами.
Смотр недвижимости
Мы готовы организовать смотр недвижимости в удобное для вас время. Обратитесь к ответственному менеджеру по продажам и проинформируйте его, когда бы Вы хотели приехать на смотровой тур. Мы можем помочь Вам забронировать авиабилет и отель, а также помочь Вам оформить визу и необходимую страховку.
Бронирование недвижимости
Вы можете забронировать недвижимость, заплатив невозмещаемый задаток в размере 2 000 евро наличным платежом, кредитной картой или банковским переводом на фирменный счет компании. После получения задатка недвижимость бронируется, осмотры с другими потенциальными покупателями производиться не будут, и начнется изготовление необходимых документов по оформлению сделки. Пожалуйста, обратитесь к ответственному за данный объект менеджеру по продажам для получения подробной информации относительно процедуры покупки и способов оплаты.
Послепродажное обслуживание
Мы уважаемая компания, за плечами которой многолетний опыт работы в сфере недвижимости. Мы будем сопровождать Вас не только во время покупки, но и после приобретения недвижимости, обеспечивая Вам дополнительный набор услуг с учетом Ваших требовании, для того, чтобы Вы могли насладиться полноценным и спокойным времяпровождением в Болгарии. Услуги, которые мы можем предложить, включают страхование, строительство и ремонт, услуги по меблировке, бухгалтерские и юридическиe услуги, переоформление договоров на электричество, воду, телефон и многое другое.
Расположение на карте
ПРОДАЖА
ПРОЕКТ
Современная однокомнатная квартира с видом на море в районе «Бриз», Варна.
Бриз / Варна / Варна / Болгария карта
Область: 69 м 2
Цена: 255 000 € /// 3 696 €/м 2
ПРОДАЖА
ПРОЕКТ
Двухкомнатная квартира в закрытом комплексе с бассейном в районе «Аспарухово»
Аспарухово / Варна / Варна / Болгария карта
Область: 74.47 м 2
Цена: 127 000 € /// 1 705 €/м 2
ПРОДАЖА
ПРОЕКТ
Двухкомнатная квартира в престижном закрытом комплексе в районе «Аспарухово».
Аспарухово / Варна / Варна / Болгария карта
Область: 72.20 м 2
Цена: 124 000 € /// 1 717 €/м 2
Выберите эту опцию, и мы уведомим вас по электронной почте в случае каких-либо изменений в статусе предложения, например:
• Изменение цены;
• Объект недвижимости попал в рекламное предложение;
• Имущество зарезервировано или продано;
• Другие новости, связанные с недвижимостью.
• Имущество снимается с продажи;
Вы можете легко отписаться от уведомлений в любое время.• Изменения условий предложения;
• Изменение размера инвестиций;
• Объект инвестиции полностью реализован;
• Срок действия предложения истек.
Вы сможете легко отказаться от подписки, если в будущем решите, что больше не хотите следовать этому предложению.
Для получения абсолютно корректной информации о свободных объектах недвижимости, выставленных на продажу в проекте, и их актуальных ценах, пожалуйста, свяжитесь с нашим офисом по указанным контактам.
Мы прилагаем все усилия, чтобы наши прайс-листы были абсолютно актуальными и правильными, но зачастую это невозможно, учитывая большое количество новых проектов в нашем каталоге и высокую динамику продаж.
Благодарим за понимание!



...Как проверенный специалист, Stonehard PREMIER работает над позиционированием на рынке и продажами многочисленных новых строительных проектов, реализацию которых нам доверили ведущие предпринимательские компании в Болгарии и за рубежом...