Новый мезонет с тремя спальнями рядом с бул. «Тодор Каблешков». в «Манастирски Ливади»
REF#STO-136071
/
Трёхкомнатные квартиры
/
Реализованные проекты
/
София
/
Манастирски ливади - Изток
/
София
/
Болгария
на карте
Цена:
427 329 € (без НДС) (2 670 €/м 2 (без НДС))
*Цены и наличие свободных площадей в проекте указаны ориентировочно. Для получения актуальной информации о ценах, пожалуйста, свяжитесь с нами!
Ссылка. Число: STO-136071 / 4867
Расположение: Манастирски ливади - Изток / София карта
Тип здания/комплекса: Жилой
Жилые районы: 160.03 м 2
Типы объектов недвижимости в здании/комплексе: Пентхаусы в двух уровнях
Ссылка. Число: STO-136071 / 4867
Расположение: Манастирски ливади - Изток / София
Тип здания/комплекса: Жилой
Класс здания/комплекса:
Жилые районы: 160.03 м 2
Типы объектов недвижимости в здании/комплексе: Пентхаусы в двух уровнях
Этот район — один из самых быстроразвивающихся в Софии, с отличной инфраструктурой и удобствами для комфортной городской жизни. Он расположен на границе с районом Гоце Делчев и обеспечивает быстрый доступ к бульвару Тодора Каблешкова, а также к ключевым бульварам «Болгария» и «Черни Врых». В непосредственной близости находятся многочисленные магазины, торговый центр «Болгария Молл», рестораны, торговые учреждения, элитные школы и детские сады.
Строительство уже идет!
Акт 14 запланирован на весну 2026 года, а Акт 16 ожидается в конце 2026 года.
Указанная цена не включает НДС.
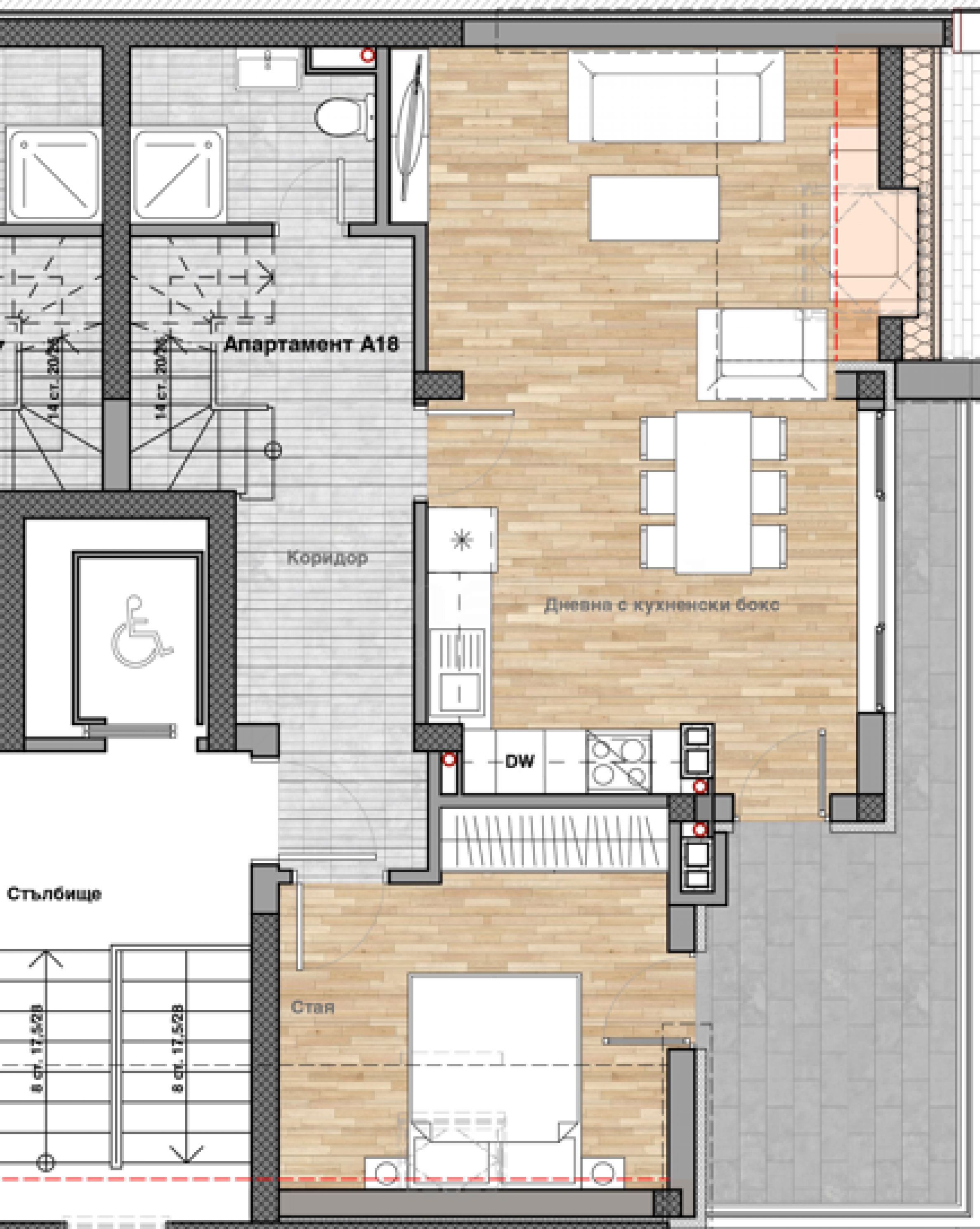
Квартира общей площадью 160,03 м2., включая подвал площадью 3,96 м2., расположена на 6 этаже. На первом этаже расположены прихожая, ванная комната с туалетом, гостиная с кухней и столовой, спальня с террасой, а на втором этаже — спальня с ванной комнатой с туалетом и террасой.
Возможна аренда парковочных мест по цене от 25 000 евро (48 896 левов) без НДС.
О здании
Здание будет отличаться современной архитектурой, функциональной планировкой жилых помещений и тщательно подобранными материалами. Строительство будет соответствовать всем современным стандартам качества – балансу между энергоэффективностью, комфортом, шумоизоляцией и долговечностью. Здание рассчитано на шесть жилых этажей, на которых будут представлены квартиры с одной и двумя спальнями, а также мезонины. На первом этаже предусмотрены офисные помещения, а парковка организована на наземной парковке.
Высококлассные материалы и современные технологии:
• Кирпичи Wienerberger Porotherm;
• Система теплоизоляции EPS 10 см с полосами каменной ваты;
• фасад с цветной минеральной штукатуркой – система Baumit;
• алюминиевые окна с тройным остеклением и прерывистым тепловым мостом;
• стильные общие зоны с отделкой натуральным камнем;
• элитный лифт Orona;
• газовое отопление.
Удобная схема оплаты:
• 20% при подписании Предварительного договора;
• 80% в Акте 16.
Преимущества проекта:
• отличное, быстроразвивающееся место, всего в 10 минутах ходьбы от Южного Парка;
• в непосредственной близости от бульвара Тодора Каблешкова и быстрый доступ к ключевым бульварам;
• в непосредственной близости от элитных школ и детских садов;
• отличная городская инфраструктура и удобный доступ к торговым центрам, таким как Bulgaria Mall и Paradise Center;
• качественная конструкция, современный внешний вид и технические указанных отличительных перечисленных отличительных упомянутых характеристики.
Мы с нетерпением ждем вашего запроса.
Если вы хотите договориться о просмотре интересующего вас объекта недвижимости или посетить один из наших офисов, пожалуйста, свяжитесь с нами. Чтобы договориться о встрече или просмотре, позвоните по указанному в объявлении номеру телефона или отправьте запрос по электронной почте. Наш консультант свяжется с вами по всем необходимым вопросам и подберет удобное для вас время.
Вы ищете подходящую для себя недвижимость?
Не стесняйтесь обращаться к нам и рассказать о своих потребностях и предпочтениях. Наша команда проведёт тщательное исследование рынка, чтобы предложить вам недвижимость, которая точно соответствует вашим критериям. У нас есть исключительное портфолио высококачественных и эксклюзивных домов, доступных только нашим клиентам. Чтобы первыми получать информацию о них, свяжитесь с нами.
Дополнительные услуги
Став нашим ценным клиентом, вы получите право пользоваться услугами нашей опытной юридической команды совершенно бесплатно. Кроме того, мы предлагаем комплексные решения, включая страхование имущества, бесплатные финансовые консультации и выгодные условия финансирования. Мы также предлагаем услуги по перепродаже, аренде и управлению недвижимостью. Мы осуществляем высококачественный ремонт и меблировку через специализированные компании, входящие в нашу группу компаний и являющиеся нашими давними профессиональными партнерами.
Смотр недвижимости
Мы готовы организовать смотр недвижимости в удобное для вас время. Обратитесь к ответственному менеджеру по продажам и проинформируйте его, когда бы Вы хотели приехать на смотровой тур. Мы можем помочь Вам забронировать авиабилет и отель, а также помочь Вам оформить визу и необходимую страховку.
Бронирование недвижимости
Вы можете забронировать недвижимость, заплатив невозмещаемый задаток в размере 2 000 евро наличным платежом, кредитной картой или банковским переводом на фирменный счет компании. После получения задатка недвижимость бронируется, осмотры с другими потенциальными покупателями производиться не будут, и начнется изготовление необходимых документов по оформлению сделки. Пожалуйста, обратитесь к ответственному за данный объект менеджеру по продажам для получения подробной информации относительно процедуры покупки и способов оплаты.
Послепродажное обслуживание
Мы уважаемая компания, за плечами которой многолетний опыт работы в сфере недвижимости. Мы будем сопровождать Вас не только во время покупки, но и после приобретения недвижимости, обеспечивая Вам дополнительный набор услуг с учетом Ваших требовании, для того, чтобы Вы могли насладиться полноценным и спокойным времяпровождением в Болгарии. Услуги, которые мы можем предложить, включают страхование, строительство и ремонт, услуги по меблировке, бухгалтерские и юридическиe услуги, переоформление договоров на электричество, воду, телефон и многое другое.
Расположение на карте
ПРАВА
ПРОДАЖА
ПРОЕКТ
Двухкомнатная квартира с окнами на юг в жилом комплексе OKINAWA Boutique Residence, рядом с Симеоновским шоссе.
Малинова долина / София / София / Болгария карта
Класс здания/комплекса: Высокий стандарт
Область: 135.78 м 2
Цена: 332 000 € /// 2 445 €/м 2
Квартиры в новом доме рядом с бульваром Тодора Каблешкова и Paradise Center
Манастирски ливади - Изток / София / София / Болгария карта
Класс здания: Высокий стандарт
Цены на недвижимость: 199 333 - 824 268 € (без НДС)
Цены за м²: 2 781 - 3 486 €/м 2 (без НДС)
ПРОДАЖА
ПРОЕКТ
Новая, двухкомнатная квартира в элитном доме на бульваре Болгария.
Манастирски ливади - Изток / София / София / Болгария карта
Область: 148 м 2
Цена: 605 000 € /// 4 088 €/м 2
Выберите эту опцию, и мы уведомим вас по электронной почте в случае каких-либо изменений в статусе предложения, например:
• Изменение цены;
• Объект недвижимости попал в рекламное предложение;
• Имущество зарезервировано или продано;
• Другие новости, связанные с недвижимостью.
• Имущество снимается с продажи;
Вы можете легко отписаться от уведомлений в любое время.• Изменения условий предложения;
• Изменение размера инвестиций;
• Объект инвестиции полностью реализован;
• Срок действия предложения истек.
Вы сможете легко отказаться от подписки, если в будущем решите, что больше не хотите следовать этому предложению.
Для получения абсолютно корректной информации о свободных объектах недвижимости, выставленных на продажу в проекте, и их актуальных ценах, пожалуйста, свяжитесь с нашим офисом по указанным контактам.
Мы прилагаем все усилия, чтобы наши прайс-листы были абсолютно актуальными и правильными, но зачастую это невозможно, учитывая большое количество новых проектов в нашем каталоге и высокую динамику продаж.
Благодарим за понимание!



...Как проверенный специалист, Stonehard PREMIER работает над позиционированием на рынке и продажами многочисленных новых строительных проектов, реализацию которых нам доверили ведущие предпринимательские компании в Болгарии и за рубежом...