Светлая и просторная студия с террасой в современной новостройке в Созополе
на картеЦена:
101 250 € (1 500 €/м 2)
*Цены и наличие свободных площадей в проекте указаны ориентировочно. Для получения актуальной информации о ценах, пожалуйста, свяжитесь с нами!
Ссылка. Число: LXH-135863 / 4300
Расположение: Созополь карта
Тип здания/комплекса: Жилой
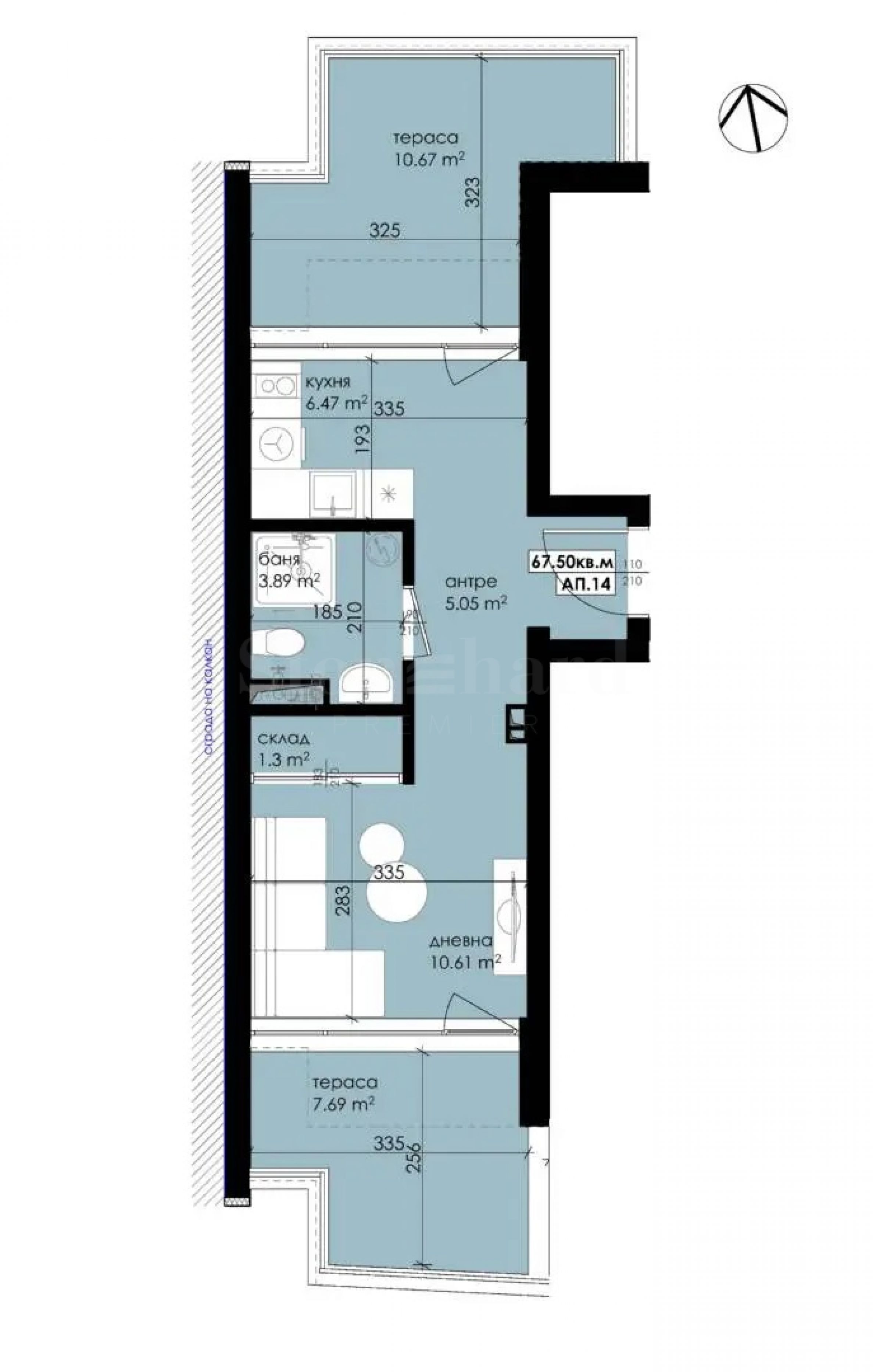
Жилые районы: 67.50 м 2
Типы объектов недвижимости в здании/комплексе: Квартиры-студии
Ссылка. Число: LXH-135863 / 4300
Расположение: Созополь
Тип здания/комплекса: Жилой
Класс здания/комплекса:
Жилые районы: 67.50 м 2
Типы объектов недвижимости в здании/комплексе: Квартиры-студии
В РАЗРАБОТКЕ.
Ожидаемый акт 16 — декабрь 2026 г.
Покупка без комиссии!
Квартира общей площадью 67,50 кв. метров. расположена на последнем, четвёртом этаже, с окнами на север/юг. Планировка включает прихожую, кладовую, гостиную, кухню, ванную комнату с туалетом и две террасы. Квартира предлагается в следующей степени готовности согласно BDS:
входные бронированные двери;
EL: розетки, без осветительных приборов;
Сантехника: к розетке;
Стены: Внутренняя штукатурка;
пол: цементная стяжка;
потолки: шпатлевка. Качественное строительство:
фасад: пакет теплоизоляции EPS фирмы Baumit;
окна: ПВХ 5-камерные;
Террасы: гранитная плитка для использования на открытом воздухе. Все террасы на крыше будут покрыты экструдированным пенополистиролом и гидроизолированы. Перила из алюминиевого профиля.
крыши: плоские с XPS, пароизоляцией, стяжкой и двумя слоями гидроизоляции;
общие зоны: гранитная лестница, алюминиевые перила;
входные двери;
EL: под ключ;
Сантехника: к розетке;
внутренняя облицовка гипсовой штукатуркой;
пол: выравнивающая цементная стяжка. Плата за обслуживание не взимается.
Здание расположено на 4 уровнях с просторными студиями и однокомнатными квартирами площадью от 43,54 кв. м до 117,30 кв. м. Из окон квартир на верхних этажах открывается панорамный вид на город, море и окружающую зелень.
В здании имеется бесплатный гараж на первом этаже стоимостью 30 000 евро (58 674 лева).
В подвале есть 2 бесплатных парковочных места PM3 и PM7 за 13 000 евро (25 426 левов).
Мы с нетерпением ждем вашего запроса.
Если вы хотите договориться о просмотре интересующего вас объекта недвижимости или посетить один из наших офисов, пожалуйста, свяжитесь с нами. Чтобы договориться о встрече или просмотре, позвоните по указанному в объявлении номеру телефона или отправьте запрос по электронной почте. Наш консультант свяжется с вами по всем необходимым вопросам и подберет удобное для вас время.
Вы ищете подходящую для себя недвижимость?
Не стесняйтесь обращаться к нам и рассказать о своих потребностях и предпочтениях. Наша команда проведёт тщательное исследование рынка, чтобы предложить вам недвижимость, которая точно соответствует вашим критериям. У нас есть исключительное портфолио высококачественных и эксклюзивных домов, доступных только нашим клиентам. Чтобы первыми получать информацию о них, свяжитесь с нами.
Дополнительные услуги
Став нашим ценным клиентом, вы получите право пользоваться услугами нашей опытной юридической команды совершенно бесплатно. Кроме того, мы предлагаем комплексные решения, включая страхование имущества, бесплатные финансовые консультации и выгодные условия финансирования. Мы также предлагаем услуги по перепродаже, аренде и управлению недвижимостью. Мы осуществляем высококачественный ремонт и меблировку через специализированные компании, входящие в нашу группу компаний и являющиеся нашими давними профессиональными партнерами.
Смотр недвижимости
Мы готовы организовать смотр недвижимости в удобное для вас время. Обратитесь к ответственному менеджеру по продажам и проинформируйте его, когда бы Вы хотели приехать на смотровой тур. Мы можем помочь Вам забронировать авиабилет и отель, а также помочь Вам оформить визу и необходимую страховку.
Бронирование недвижимости
Вы можете забронировать недвижимость, заплатив невозмещаемый задаток в размере 2 000 евро наличным платежом, кредитной картой или банковским переводом на фирменный счет компании. После получения задатка недвижимость бронируется, осмотры с другими потенциальными покупателями производиться не будут, и начнется изготовление необходимых документов по оформлению сделки. Пожалуйста, обратитесь к ответственному за данный объект менеджеру по продажам для получения подробной информации относительно процедуры покупки и способов оплаты.
Послепродажное обслуживание
Мы уважаемая компания, за плечами которой многолетний опыт работы в сфере недвижимости. Мы будем сопровождать Вас не только во время покупки, но и после приобретения недвижимости, обеспечивая Вам дополнительный набор услуг с учетом Ваших требовании, для того, чтобы Вы могли насладиться полноценным и спокойным времяпровождением в Болгарии. Услуги, которые мы можем предложить, включают страхование, строительство и ремонт, услуги по меблировке, бухгалтерские и юридическиe услуги, переоформление договоров на электричество, воду, телефон и многое другое.
Расположение на карте
ПРОДАЖА
ПРОЕКТ
Двухкомнатная квартира в нескольких минутах от Царского залива, недалеко от города Созополь
Созополь / Бургас / Болгария карта
Область: 42 м 2
Цена: 72 000 € /// 1 714 €/м 2
ПРОДАЖА
ПРОЕКТ
Двухкомнатная квартира в закрытом курортном поселке в Созополе
Созополь / Бургас / Болгария карта
Область: 53 м 2
Цена: 92 000 € /// 1 736 €/м 2
ПРОДАЖА
ПРОЕКТ
Новая студия с частным двором в элегантном здании в 150 м от пляжа в Созополе.
Созополь / Бургас / Болгария карта
Класс здания/комплекса: Стандарт
Область: 47.06 м 2
Цена: 72 000 € /// 1 530 €/м 2
Выберите эту опцию, и мы уведомим вас по электронной почте в случае каких-либо изменений в статусе предложения, например:
• Изменение цены;
• Объект недвижимости попал в рекламное предложение;
• Имущество зарезервировано или продано;
• Другие новости, связанные с недвижимостью.
• Имущество снимается с продажи;
Вы можете легко отписаться от уведомлений в любое время.• Изменения условий предложения;
• Изменение размера инвестиций;
• Объект инвестиции полностью реализован;
• Срок действия предложения истек.
Вы сможете легко отказаться от подписки, если в будущем решите, что больше не хотите следовать этому предложению.
Для получения абсолютно корректной информации о свободных объектах недвижимости, выставленных на продажу в проекте, и их актуальных ценах, пожалуйста, свяжитесь с нашим офисом по указанным контактам.
Мы прилагаем все усилия, чтобы наши прайс-листы были абсолютно актуальными и правильными, но зачастую это невозможно, учитывая большое количество новых проектов в нашем каталоге и высокую динамику продаж.
Благодарим за понимание!



...Как проверенный специалист, Stonehard PREMIER работает над позиционированием на рынке и продажами многочисленных новых строительных проектов, реализацию которых нам доверили ведущие предпринимательские компании в Болгарии и за рубежом...