Ссылка. Число: LXH-135557 / 4829
Расположение: Хоризонт / Бургас карта
Тип здания/комплекса: Жилой
Жилые районы: 101.71 м 2
Типы объектов недвижимости в здании/комплексе: Трёхкомнатные квартиры
Ссылка. Число: LXH-135557
Расположение: Хоризонт / Бургас
Тип здания/комплекса: Жилищен
Класс здания/комплекса:
Жилые районы: 101.71 м 2
Типы объектов недвижимости в здании/комплексе: Трёхкомнатные квартиры
Расположение
Расположение комплекса удобно и стратегически выгодно: в самой привлекательной части новостроящегося района «Горизонт», в непосредственной близости от торговых центров Mall Grand Plaza, Lidl, Kaufland и Decathlon. В непосредственной близости от здания будет остановка городского автобуса.
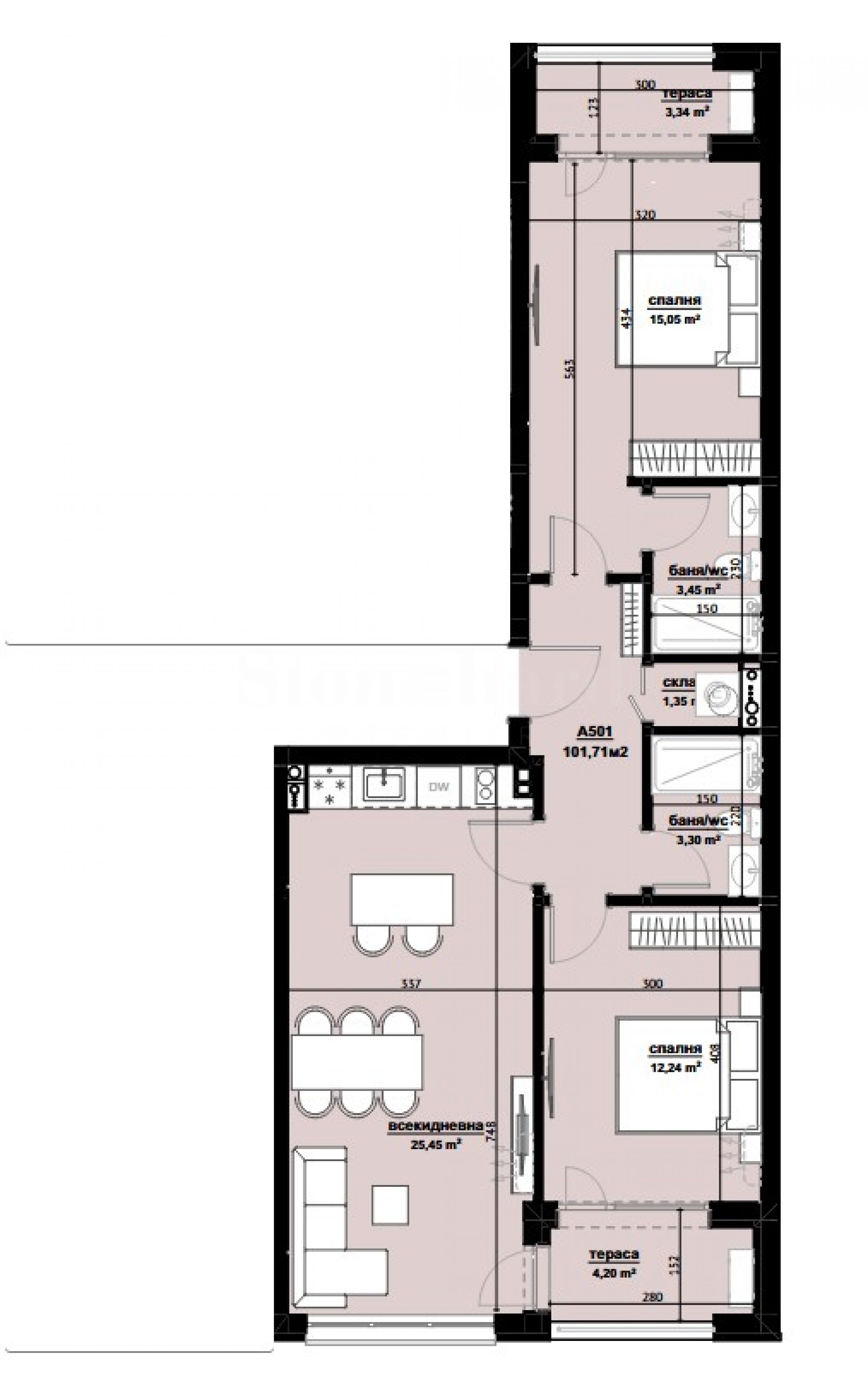
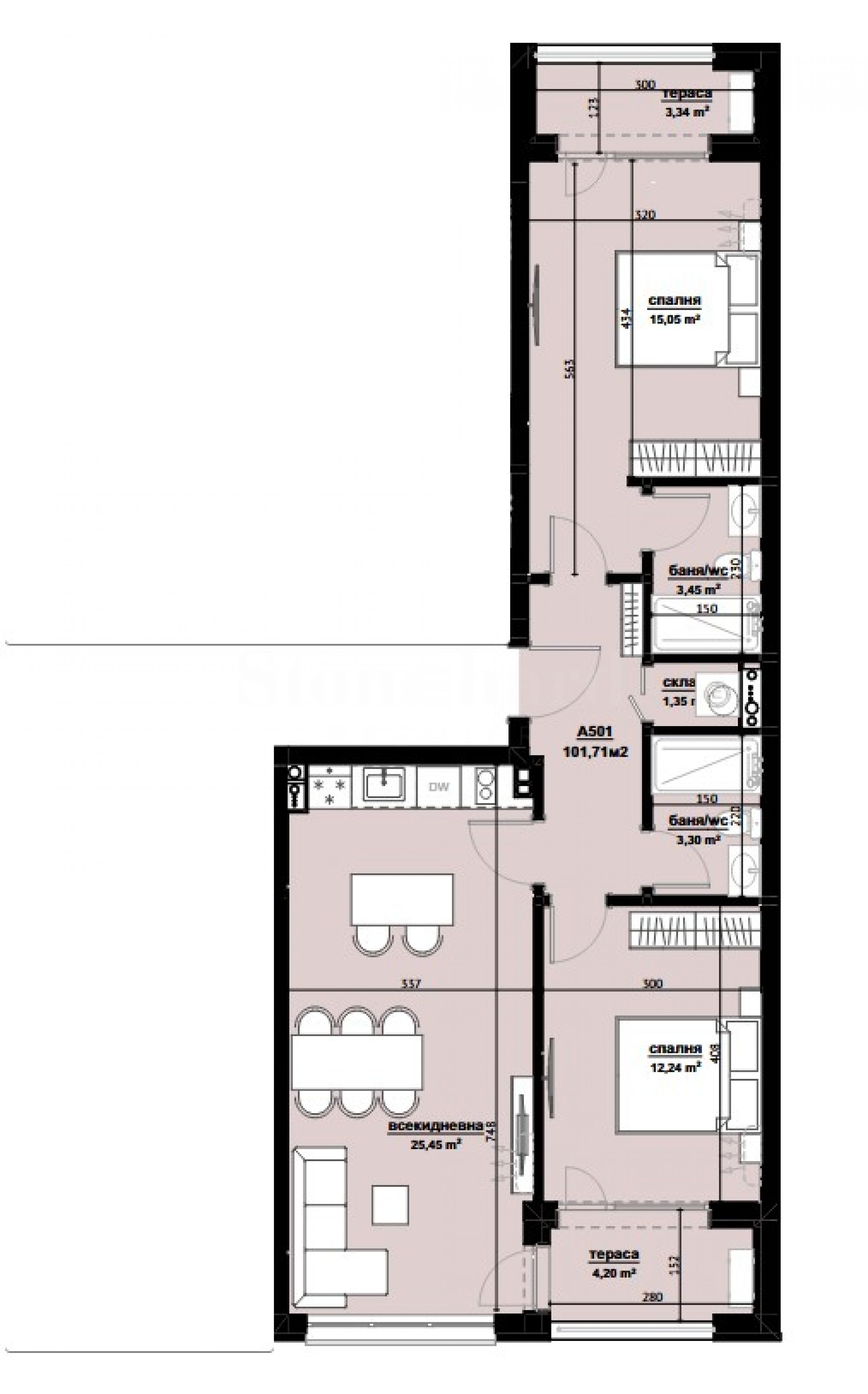
Квартира общей площадью 101,71 кв. м расположена на 5 этаже, окна выходят на восток и запад. В квартире: прихожая/коридор, гостиная с кухней, две спальни, две ванные комнаты с туалетом, кладовая и две террасы.
Квартира предлагается с отделкой в соответствии с Болгарским гражданским кодексом:
• полы – цементная стяжка;
• террасы - гранитная плитка;
• общие части здания: гранит и/или гранитная плитка;
• наружные стены с утеплением, согласно Энергетической эффективности проекта;
• внутренние стены – гипсовая штукатурка машинного нанесения;
• общие части здания - стены оштукатурены гипсовой машинной штукатуркой и окрашены;
• потолки - бетонная плита с каркасом из гипсокартона;
• пятикамерные ПВХ-окна со стеклопакетами толщиной 32 мм, наружным стеклом с высокой энергосберегающей способностью толщиной 4 мм, двухосевыми механизмами открывания;
• входные двери – металлические бронированные;
• Водопровод и канализация - трубопроводная сеть по утвержденному проекту, подключенная к городской водопроводной и канализационной сети;
• электропроводка – полностью выполнена с выводами для светильников, выключателями и розетками;
• лифты – завершенная строительная часть и смонтированная механическая и электрическая часть с проведением необходимых испытаний согласно проекту;
• монтаж шахт и дымоходов, молниезащиты - по утвержденному проекту.
Особенности 5-го этапа:
• Планируемое начало строительных работ – 12.2025 г. Срок завершения – через 30 месяцев.
• Он состоит из двух девятиэтажных секций — А и Б, каждая из которых имеет отдельный вход.
• Проектирование с вниманием к деталям и функциональной планировкой, отвечающей современному образу жизни.
• Общее количество квартир — 223, с различными типами и планировками — двухкомнатные и трехкомнатные, спроектированные для комфорта и простора.
• Квартиры предлагаются с отделкой, соответствующей болгарским строительным нормам, что дает будущим владельцам возможность выбрать интерьер по своему вкусу.
• Отсутствие платы за обслуживание.
Стоянка:
• 31 гараж;
• 52 крытых парковочных места в подземном паркинге с удобным въездом по пандусу;
• 142 открытых парковочных места, расположенных вокруг зданий.
Удобства в здании 5:
• Детская игровая площадка и многофункциональная спортивная площадка;
• Зона для занятий фитнесом на открытом воздухе;
• Богато благоустроенные зоны отдыха.
*Жильцы корпуса 5 смогут воспользоваться роскошными дополнительными услугами по соседству, в корпусе 4 – рестораном, современным тренажерным залом, бизнес-центром и большим СПА-центром с крытым бассейном, джакузи, термальной зоной, а также комнатами релаксации и массажа.
Преимущества нового района
На данный момент это наиболее активно развивающийся район, который обещает конкурировать с другими частями Бургаса, имея ряд преимуществ:
• быстрый и легкий доступ к основным дорогам;
• совершенно новая инфраструктура;
• высокий уровень комфорта для жителей;
• больше зеленых насаждений и более здоровая среда обитания;
• наличие крупных торговых предприятий в непосредственной близости;
• всего в нескольких метрах отсюда планируется реализация проекта муниципалитета Бургаса по созданию инновационного студенческого и научного городка.
Мы с нетерпением ждем вашего запроса.
Если вы хотите договориться о просмотре интересующего вас объекта недвижимости или посетить один из наших офисов, пожалуйста, свяжитесь с нами. Чтобы договориться о встрече или просмотре, позвоните по указанному в объявлении номеру телефона или отправьте запрос по электронной почте. Наш консультант свяжется с вами по всем необходимым вопросам и подберет удобное для вас время.
Вы ищете подходящую для себя недвижимость?
Не стесняйтесь обращаться к нам и рассказать о своих потребностях и предпочтениях. Наша команда проведёт тщательное исследование рынка, чтобы предложить вам недвижимость, которая точно соответствует вашим критериям. У нас есть исключительное портфолио высококачественных и эксклюзивных домов, доступных только нашим клиентам. Чтобы первыми получать информацию о них, свяжитесь с нами.
Дополнительные услуги
Став нашим ценным клиентом, вы получите право пользоваться услугами нашей опытной юридической команды совершенно бесплатно. Кроме того, мы предлагаем комплексные решения, включая страхование имущества, бесплатные финансовые консультации и выгодные условия финансирования. Мы также предлагаем услуги по перепродаже, аренде и управлению недвижимостью. Мы осуществляем высококачественный ремонт и меблировку через специализированные компании, входящие в нашу группу компаний и являющиеся нашими давними профессиональными партнерами.
Смотр недвижимости
Мы готовы организовать смотр недвижимости в удобное для вас время. Обратитесь к ответственному менеджеру по продажам и проинформируйте его, когда бы Вы хотели приехать на смотровой тур. Мы можем помочь Вам забронировать авиабилет и отель, а также помочь Вам оформить визу и необходимую страховку.
Бронирование недвижимости
Вы можете забронировать недвижимость, заплатив невозмещаемый задаток в размере 2 000 евро наличным платежом, кредитной картой или банковским переводом на фирменный счет компании. После получения задатка недвижимость бронируется, осмотры с другими потенциальными покупателями производиться не будут, и начнется изготовление необходимых документов по оформлению сделки. Пожалуйста, обратитесь к ответственному за данный объект менеджеру по продажам для получения подробной информации относительно процедуры покупки и способов оплаты.
Послепродажное обслуживание
Мы уважаемая компания, за плечами которой многолетний опыт работы в сфере недвижимости. Мы будем сопровождать Вас не только во время покупки, но и после приобретения недвижимости, обеспечивая Вам дополнительный набор услуг с учетом Ваших требовании, для того, чтобы Вы могли насладиться полноценным и спокойным времяпровождением в Болгарии. Услуги, которые мы можем предложить, включают страхование, строительство и ремонт, услуги по меблировке, бухгалтерские и юридическиe услуги, переоформление договоров на электричество, воду, телефон и многое другое.
Расположение на карте
Расположение
Расположение комплекса удобно и стратегически выгодно: в самой привлекательной части новостроящегося района «Горизонт», в непосредственной близости от торговых центров Mall Grand Plaza, Lidl, Kaufland и Decathlon. В непосредственной близости от здания будет остановка городского автобуса.
Квартира общей площадью 101,71 кв. м расположена на 5 этаже, окна выходят на восток и запад. В квартире: прихожая/коридор, гостиная с кухней, две спальни, две ванные комнаты с туалетом, кладовая и две террасы.
Квартира предлагается с отделкой в соответствии с Болгарским гражданским кодексом:
• полы – цементная стяжка;
• террасы - гранитная плитка;
• общие части здания: гранит и/или гранитная плитка;
• наружные стены с утеплением, согласно Энергетической эффективности проекта;
• внутренние стены – гипсовая штукатурка машинного нанесения;
• общие части здания - стены оштукатурены гипсовой машинной штукатуркой и окрашены;
• потолки - бетонная плита с каркасом из гипсокартона;
• пятикамерные ПВХ-окна со стеклопакетами толщиной 32 мм, наружным стеклом с высокой энергосберегающей способностью толщиной 4 мм, двухосевыми механизмами открывания;
• входные двери – металлические бронированные;
• Водопровод и канализация - трубопроводная сеть по утвержденному проекту, подключенная к городской водопроводной и канализационной сети;
• электропроводка – полностью выполнена с выводами для светильников, выключателями и розетками;
• лифты – завершенная строительная часть и смонтированная механическая и электрическая часть с проведением необходимых испытаний согласно проекту;
• монтаж шахт и дымоходов, молниезащиты - по утвержденному проекту.
Особенности 5-го этапа:
• Планируемое начало строительных работ – 12.2025 г. Срок завершения – через 30 месяцев.
• Он состоит из двух девятиэтажных секций — А и Б, каждая из которых имеет отдельный вход.
• Проектирование с вниманием к деталям и функциональной планировкой, отвечающей современному образу жизни.
• Общее количество квартир — 223, с различными типами и планировками — двухкомнатные и трехкомнатные, спроектированные для комфорта и простора.
• Квартиры предлагаются с отделкой, соответствующей болгарским строительным нормам, что дает будущим владельцам возможность выбрать интерьер по своему вкусу.
• Отсутствие платы за обслуживание.
Стоянка:
• 31 гараж;
• 52 крытых парковочных места в подземном паркинге с удобным въездом по пандусу;
• 142 открытых парковочных места, расположенных вокруг зданий.
Удобства в здании 5:
• Детская игровая площадка и многофункциональная спортивная площадка;
• Зона для занятий фитнесом на открытом воздухе;
• Богато благоустроенные зоны отдыха.
*Жильцы корпуса 5 смогут воспользоваться роскошными дополнительными услугами по соседству, в корпусе 4 – рестораном, современным тренажерным залом, бизнес-центром и большим СПА-центром с крытым бассейном, джакузи, термальной зоной, а также комнатами релаксации и массажа.
Преимущества нового района
На данный момент это наиболее активно развивающийся район, который обещает конкурировать с другими частями Бургаса, имея ряд преимуществ:
• быстрый и легкий доступ к основным дорогам;
• совершенно новая инфраструктура;
• высокий уровень комфорта для жителей;
• больше зеленых насаждений и более здоровая среда обитания;
• наличие крупных торговых предприятий в непосредственной близости;
• всего в нескольких метрах отсюда планируется реализация проекта муниципалитета Бургаса по созданию инновационного студенческого и научного городка.
Мы с нетерпением ждем вашего запроса.
Если вы хотите договориться о просмотре интересующего вас объекта недвижимости или посетить один из наших офисов, пожалуйста, свяжитесь с нами. Чтобы договориться о встрече или просмотре, позвоните по указанному в объявлении номеру телефона или отправьте запрос по электронной почте. Наш консультант свяжется с вами по всем необходимым вопросам и подберет удобное для вас время.
Вы ищете подходящую для себя недвижимость?
Не стесняйтесь обращаться к нам и рассказать о своих потребностях и предпочтениях. Наша команда проведёт тщательное исследование рынка, чтобы предложить вам недвижимость, которая точно соответствует вашим критериям. У нас есть исключительное портфолио высококачественных и эксклюзивных домов, доступных только нашим клиентам. Чтобы первыми получать информацию о них, свяжитесь с нами.
Дополнительные услуги
Став нашим ценным клиентом, вы получите право пользоваться услугами нашей опытной юридической команды совершенно бесплатно. Кроме того, мы предлагаем комплексные решения, включая страхование имущества, бесплатные финансовые консультации и выгодные условия финансирования. Мы также предлагаем услуги по перепродаже, аренде и управлению недвижимостью. Мы осуществляем высококачественный ремонт и меблировку через специализированные компании, входящие в нашу группу компаний и являющиеся нашими давними профессиональными партнерами.
Смотр недвижимости
Мы готовы организовать смотр недвижимости в удобное для вас время. Обратитесь к ответственному менеджеру по продажам и проинформируйте его, когда бы Вы хотели приехать на смотровой тур. Мы можем помочь Вам забронировать авиабилет и отель, а также помочь Вам оформить визу и необходимую страховку.
Бронирование недвижимости
Вы можете забронировать недвижимость, заплатив невозмещаемый задаток в размере 2 000 евро наличным платежом, кредитной картой или банковским переводом на фирменный счет компании. После получения задатка недвижимость бронируется, осмотры с другими потенциальными покупателями производиться не будут, и начнется изготовление необходимых документов по оформлению сделки. Пожалуйста, обратитесь к ответственному за данный объект менеджеру по продажам для получения подробной информации относительно процедуры покупки и способов оплаты.
Послепродажное обслуживание
Мы уважаемая компания, за плечами которой многолетний опыт работы в сфере недвижимости. Мы будем сопровождать Вас не только во время покупки, но и после приобретения недвижимости, обеспечивая Вам дополнительный набор услуг с учетом Ваших требовании, для того, чтобы Вы могли насладиться полноценным и спокойным времяпровождением в Болгарии. Услуги, которые мы можем предложить, включают страхование, строительство и ремонт, услуги по меблировке, бухгалтерские и юридическиe услуги, переоформление договоров на электричество, воду, телефон и многое другое.
Расположение
Расположение комплекса удобно и стратегически выгодно: в самой привлекательной части новостроящегося района «Горизонт», в непосредственной близости от торговых центров Mall Grand Plaza, Lidl, Kaufland и Decathlon. В непосредственной близости от здания будет остановка городского автобуса.
Квартира общей площадью 101,71 кв. м расположена на 5 этаже, окна выходят на восток и запад. В квартире: прихожая/коридор, гостиная с кухней, две спальни, две ванные комнаты с туалетом, кладовая и две террасы.
Квартира предлагается с отделкой в соответствии с Болгарским гражданским кодексом:
• полы – цементная стяжка;
• террасы - гранитная плитка;
• общие части здания: гранит и/или гранитная плитка;
• наружные стены с утеплением, согласно Энергетической эффективности проекта;
• внутренние стены – гипсовая штукатурка машинного нанесения;
• общие части здания - стены оштукатурены гипсовой машинной штукатуркой и окрашены;
• потолки - бетонная плита с каркасом из гипсокартона;
• пятикамерные ПВХ-окна со стеклопакетами толщиной 32 мм, наружным стеклом с высокой энергосберегающей способностью толщиной 4 мм, двухосевыми механизмами открывания;
• входные двери – металлические бронированные;
• Водопровод и канализация - трубопроводная сеть по утвержденному проекту, подключенная к городской водопроводной и канализационной сети;
• электропроводка – полностью выполнена с выводами для светильников, выключателями и розетками;
• лифты – завершенная строительная часть и смонтированная механическая и электрическая часть с проведением необходимых испытаний согласно проекту;
• монтаж шахт и дымоходов, молниезащиты - по утвержденному проекту.
Особенности 5-го этапа:
• Планируемое начало строительных работ – 12.2025 г. Срок завершения – через 30 месяцев.
• Он состоит из двух девятиэтажных секций — А и Б, каждая из которых имеет отдельный вход.
• Проектирование с вниманием к деталям и функциональной планировкой, отвечающей современному образу жизни.
• Общее количество квартир — 223, с различными типами и планировками — двухкомнатные и трехкомнатные, спроектированные для комфорта и простора.
• Квартиры предлагаются с отделкой, соответствующей болгарским строительным нормам, что дает будущим владельцам возможность выбрать интерьер по своему вкусу.
• Отсутствие платы за обслуживание.
Стоянка:
• 31 гараж;
• 52 крытых парковочных места в подземном паркинге с удобным въездом по пандусу;
• 142 открытых парковочных места, расположенных вокруг зданий.
Удобства в здании 5:
• Детская игровая площадка и многофункциональная спортивная площадка;
• Зона для занятий фитнесом на открытом воздухе;
• Богато благоустроенные зоны отдыха.
*Жильцы корпуса 5 смогут воспользоваться роскошными дополнительными услугами по соседству, в корпусе 4 – рестораном, современным тренажерным залом, бизнес-центром и большим СПА-центром с крытым бассейном, джакузи, термальной зоной, а также комнатами релаксации и массажа.
Преимущества нового района
На данный момент это наиболее активно развивающийся район, который обещает конкурировать с другими частями Бургаса, имея ряд преимуществ:
• быстрый и легкий доступ к основным дорогам;
• совершенно новая инфраструктура;
• высокий уровень комфорта для жителей;
• больше зеленых насаждений и более здоровая среда обитания;
• наличие крупных торговых предприятий в непосредственной близости;
• всего в нескольких метрах отсюда планируется реализация проекта муниципалитета Бургаса по созданию инновационного студенческого и научного городка.
Мы с нетерпением ждем вашего запроса.
Если вы хотите договориться о просмотре интересующего вас объекта недвижимости или посетить один из наших офисов, пожалуйста, свяжитесь с нами. Чтобы договориться о встрече или просмотре, позвоните по указанному в объявлении номеру телефона или отправьте запрос по электронной почте. Наш консультант свяжется с вами по всем необходимым вопросам и подберет удобное для вас время.
Вы ищете подходящую для себя недвижимость?
Не стесняйтесь обращаться к нам и рассказать о своих потребностях и предпочтениях. Наша команда проведёт тщательное исследование рынка, чтобы предложить вам недвижимость, которая точно соответствует вашим критериям. У нас есть исключительное портфолио высококачественных и эксклюзивных домов, доступных только нашим клиентам. Чтобы первыми получать информацию о них, свяжитесь с нами.
Дополнительные услуги
Став нашим ценным клиентом, вы получите право пользоваться услугами нашей опытной юридической команды совершенно бесплатно. Кроме того, мы предлагаем комплексные решения, включая страхование имущества, бесплатные финансовые консультации и выгодные условия финансирования. Мы также предлагаем услуги по перепродаже, аренде и управлению недвижимостью. Мы осуществляем высококачественный ремонт и меблировку через специализированные компании, входящие в нашу группу компаний и являющиеся нашими давними профессиональными партнерами.
Смотр недвижимости
Мы готовы организовать смотр недвижимости в удобное для вас время. Обратитесь к ответственному менеджеру по продажам и проинформируйте его, когда бы Вы хотели приехать на смотровой тур. Мы можем помочь Вам забронировать авиабилет и отель, а также помочь Вам оформить визу и необходимую страховку.
Бронирование недвижимости
Вы можете забронировать недвижимость, заплатив невозмещаемый задаток в размере 2 000 евро наличным платежом, кредитной картой или банковским переводом на фирменный счет компании. После получения задатка недвижимость бронируется, осмотры с другими потенциальными покупателями производиться не будут, и начнется изготовление необходимых документов по оформлению сделки. Пожалуйста, обратитесь к ответственному за данный объект менеджеру по продажам для получения подробной информации относительно процедуры покупки и способов оплаты.
Послепродажное обслуживание
Мы уважаемая компания, за плечами которой многолетний опыт работы в сфере недвижимости. Мы будем сопровождать Вас не только во время покупки, но и после приобретения недвижимости, обеспечивая Вам дополнительный набор услуг с учетом Ваших требовании, для того, чтобы Вы могли насладиться полноценным и спокойным времяпровождением в Болгарии. Услуги, которые мы можем предложить, включают страхование, строительство и ремонт, услуги по меблировке, бухгалтерские и юридическиe услуги, переоформление договоров на электричество, воду, телефон и многое другое.
Квартиры в новом, 5-м здании современного комплекса рядом с торговым центром «Бургас Плаза»
Хоризонт / Бургас / Бургас / Болгария карта
Цены на недвижимость: 90 000 - 207 000 €
Цены за м²: 1 390 - 1 580 €/м 2
Квартиры в новом комплексе с современным дизайном в районе «Славейков», Бургас
Славейков / Бургас / Бургас / Болгария карта
Цены на недвижимость: Цена по запросу
Квартиры в новом, современном закрытом жилом комплексе в районе «Горизонт»
Хоризонт / Бургас / Бургас / Болгария карта
Цены на недвижимость: 93 308 - 219 303 €
Цены за м²: 1 239 - 1 358 €/м 2
Выберите эту опцию, и мы уведомим вас по электронной почте в случае каких-либо изменений в статусе предложения, например:
• Изменение цены;
• Объект недвижимости попал в рекламное предложение;
• Имущество зарезервировано или продано;
• Другие новости, связанные с недвижимостью.
• Имущество снимается с продажи;
Вы можете легко отписаться от уведомлений в любое время.• Изменения условий предложения;
• Изменение размера инвестиций;
• Объект инвестиции полностью реализован;
• Срок действия предложения истек.
Вы сможете легко отказаться от подписки, если в будущем решите, что больше не хотите следовать этому предложению.



...Как проверенный специалист, Stonehard PREMIER работает над позиционированием на рынке и продажами многочисленных новых строительных проектов, реализацию которых нам доверили ведущие предпринимательские компании в Болгарии и за рубежом...