Ссылка. Число: VAR-135433 / 4818
Расположение: Бяла (Варна) карта
Тип здания/комплекса: Жилой
Жилые районы: 38.10 м 2
Типы объектов недвижимости в здании/комплексе: Квартиры-студии
Ссылка. Число: VAR-135433
Расположение: Бяла (Варна)
Тип здания/комплекса: Жилищен
Класс здания/комплекса:
Жилые районы: 38.10 м 2
Типы объектов недвижимости в здании/комплексе: Квартиры-студии
Этапы строительства:
• с Актом 14;
• Акт 16 до июня 2028 г.
Комплекс расположен на участке площадью 4928 кв.м, состоит из 4 зданий и спроектирован таким образом, чтобы из всех квартир открывался прекрасный вид на море. Функционально спланированные квартиры включают студии, однокомнатные и трёхкомнатные квартиры с просторными панорамными террасами.
Параметры недвижимости
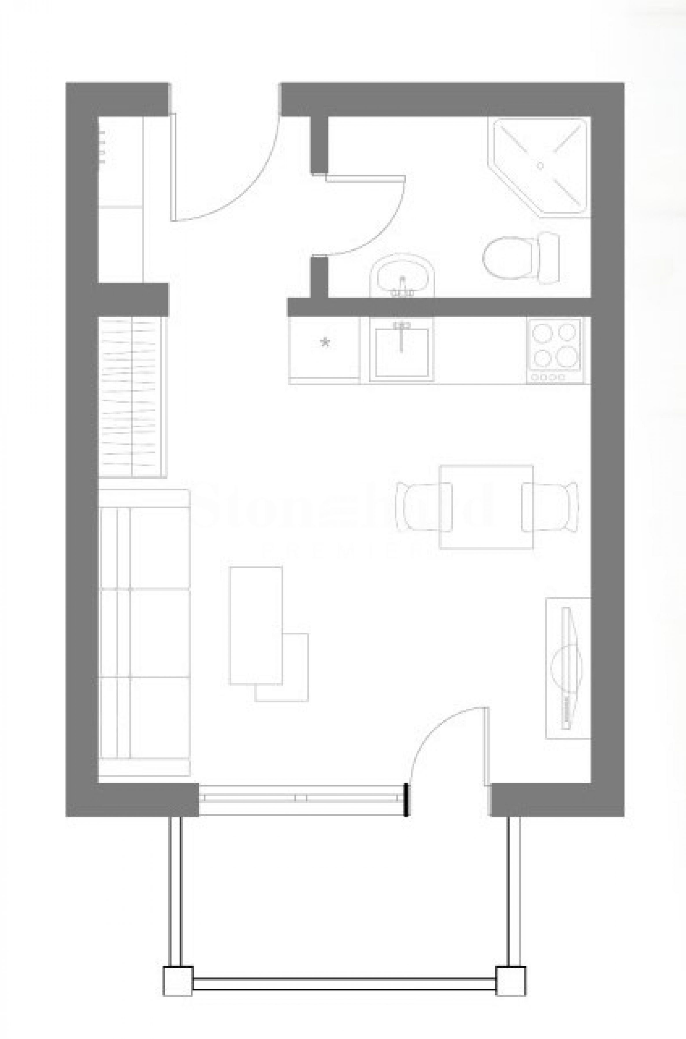
Квартира общей площадью 38,10 кв.м расположена на 2 этаже из 5.
Квартиры сдаются в аренду в готовом виде:
• ванная комната с туалетом - пол - керамогранит, стены - фаянс, сантехника, бойлер;
• прихожая - пол - керамогранит, стены - шпатлевка, штукатурка, краска;
• кухня - пол - керамогранит, стены - шпатлевка, штукатурка, краска;
• гостиная и спальни - пол - ламинат, стены - шпатлевка, штукатурка, краска;
• терраса - пол - гранитная плитка;
• двери - МДФ;
• окна - ПВХ;
• установлена система домофонной связи;
• скрытая проводка для оптоволоконного интернета и телевидения.
Качество и энергоэффективность
При строительстве зданий используются качественные строительные материалы и современные технологии, которые обеспечивают высокую энергоэффективность, хороший теплообмен и значительную экономию затрат на содержание здания.
Общая концепция направлена на спокойный и здоровый образ жизни и отдыха, отвечая ожиданиям по хорошему уровню, безопасности, комфорту, зелени и близлежащей инфраструктуре.
Места общего пользования
Функциональная организация пространства в небольших общественных зонах, отделанных плиткой.
Удобства в комплексе:
• открытый бассейн;
• зона отдыха;
• парковка осуществляется на широкой и удобной открытой парковке;
• озеленение – особое внимание уделено парковой среде, пространства вокруг зданий богато озеленены и оснащены регулируемым парковым освещением;
• контроль и безопасность доступа - чиповая система доступа на территорию комплекса и в здание, круглосуточное видеонаблюдение и видеофиксация въездов и подъездов к комплексу.
Расположение:
• 400 м от футбольного поля, спортивных площадок и фитнес-центра;
• 800 м от центра города;
• 900 м от Т-маркета;
• 900 м от медицинского центра;
• 1 км от автовокзала;
• 50 км от Варны и 67 км от Бургаса.
Проект реализуется авторитетной строительно-инвестиционной компанией — лауреатом специальной премии национального конкурса «Здание года Болгария 2021» в категории жилых зданий общей площадью более 10 000 кв.м, имеющей 15-летний опыт работы.
Стандартные три гибких плана оплаты:
• План А (стандартный) – первоначальный взнос – 30% от стоимости недвижимости;
• План Б – первоначальный взнос – 50%, со скидкой 3% от окончательной цены;
• План C – первоначальный взнос – 90%, со скидкой 5% от окончательной цены.
Для получения более подробной информации обратитесь к брокеру, ответственному за предложение.
Смотр недвижимости
Мы готовы организовать смотр недвижимости в удобное для вас время. Обратитесь к ответственному менеджеру по продажам и проинформируйте его, когда бы Вы хотели приехать на смотровой тур. Мы можем помочь Вам забронировать авиабилет и отель, а также помочь Вам оформить визу и необходимую страховку.
Бронирование недвижимости
Вы можете забронировать недвижимость, заплатив невозмещаемый задаток в размере 2 000 евро наличным платежом, кредитной картой или банковским переводом на фирменный счет компании. После получения задатка недвижимость бронируется, осмотры с другими потенциальными покупателями производиться не будут, и начнется изготовление необходимых документов по оформлению сделки. Пожалуйста, обратитесь к ответственному за данный объект менеджеру по продажам для получения подробной информации относительно процедуры покупки и способов оплаты.
Послепродажное обслуживание
Мы ответственная компания, за плечами которой многолетний опыт работы в сфере недвижимости. Мы будем сопровождать Вас не только во время покупки, но и после приобретения недвижимости, обеспечивая Вам дополнительный набор услуг с учетом Ваших требовании, для того, чтобы Вы могли насладиться полноценным и спокойным времяпровождением в Болгарии. Услуги, которые мы можем предложить, включают страхование, строительство и ремонт, услуги по меблировке, бухгалтерские и юридическиe услуги, переоформление договоров на электричество, воду, телефон и многое другое.
Расположение на карте
Этапы строительства:
• с Актом 14;
• Акт 16 до июня 2028 г.
Комплекс расположен на участке площадью 4928 кв.м, состоит из 4 зданий и спроектирован таким образом, чтобы из всех квартир открывался прекрасный вид на море. Функционально спланированные квартиры включают студии, однокомнатные и трёхкомнатные квартиры с просторными панорамными террасами.
Параметры недвижимости
Квартира общей площадью 38,10 кв.м расположена на 2 этаже из 5.
Квартиры сдаются в аренду в готовом виде:
• ванная комната с туалетом - пол - керамогранит, стены - фаянс, сантехника, бойлер;
• прихожая - пол - керамогранит, стены - шпатлевка, штукатурка, краска;
• кухня - пол - керамогранит, стены - шпатлевка, штукатурка, краска;
• гостиная и спальни - пол - ламинат, стены - шпатлевка, штукатурка, краска;
• терраса - пол - гранитная плитка;
• двери - МДФ;
• окна - ПВХ;
• установлена система домофонной связи;
• скрытая проводка для оптоволоконного интернета и телевидения.
Качество и энергоэффективность
При строительстве зданий используются качественные строительные материалы и современные технологии, которые обеспечивают высокую энергоэффективность, хороший теплообмен и значительную экономию затрат на содержание здания.
Общая концепция направлена на спокойный и здоровый образ жизни и отдыха, отвечая ожиданиям по хорошему уровню, безопасности, комфорту, зелени и близлежащей инфраструктуре.
Места общего пользования
Функциональная организация пространства в небольших общественных зонах, отделанных плиткой.
Удобства в комплексе:
• открытый бассейн;
• зона отдыха;
• парковка осуществляется на широкой и удобной открытой парковке;
• озеленение – особое внимание уделено парковой среде, пространства вокруг зданий богато озеленены и оснащены регулируемым парковым освещением;
• контроль и безопасность доступа - чиповая система доступа на территорию комплекса и в здание, круглосуточное видеонаблюдение и видеофиксация въездов и подъездов к комплексу.
Расположение:
• 400 м от футбольного поля, спортивных площадок и фитнес-центра;
• 800 м от центра города;
• 900 м от Т-маркета;
• 900 м от медицинского центра;
• 1 км от автовокзала;
• 50 км от Варны и 67 км от Бургаса.
Проект реализуется авторитетной строительно-инвестиционной компанией — лауреатом специальной премии национального конкурса «Здание года Болгария 2021» в категории жилых зданий общей площадью более 10 000 кв.м, имеющей 15-летний опыт работы.
Стандартные три гибких плана оплаты:
• План А (стандартный) – первоначальный взнос – 30% от стоимости недвижимости;
• План Б – первоначальный взнос – 50%, со скидкой 3% от окончательной цены;
• План C – первоначальный взнос – 90%, со скидкой 5% от окончательной цены.
Для получения более подробной информации обратитесь к брокеру, ответственному за предложение.
Смотр недвижимости
Мы готовы организовать смотр недвижимости в удобное для вас время. Обратитесь к ответственному менеджеру по продажам и проинформируйте его, когда бы Вы хотели приехать на смотровой тур. Мы можем помочь Вам забронировать авиабилет и отель, а также помочь Вам оформить визу и необходимую страховку.
Бронирование недвижимости
Вы можете забронировать недвижимость, заплатив невозмещаемый задаток в размере 2 000 евро наличным платежом, кредитной картой или банковским переводом на фирменный счет компании. После получения задатка недвижимость бронируется, осмотры с другими потенциальными покупателями производиться не будут, и начнется изготовление необходимых документов по оформлению сделки. Пожалуйста, обратитесь к ответственному за данный объект менеджеру по продажам для получения подробной информации относительно процедуры покупки и способов оплаты.
Послепродажное обслуживание
Мы ответственная компания, за плечами которой многолетний опыт работы в сфере недвижимости. Мы будем сопровождать Вас не только во время покупки, но и после приобретения недвижимости, обеспечивая Вам дополнительный набор услуг с учетом Ваших требовании, для того, чтобы Вы могли насладиться полноценным и спокойным времяпровождением в Болгарии. Услуги, которые мы можем предложить, включают страхование, строительство и ремонт, услуги по меблировке, бухгалтерские и юридическиe услуги, переоформление договоров на электричество, воду, телефон и многое другое.
Этапы строительства:
• с Актом 14;
• Акт 16 до июня 2028 г.
Комплекс расположен на участке площадью 4928 кв.м, состоит из 4 зданий и спроектирован таким образом, чтобы из всех квартир открывался прекрасный вид на море. Функционально спланированные квартиры включают студии, однокомнатные и трёхкомнатные квартиры с просторными панорамными террасами.
Параметры недвижимости
Квартира общей площадью 38,10 кв.м расположена на 2 этаже из 5.
Квартиры сдаются в аренду в готовом виде:
• ванная комната с туалетом - пол - керамогранит, стены - фаянс, сантехника, бойлер;
• прихожая - пол - керамогранит, стены - шпатлевка, штукатурка, краска;
• кухня - пол - керамогранит, стены - шпатлевка, штукатурка, краска;
• гостиная и спальни - пол - ламинат, стены - шпатлевка, штукатурка, краска;
• терраса - пол - гранитная плитка;
• двери - МДФ;
• окна - ПВХ;
• установлена система домофонной связи;
• скрытая проводка для оптоволоконного интернета и телевидения.
Качество и энергоэффективность
При строительстве зданий используются качественные строительные материалы и современные технологии, которые обеспечивают высокую энергоэффективность, хороший теплообмен и значительную экономию затрат на содержание здания.
Общая концепция направлена на спокойный и здоровый образ жизни и отдыха, отвечая ожиданиям по хорошему уровню, безопасности, комфорту, зелени и близлежащей инфраструктуре.
Места общего пользования
Функциональная организация пространства в небольших общественных зонах, отделанных плиткой.
Удобства в комплексе:
• открытый бассейн;
• зона отдыха;
• парковка осуществляется на широкой и удобной открытой парковке;
• озеленение – особое внимание уделено парковой среде, пространства вокруг зданий богато озеленены и оснащены регулируемым парковым освещением;
• контроль и безопасность доступа - чиповая система доступа на территорию комплекса и в здание, круглосуточное видеонаблюдение и видеофиксация въездов и подъездов к комплексу.
Расположение:
• 400 м от футбольного поля, спортивных площадок и фитнес-центра;
• 800 м от центра города;
• 900 м от Т-маркета;
• 900 м от медицинского центра;
• 1 км от автовокзала;
• 50 км от Варны и 67 км от Бургаса.
Проект реализуется авторитетной строительно-инвестиционной компанией — лауреатом специальной премии национального конкурса «Здание года Болгария 2021» в категории жилых зданий общей площадью более 10 000 кв.м, имеющей 15-летний опыт работы.
Стандартные три гибких плана оплаты:
• План А (стандартный) – первоначальный взнос – 30% от стоимости недвижимости;
• План Б – первоначальный взнос – 50%, со скидкой 3% от окончательной цены;
• План C – первоначальный взнос – 90%, со скидкой 5% от окончательной цены.
Для получения более подробной информации обратитесь к брокеру, ответственному за предложение.
Смотр недвижимости
Мы готовы организовать смотр недвижимости в удобное для вас время. Обратитесь к ответственному менеджеру по продажам и проинформируйте его, когда бы Вы хотели приехать на смотровой тур. Мы можем помочь Вам забронировать авиабилет и отель, а также помочь Вам оформить визу и необходимую страховку.
Бронирование недвижимости
Вы можете забронировать недвижимость, заплатив невозмещаемый задаток в размере 2 000 евро наличным платежом, кредитной картой или банковским переводом на фирменный счет компании. После получения задатка недвижимость бронируется, осмотры с другими потенциальными покупателями производиться не будут, и начнется изготовление необходимых документов по оформлению сделки. Пожалуйста, обратитесь к ответственному за данный объект менеджеру по продажам для получения подробной информации относительно процедуры покупки и способов оплаты.
Послепродажное обслуживание
Мы ответственная компания, за плечами которой многолетний опыт работы в сфере недвижимости. Мы будем сопровождать Вас не только во время покупки, но и после приобретения недвижимости, обеспечивая Вам дополнительный набор услуг с учетом Ваших требовании, для того, чтобы Вы могли насладиться полноценным и спокойным времяпровождением в Болгарии. Услуги, которые мы можем предложить, включают страхование, строительство и ремонт, услуги по меблировке, бухгалтерские и юридическиe услуги, переоформление договоров на электричество, воду, телефон и многое другое.
Квартиры с видом на море в новом закрытом комплексе в Бяле
Бяла (Варна) / Варна / Болгария карта
Цены на недвижимость: 49 530 - 148 613 €
Цены за м²: 1 198 - 2 317 €/м 2
ПРОЕКТ
Комплекс с новыми квартирами на берегу моря
Бяла (Варна) / Варна / Болгария карта
Цены на недвижимость: 35 140 - 206 288 €
Цены за м²: 950 - 1 600 €/м 2
Выберите эту опцию, и мы уведомим вас по электронной почте в случае каких-либо изменений в статусе предложения, например:
• Изменение цены;
• Объект недвижимости попал в рекламное предложение;
• Имущество зарезервировано или продано;
• Другие новости, связанные с недвижимостью.
• Имущество снимается с продажи;
Вы можете легко отписаться от уведомлений в любое время.• Изменения условий предложения;
• Изменение размера инвестиций;
• Объект инвестиции полностью реализован;
• Срок действия предложения истек.
Вы сможете легко отказаться от подписки, если в будущем решите, что больше не хотите следовать этому предложению.



...Как проверенный специалист, Stonehard PREMIER работает над позиционированием на рынке и продажами многочисленных новых строительных проектов, реализацию которых нам доверили ведущие предпринимательские компании в Болгарии и за рубежом...