Трехкомнатная квартира в ЖК «COMFORT RESIDENCE - Малинова Долина II»
Цена:
208 535 € (без НДС) (2 042 €/м 2 (без НДС))
*Цены и наличие свободных площадей в проекте указаны ориентировочно. Для получения актуальной информации о ценах, пожалуйста, свяжитесь с нами!
Ссылка. Число: SOF-135323 / 4218
Расположение: Малинова долина / София карта
Тип здания/комплекса: Жилой
Класс здания/комплекса: Высокий стандарт
Жилые районы: 102.14 м 2
Типы объектов недвижимости в здании/комплексе: Трёхкомнатные квартиры
Ссылка. Число: SOF-135323 / 4218
Расположение: Малинова долина / София
Тип здания/комплекса: Жилой
Класс здания/комплекса: Высокий стандарт
Жилые районы: 102.14 м 2
Типы объектов недвижимости в здании/комплексе: Трёхкомнатные квартиры
С 14-м актом! Без комиссии со стороны покупателя!
Планируемое завершение строительства – к концу 2026 года.
Указанная цена не включает НДС.
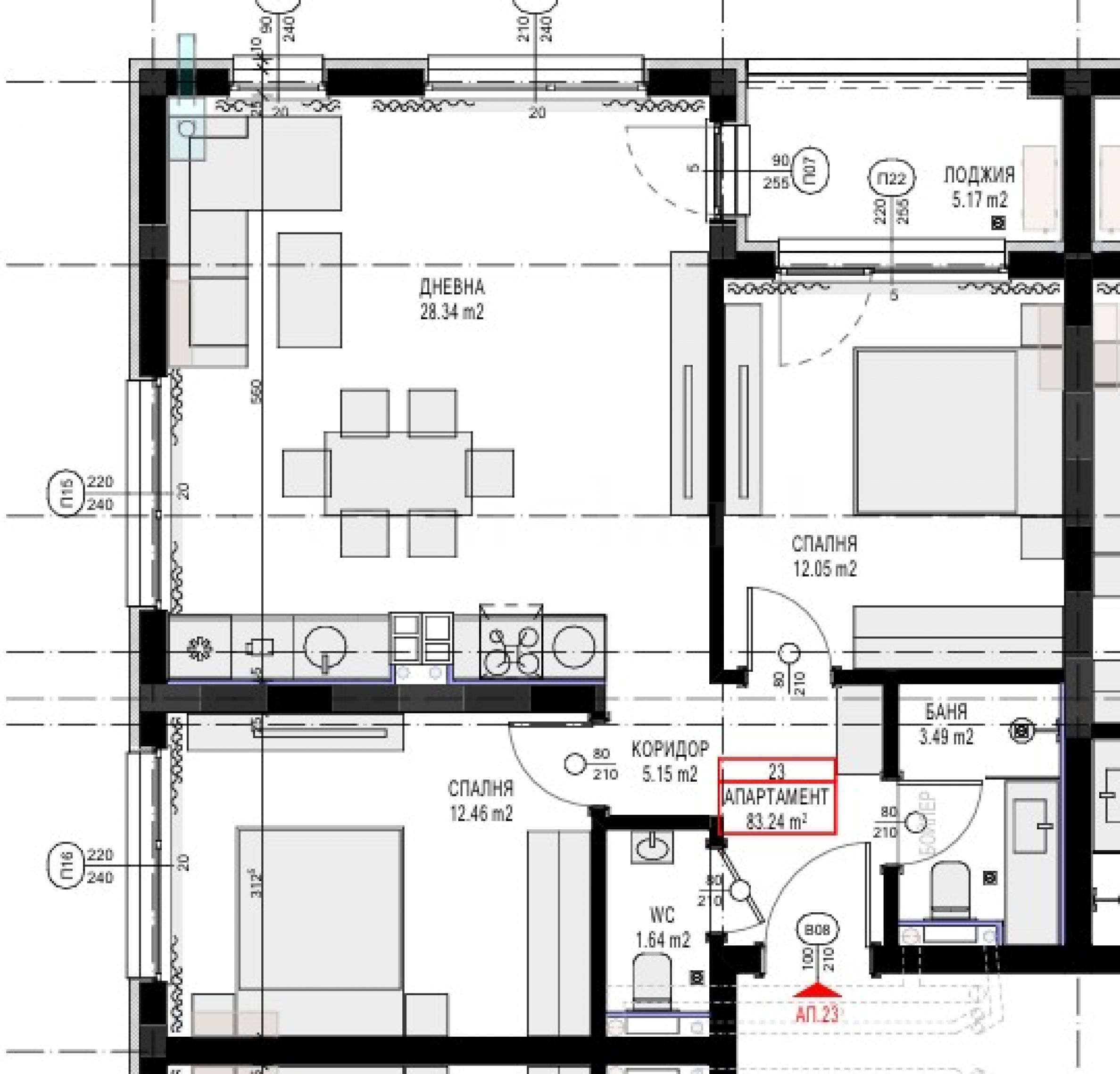
Квартира № 23 расположена на 3-м этаже здания и имеет площадь 83,24 м2., планировка включает: коридор, ванную комнату/туалет, туалет, светлую гостиную с кухней и обеденной зоной, две уютные спальни, террасу. В стоимость квартиры включено кладовое помещение площадью 3,38 м2.
Объект сдается в аренду в состоянии, соответствующем болгарским строительным стандартам (с оштукатуриванием и стяжкой). Отопление газовое, кондиционирование воздуха.
Есть возможность приобрести подземные парковочные места по цене 50 525 левов (25 833 евро) без НДС или надземные парковочные места по цене 34 227 левов (17 500 евро) без НДС.
Расположение
Новый жилой дом от архитектурного бюро TASKOV & STOYANOV из серии COMFORT RESIDENCE расположен в недавно сформированном районе Малинова Долина, недалеко от Национальной спортивной академии имени Васила Левски. Проект выполнен известным и отмеченным наградами архитектурным бюро STUDIO CREATIVE , с которым инвестор сотрудничает на протяжении длительного времени.
Местоположение отличается превосходной транспортной доступностью : рядом находится будущая станция метро, линия «Надежда — Лозенец», университеты «Студенческий град», Национальная академия наук и Зимний дворец, а также обеспечен быстрый доступ к Симеоновскому шоссе и Кольцевой дороге, торговому центру Ring Mall и бизнес-парку «София». Удобен также доступ к природному парку «Витоша» и центральной части столицы.
Жилой комплекс «КОМФОРТ РЕЗИДЕНЦИЯ - Малинова Долина II» — пример модернистской архитектуры, сочетающей эстетику, функциональность и комфорт. Здание спроектировано таким образом, чтобы создать благоприятную среду обитания, в которой свет, пространство и природа играют ведущую роль. Проект предлагает устойчивое и высококачественное городское жилье, отвечающее последним тенденциям современной архитектуры на глобальном уровне.
Строительством занимается лидер в сфере элитного строительства — компания ELITE BUILDING COMPANY. Планируется использовать самые современные технологии в сочетании с высококачественными материалами и оснащением от ведущих мировых производителей.
• Кирпичи WIENERBERGER;
• Комплект для облицовки фасада и теплоизоляции BAUMIT;
• 6-секционный ПВХ-сборный шкаф DECEUNINCK. Профильная система имеет ширину рамы 76 мм. Фурнитура и аксессуары SIEGENIA. Стеклопакет имеет толщину 44 мм, состоит из двух прозрачных флоат-стекл по 4 мм и одного низкоэмиссионного K-стекла толщиной 4 мм;
• 8-местные лифты ORONA с элегантной отделкой;
• Роскошно отделанные общие зоны в соответствии с дизайнерским проектом интерьера, включая полированные полы из натурального камня.
О здании
Функционально здание спроектировано в четыре уровня с последним террасным этажом, каждый из которых разработан с учетом максимального комфорта и оптимального распределения квартир. На первом (цокольном) этаже расположены доступные по цене квартиры с индивидуальными зелеными двориками, а также главный вход с современным и гостеприимным дизайном. Стандартные этажи предлагают квартиры с просторными лоджиями и французскими окнами, которые усиливают связь с внешним пространством. Квартиры на верхнем этаже спроектированы как роскошные пентхаусы с панорамными террасами, предлагающие уникальные виды и эксклюзивную жизнь. Вертикальная коммуникация обеспечивается двумя лифтами и одной лестничной клеткой, гарантируя функциональность и удобство.
Жилой комплекс "COMFORT RESIDENCE - Malinova Dolina II" предлагает в общей сложности 40 квартир, 41 подземное парковочное место и 10 надземных (открытых) парковочных мест. На первом этаже расположены квартиры с прилегающими частными двориками, а также открытые парковочные места.
В доме есть двух- и трехкомнатные квартиры. В каждой квартире имеется кладовая, которая включена в цену и общую площадь.
Помимо возможности переговоров, существуют следующие схемы оплаты:
Схема 1 с банковским кредитом:
• Задаток в размере 3912 левов (2000 евро) за двухкомнатную квартиру и 5868 левов (3000 евро) за трехкомнатную и четырехкомнатную квартиры. Договор о внесении задатка подписывается с обязательством подписать предварительный договор купли-продажи;
• 30% за вычетом первоначального взноса при подписании предварительного договора;
• 70% с банковским кредитом после принятия Закона № 14 (сертификат в соответствии со статьей 181 Закона о землепользовании) траншами.
Схема 2:
• Задаток в размере 3912 левов (2000 евро) за двухкомнатную квартиру и 5868 левов (3000 евро) за трехкомнатную и четырехкомнатную квартиры. Договор о внесении задатка подписывается с обязательством подписать предварительный договор купли-продажи;
• 30% за вычетом первоначального взноса при подписании предварительного договора;
• 10% при подъеме на второй этаж здания;
• 30% после принятия Закона № 14;
• 10% на фасад и столярные работы;
• 10% после принятия Закона № 15;
• 10% при выдаче разрешения на использование в соответствии с Законом № 16.
Концепция
Архитекторы и застройщик в очередной раз выбрали для своего проекта жилой комплекс с ультрасовременным дизайном, выполненным с акцентом на минималистский стиль, чистые линии и гармоничное взаимодействие архитектуры и окружающей среды. Композиция сочетает в себе функциональность и эстетику, предлагая открытые пространства, обилие естественного освещения и современные материалы. Здание имеет прямоугольную форму с четко выраженной модульной структурой, что создает ощущение порядка и ритма. Распределение фасада и окон создает сбалансированное видение, обеспечивая при этом оптимальное освещение и виды на окружающую среду и прекрасные горы.
Фасадная композиция и материалы сочетают светлые и темные тона, создавая элегантный и лаконичный вид. Основной материал — светлая минеральная штукатурка, придающая зданию легкость и воздушность, а бронзовые акценты на окнах и зеленые детали добавляют глубины и контраста. Стеклянные перила на террасах добавляют современности и прозрачности, подчеркивая связь между внутренним и внешним пространством. Использование больших стеклянных окон (французского типа) еще больше усиливает этот эффект, позволяя интерьеру и экстерьеру слиться воедино. Конструкция крыши спроектирована таким образом, чтобы придать силуэту динамику и характер, а также защитить террасы.
Благоустройство территории является ключевым элементом общего дизайна комплекса. Пространства вокруг здания включают в себя богатую растительность, декоративные деревья, кустарники и газоны, создающие ощущение гармонии и естественной среды. Особое внимание уделено зеленым зонам с интегрированными зонами отдыха, пешеходными дорожками, выложенными декоративным мощением и наружной светодиодной подсветкой, которая подчеркивает архитектурные детали в ночное время.
Преимущества "КОМФОРТ РЕЗИДЕНЦИИ - Малинова Долина II":
• Рядом с Национальной академией наук и Зимним дворцом расположены университеты «Студенческого городка» — привлекательные инвестиционные объекты, сдаваемые в аренду;
• Впечатляющее видение, роскошные общие зоны, безупречный дизайн;
• Оптимизированные дома с удобной и функциональной планировкой;
• Газовое отопление;
• Высокое качество строительства и инновационные технологии;
• Инвестор с обширным опытом и множеством успешно завершенных проектов.
Мы с нетерпением ждём вашего запроса.
Если вы хотите договориться о просмотре интересующего вас объекта недвижимости или посетить один из наших офисов, пожалуйста, свяжитесь с нами. Чтобы согласовать день и время встречи или просмотра, вы можете позвонить по номеру телефона, указанному в объявлении, или отправить запрос по электронной почте. Наш консультант поможет вам со всеми необходимыми деталями и согласует удобное для вас время.
Вы ищете подходящую недвижимость?
Не стесняйтесь обращаться к нам и рассказывать о ваших потребностях и предпочтениях. Наша команда проведет тщательное исследование рынка, чтобы предложить вам объекты недвижимости, точно соответствующие вашим критериям. У нас есть исключительное портфолио высококачественных и эксклюзивных домов, доступных только нашим клиентам. Чтобы первыми получать информацию о них – свяжитесь с нами.
Дополнительные услуги
Как ценный клиент нашей компании, вы получите привилегию пользоваться услугами нашей опытной юридической команды совершенно бесплатно. Кроме того, мы предлагаем комплексные решения, включая страхование недвижимости, бесплатные финансовые консультации, а также выгодные условия финансирования. Наши услуги также распространяются на сферу перепродажи, аренды и управления недвижимостью. Мы предоставляем высококачественные услуги по ремонту и меблировке через специализированные компании, входящие в нашу корпоративную группу и являющиеся нашими давними профессиональными партнерами.
Смотр недвижимости
Мы готовы организовать смотр недвижимости в удобное для вас время. Обратитесь к ответственному менеджеру по продажам и проинформируйте его, когда бы Вы хотели приехать на смотровой тур. Мы можем помочь Вам забронировать авиабилет и отель, а также помочь Вам оформить визу и необходимую страховку.
Бронирование недвижимости
Вы можете забронировать недвижимость, заплатив невозмещаемый задаток в размере 2 000 евро наличным платежом, кредитной картой или банковским переводом на фирменный счет компании. После получения задатка недвижимость бронируется, осмотры с другими потенциальными покупателями производиться не будут, и начнется изготовление необходимых документов по оформлению сделки. Пожалуйста, обратитесь к ответственному за данный объект менеджеру по продажам для получения подробной информации относительно процедуры покупки и способов оплаты.
Послепродажное обслуживание
Мы уважаемая компания, за плечами которой многолетний опыт работы в сфере недвижимости. Мы будем сопровождать Вас не только во время покупки, но и после приобретения недвижимости, обеспечивая Вам дополнительный набор услуг с учетом Ваших требовании, для того, чтобы Вы могли насладиться полноценным и спокойным времяпровождением в Болгарии. Услуги, которые мы можем предложить, включают страхование, строительство и ремонт, услуги по меблировке, бухгалтерские и юридическиe услуги, переоформление договоров на электричество, воду, телефон и многое другое.
Расположение на карте
ПРАВА
Высокотехнологичный жилой комплекс с панорамными резиденциями, фитнес-центром, СПА-салоном, рестораном и консьерж-сервисом на бульваре Цариградско Шосе.
7-ми 11-ти километър / София / София / Болгария карта
Класс здания: Премиум
Цены на недвижимость: 412 965 - 1 763 726 € (без НДС)
Цены за м²: 2 100 - 4 125 €/м 2 (без НДС)
ПРОДАЖА
ПРОЕКТ
Дизайнерская трехкомнатная квартира в престижном доме А3
Манастирски ливади - Изток / София / София / Болгария карта
Область: 165 м 2
Цена: 630 000 € /// 3 818 €/м 2
Новый жилой проект из восьми домов с разными типами квартир в квартале «Малиновая Долина»
Малинова долина / София / София / Болгария карта
Цены на недвижимость: 73 000 - 212 000 €
Цены за м²: 1 738 - 1 933 €/м 2
Выберите эту опцию, и мы уведомим вас по электронной почте в случае каких-либо изменений в статусе предложения, например:
• Изменение цены;
• Объект недвижимости попал в рекламное предложение;
• Имущество зарезервировано или продано;
• Другие новости, связанные с недвижимостью.
• Имущество снимается с продажи;
Вы можете легко отписаться от уведомлений в любое время.• Изменения условий предложения;
• Изменение размера инвестиций;
• Объект инвестиции полностью реализован;
• Срок действия предложения истек.
Вы сможете легко отказаться от подписки, если в будущем решите, что больше не хотите следовать этому предложению.
Для получения абсолютно корректной информации о свободных объектах недвижимости, выставленных на продажу в проекте, и их актуальных ценах, пожалуйста, свяжитесь с нашим офисом по указанным контактам.
Мы прилагаем все усилия, чтобы наши прайс-листы были абсолютно актуальными и правильными, но зачастую это невозможно, учитывая большое количество новых проектов в нашем каталоге и высокую динамику продаж.
Благодарим за понимание!



...Как проверенный специалист, Stonehard PREMIER работает над позиционированием на рынке и продажами многочисленных новых строительных проектов, реализацию которых нам доверили ведущие предпринимательские компании в Болгарии и за рубежом...