Двухкомнатная квартира в благоустроенном современном комплексе рядом с Южным парком
REF#SOF-134281
/
Трёхкомнатные квартиры
/
Реализованные проекты
/
София
/
Кръстова вада
/
София
/
Болгария
на карте
Цена:
344 346 € (3 478 €/м 2)
*Цены и наличие свободных площадей в проекте указаны ориентировочно. Для получения актуальной информации о ценах, пожалуйста, свяжитесь с нами!
Ссылка. Число: SOF-134281 / 3522
Расположение: Кръстова вада / София карта
Тип здания/комплекса: Жилой
Жилые районы: 99 м 2
Типы объектов недвижимости в здании/комплексе: Трёхкомнатные квартиры
Ссылка. Число: SOF-134281 / 3522
Расположение: Кръстова вада / София
Тип здания/комплекса: Жилой
Класс здания/комплекса:
Жилые районы: 99 м 2
Типы объектов недвижимости в здании/комплексе: Трёхкомнатные квартиры
Расположение :
• Тихое место с малоэтажной застройкой и множеством садовых зон
• Быстрый доступ к бульвару Черни Врых, станции метро Витоша и торговому центру Paradise Center
• В пешей доступности от расширения Южного парка
Основные упомянутых отличительных характеристики:
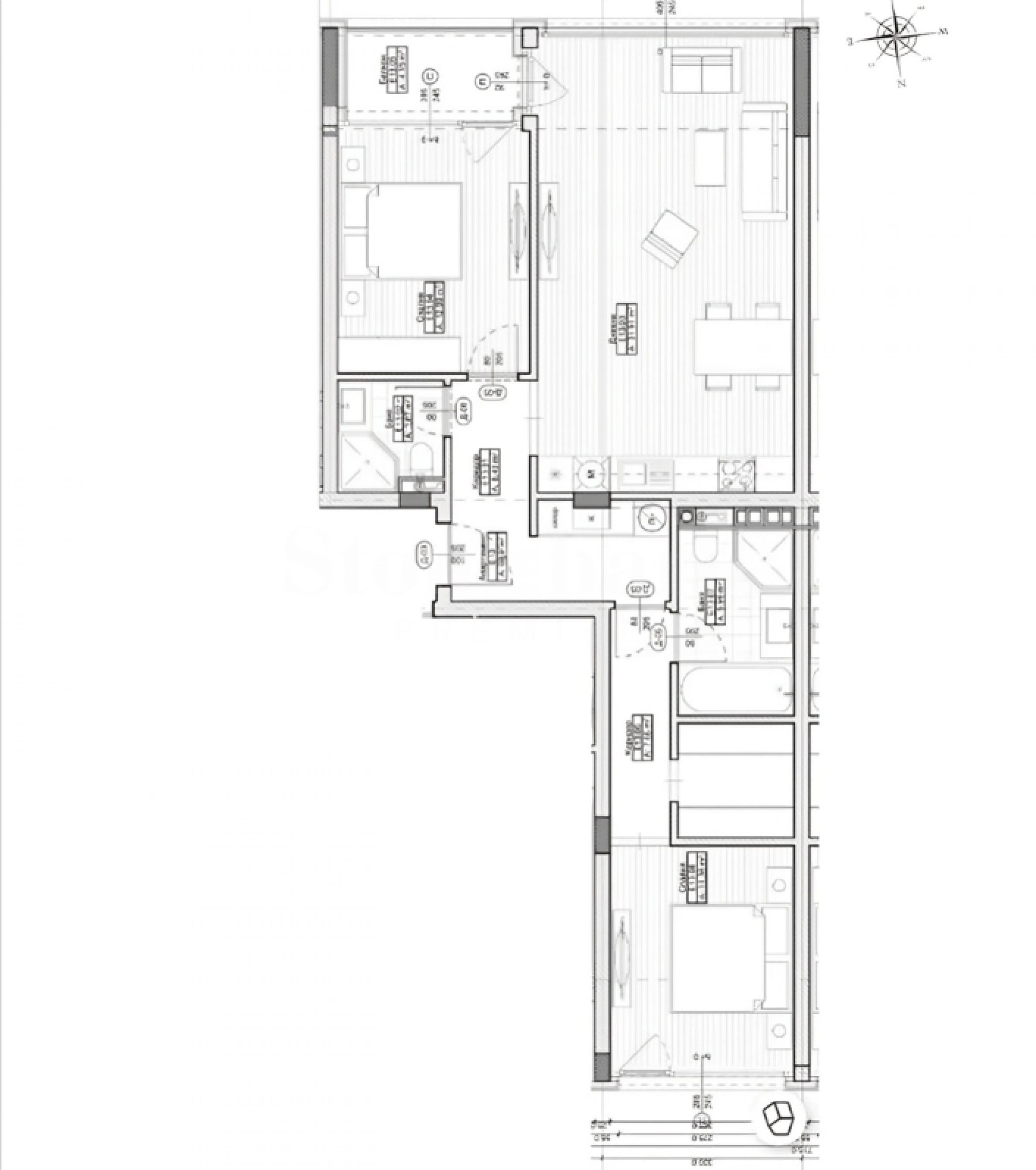
• Общая площадь: 99 кв. метров;
• Окна выходят на юг – светлая гостиная и спальня;
• Подвал: 2,93 кв. метров.
Распределение :
• Прихожая;
• Просторная гостиная с кухней;
• Две спальни;
• Две ванные комнаты с туалетами;
• Терраса.
Преимущества :
• Просторный и функциональный дом, подходящий для семьи;
• Современная архитектура и качественные материалы;
• Зеленые внутренние пространства и современная среда с ощущением природы;
• Высокие стандарты энергоэффективности;
• Контроль доступа и спокойная жилая атмосфера.
Прекрасный выбор для современной городской жизни рядом с парком и с отличным транспортным сообщением с центральными районами Софии.
Свяжитесь с нами для получения дополнительной информации и просмотра!
Смотр недвижимости
Мы готовы организовать смотр недвижимости в удобное для вас время. Обратитесь к ответственному менеджеру по продажам и проинформируйте его, когда бы Вы хотели приехать на смотровой тур. Мы можем помочь Вам забронировать авиабилет и отель, а также помочь Вам оформить визу и необходимую страховку.
Бронирование недвижимости
Вы можете забронировать недвижимость, заплатив невозмещаемый задаток в размере 2 000 евро наличным платежом, кредитной картой или банковским переводом на фирменный счет компании. После получения задатка недвижимость бронируется, осмотры с другими потенциальными покупателями производиться не будут, и начнется изготовление необходимых документов по оформлению сделки. Пожалуйста, обратитесь к ответственному за данный объект менеджеру по продажам для получения подробной информации относительно процедуры покупки и способов оплаты.
Послепродажное обслуживание
Мы уважаемая компания, за плечами которой многолетний опыт работы в сфере недвижимости. Мы будем сопровождать Вас не только во время покупки, но и после приобретения недвижимости, обеспечивая Вам дополнительный набор услуг с учетом Ваших требовании, для того, чтобы Вы могли насладиться полноценным и спокойным времяпровождением в Болгарии. Услуги, которые мы можем предложить, включают страхование, строительство и ремонт, услуги по меблировке, бухгалтерские и юридическиe услуги, переоформление договоров на электричество, воду, телефон и многое другое.
Расположение на карте
ПРОДАЖА
ПРОЕКТ
Дизайнерская трехкомнатная квартира в престижном доме А3
Манастирски ливади - Изток / София / София / Болгария карта
Область: 165 м 2
Цена: 630 000 € /// 3 818 €/м 2
Новый жилой проект из восьми домов с разными типами квартир в квартале «Малиновая Долина»
Малинова долина / София / София / Болгария карта
Цены на недвижимость: 73 000 - 212 000 €
Цены за м²: 1 738 - 1 933 €/м 2
Новый комплекс с различными типами квартир в районе "Манастирски Ливади - Изток".
Манастирски ливади - Изток / София / София / Болгария карта
Цены на недвижимость: 183 906 - 449 314 € (без НДС)
Цены за м²: 2 600 - 2 600 €/м 2 (без НДС)
Выберите эту опцию, и мы уведомим вас по электронной почте в случае каких-либо изменений в статусе предложения, например:
• Изменение цены;
• Объект недвижимости попал в рекламное предложение;
• Имущество зарезервировано или продано;
• Другие новости, связанные с недвижимостью.
• Имущество снимается с продажи;
Вы можете легко отписаться от уведомлений в любое время.• Изменения условий предложения;
• Изменение размера инвестиций;
• Объект инвестиции полностью реализован;
• Срок действия предложения истек.
Вы сможете легко отказаться от подписки, если в будущем решите, что больше не хотите следовать этому предложению.
Для получения абсолютно корректной информации о свободных объектах недвижимости, выставленных на продажу в проекте, и их актуальных ценах, пожалуйста, свяжитесь с нашим офисом по указанным контактам.
Мы прилагаем все усилия, чтобы наши прайс-листы были абсолютно актуальными и правильными, но зачастую это невозможно, учитывая большое количество новых проектов в нашем каталоге и высокую динамику продаж.
Благодарим за понимание!



...Как проверенный специалист, Stonehard PREMIER работает над позиционированием на рынке и продажами многочисленных новых строительных проектов, реализацию которых нам доверили ведущие предпринимательские компании в Болгарии и за рубежом...