Ссылка. Число: AP 133699 / 4647
Расположение: Кръстова вада / София карта
Тип здания/комплекса: Жилой
Жилые районы: 73.23 м 2
Типы объектов недвижимости в здании/комплексе: Двухкомнатные квартиры
Ссылка. Число: AP 133699
Расположение: Кръстова вада / София
Тип здания/комплекса: Жилищен
Класс здания/комплекса:
Жилые районы: 73.23 м 2
Типы объектов недвижимости в здании/комплексе: Двухкомнатные квартиры
Здание расположено в престижной южной части столицы — в непосредственной близости от зоопарка, всего в 950 метрах от торгового центра Paradise Center и станции метро Vitosha. Расположение на тихой внутренней улице обеспечивает приватность и безопасность, а также быстрый доступ через новый бульвар Филиппа Кутева к бульвару Черни Врых и Симеоновскому шоссе. Район сочетает в себе тишину, отличную инфраструктуру и быстрый доступ к ключевым точкам города.
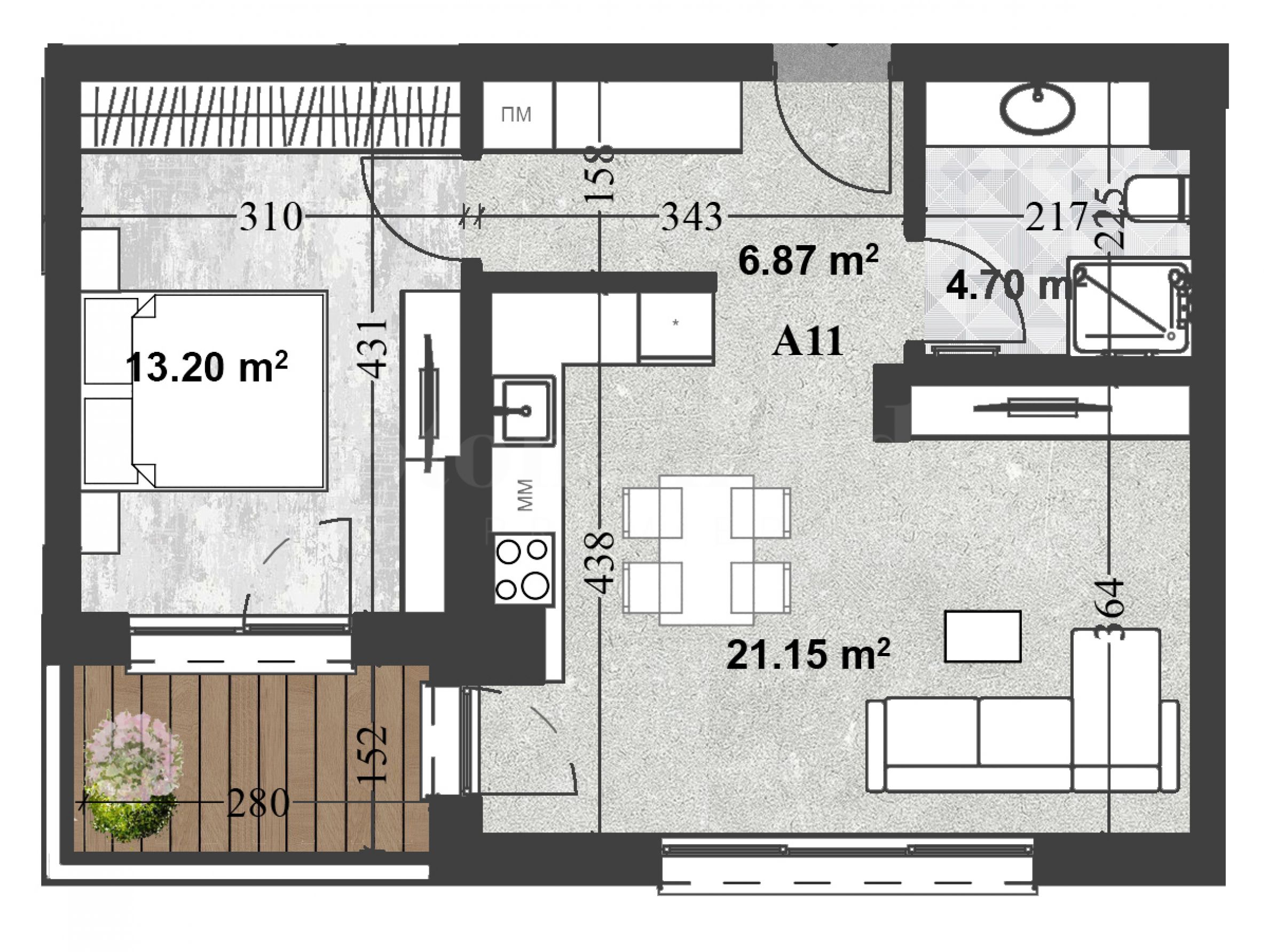
Квартира расположена на третьем этаже, общей площадью 73,23 кв. метров. и имеет следующую планировку:
• коридор;
• гостиная с кухней и столовой,
• спальня;
• ванная комната с туалетом;
• лоджия.
Здание имеет пять надземных этажей и один подземный. В подземном этаже расположены гаражи, парковочные места и подвалы. На остальных пяти жилых этажах расположены 14 двух-, трёх- и четырёхкомнатных квартир.
В домах сочетаются светлые пространства, чистые линии и ощущение спокойствия – всё продумано до мелочей и ориентировано на тех, кто ценит качество и современный образ жизни. Инновационная концепция сочетает в себе современную архитектуру, связь с природой и новые технологии.
Современное и качественное строительство, очень высокий стандарт качества используемых материалов.
Технические перечисленных отличительных обозначенных перечисленных обозначенных характеристики:
• Класс энергопотребления А — здание спроектировано с высокой энергоэффективностью, что обеспечивает низкое потребление энергии и оптимальные расходы на отопление и охлаждение — для более экологичного и комфортного образа жизни.
• Фотоэлектрическая система — встроенная система для электроснабжения мест общего пользования, которая способствует снижению затрат на электроэнергию и более устойчивой эксплуатации здания.
• Премиальный фасад - керамический фасад с современным дизайном и превосходной долговечностью.
• Французские окна — максимальное остекление для большего количества света, пространства и естественной связи с окружающим пространством.
• Алюминиевые столярные изделия высочайшего класса - с отличной тепло- и шумоизоляцией, современным внешним видом и длительным сроком службы.
• Ненавязчивое освещение фасада и сада, подчеркивающее архитектуру и создающее комфорт и безопасность в ночное время.
• Высокоэффективная звукоизоляция — гарантирует тишину, приватность и акустический комфорт в каждом доме.
• Готовая установка для систем тепловых насосов — энергоэффективное решение для отопления, охлаждения и горячего водоснабжения.
• Роскошные общие зоны — оформлены в соответствии с индивидуальным дизайном интерьера с использованием высококачественных материалов и вниманием к каждой детали.
• Во всех квартирах встроена система подогрева пола, обеспечивающая комфорт в любое время года.
• Благоустроенный закрытый двор — тихая, зеленая и эстетичная среда для отдыха и релаксации.
• Подземная парковка — просторная и хорошо организованная, с прямым доступом в здание, спроектированная для удобной парковки даже больших автомобилей.
• Ограниченный доступ - Автоматизированная система видеонаблюдения для доступа в здание и во внутренний двор - для повышения безопасности и спокойствия.
Три схемы оплаты:
Схема 1:
•30% по предварительной договоренности
•30% для Акта 14
•30% для Акта 15
•10% для Акта 16
Схема 2:
•60% по предварительному договору
•30% для Акта 15
•10% для Акта 16
Схема 3:
•90% с предварительным договором
•10% для Акта 16
Бронирование возможно с внесением депозита.
Мы с нетерпением ждем вашего запроса.
Если вы хотите договориться о просмотре интересующего вас объекта недвижимости или посетить один из наших офисов, пожалуйста, свяжитесь с нами. Чтобы договориться о встрече или просмотре, позвоните по указанному в объявлении номеру телефона или отправьте запрос по электронной почте. Наш консультант свяжется с вами по всем необходимым вопросам и подберет удобное для вас время.
Вы ищете подходящую для себя недвижимость?
Не стесняйтесь обращаться к нам и рассказать о своих потребностях и предпочтениях. Наша команда проведёт тщательное исследование рынка, чтобы предложить вам недвижимость, которая точно соответствует вашим критериям. У нас есть исключительное портфолио высококачественных и эксклюзивных домов, доступных только нашим клиентам. Чтобы первыми получать информацию о них, свяжитесь с нами.
Дополнительные услуги
Став нашим ценным клиентом, вы получите право пользоваться услугами нашей опытной юридической команды совершенно бесплатно. Кроме того, мы предлагаем комплексные решения, включая страхование имущества, бесплатные финансовые консультации и выгодные условия финансирования. Мы также предлагаем услуги по перепродаже, аренде и управлению недвижимостью. Мы осуществляем высококачественный ремонт и меблировку через специализированные компании, входящие в нашу группу компаний и являющиеся нашими давними профессиональными партнерами.
Смотр недвижимости
Мы готовы организовать смотр недвижимости в удобное для вас время. Обратитесь к ответственному менеджеру по продажам и проинформируйте его, когда бы Вы хотели приехать на смотровой тур. Мы можем помочь Вам забронировать авиабилет и отель, а также помочь Вам оформить визу и необходимую страховку.
Бронирование недвижимости
Вы можете забронировать недвижимость, заплатив невозмещаемый задаток в размере 2 000 евро наличным платежом, кредитной картой или банковским переводом на фирменный счет компании. После получения задатка недвижимость бронируется, осмотры с другими потенциальными покупателями производиться не будут, и начнется изготовление необходимых документов по оформлению сделки. Пожалуйста, обратитесь к ответственному за данный объект менеджеру по продажам для получения подробной информации относительно процедуры покупки и способов оплаты.
Послепродажное обслуживание
Мы уважаемая компания, за плечами которой многолетний опыт работы в сфере недвижимости. Мы будем сопровождать Вас не только во время покупки, но и после приобретения недвижимости, обеспечивая Вам дополнительный набор услуг с учетом Ваших требовании, для того, чтобы Вы могли насладиться полноценным и спокойным времяпровождением в Болгарии. Услуги, которые мы можем предложить, включают страхование, строительство и ремонт, услуги по меблировке, бухгалтерские и юридическиe услуги, переоформление договоров на электричество, воду, телефон и многое другое.
Расположение на карте
Здание расположено в престижной южной части столицы — в непосредственной близости от зоопарка, всего в 950 метрах от торгового центра Paradise Center и станции метро Vitosha. Расположение на тихой внутренней улице обеспечивает приватность и безопасность, а также быстрый доступ через новый бульвар Филиппа Кутева к бульвару Черни Врых и Симеоновскому шоссе. Район сочетает в себе тишину, отличную инфраструктуру и быстрый доступ к ключевым точкам города.
Квартира расположена на третьем этаже, общей площадью 73,23 кв. метров. и имеет следующую планировку:
• коридор;
• гостиная с кухней и столовой,
• спальня;
• ванная комната с туалетом;
• лоджия.
Здание имеет пять надземных этажей и один подземный. В подземном этаже расположены гаражи, парковочные места и подвалы. На остальных пяти жилых этажах расположены 14 двух-, трёх- и четырёхкомнатных квартир.
В домах сочетаются светлые пространства, чистые линии и ощущение спокойствия – всё продумано до мелочей и ориентировано на тех, кто ценит качество и современный образ жизни. Инновационная концепция сочетает в себе современную архитектуру, связь с природой и новые технологии.
Современное и качественное строительство, очень высокий стандарт качества используемых материалов.
Технические перечисленных отличительных обозначенных перечисленных обозначенных характеристики:
• Класс энергопотребления А — здание спроектировано с высокой энергоэффективностью, что обеспечивает низкое потребление энергии и оптимальные расходы на отопление и охлаждение — для более экологичного и комфортного образа жизни.
• Фотоэлектрическая система — встроенная система для электроснабжения мест общего пользования, которая способствует снижению затрат на электроэнергию и более устойчивой эксплуатации здания.
• Премиальный фасад - керамический фасад с современным дизайном и превосходной долговечностью.
• Французские окна — максимальное остекление для большего количества света, пространства и естественной связи с окружающим пространством.
• Алюминиевые столярные изделия высочайшего класса - с отличной тепло- и шумоизоляцией, современным внешним видом и длительным сроком службы.
• Ненавязчивое освещение фасада и сада, подчеркивающее архитектуру и создающее комфорт и безопасность в ночное время.
• Высокоэффективная звукоизоляция — гарантирует тишину, приватность и акустический комфорт в каждом доме.
• Готовая установка для систем тепловых насосов — энергоэффективное решение для отопления, охлаждения и горячего водоснабжения.
• Роскошные общие зоны — оформлены в соответствии с индивидуальным дизайном интерьера с использованием высококачественных материалов и вниманием к каждой детали.
• Во всех квартирах встроена система подогрева пола, обеспечивающая комфорт в любое время года.
• Благоустроенный закрытый двор — тихая, зеленая и эстетичная среда для отдыха и релаксации.
• Подземная парковка — просторная и хорошо организованная, с прямым доступом в здание, спроектированная для удобной парковки даже больших автомобилей.
• Ограниченный доступ - Автоматизированная система видеонаблюдения для доступа в здание и во внутренний двор - для повышения безопасности и спокойствия.
Три схемы оплаты:
Схема 1:
•30% по предварительной договоренности
•30% для Акта 14
•30% для Акта 15
•10% для Акта 16
Схема 2:
•60% по предварительному договору
•30% для Акта 15
•10% для Акта 16
Схема 3:
•90% с предварительным договором
•10% для Акта 16
Бронирование возможно с внесением депозита.
Мы с нетерпением ждем вашего запроса.
Если вы хотите договориться о просмотре интересующего вас объекта недвижимости или посетить один из наших офисов, пожалуйста, свяжитесь с нами. Чтобы договориться о встрече или просмотре, позвоните по указанному в объявлении номеру телефона или отправьте запрос по электронной почте. Наш консультант свяжется с вами по всем необходимым вопросам и подберет удобное для вас время.
Вы ищете подходящую для себя недвижимость?
Не стесняйтесь обращаться к нам и рассказать о своих потребностях и предпочтениях. Наша команда проведёт тщательное исследование рынка, чтобы предложить вам недвижимость, которая точно соответствует вашим критериям. У нас есть исключительное портфолио высококачественных и эксклюзивных домов, доступных только нашим клиентам. Чтобы первыми получать информацию о них, свяжитесь с нами.
Дополнительные услуги
Став нашим ценным клиентом, вы получите право пользоваться услугами нашей опытной юридической команды совершенно бесплатно. Кроме того, мы предлагаем комплексные решения, включая страхование имущества, бесплатные финансовые консультации и выгодные условия финансирования. Мы также предлагаем услуги по перепродаже, аренде и управлению недвижимостью. Мы осуществляем высококачественный ремонт и меблировку через специализированные компании, входящие в нашу группу компаний и являющиеся нашими давними профессиональными партнерами.
Смотр недвижимости
Мы готовы организовать смотр недвижимости в удобное для вас время. Обратитесь к ответственному менеджеру по продажам и проинформируйте его, когда бы Вы хотели приехать на смотровой тур. Мы можем помочь Вам забронировать авиабилет и отель, а также помочь Вам оформить визу и необходимую страховку.
Бронирование недвижимости
Вы можете забронировать недвижимость, заплатив невозмещаемый задаток в размере 2 000 евро наличным платежом, кредитной картой или банковским переводом на фирменный счет компании. После получения задатка недвижимость бронируется, осмотры с другими потенциальными покупателями производиться не будут, и начнется изготовление необходимых документов по оформлению сделки. Пожалуйста, обратитесь к ответственному за данный объект менеджеру по продажам для получения подробной информации относительно процедуры покупки и способов оплаты.
Послепродажное обслуживание
Мы уважаемая компания, за плечами которой многолетний опыт работы в сфере недвижимости. Мы будем сопровождать Вас не только во время покупки, но и после приобретения недвижимости, обеспечивая Вам дополнительный набор услуг с учетом Ваших требовании, для того, чтобы Вы могли насладиться полноценным и спокойным времяпровождением в Болгарии. Услуги, которые мы можем предложить, включают страхование, строительство и ремонт, услуги по меблировке, бухгалтерские и юридическиe услуги, переоформление договоров на электричество, воду, телефон и многое другое.
Здание расположено в престижной южной части столицы — в непосредственной близости от зоопарка, всего в 950 метрах от торгового центра Paradise Center и станции метро Vitosha. Расположение на тихой внутренней улице обеспечивает приватность и безопасность, а также быстрый доступ через новый бульвар Филиппа Кутева к бульвару Черни Врых и Симеоновскому шоссе. Район сочетает в себе тишину, отличную инфраструктуру и быстрый доступ к ключевым точкам города.
Квартира расположена на третьем этаже, общей площадью 73,23 кв. метров. и имеет следующую планировку:
• коридор;
• гостиная с кухней и столовой,
• спальня;
• ванная комната с туалетом;
• лоджия.
Здание имеет пять надземных этажей и один подземный. В подземном этаже расположены гаражи, парковочные места и подвалы. На остальных пяти жилых этажах расположены 14 двух-, трёх- и четырёхкомнатных квартир.
В домах сочетаются светлые пространства, чистые линии и ощущение спокойствия – всё продумано до мелочей и ориентировано на тех, кто ценит качество и современный образ жизни. Инновационная концепция сочетает в себе современную архитектуру, связь с природой и новые технологии.
Современное и качественное строительство, очень высокий стандарт качества используемых материалов.
Технические перечисленных отличительных обозначенных перечисленных обозначенных характеристики:
• Класс энергопотребления А — здание спроектировано с высокой энергоэффективностью, что обеспечивает низкое потребление энергии и оптимальные расходы на отопление и охлаждение — для более экологичного и комфортного образа жизни.
• Фотоэлектрическая система — встроенная система для электроснабжения мест общего пользования, которая способствует снижению затрат на электроэнергию и более устойчивой эксплуатации здания.
• Премиальный фасад - керамический фасад с современным дизайном и превосходной долговечностью.
• Французские окна — максимальное остекление для большего количества света, пространства и естественной связи с окружающим пространством.
• Алюминиевые столярные изделия высочайшего класса - с отличной тепло- и шумоизоляцией, современным внешним видом и длительным сроком службы.
• Ненавязчивое освещение фасада и сада, подчеркивающее архитектуру и создающее комфорт и безопасность в ночное время.
• Высокоэффективная звукоизоляция — гарантирует тишину, приватность и акустический комфорт в каждом доме.
• Готовая установка для систем тепловых насосов — энергоэффективное решение для отопления, охлаждения и горячего водоснабжения.
• Роскошные общие зоны — оформлены в соответствии с индивидуальным дизайном интерьера с использованием высококачественных материалов и вниманием к каждой детали.
• Во всех квартирах встроена система подогрева пола, обеспечивающая комфорт в любое время года.
• Благоустроенный закрытый двор — тихая, зеленая и эстетичная среда для отдыха и релаксации.
• Подземная парковка — просторная и хорошо организованная, с прямым доступом в здание, спроектированная для удобной парковки даже больших автомобилей.
• Ограниченный доступ - Автоматизированная система видеонаблюдения для доступа в здание и во внутренний двор - для повышения безопасности и спокойствия.
Три схемы оплаты:
Схема 1:
•30% по предварительной договоренности
•30% для Акта 14
•30% для Акта 15
•10% для Акта 16
Схема 2:
•60% по предварительному договору
•30% для Акта 15
•10% для Акта 16
Схема 3:
•90% с предварительным договором
•10% для Акта 16
Бронирование возможно с внесением депозита.
Мы с нетерпением ждем вашего запроса.
Если вы хотите договориться о просмотре интересующего вас объекта недвижимости или посетить один из наших офисов, пожалуйста, свяжитесь с нами. Чтобы договориться о встрече или просмотре, позвоните по указанному в объявлении номеру телефона или отправьте запрос по электронной почте. Наш консультант свяжется с вами по всем необходимым вопросам и подберет удобное для вас время.
Вы ищете подходящую для себя недвижимость?
Не стесняйтесь обращаться к нам и рассказать о своих потребностях и предпочтениях. Наша команда проведёт тщательное исследование рынка, чтобы предложить вам недвижимость, которая точно соответствует вашим критериям. У нас есть исключительное портфолио высококачественных и эксклюзивных домов, доступных только нашим клиентам. Чтобы первыми получать информацию о них, свяжитесь с нами.
Дополнительные услуги
Став нашим ценным клиентом, вы получите право пользоваться услугами нашей опытной юридической команды совершенно бесплатно. Кроме того, мы предлагаем комплексные решения, включая страхование имущества, бесплатные финансовые консультации и выгодные условия финансирования. Мы также предлагаем услуги по перепродаже, аренде и управлению недвижимостью. Мы осуществляем высококачественный ремонт и меблировку через специализированные компании, входящие в нашу группу компаний и являющиеся нашими давними профессиональными партнерами.
Смотр недвижимости
Мы готовы организовать смотр недвижимости в удобное для вас время. Обратитесь к ответственному менеджеру по продажам и проинформируйте его, когда бы Вы хотели приехать на смотровой тур. Мы можем помочь Вам забронировать авиабилет и отель, а также помочь Вам оформить визу и необходимую страховку.
Бронирование недвижимости
Вы можете забронировать недвижимость, заплатив невозмещаемый задаток в размере 2 000 евро наличным платежом, кредитной картой или банковским переводом на фирменный счет компании. После получения задатка недвижимость бронируется, осмотры с другими потенциальными покупателями производиться не будут, и начнется изготовление необходимых документов по оформлению сделки. Пожалуйста, обратитесь к ответственному за данный объект менеджеру по продажам для получения подробной информации относительно процедуры покупки и способов оплаты.
Послепродажное обслуживание
Мы уважаемая компания, за плечами которой многолетний опыт работы в сфере недвижимости. Мы будем сопровождать Вас не только во время покупки, но и после приобретения недвижимости, обеспечивая Вам дополнительный набор услуг с учетом Ваших требовании, для того, чтобы Вы могли насладиться полноценным и спокойным времяпровождением в Болгарии. Услуги, которые мы можем предложить, включают страхование, строительство и ремонт, услуги по меблировке, бухгалтерские и юридическиe услуги, переоформление договоров на электричество, воду, телефон и многое другое.
ПРОДАЖА
ПРОЕКТ
Однокомнатная квартира в престижном районе Бояна
Бояна / София / София / Болгария карта
Класс здания/комплекса: Высокий стандарт
Область: 98.27 м 2
Цена: 186 713 € /// 1 900 €/м 2
ПРАВА
ПРОДАЖА
ПРОЕКТ
Дизайнерская квартира с парковочным местом в элитном здании ОКИНАВА
Малинова долина / София / София / Болгария карта
Класс здания/комплекса: Высокий стандарт
Область: 76.54 м 2
Цена: 244 900 € /// 3 200 €/м 2
Квартиры в 1-й очереди современного комплекса рядом с Симеоновским шоссе
Малинова долина / София / София / Болгария карта
Цены на недвижимость: 114 096 - 247 180 €
Цены за м²: 1 828 - 2 296 €/м 2
Выберите эту опцию, и мы уведомим вас по электронной почте в случае каких-либо изменений в статусе предложения, например:
• Изменение цены;
• Объект недвижимости попал в рекламное предложение;
• Имущество зарезервировано или продано;
• Другие новости, связанные с недвижимостью.
• Имущество снимается с продажи;
Вы можете легко отписаться от уведомлений в любое время.• Изменения условий предложения;
• Изменение размера инвестиций;
• Объект инвестиции полностью реализован;
• Срок действия предложения истек.
Вы сможете легко отказаться от подписки, если в будущем решите, что больше не хотите следовать этому предложению.



...Как проверенный специалист, Stonehard PREMIER работает над позиционированием на рынке и продажами многочисленных новых строительных проектов, реализацию которых нам доверили ведущие предпринимательские компании в Болгарии и за рубежом...