Трехкомнатная квартира рядом с аквапарком в Несебре
Цена:
142 500 € (1 508 €/м 2)
*Цены и наличие свободных площадей в проекте указаны ориентировочно. Для получения актуальной информации о ценах, пожалуйста, свяжитесь с нами!
Ссылка. Число: LXH-133292 / 4615
Расположение: Несебр карта
Тип здания/комплекса: Жилой
Жилые районы: 94.47 м 2
Типы объектов недвижимости в здании/комплексе: Трёхкомнатные квартиры
Ссылка. Число: LXH-133292 / 4615
Расположение: Несебр
Тип здания/комплекса: Жилой
Класс здания/комплекса:
Жилые районы: 94.47 м 2
Типы объектов недвижимости в здании/комплексе: Трёхкомнатные квартиры
Начало строительства – декабрь 2025 г.
Ожидаемый акт 16 — декабрь 2027 г.
Представляем на продажу трёхкомнатную квартиру в закрытом комплексе с современным дизайном и удобствами, расположенном в тихом и спокойном районе Несебра. В 600 метрах от моря и в 500 метрах от крупнейшего аквапарка в Болгарии. Рядом находятся рестораны, магазины, спортивные площадки и культурные достопримечательности.
Покупка без комиссии.
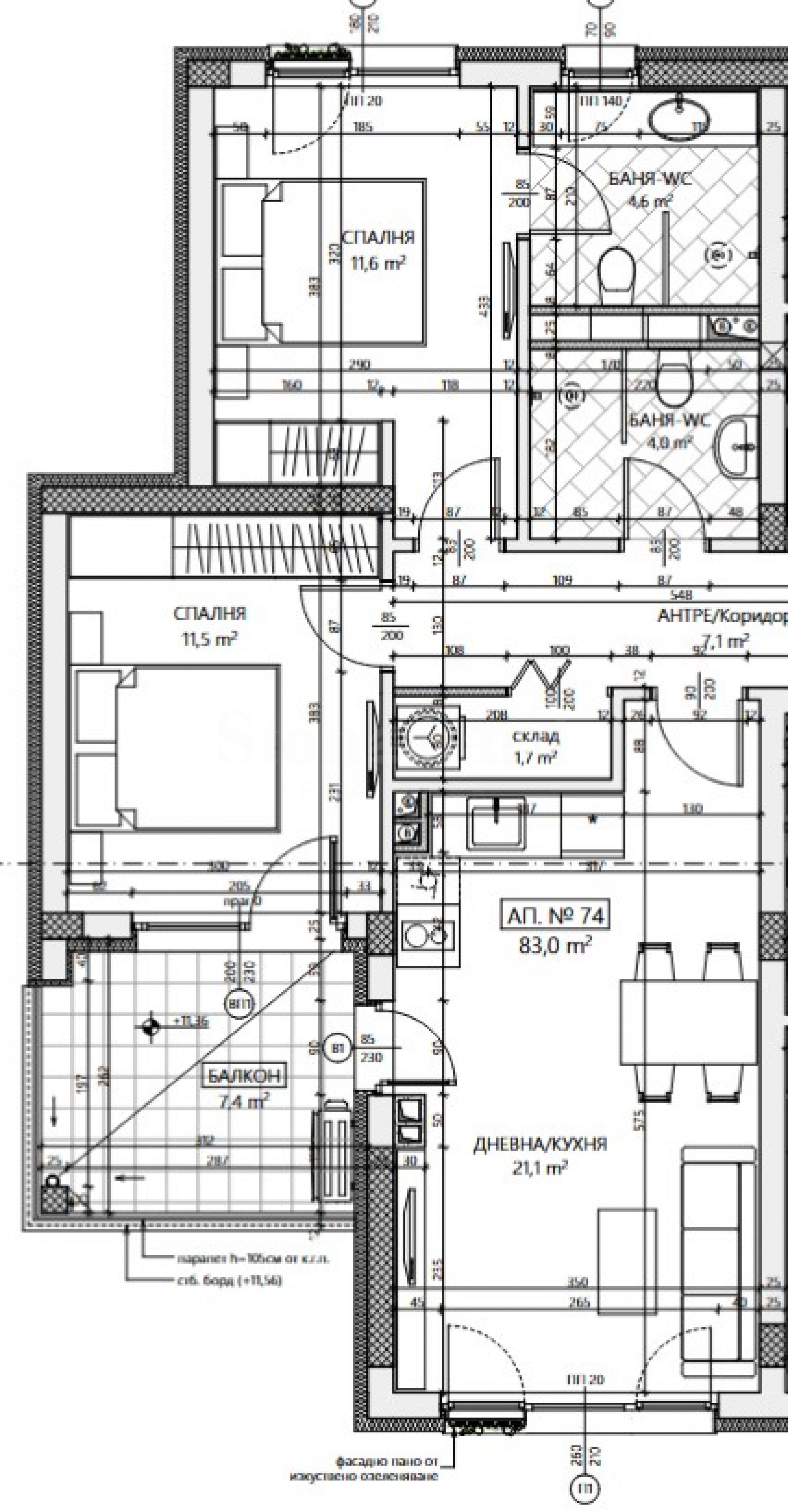
Квартира общей площадью 94,47 кв. м расположена на 5 этаже и состоит из прихожей/коридора, гостиной с кухней, двух спален, двух ванных комнат с туалетом, кладовой и террасы.
Квартира продаётся в состоянии «под ключ» с возможностью функциональной меблировки. Подходит как для личного проживания, так и для инвестиций.
О комплексе
Комплекс будет состоять из 2 зданий по шесть этажей каждое, а также 2 отдельно стоящих трехэтажных домов площадью 230 кв. м. Квартиры предлагаются в виде однокомнатных, двухкомнатных и трехкомнатных квартир площадью от 39,60 кв. м до 161,77 кв. м.
Удобства на территории:
• зеленая зона с садами и местами для отдыха;
• бассейн;
• детская площадка;
• парковка;
• Круглосуточная охрана.
Есть возможность приобрести парковочное место.
Мы с нетерпением ждем вашего запроса.
Если вы хотите договориться о просмотре интересующего вас объекта недвижимости или посетить один из наших офисов, пожалуйста, свяжитесь с нами. Чтобы договориться о встрече или просмотре, позвоните по указанному в объявлении номеру телефона или отправьте запрос по электронной почте. Наш консультант свяжется с вами по всем необходимым вопросам и подберет удобное для вас время.
Вы ищете подходящую для себя недвижимость?
Не стесняйтесь обращаться к нам и рассказать о своих потребностях и предпочтениях. Наша команда проведёт тщательное исследование рынка, чтобы предложить вам недвижимость, которая точно соответствует вашим критериям. У нас есть исключительное портфолио высококачественных и эксклюзивных домов, доступных только нашим клиентам. Чтобы первыми получать информацию о них, свяжитесь с нами.
Дополнительные услуги
Став нашим ценным клиентом, вы получите право пользоваться услугами нашей опытной юридической команды совершенно бесплатно. Кроме того, мы предлагаем комплексные решения, включая страхование имущества, бесплатные финансовые консультации и выгодные условия финансирования. Мы также предлагаем услуги по перепродаже, аренде и управлению недвижимостью. Мы осуществляем высококачественный ремонт и меблировку через специализированные компании, входящие в нашу группу компаний и являющиеся нашими давними профессиональными партнерами.
Смотр недвижимости
Мы готовы организовать смотр недвижимости в удобное для вас время. Обратитесь к ответственному менеджеру по продажам и проинформируйте его, когда бы Вы хотели приехать на смотровой тур. Мы можем помочь Вам забронировать авиабилет и отель, а также помочь Вам оформить визу и необходимую страховку.
Бронирование недвижимости
Вы можете забронировать недвижимость, заплатив невозмещаемый задаток в размере 2 000 евро наличным платежом, кредитной картой или банковским переводом на фирменный счет компании. После получения задатка недвижимость бронируется, осмотры с другими потенциальными покупателями производиться не будут, и начнется изготовление необходимых документов по оформлению сделки. Пожалуйста, обратитесь к ответственному за данный объект менеджеру по продажам для получения подробной информации относительно процедуры покупки и способов оплаты.
Послепродажное обслуживание
Мы уважаемая компания, за плечами которой многолетний опыт работы в сфере недвижимости. Мы будем сопровождать Вас не только во время покупки, но и после приобретения недвижимости, обеспечивая Вам дополнительный набор услуг с учетом Ваших требовании, для того, чтобы Вы могли насладиться полноценным и спокойным времяпровождением в Болгарии. Услуги, которые мы можем предложить, включают страхование, строительство и ремонт, услуги по меблировке, бухгалтерские и юридическиe услуги, переоформление договоров на электричество, воду, телефон и многое другое.
Расположение на карте
ПРОДАЖА
ПРОЕКТ
Современная меблированная двухкомнатная квартира недалеко от пляжа Несебра.
Несебр / Бургас / Болгария карта
Область: 110 м 2
Цена: 169 000 € /// 1 536 €/м 2
ПРОДАЖА
ПРОЕКТ
Трехкомнатная квартира в 50 метрах от пляжа в Несебре
Несебр / Бургас / Болгария карта
Область: 71.63 м 2
Цена: 130 000 € /// 1 815 €/м 2
ПРОДАЖА
ПРОЕКТ
Просторная двухкомнатная квартира в Несебре
Несебр / Бургас / Болгария карта
Область: 122 м 2
Цена: 135 000 € /// 1 107 €/м 2
Выберите эту опцию, и мы уведомим вас по электронной почте в случае каких-либо изменений в статусе предложения, например:
• Изменение цены;
• Объект недвижимости попал в рекламное предложение;
• Имущество зарезервировано или продано;
• Другие новости, связанные с недвижимостью.
• Имущество снимается с продажи;
Вы можете легко отписаться от уведомлений в любое время.• Изменения условий предложения;
• Изменение размера инвестиций;
• Объект инвестиции полностью реализован;
• Срок действия предложения истек.
Вы сможете легко отказаться от подписки, если в будущем решите, что больше не хотите следовать этому предложению.
Для получения абсолютно корректной информации о свободных объектах недвижимости, выставленных на продажу в проекте, и их актуальных ценах, пожалуйста, свяжитесь с нашим офисом по указанным контактам.
Мы прилагаем все усилия, чтобы наши прайс-листы были абсолютно актуальными и правильными, но зачастую это невозможно, учитывая большое количество новых проектов в нашем каталоге и высокую динамику продаж.
Благодарим за понимание!



...Как проверенный специалист, Stonehard PREMIER работает над позиционированием на рынке и продажами многочисленных новых строительных проектов, реализацию которых нам доверили ведущие предпринимательские компании в Болгарии и за рубежом...